賃貸マンション
ディアレイシャス東別院IVの賃貸物件情報(1K/9階)
| 家賃 | 管理費等 | 敷金 | 礼金 | 間取り | 専有面積 |
|---|---|---|---|---|---|
| 7.7万円 | 8,000円 | なし | なし | 1K | 29.78m2 |
入居決定でお祝い金最大100,000円
- 保証金
- -
- 償却・敷引
- -
- 築年数
- 築1年
- 所在階
- 9階
- 向き
- 東
Point
室内設備は浴室乾燥機・洗面所独立などが揃っており、とても充実しています。セキュリティ面は、オートロック・TVインターホンなどを設置しているので安全面でも優れております。
提供:ルームセレクト東別院店(株)洞口(SUUMO経由)

詳細情報 ディアレイシャス東別院IV
物件紹介
ディアレイシャス東別院IVは地下鉄名城線東別院駅から徒歩6分にあり、駅近で通勤通学に便利なマンションです。
このお部屋は2階以上に位置しているので、通行人や周囲の住人からの視線が気になりにくく、防犯面でも安心。建物のエントランスはオートロックがついており、インターホンにはTVモニタもついているため、相手の顔を確認してから来客対応することができます。
フローリングのお部屋なのでお掃除もラクラク。キッチンはシステムキッチン仕様になっていますので、お料理好きの方にもぴったり。バス・トイレは別なので、のんびりお風呂タイムも楽しめるでしょう。また、雨の日でも浴室乾燥機を使えば、お洗濯も問題ありません。
通信設備面では、インターネットが無料で使えるので、月々の出費を抑えられるのも魅力です。また、BSアンテナもありますので、おうち時間も充実するでしょう(別途工事、BSの契約料等が必要な場合あり)。
建物にはエレベーターがついているので、重い荷物があっても安心。共用部には宅配ボックスが設定されているので、不在の時にも荷物を受け取ることができます。
このお部屋は2階以上に位置しているので、通行人や周囲の住人からの視線が気になりにくく、防犯面でも安心。建物のエントランスはオートロックがついており、インターホンにはTVモニタもついているため、相手の顔を確認してから来客対応することができます。
フローリングのお部屋なのでお掃除もラクラク。キッチンはシステムキッチン仕様になっていますので、お料理好きの方にもぴったり。バス・トイレは別なので、のんびりお風呂タイムも楽しめるでしょう。また、雨の日でも浴室乾燥機を使えば、お洗濯も問題ありません。
通信設備面では、インターネットが無料で使えるので、月々の出費を抑えられるのも魅力です。また、BSアンテナもありますので、おうち時間も充実するでしょう(別途工事、BSの契約料等が必要な場合あり)。
建物にはエレベーターがついているので、重い荷物があっても安心。共用部には宅配ボックスが設定されているので、不在の時にも荷物を受け取ることができます。
お金・契約の情報
※「-」と表示されているものは、実際は料金が発生するものもございます。詳細はお問い合わせください。
| 家賃 | 7.7万円 | 管理費・共益費 | 8,000円 |
|---|---|---|---|
| 敷金 | なし | 礼金 | なし |
| 入居決定でお祝い金最大100,000円 | |||
| 保証金 | - | 償却・敷引 | - |
| 住宅保険料 | - | 更新料 | - |
| 保証会社利用 | 必須 | 保証会社名 | - |
| 保証会社費用 | - | 保証会社備考 | 保証会社利用必 エポスROOMiD(初回50%、月次1%) GTN(初回100%、月次2%) ルームバンク(初回50%、月次1%) セーフティー(初回50%、年次10,000円) |
| 契約形態 | - | 契約期間 | - |
| 入居・引渡期間 | 即時 | 現況 | - |
| 契約備考 | 巡回管理 更新料 賃料1.00ヶ月分 1K 法人希望 普通借家2年 バストイレ別、バルコニー、エアコン、ガスコンロ対応、フローリング、TVインターホン、浴室乾燥機、オートロック、室内洗濯置、シューズボックス、システムキッチン、エレベーター、洗面所独立、2口コンロ、駐輪場、宅配ボックス、防犯カメラ、保証人不要、2沿線利用可、ネット使用料不要、2駅利用可、3駅以上利用可、3沿線以上利用可、駅徒歩10分以内、都市ガス、BS | ||
部屋の情報
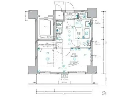
| 間取り | 1K | 専有面積 | 29.78m2 |
|---|---|---|---|
| 所在階 / 向き | 9階 / 東 | バルコニー面積 | 6m2 |
| 水道 / ガス | - | ||
| 設備 | バス・トイレ別、2階以上、オートロック、テレビドアホン、宅配ボックス、浴室乾燥機、インターネット対応、システムキッチン、エアコン、エレベーター、バルコニー、フローリング、洗髪洗面化粧台、2口コンロ、コンロ:ガス、BSアンテナ、インターネット使用料無料、洗濯機:室内 | ||
| 当社物件ID | 160197795 | ||
建物の情報
| 建物名 | ディアレイシャス東別院IV | ||
|---|---|---|---|
| 所在地 | 愛知県名古屋市中区千代田 | ||
| 交通 | 地下鉄名城線 東別院駅 徒歩6分 名鉄名古屋本線 金山駅(愛知) 徒歩15分 地下鉄鶴舞線 鶴舞駅 徒歩16分 | ||
| 階数 | 14階建 | 総戸数 | 91戸 |
| 築年月 | 2025年12月 / 築1年 | エレベーター | あり |
| 駐車場 | 空有 20000円 | バイク置き場 | - |
| 駐輪場 | あり | 管理人/管理会社 | - |
| 周辺環境 | その他 ヤマナカ つるまい店(スーパー)まで928m その他 サンエース 記念橋店(スーパー)まで965m その他 イオン金山店(ショッピングセンター)まで1193m その他 ローソン 東別院店(コンビニ)まで291m その他 東別院駅(その他)まで561m | ||
| 建物種別 | マンション | 建物構造 | RC(鉄筋コンクリート) |
この部屋の取扱い不動産会社
| 会社名 | (株)ニッショー栄支店(SUUMO経由) | ||
|---|---|---|---|
| 所在地 | 愛知県名古屋市中区栄2-4-10セントラル広小路ビル | 交通 | - |
| 営業時間 | 10:00~18:00 | 定休日 | 水曜定休 |
| 免許番号 | 国土交通大臣2018 | 取引態様 | 仲介 |
| 不動産会社管理番号 | 100483731680 | 当社管理番号 | 89 |
| 所属団体 | (公社)愛知県宅地建物取引業協会会員 | ||
| 公正取引協議会 | 東海不動産公正取引協議会加盟 | ||
| 取扱い物件情報 | 物件詳細へ | ||
※各種情報と現状に差異がある場合は、現状優先となります。問い合わせをすることで、より詳しい条件、情報を確認する事ができます。
提供:(株)ニッショー栄支店(SUUMO経由)
この物件が気になったら掲載期限まであと11日
ディアレイシャス東別院IVの空き部屋一覧
全部で33の空き部屋があります。
ディアレイシャス東別院IVに条件(家賃・エリア)が近い物件一覧
| 写真 | 家賃 管理費等 | 敷金 礼金 | 間取り 専有面積 | 築年数 | 最寄り駅 所在地 | キープ | 詳細 |
|---|---|---|---|---|---|---|---|
マンション 栄サンライズ(2DK/6階) | |||||||
| 6万円 8,000円 | なし なし | 2DK 38.88m2 | 築46年 | 名古屋市名城線 矢場町駅 徒歩3分 愛知県名古屋市中区栄五丁目12番32号 | 詳細を見る | ||
マンション エステムコート名古屋栄プレシャス(1K/11階) | |||||||
![]() | 6.35万円 7,480円 | なし なし | 1K 22.82m2 | 築8年 | 名古屋市鶴舞線 大須観音駅 徒歩4分 名古屋市東山線 伏見駅(愛知) 徒歩8分 名古屋市鶴舞線 上前津駅 徒歩20分 愛知県名古屋市中区栄1丁目 | 詳細を見る | |
マンション エステムコート名古屋上前津(1DK/7階) | |||||||
![]() | 7.8万円 5,340円 | なし なし | 1DK 28m2 | 築1年 | 地下鉄名城線 東別院駅 徒歩5分 地下鉄鶴舞線 上前津駅 徒歩6分 JR中央本線 鶴舞駅 徒歩12分 愛知県名古屋市中区富士見町 | 詳細を見る | |
マンション ISM松原(1LDK/5階) | |||||||
![]() | 10.3万円 7,000円 | なし なし | 1LDK 45.36m2 | 築38年 | 名鉄名古屋本線 山王駅(愛知) 徒歩10分 名古屋市名城線 東別院駅 徒歩12分 東海道本線 尾頭橋駅 徒歩13分 愛知県名古屋市中区松原3丁目 | 詳細を見る | |
マンション プレサンス鶴舞パーク&ステーション(1K/8階) | |||||||
![]() | 6.3万円 8,020円 | なし 7.1万円 | 1K 23.94m2 | 築4年 | JR中央本線 鶴舞駅 徒歩8分 地下鉄鶴舞線 上前津駅 徒歩9分 地下鉄名城線 矢場町駅 徒歩14分 愛知県名古屋市中区千代田 | 詳細を見る | |
マンション アンジュール栄(1K/5階) | |||||||
![]() | 6.6万円 6,000円 | なし なし | 1K 29.5m2 | 築20年 | 名古屋市東山線 栄駅(名古屋) 徒歩4分 名古屋市名城線 矢場町駅 徒歩4分 名古屋市名城線 久屋大通駅 徒歩11分 愛知県名古屋市中区栄4丁目 | 詳細を見る | |
マンション プレサンス上前津ディアシス(1LDK/10階) | |||||||
![]() | 8.77万円 8,880円 | なし 8.77万円 | 1LDK 32.3m2 | 築1年 | 名古屋市鶴舞線 上前津駅 徒歩4分 名古屋市名城線 上前津駅 徒歩4分 中央本線 鶴舞駅 徒歩17分 愛知県名古屋市中区上前津1丁目 | 詳細を見る | |
マンション プレサンス名古屋城前(1K/2階) | |||||||
![]() | 4.836万円 1.164万円 | なし なし | 1K 24.18m2 | 築23年 | 名古屋市鶴舞線 丸の内駅(愛知) 徒歩3分 愛知県名古屋市中区丸の内2丁目 | 詳細を見る | |







/105x80-f1-q70-wp1)