賃貸マンション
ディアレイシャス東別院IVの賃貸物件情報(1K/8階)
| 家賃 | 管理費等 | 敷金 | 礼金 | 間取り | 専有面積 |
|---|---|---|---|---|---|
| 5.8万円 | 8,000円 | なし | なし | 1K | 22.78m2 |
入居決定でお祝い金最大100,000円
- 保証金
- -
- 償却・敷引
- -
- 築年数
- 築1年
- 所在階
- 8階
- 向き
- 東
Point
☆ホームメイト☆大手ならではの安心感!業界歴が長く、経験豊富なスタッフ多数在籍!
提供:ホームメイトFC金山駅前店(株)Harnnect(SUUMO経由)

詳細情報 ディアレイシャス東別院IV
物件紹介
ディアレイシャス東別院IVは地下鉄名城線東別院駅から徒歩6分にあり、駅近で通勤通学に便利なマンションです。
このお部屋は2階以上に位置しているので、通行人や周囲の住人からの視線が気になりにくく、防犯面でも安心。建物のエントランスはオートロックがついており、インターホンにはTVモニタもついているため、相手の顔を確認してから来客対応することができます。
フローリングのお部屋なのでお掃除もラクラク。キッチンはシステムキッチン仕様になっていますので、お料理好きの方にもぴったり。バス・トイレは別なので、のんびりお風呂タイムも楽しめるでしょう。また、雨の日でも浴室乾燥機を使えば、お洗濯も問題ありません。
通信設備面では、インターネットが無料で使えるので、月々の出費を抑えられるのも魅力です。また、BSアンテナもありますので、おうち時間も充実するでしょう(別途工事、BSの契約料等が必要な場合あり)。
建物にはエレベーターがついているので、重い荷物があっても安心。共用部には宅配ボックスが設定されているので、不在の時にも荷物を受け取ることができます。
このお部屋は2階以上に位置しているので、通行人や周囲の住人からの視線が気になりにくく、防犯面でも安心。建物のエントランスはオートロックがついており、インターホンにはTVモニタもついているため、相手の顔を確認してから来客対応することができます。
フローリングのお部屋なのでお掃除もラクラク。キッチンはシステムキッチン仕様になっていますので、お料理好きの方にもぴったり。バス・トイレは別なので、のんびりお風呂タイムも楽しめるでしょう。また、雨の日でも浴室乾燥機を使えば、お洗濯も問題ありません。
通信設備面では、インターネットが無料で使えるので、月々の出費を抑えられるのも魅力です。また、BSアンテナもありますので、おうち時間も充実するでしょう(別途工事、BSの契約料等が必要な場合あり)。
建物にはエレベーターがついているので、重い荷物があっても安心。共用部には宅配ボックスが設定されているので、不在の時にも荷物を受け取ることができます。
お金・契約の情報
※「-」と表示されているものは、実際は料金が発生するものもございます。詳細はお問い合わせください。
| 家賃 | 5.8万円 | 管理費・共益費 | 8,000円 |
|---|---|---|---|
| 敷金 | なし | 礼金 | なし |
| 入居決定でお祝い金最大100,000円 | |||
| 保証金 | - | 償却・敷引 | - |
| 住宅保険料 | - | 更新料 | - |
| 保証会社利用 | 必須 | 保証会社名 | - |
| 保証会社費用 | - | 保証会社備考 | 保証会社利用必 エポスカード エポスROOMiD(初回50%、月次1%) GTN(初回100%、月次2%) ルームバンク(初回50%、月次1%) セーフティー(初回50%、年次10 000円) |
| 契約形態 | - | 契約期間 | - |
| 入居・引渡期間 | 即時 | 現況 | - |
| 契約備考 | 巡回管理 更新料 新賃料1.00ヶ月分 室内清掃費用 44000円 たのもしーど24 月額2200円 1K 単身者限定/子供不可/事務所利用不可/ルームシェア不可 普通借家2年 損保【要】 バストイレ別、バルコニー、エアコン、ガスコンロ対応、フローリング、TVインターホン、浴室乾燥機、オートロック、室内洗濯置、シューズボックス、システムキッチン、エレベーター、2口コンロ、駐輪場、宅配ボックス、即入居可、礼金不要、敷金不要、防犯カメラ、照明付、保証人不要、ネット専用回線、ネット使用料不要、保証金不要、24時間換気システム、ペット専用設備、耐火構造、3駅以上利用可、3沿線以上利用可、駅徒歩10分以内、敷地内ごみ置き場、都市ガス、間接照明、BS、敷金・礼金不要、保証会社利用可、初期費用カード決済可 | ||
部屋の情報
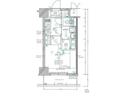
| 間取り | 1K | 専有面積 | 22.78m2 |
|---|---|---|---|
| 所在階 / 向き | 8階 / 東 | バルコニー面積 | - |
| 水道 / ガス | - | ||
| 設備 | バス・トイレ別、2階以上、オートロック、テレビドアホン、宅配ボックス、浴室乾燥機、インターネット対応、システムキッチン、エアコン、エレベーター、バルコニー、フローリング、2口コンロ、コンロ:ガス、BSアンテナ、インターネット使用料無料、洗濯機:室内 | ||
| 当社物件ID | 160146675 | ||
建物の情報
| 建物名 | ディアレイシャス東別院IV | ||
|---|---|---|---|
| 所在地 | 愛知県名古屋市中区千代田 | ||
| 交通 | 地下鉄名城線 東別院駅 徒歩6分 名鉄名古屋本線 金山駅(愛知) 徒歩15分 JR中央本線 鶴舞駅 徒歩15分 | ||
| 階数 | 14階建 | 総戸数 | 91戸 |
| 築年月 | 2025年12月 / 築1年 | エレベーター | あり |
| 駐車場 | 空有 18000円 | バイク置き場 | - |
| 駐輪場 | あり | 管理人/管理会社 | - |
| 周辺環境 | その他 セブンイレブン 名古屋千代田4丁目店(コンビニ)まで147m その他 ローソン 東別院店(コンビニ)まで291m その他 天然温泉 アーバンクア(その他)まで311m その他 スギ薬局 金山北店(ドラッグストア)まで648m その他 ヤマナカ つるまい店(スーパー)まで928m | ||
| 建物種別 | マンション | 建物構造 | RC(鉄筋コンクリート) |
この部屋の取扱い不動産会社
| 会社名 | ホームメイトFC金山駅前店(株)Harnnect(SUUMO経由) | ||
|---|---|---|---|
| 所在地 | 愛知県名古屋市中区金山1-16-11 グランド金山ビル2F | 交通 | - |
| 営業時間 | 9:30~18:30 | 定休日 | 無 |
| 免許番号 | 愛知県知事25554 | 取引態様 | 仲介 |
| 不動産会社管理番号 | 100482167331 | 当社管理番号 | 89 |
| 所属団体 | (公社)全日本不動産協会愛知県本部会員 | ||
| 公正取引協議会 | 東海不動産公正取引協議会加盟 | ||
| 取扱い物件情報 | 物件詳細へ | ||
※各種情報と現状に差異がある場合は、現状優先となります。問い合わせをすることで、より詳しい条件、情報を確認する事ができます。
提供:ホームメイトFC金山駅前店(株)Harnnect(SUUMO経由)
この物件が気になったら掲載期限まであと10日
ディアレイシャス東別院IVの空き部屋一覧
全部で46の空き部屋があります。
ディアレイシャス東別院IVに条件(家賃・エリア)が近い物件一覧
| 写真 | 家賃 管理費等 | 敷金 礼金 | 間取り 専有面積 | 築年数 | 最寄り駅 所在地 | キープ | 詳細 |
|---|---|---|---|---|---|---|---|
マンション プレサンス金山グリーンパークス(1K/9階) | |||||||
![]() | 5.45万円 9,500円 | なし 6.4万円 | 1K 21.83m2 | 築18年 | 地下鉄名城線 東別院駅 徒歩3分 地下鉄名港線 金山駅(愛知) 徒歩6分 地下鉄鶴舞線 上前津駅 徒歩15分 愛知県名古屋市中区平和 | 詳細を見る | |
マンション プレサンス久屋大通公園サウス(1K/10階) | |||||||
![]() | 6.168万円 1.232万円 | なし なし | 1K 30.41m2 | 築20年 | 名古屋市鶴舞線 上前津駅 徒歩7分 愛知県名古屋市中区千代田2丁目 | 詳細を見る | |
マンション エステムコート名古屋上前津(1DK/4階) | |||||||
![]() | 7.5万円 5,340円 | なし なし | 1DK 28m2 | 築1年 | 地下鉄名城線 東別院駅 徒歩5分 地下鉄鶴舞線 上前津駅 徒歩6分 JR中央本線 鶴舞駅 徒歩17分 愛知県名古屋市中区富士見町 | 詳細を見る | |
マンション プレサンス上前津プレス(1K/5階) | |||||||
![]() | 6.256万円 9,440円 | なし 7.2万円 | 1K 24.32m2 | 築7年 | 名古屋市名城線 上前津駅 徒歩7分 名古屋市鶴舞線 上前津駅 徒歩7分 名古屋市名城線 東別院駅 徒歩9分 愛知県名古屋市中区富士見町 | 詳細を見る | |
マンション プレサンス大須観音フィエスタ(1K/5階) | |||||||
![]() | 5.973万円 7,270円 | なし 6.7万円 | 1K 22.04m2 | 築3年 | 名古屋市鶴舞線 大須観音駅 徒歩4分 名古屋市東山線 伏見駅(愛知) 徒歩15分 名古屋市鶴舞線 上前津駅 徒歩18分 愛知県名古屋市中区大須1丁目 | 詳細を見る | |
マンション レジデンス名古屋千代田(1K/6階) | |||||||
![]() | 5.45万円 7,000円 | なし なし | 1K 24.42m2 | 築20年 | 地下鉄名城線 矢場町駅 徒歩6分 地下鉄鶴舞線 上前津駅 徒歩12分 JR中央本線 鶴舞駅 徒歩13分 愛知県名古屋市中区千代田 | 詳細を見る | |
マンション エステムコート名古屋新栄Ⅱアリーナ(1K/13階) | |||||||
![]() | 5.85万円 8,530円 | なし なし | 1K 21.08m2 | 築7年 | 中央本線 鶴舞駅 徒歩9分 名古屋市名城線 矢場町駅 徒歩9分 名古屋市東山線 新栄町駅(愛知) 徒歩10分 愛知県名古屋市中区新栄2丁目 | 詳細を見る | |
マンション メイクスアート新栄Ⅲ(1K/9階) | |||||||
![]() | 6.2万円 8,000円 | なし なし | 1K 22.37m2 | 築1年 | 名古屋市東山線 新栄町駅(愛知) 徒歩8分 愛知県名古屋市中区新栄2丁目 | 詳細を見る | |


/105x80-f1-q70-wp1)





