賃貸マンション
G&J門前仲町の賃貸物件情報(1LDK/6階)
| 家賃 | 管理費等 | 敷金 | 礼金 | 間取り | 専有面積 |
|---|---|---|---|---|---|
| 16.3万円 | 1.2万円 | 16.3万円 | 8.15万円 | 1LDK | 39.9m2 |
入居決定でお祝い金最大100,000円
- 保証金
- -
- 償却・敷引
- -
- 築年数
- 築2年
- 所在階
- 6階
- 向き
- 南東
Point
人気の門前仲町! 清澄白河も徒歩圏内♪ 駅徒歩2分好立地!通勤の時間短縮!周辺施設も充実でお買い物にも便利♪ セキュリティ・設備充実のマンションです(^^)/
提供:(株)Link Roomリンクルーム清澄白河本店(SUUMO経由)

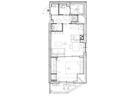
詳細情報 G&J門前仲町
物件紹介
G&J門前仲町は東京メトロ東西線門前仲町駅から徒歩2分にあり、駅近で通勤通学に便利なマンションです。
このお部屋は2階以上に位置しているので、通行人や周囲の住人からの視線が気になりにくく、防犯面でも安心。建物のエントランスはオートロックがついており、インターホンにはTVモニタもついているため、相手の顔を確認してから来客対応することができます。
おしゃれなデザイナーズ物件!人気の南向き・フローリングのお部屋。角部屋でもあるため、周囲の居住者の生活音も気になりにくい場所です。キッチンはシステムキッチン仕様になっていますので、お料理好きの方にもぴったり。バス・トイレは別なので、のんびりお風呂タイムも楽しめるでしょう。また、雨の日でも浴室乾燥機を使えば、お洗濯も問題ありません。
通信設備面では、インターネットが無料で使えるので、月々の出費を抑えられるのも魅力です(別途工事等が必要な場合あり)。
建物にはエレベーターがついているので、重い荷物があっても安心。共用部には宅配ボックスが設定されているので、不在の時にも荷物を受け取ることができます。
このお部屋は2階以上に位置しているので、通行人や周囲の住人からの視線が気になりにくく、防犯面でも安心。建物のエントランスはオートロックがついており、インターホンにはTVモニタもついているため、相手の顔を確認してから来客対応することができます。
おしゃれなデザイナーズ物件!人気の南向き・フローリングのお部屋。角部屋でもあるため、周囲の居住者の生活音も気になりにくい場所です。キッチンはシステムキッチン仕様になっていますので、お料理好きの方にもぴったり。バス・トイレは別なので、のんびりお風呂タイムも楽しめるでしょう。また、雨の日でも浴室乾燥機を使えば、お洗濯も問題ありません。
通信設備面では、インターネットが無料で使えるので、月々の出費を抑えられるのも魅力です(別途工事等が必要な場合あり)。
建物にはエレベーターがついているので、重い荷物があっても安心。共用部には宅配ボックスが設定されているので、不在の時にも荷物を受け取ることができます。
お金・契約の情報
※「-」と表示されているものは、実際は料金が発生するものもございます。詳細はお問い合わせください。
| 家賃 | 16.3万円 | 管理費・共益費 | 1.2万円 |
|---|---|---|---|
| 敷金 | 16.3万円 | 礼金 | 8.15万円 |
| 入居決定でお祝い金最大100,000円 | |||
| 保証金 | - | 償却・敷引 | - |
| 住宅保険料 | - | 更新料 | - |
| 保証会社利用 | 必須 | 保証会社名 | - |
| 保証会社費用 | - | 保証会社備考 | 保証会社利用必 初回:総賃料の40%~ |
| 契約形態 | - | 契約期間 | - |
| 入居・引渡期間 | 即時 | 現況 | - |
| 契約備考 | 【リンクルーム門前仲町店】では、江東区・墨田区を中心に数多くの物件を取り扱っているので、他社さん掲載の物件もご紹介が可能です。 物件情報だけではなく、周辺環境なども熟知したスタッフがご対応させていただきますので、お気軽にお問い合わせください♪ 合計5.5万円(内訳:事務手数料1.1万円鍵交換代4.4万円) 更新料 新賃料1.00ヶ月分 保険+付帯サービス 月額1100円 1LDK 普通借家2年 損保【要】 バストイレ別、バルコニー、エアコン、クロゼット、フローリング、TVインターホン、浴室乾燥機、オートロック、室内洗濯置、陽当り良好、シューズボックス、システムキッチン、角住戸、温水洗浄便座、脱衣所、エレベーター、洗面所独立、洗面化粧台、2口コンロ、駐輪場、宅配ボックス、光ファイバー、即入居可、2面採光、対面式キッチン、防犯カメラ、照明付、保証人不要、2沿線利用可、ネット使用料不要、ダブルロックキー、築2年以内、24時間換気システム、築3年以内、2駅利用可、3駅以上利用可、3沿線以上利用可、駅徒歩5分以内、駅徒歩10分以内、24時間ゴミ出し可、敷地内ごみ置き場、築5年以内、東南向き、都市ガス、玄関収納、IT重説対応物件、初期費用カード決済可、通風良好 | ||
部屋の情報
| 間取り | 1LDK | 専有面積 | 39.9m2 |
|---|---|---|---|
| 所在階 / 向き | 6階 / 南東 | バルコニー面積 | - |
| 水道 / ガス | - | ||
| 設備 | バス・トイレ別、2階以上、オートロック、テレビドアホン、宅配ボックス、浴室乾燥機、インターネット対応、システムキッチン、エアコン、エレベーター、温水洗浄便座、南向き、角部屋、バルコニー、フローリング、洗髪洗面化粧台、2口コンロ、インターネット使用料無料、洗濯機:室内 | ||
| 当社物件ID | 157599193 | ||
建物の情報
| 建物名 | G&J門前仲町 | ||
|---|---|---|---|
| 所在地 | 東京都江東区永代 | ||
| 交通 | 東京メトロ東西線 門前仲町駅 徒歩2分 JR京葉線 越中島駅 徒歩10分 東京メトロ半蔵門線 清澄白河駅 徒歩19分 | ||
| 階数 | 10階建 | 総戸数 | - |
| 築年月 | 2024年09月 / 築2年 | エレベーター | あり |
| 駐車場 | なし | バイク置き場 | - |
| 駐輪場 | あり | 管理人/管理会社 | - |
| 周辺環境 | その他 ファミリーマート(門前仲町1丁目店)(コンビニ)まで98m その他 カレコ・カーシェアリングクラブ リパーク永代2丁目(自転車可(その他)まで69m その他 セブンイレブン(コンビニ)まで201m その他 臨海公園(公園)まで198m その他 門前仲町内科クリニック(病院)まで184m その他 コインランドリーピエロ 148号 永代店(その他)まで165m | ||
| 建物種別 | マンション | 建物構造 | RC(鉄筋コンクリート) |
この部屋の取扱い不動産会社
| 会社名 | (株)Link Roomリンクルーム門前仲町店(SUUMO経由) | ||
|---|---|---|---|
| 所在地 | 東京都江東区門前仲町1-7-11 寿司長ビル3階 | 交通 | - |
| 営業時間 | 10:00~19:00 | 定休日 | 不定休 |
| 免許番号 | 東京都知事108549 | 取引態様 | 仲介 |
| 不動産会社管理番号 | 100492870230 | 当社管理番号 | 89 |
| 取扱い物件情報 | 物件詳細へ | ||
※各種情報と現状に差異がある場合は、現状優先となります。問い合わせをすることで、より詳しい条件、情報を確認する事ができます。
提供:(株)Link Roomリンクルーム門前仲町店(SUUMO経由)
この物件が気になったら掲載期限まであと12日
G&J門前仲町に条件(家賃・エリア)が近い物件一覧
| 写真 | 家賃 管理費等 | 敷金 礼金 | 間取り 専有面積 | 築年数 | 最寄り駅 所在地 | キープ | 詳細 |
|---|---|---|---|---|---|---|---|
マンション CRED門前仲町(ワンルーム/3階) | |||||||
![]() | 12.4万円 1.1万円 | なし 12.4万円 | ワンルーム 17.09m2 | 築6年 | 東京地下鉄東西線 門前仲町駅 徒歩7分 京葉線 八丁堀駅(東京) 徒歩14分 東京地下鉄日比谷線 茅場町駅 徒歩14分 東京都江東区永代1丁目 | 詳細を見る | |
一戸建て 京浜急行電鉄本線 梅屋敷駅(東京) 徒歩9分 築25年(3LDK) | |||||||
![]() | 20万円 なし | 20万円 20万円 | 3LDK 80.82m2 | 築25年 | 京浜急行電鉄本線 梅屋敷駅(東京) 徒歩9分 京浜東北・根岸線 蒲田駅 徒歩10分 東京都大田区大森西7丁目 | 詳細を見る | |
マンション ドルチェ京橋壱番館(1K/3階) | |||||||
![]() | 12.4万円 1.1万円 | なし 12.4万円 | 1K 21.22m2 | 築22年 | 都営浅草線 宝町駅 徒歩2分 東京メトロ日比谷線 八丁堀駅(東京) 徒歩6分 JR山手線 東京駅 徒歩13分 東京都中央区八丁堀 | 詳細を見る | |
マンション エストゥルース両国Ⅱ(1K/4階) | |||||||
![]() | 11万円 1万円 | なし なし | 1K 25.77m2 | 築6年 | 東京都大江戸線 両国駅 徒歩8分 東京都大江戸線 蔵前駅 徒歩10分 総武・中央緩行線 両国駅 徒歩14分 東京都墨田区石原1丁目 | 詳細を見る | |
マンション SEED JUST B-BASE COAST(1LDK/3階) | |||||||
![]() | 9.9万円 1.5万円 | 9.9万円 9.9万円 | 1LDK 25.41m2 | 築1年 | 東京モノレール羽田 昭和島駅 徒歩11分 京浜急行電鉄本線 梅屋敷駅(東京) 徒歩19分 東京都大田区大森南4丁目 | 詳細を見る | |
マンション クレヴィスタ大島I(1K/7階) | |||||||
![]() | 12.9万円 1.1万円 | なし 12.9万円 | 1K 25.42m2 | 築6年 | 東京都新宿線 大島駅(東京) 徒歩2分 東京都新宿線 西大島駅 徒歩11分 総武・中央緩行線 亀戸駅 徒歩20分 東京都江東区大島5丁目 | 詳細を見る | |
マンション メゾンドボナール(1DK/4階) | |||||||
![]() | 12万円 3,000円 | 12万円 なし | 1DK 32.48m2 | 築29年 | 京浜東北・根岸線 蒲田駅 徒歩10分 京浜急行電鉄本線 京急蒲田駅 徒歩10分 東京都大田区蒲田3丁目 | 詳細を見る | |
マンション DIPS墨田RIVERSIDE(1LDK/2階) | |||||||
![]() | 15.4万円 1.5万円 | なし 15.4万円 | 1LDK 42.36m2 | 築10年 | 京成押上線 八広駅 徒歩7分 京成押上線 四ツ木駅 徒歩14分 東武伊勢崎線 東向島駅 徒歩18分 東京都墨田区東墨田 | 詳細を見る | |








