賃貸マンション
ル・リオン中野白鷺の賃貸物件情報(1K/1階)
| 家賃 | 管理費等 | 敷金 | 礼金 | 間取り | 専有面積 |
|---|---|---|---|---|---|
| 6.6万円 | 9,000円 | なし | なし | 1K | 21.09m2 |
入居決定でお祝い金最大100,000円
- 保証金
- 6.6万円
- 償却・敷引
- -
- 築年数
- 築20年
- 所在階
- 1階
- 向き
- 南
Point
都内全ての物件をご案内可能です。オンラインにて申込みから契約までのお手続きも。他社様掲載物件のお見積もり、物件提案のご要望など、お気軽にお問い合わせください。初期費用分割払いも承ります!
提供:(株)sagasumu(SUUMO経由)

詳細情報 ル・リオン中野白鷺
物件紹介
ル・リオン中野白鷺は西武新宿線鷺ノ宮駅から徒歩9分にあり、駅近で通勤通学に便利なマンションです。
建物のエントランスはオートロックがついており、インターホンにはTVモニタもついているため、相手の顔を確認してから来客対応することができます。
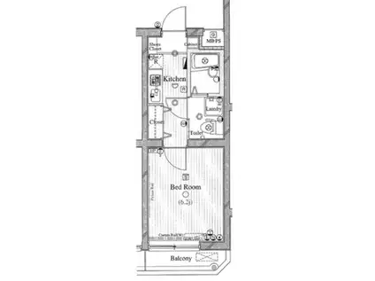
人気の南向きのお部屋。また、フローリングなのでお掃除もラクラク。キッチンはシステムキッチン仕様になっていますので、お料理好きの方にもぴったり。また、バス・トイレは別で、のんびりお風呂タイムも楽しめるでしょう。
共用部には宅配ボックスが設定されているので、不在の時にも荷物を受け取ることができます。
建物のエントランスはオートロックがついており、インターホンにはTVモニタもついているため、相手の顔を確認してから来客対応することができます。
人気の南向きのお部屋。また、フローリングなのでお掃除もラクラク。キッチンはシステムキッチン仕様になっていますので、お料理好きの方にもぴったり。また、バス・トイレは別で、のんびりお風呂タイムも楽しめるでしょう。
共用部には宅配ボックスが設定されているので、不在の時にも荷物を受け取ることができます。
お金・契約の情報
※「-」と表示されているものは、実際は料金が発生するものもございます。詳細はお問い合わせください。
| 家賃 | 6.6万円 | 管理費・共益費 | 9,000円 |
|---|---|---|---|
| 敷金 | なし | 礼金 | なし |
| 入居決定でお祝い金最大100,000円 | |||
| 保証金 | 6.6万円 | 償却・敷引 | - |
| 住宅保険料 | - | 更新料 | - |
| 保証会社利用 | 必須 | 保証会社名 | - |
| 保証会社費用 | - | 保証会社備考 | 保証会社利用必 初回契約時:50%、更新時:10,000円、1年毎 お客様の内容によって保証料変更あり |
| 契約形態 | - | 契約期間 | - |
| 入居・引渡期間 | 相談 | 現況 | - |
| 契約備考 | 更新料新賃料1ヶ月クリーニング費用38500円 合計4.4万円(内訳:契約事務手数料11000円鍵交換33000円) 退去時ハウスクリーニング38,500円退去時エアコン分解清掃11,000円 1K 二人入居可 普通借家2年 損保【2万円2年】 バストイレ別、バルコニー、エアコン、ガスコンロ対応、クロゼット、フローリング、TVインターホン、オートロック、室内洗濯置、シューズボックス、システムキッチン、南向き、温水洗浄便座、脱衣所、洗面所独立、洗面化粧台、2口コンロ、駐輪場、宅配ボックス、防犯カメラ、分譲賃貸、全居室洋室、保証人不要、二人入居相談、全居室フローリング、保証金不要、24時間換気システム、3駅以上利用可、駅徒歩10分以内、敷地内ごみ置き場、全居室6畳以上、都市ガス、洗面所にドア、敷金・礼金不要、保証会社利用可、IT重説対応物件、初期費用カード決済可 | ||
部屋の情報
| 間取り | 1K | 専有面積 | 21.09m2 |
|---|---|---|---|
| 所在階 / 向き | 1階 / 南 | バルコニー面積 | - |
| 水道 / ガス | - | ||
| 設備 | バス・トイレ別、オートロック、テレビドアホン、宅配ボックス、システムキッチン、エアコン、温水洗浄便座、南向き、バルコニー、フローリング、洗髪洗面化粧台、2口コンロ、コンロ:ガス、洗濯機:室内 | ||
| 当社物件ID | 4364775 | ||
建物の情報
| 建物名 | ル・リオン中野白鷺 | ||
|---|---|---|---|
| 所在地 | 東京都中野区白鷺 | ||
| 交通 | 西武新宿線 鷺ノ宮駅 徒歩9分 西武新宿線 下井草駅 徒歩13分 西武新宿線 都立家政駅 徒歩17分 | ||
| 階数 | 3階建 | 総戸数 | - |
| 築年月 | 2006年06月 / 築20年 | エレベーター | - |
| 駐車場 | なし | バイク置き場 | - |
| 駐輪場 | あり | 管理人/管理会社 | - |
| 周辺環境 | その他 オーケー鷺宮店(スーパー)まで134m その他 まいばすけっと鷺ノ宮駅南店(スーパー)まで510m その他 ファミリーマート鷺宮駅前店(コンビニ)まで590m その他 ウエルシア中野さぎの宮店(ドラッグストア)まで555m その他 マツモトキヨシ鷺ノ宮駅前店(ドラッグストア)まで625m その他 クリエイトエス・ディー中野上鷺宮店(ドラッグストア)まで762m | ||
| 建物種別 | マンション | 建物構造 | RC(鉄筋コンクリート) |
この部屋の取扱い不動産会社
| 会社名 | (株)sagasumu(SUUMO経由) | ||
|---|---|---|---|
| 所在地 | 東京都豊島区池袋2-17-8-109 | 交通 | - |
| 営業時間 | 9:00~18:00 | 定休日 | 毎週水曜日・年末年始 |
| 免許番号 | 東京都知事107846 | 取引態様 | 仲介 |
| 不動産会社管理番号 | 100474638865 | 当社管理番号 | 89 |
| 所属団体 | (公社)全日本不動産協会東京都本部会員 | ||
| 公正取引協議会 | (公社)首都圏不動産公正取引協議会加盟 | ||
| 取扱い物件情報 | 物件詳細へ | ||
※各種情報と現状に差異がある場合は、現状優先となります。問い合わせをすることで、より詳しい条件、情報を確認する事ができます。
提供:(株)sagasumu(SUUMO経由)
この物件が気になったら掲載期限まであと7日
ル・リオン中野白鷺に条件(家賃・エリア)が近い物件一覧
| 写真 | 家賃 管理費等 | 敷金 礼金 | 間取り 専有面積 | 築年数 | 最寄り駅 所在地 | キープ | 詳細 |
|---|---|---|---|---|---|---|---|
マンション レジデンス秀麗(1LDK/3階) | |||||||
![]() | 9.5万円 5,000円 | 9.5万円 9.5万円 | 1LDK 39.83m2 | 築37年 | 西武新宿線 沼袋駅 徒歩9分 都営大江戸線 新江古田駅 徒歩17分 西武新宿線 野方駅 徒歩19分 東京都中野区江古田 | 詳細を見る | |
アパート メゾン・マーレ(1K/2階) | |||||||
![]() | 4.7万円 なし | 4.7万円 なし | 1K 16.56m2 | 築29年 | 西武新宿線 上石神井駅 徒歩6分 西武新宿線 武蔵関駅 徒歩18分 西武新宿線 上井草駅 徒歩21分 東京都練馬区上石神井 | 詳細を見る | |
アパート カルチャーハウス(2DK/1階) | |||||||
![]() | 9.5万円 3,000円 | 9.5万円 9.5万円 | 2DK 39.74m2 | 築39年 | 西武新宿線 沼袋駅 徒歩2分 JR総武線 中野駅(東京) 徒歩20分 東京都中野区沼袋 | 詳細を見る | |
マンション RESIDENCE SATSUMA(1K/2階) | |||||||
![]() | 10.4万円 8,000円 | 10.4万円 10.4万円 | 1K 32.96m2 | 築18年 | 西武新宿線 野方駅 徒歩3分 西武新宿線 都立家政駅 徒歩13分 JR中央線 高円寺駅 徒歩21分 東京都中野区野方 | 詳細を見る | |
アパート ATTIC OTSUKA(ワンルーム/2階) | |||||||
![]() | 8.3万円 4,000円 | なし なし | ワンルーム 28.33m2 | 築7年 | 都電荒川線 巣鴨新田駅 徒歩5分 都電荒川線 庚申塚駅 徒歩8分 JR山手線 大塚駅(東京) 徒歩12分 東京都豊島区西巣鴨 | 詳細を見る | |
マンション 高村ビル(2K/4階) | |||||||
![]() | 7万円 2,000円 | 7万円 7万円 | 2K 28.56m2 | 築56年 | JR山手線 駒込駅 徒歩3分 都営三田線 巣鴨駅 徒歩17分 JR京浜東北線 田端駅 徒歩17分 東京都豊島区駒込 | 詳細を見る | |
マンション KEITA(1K/2階) | |||||||
![]() | 7.2万円 3,000円 | なし なし | 1K 19.82m2 | 築21年 | 西武新宿線 武蔵関駅 徒歩18分 西武新宿線 上石神井駅 徒歩20分 JR中央線 吉祥寺駅 徒歩24分 東京都練馬区立野町 | 詳細を見る | |
アパート セジュール向山(1LDK/2階) | |||||||
![]() | 5.6万円 4,000円 | なし 2万円 | 1LDK 33.39m2 | 築19年 | つくばエクスプレス つくば駅 徒歩62分 茨城県土浦市宍塚 | 詳細を見る | |









