賃貸マンション
札幌第一パークハイツの賃貸物件情報(3LDK/9階)
| 家賃 | 管理費等 | 敷金 | 礼金 | 間取り | 専有面積 |
|---|---|---|---|---|---|
| 7.5万円 | 1.5万円 | 7.5万円 | なし | 3LDK | 67.65m2 |
入居決定でお祝い金最大100,000円
- 保証金
- -
- 償却・敷引
- -
- 築年数
- 築52年
- 所在階
- 9階
- 向き
- 南東
Point
・3LDK(12帖+6帖+6帖+5帖)・ベッド2台、冷蔵庫、洗濯機、テレビ、ソファ、テーブル、机、イス、ワードローブ、タンス、照明、カーテン、レンジ、コンロ、掃除機、温水便座南向き3LDK、家具・家
提供:(株)アパマン・プラザ(SUUMO経由)

詳細情報 札幌第一パークハイツ
物件紹介
札幌第一パークハイツは札幌市電東本願寺前駅から徒歩5分にあり、駅近で通勤通学に便利なマンションです。
このお部屋は2階以上に位置しているので、通行人や周囲の住人からの視線が気になりにくく、防犯面でも安心です。
人気の南向きのお部屋。角部屋でもあるため、周囲の居住者の生活音も気になりにくい場所です。キッチンはシステムキッチン仕様になっていますので、お料理好きの方にもぴったり。また、バス・トイレは別で、のんびりお風呂タイムも楽しめるでしょう。
通信設備面ではBSアンテナ・CSアンテナがあり、CATVにも対応しているので、おうち時間も充実するでしょう(別途工事、契約料が必要な場合あり)。
建物にはエレベーターがついているので、重い荷物があっても安心。共用部には宅配ボックスが設定されているので、不在の時にも荷物を受け取ることができます。
このお部屋は2階以上に位置しているので、通行人や周囲の住人からの視線が気になりにくく、防犯面でも安心です。
人気の南向きのお部屋。角部屋でもあるため、周囲の居住者の生活音も気になりにくい場所です。キッチンはシステムキッチン仕様になっていますので、お料理好きの方にもぴったり。また、バス・トイレは別で、のんびりお風呂タイムも楽しめるでしょう。
通信設備面ではBSアンテナ・CSアンテナがあり、CATVにも対応しているので、おうち時間も充実するでしょう(別途工事、契約料が必要な場合あり)。
建物にはエレベーターがついているので、重い荷物があっても安心。共用部には宅配ボックスが設定されているので、不在の時にも荷物を受け取ることができます。
お金・契約の情報
※「-」と表示されているものは、実際は料金が発生するものもございます。詳細はお問い合わせください。
| 家賃 | 7.5万円 | 管理費・共益費 | 1.5万円 |
|---|---|---|---|
| 敷金 | 7.5万円 | 礼金 | なし |
| 入居決定でお祝い金最大100,000円 | |||
| 保証金 | - | 償却・敷引 | - |
| 住宅保険料 | - | 更新料 | - |
| 保証会社利用 | 利用可 | 保証会社名 | 日本セーフティー |
| 保証会社費用 | - | 保証会社備考 | 日本セーフティー利用可 契約時に賃料等の50%。 1年経過時に10,000円。 連帯保証人有りの場合、不要 |
| 契約形態 | - | 契約期間 | - |
| 入居・引渡期間 | 即時 | 現況 | - |
| 入居可能条件 | 事務所可 | ||
| 契約備考 | 通勤管理/リフォーム:2026年2月室内の床床 カーペット貼替/札幌第一パークハイツから地下鉄東西線西11丁目駅まで徒歩7分、地下鉄南北線すすきの駅まで徒歩7分。狸小路(アーケード商店街)まで徒歩4分、大通り公園まで徒歩8分です。 西11丁目周辺は、中央区役所、ホテル、病院、合同庁舎、文化会館、放送局裁判所などのビジネス街です。 札幌第一パークハイツ総戸数211戸でエレベータが3機も付いている大型マンションです。 管理人もいますので安心です。 室内清掃費用 52800円 3LDK 二人入居可/事務所利用相談 普通借家2年 損保【0.6万円1年】 バストイレ別、バルコニー、ガスコンロ対応、クロゼット、シャワー付洗面台、室内洗濯置、シューズボックス、システムキッチン、南向き、角住戸、温水洗浄便座、脱衣所、エレベーター、洗面所独立、2口コンロ、駐輪場、宅配ボックス、押入、CATV、即入居可、礼金不要、2面採光、BS・CS、防犯カメラ、24時間有人管理、分譲賃貸、全居室洋室、保証人不要、冷蔵庫、仲介手数料不要、敷金1ヶ月、24時間緊急通報システム、2沿線利用可、駅まで平坦、内装リフォーム済、保証金不要、クロゼット2ヶ所、平坦地、南面2室、初期費用20万円以下、南面リビング、電子レンジ、家電付、家具付、エレベーター2基、耐火構造、耐震構造、カーテン付、2駅利用可、駅徒歩5分以内、駅徒歩10分以内、東南向き、当社管理物件、セキュリティ会社加入済、和室、都市ガス、じゅうたん張、玄関収納、保証会社利用可、高齢者歓迎 | ||
部屋の情報
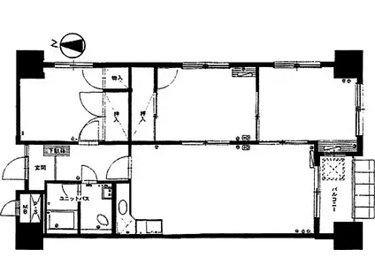
| 間取り | 3LDK | 専有面積 | 67.65m2 |
|---|---|---|---|
| 所在階 / 向き | 9階 / 南東 | バルコニー面積 | 2m2 |
| 水道 / ガス | - | ||
| 設備 | バス・トイレ別、2階以上、宅配ボックス、システムキッチン、エレベーター、温水洗浄便座、南向き、角部屋、バルコニー、洗髪洗面化粧台、2口コンロ、コンロ:ガス、CATV、CSアンテナ、BSアンテナ、洗濯機:室内 | ||
| 当社物件ID | 22279597 | ||
建物の情報
| 建物名 | 札幌第一パークハイツ | ||
|---|---|---|---|
| 所在地 | 北海道札幌市中央区南六条西 | ||
| 交通 | 札幌市電 東本願寺前駅 徒歩5分 地下鉄東西線 西11丁目駅 徒歩8分 地下鉄南北線 すすきの駅(市営) 徒歩8分 | ||
| 階数 | 地下1地上11階建 | 総戸数 | - |
| 築年月 | 1974年06月 / 築52年 | エレベーター | あり |
| 駐車場 | なし | バイク置き場 | - |
| 駐輪場 | あり | 管理人/管理会社 | - |
| 周辺環境 | その他 ファミリーマート 札幌南6条西9丁目店(コンビニ)まで80m その他 セブンイレブン 南5条店(コンビニ)まで100m その他 まいばすけっと 南5条西10丁目店(スーパー)まで80m その他 ツルハドラッグ 南6条店(その他)まで120m その他 Fitness24 南4石山通店(その他)まで421m その他 ディナーベルススキノ南7条店(スーパー)まで400m | ||
| 建物種別 | マンション | 建物構造 | SRC(鉄骨鉄筋コンクリート) |
この部屋の取扱い不動産会社
| 会社名 | (株)アパマン・プラザ(SUUMO経由) | ||
|---|---|---|---|
| 所在地 | 北海道札幌市中央区南九条西4-1-12 | 交通 | - |
| 営業時間 | 9:10~18:30 | 定休日 | 日曜日 |
| 免許番号 | 北海道知事石狩3992 | 取引態様 | 仲介 |
| 不動産会社管理番号 | 100491201498 | 当社管理番号 | 89 |
| 所属団体 | (公社)北海道宅地建物取引業協会会員 | ||
| 公正取引協議会 | (一社)北海道不動産公正取引協議会加盟 | ||
| 取扱い物件情報 | 物件詳細へ | ||
※各種情報と現状に差異がある場合は、現状優先となります。問い合わせをすることで、より詳しい条件、情報を確認する事ができます。
提供:(株)アパマン・プラザ(SUUMO経由)
この物件が気になったら掲載期限まであと11日
札幌第一パークハイツに条件(家賃・エリア)が近い物件一覧
| 写真 | 家賃 管理費等 | 敷金 礼金 | 間取り 専有面積 | 築年数 | 最寄り駅 所在地 | キープ | 詳細 |
|---|---|---|---|---|---|---|---|
アパート アメニティ長橋B棟(2LDK/2階) | |||||||
![]() | 5.3万円 2,000円 | なし なし | 2LDK 58.72m2 | 築18年 | JR函館本線 小樽駅 徒歩33分 JR函館本線 塩谷駅 徒歩72分 北海道小樽市長橋 | 詳細を見る | |
マンション アズールVI(1LDK/1階) | |||||||
![]() | 6.2万円 5,000円 | なし なし | 1LDK 31.92m2 | 築4年 | 地下鉄東西線 西18丁目駅 徒歩2分 札幌市電 西15丁目駅 徒歩5分 札幌市電 西線6条駅 徒歩10分 北海道札幌市中央区大通西 | 詳細を見る | |
アパート レオパレス向陽台B(1K/2階) | |||||||
![]() | 7.4万円 4,000円 | なし 14.8万円 | 1K 23.18m2 | 築17年 | 北海道千歳市里美1丁目 | 詳細を見る | |
マンション パークヒルズ円山(1LDK/8階) | |||||||
![]() | 5.5万円 5,000円 | 5.5万円 なし | 1LDK 34.9m2 | 築25年 | 札幌市東西線 西28丁目駅 徒歩4分 北海道札幌市中央区北六条西26丁目 | 詳細を見る | |
マンション ドエル札幌南6条2(1LDK/7階) | |||||||
![]() | 5.4万円 5,000円 | 5.4万円 なし | 1LDK 31.2m2 | 築26年 | 札幌市南北線 すすきの駅(市営) 徒歩9分 北海道札幌市中央区南六条西7丁目 | 詳細を見る | |
マンション アイル山鼻(1LDK/3階) | |||||||
![]() | 5.8万円 4,000円 | なし なし | 1LDK 36.91m2 | 築3年 | 札幌市電 西線14条駅 徒歩4分 札幌市電 西線11条駅 徒歩7分 地下鉄南北線 幌平橋駅 徒歩20分 北海道札幌市中央区南十三条西 | 詳細を見る | |
マンション EXCELLII(1DK/8階) | |||||||
![]() | 4.8万円 5,000円 | なし なし | 1DK 30.69m2 | 築38年 | 地下鉄東西線 バスセンター前駅 徒歩4分 地下鉄南北線 すすきの駅(市営) 徒歩7分 地下鉄東西線 大通駅 徒歩10分 北海道札幌市中央区南四条東 | 詳細を見る | |
マンション ブリス北円山(1LDK/3階) | |||||||
![]() | 6.3万円 4,000円 | 6.3万円 6.3万円 | 1LDK 34.11m2 | 新築 | 札幌市東西線 二十四軒駅 徒歩8分 北海道札幌市中央区北七条西23丁目 | 詳細を見る | |









