賃貸アパート
ベルメント袖ケ浜の賃貸物件情報(1K/1階)
| 家賃 | 管理費等 | 敷金 | 礼金 | 間取り | 専有面積 |
|---|---|---|---|---|---|
| 5.8万円 | 4,000円 | なし | 5.8万円 | 1K | 20.6m2 |
入居決定でお祝い金最大100,000円
- 保証金
- -
- 償却・敷引
- -
- 築年数
- 築8年
- 所在階
- 1階
- 向き
- 東
Point
当社管理のベルシード、ベルメントシリーズを含め、他社様の物件もお取り扱いしております。ご案内は現地待ち合わせとなります。当社管理物件は全てWEBにて申込が可能となります。お気軽にご相談ください。
提供:(株)ベルテックス(SUUMO経由)

詳細情報 ベルメント袖ケ浜
物件紹介
ベルメント袖ケ浜はJR東海道本線平塚駅から徒歩13分にあるアパートです。
建物のエントランスはオートロックがついており、インターホンにはTVモニタもついているため、相手の顔を確認してから来客対応することができます。
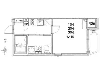
フローリングのお部屋なのでお掃除もラクラク。キッチンはシステムキッチン仕様になっていますので、お料理好きの方にもぴったり。バス・トイレは別なので、のんびりお風呂タイムも楽しめるでしょう。また、雨の日でも浴室乾燥機を使えば、お洗濯も問題ありません。
通信設備面では、インターネットが無料で使えるので、月々の出費を抑えられるのも魅力です(別途工事等が必要な場合あり)。
共用部には宅配ボックスが設定されているので、不在の時にも荷物を受け取ることができます。
建物のエントランスはオートロックがついており、インターホンにはTVモニタもついているため、相手の顔を確認してから来客対応することができます。
フローリングのお部屋なのでお掃除もラクラク。キッチンはシステムキッチン仕様になっていますので、お料理好きの方にもぴったり。バス・トイレは別なので、のんびりお風呂タイムも楽しめるでしょう。また、雨の日でも浴室乾燥機を使えば、お洗濯も問題ありません。
通信設備面では、インターネットが無料で使えるので、月々の出費を抑えられるのも魅力です(別途工事等が必要な場合あり)。
共用部には宅配ボックスが設定されているので、不在の時にも荷物を受け取ることができます。
お金・契約の情報
※「-」と表示されているものは、実際は料金が発生するものもございます。詳細はお問い合わせください。
| 家賃 | 5.8万円 | 管理費・共益費 | 4,000円 |
|---|---|---|---|
| 敷金 | なし | 礼金 | 5.8万円 |
| 入居決定でお祝い金最大100,000円 | |||
| 保証金 | - | 償却・敷引 | - |
| 住宅保険料 | - | 更新料 | - |
| 保証会社利用 | 必須 | 保証会社名 | - |
| 保証会社費用 | - | 保証会社備考 | 保証会社利用必 初回契約時:50%、[リロ:月1,000円][JRAG:1万円/年(月330円)] [カーサ:月1%][ジャックス:月額保証料1%]※外国籍の方は敷金1ヶ月追加となります。 |
| 契約形態 | - | 契約期間 | - |
| 入居・引渡期間 | - | 現況 | - |
| 契約備考 | 当社は総合不動産会社で、他社様が掲載されている物件も一括してご案内可能となりますのでお気軽にご相談ください。 合計4.95万円(内訳:鍵交換費用(必須)33000円/室内抗菌代(必須)16500円) ベルプラス(必須)2200円/月 1K 単身者可/子供不可/事務所利用不可/ルームシェア相談 普通借家2年 バストイレ別、バルコニー、エアコン、ガスコンロ対応、クロゼット、フローリング、TVインターホン、浴室乾燥機、オートロック、室内洗濯置、シューズボックス、システムキッチン、温水洗浄便座、脱衣所、洗面所独立、洗面化粧台、2口コンロ、駐輪場、宅配ボックス、敷金不要、保証人不要、二人入居相談、2沿線利用可、ネット使用料不要、24時間換気システム、ルームシェア相談、2駅利用可、敷地内ごみ置き場、当社管理物件、プロパンガス、礼金1ヶ月、IT重説対応物件、LGBTフレンドリー 入居日:'26年5月中旬 | ||
部屋の情報
| 間取り | 1K | 専有面積 | 20.6m2 |
|---|---|---|---|
| 所在階 / 向き | 1階 / 東 | バルコニー面積 | - |
| 水道 / ガス | - | ||
| 設備 | バス・トイレ別、オートロック、テレビドアホン、宅配ボックス、浴室乾燥機、インターネット対応、システムキッチン、エアコン、温水洗浄便座、バルコニー、フローリング、洗髪洗面化粧台、2口コンロ、コンロ:ガス、インターネット使用料無料、洗濯機:室内 | ||
| 当社物件ID | 28771029 | ||
建物の情報
| 建物名 | ベルメント袖ケ浜 | ||
|---|---|---|---|
| 所在地 | 神奈川県平塚市袖ケ浜 | ||
| 交通 | JR東海道本線 平塚駅 徒歩13分 湘南新宿ライン高海 平塚駅 徒歩16分 JR東海道本線 大磯駅 徒歩52分 | ||
| 階数 | 3階建 | 総戸数 | 12戸 |
| 築年月 | 2018年11月 / 築8年 | エレベーター | - |
| 駐車場 | なし | バイク置き場 | - |
| 駐輪場 | あり | 管理人/管理会社 | - |
| 周辺環境 | その他 すき家平塚松風店(その他)まで638m | ||
| 建物種別 | アパート | 建物構造 | 木造 |
この部屋の取扱い不動産会社
| 会社名 | (株)ベルテックス(SUUMO経由) | ||
|---|---|---|---|
| 所在地 | 東京都新宿区西新宿6-8-1 住友不動産新宿オークタワー9階 | 交通 | - |
| 営業時間 | 10:00~18:30 | 定休日 | 毎週水曜日 |
| 免許番号 | 国土交通大臣9910 | 取引態様 | 代理 |
| 不動産会社管理番号 | 100491493630 | 当社管理番号 | 89 |
| 所属団体 | (公社)東京都宅地建物取引業協会会員 | ||
| 公正取引協議会 | (公社)首都圏不動産公正取引協議会加盟 | ||
| 取扱い物件情報 | 物件詳細へ | ||
※各種情報と現状に差異がある場合は、現状優先となります。問い合わせをすることで、より詳しい条件、情報を確認する事ができます。
提供:(株)ベルテックス(SUUMO経由)
この物件が気になったら掲載期限まであと11日
ベルメント袖ケ浜に条件(家賃・エリア)が近い物件一覧
| 写真 | 家賃 管理費等 | 敷金 礼金 | 間取り 専有面積 | 築年数 | 最寄り駅 所在地 | キープ | 詳細 |
|---|---|---|---|---|---|---|---|
アパート ビレッジNOW(2DK/2階) | |||||||
![]() | 5万円 なし | なし なし | 2DK 38.71m2 | 築39年 | 神奈川県平塚市南原 | 詳細を見る | |
アパート レオパレスエスティー湘南B(1K/2階) | |||||||
![]() | 5.7万円 5,000円 | なし 5.7万円 | 1K 19.87m2 | 築25年 | 神奈川県茅ヶ崎市今宿茅ケ崎市今宿 | 詳細を見る | |
アパート レオパレスS・Tシャルマン(1K/2階) | |||||||
![]() | 4.6万円 5,000円 | なし なし | 1K 19.87m2 | 築28年 | 神奈川県厚木市妻田北 | 詳細を見る | |
アパート レオパレスラフィネII(1K/1階) | |||||||
![]() | 4.6万円 5,000円 | なし 4.6万円 | 1K 26.49m2 | 築19年 | 神奈川県厚木市下依知 | 詳細を見る | |
マンション ウィリアムヒルズ本厚木(2DK/6階) | |||||||
![]() | 5万円 5,000円 | なし なし | 2DK 40.6m2 | 築37年 | JR相模線 原当麻駅 徒歩45分 神奈川県厚木市山際 | 詳細を見る | |
アパート ファミール茅ヶ崎(1LDK/2階) | |||||||
![]() | 7.3万円 3,000円 | 7.3万円 7.3万円 | 1LDK 49.58m2 | 築18年 | JR相模線 北茅ケ崎駅 徒歩25分 神奈川県茅ヶ崎市浜之郷 | 詳細を見る | |
マンション レオパレスMIYAII(1K/1階) | |||||||
![]() | 4.8万円 5,000円 | なし なし | 1K 19.87m2 | 築17年 | 神奈川県厚木市長谷 | 詳細を見る | |
アパート ビラ山富士(1K/1階) | |||||||
![]() | 3.6万円 2,000円 | 3.6万円 3.6万円 | 1K 28.9m2 | 築33年 | 小田急小田原線 本厚木駅 徒歩75分 JR相模線 相武台下駅 徒歩75分 神奈川県厚木市下荻野 | 詳細を見る | |









