賃貸マンション
レジディア蒲田プレイスの賃貸物件情報(1DK/11階)
| 家賃 | 管理費等 | 敷金 | 礼金 | 間取り | 専有面積 |
|---|---|---|---|---|---|
| 13.2万円 | 1万円 | なし | 13.2万円 | 1DK | 25m2 |
入居決定でお祝い金最大100,000円
Point
【業界新システム】正直不動産公式副読本掲載の話題沸騰店舗☆
提供:神宮前不動産(株)公園前店(SUUMO経由)

詳細情報 レジディア蒲田プレイス
物件紹介
レジディア蒲田プレイスは東急池上線蓮沼駅から徒歩3分にあり、駅近で通勤通学に便利なマンションです。
このお部屋は2階以上に位置しているので、通行人や周囲の住人からの視線が気になりにくく、防犯面でも安心。建物のエントランスはオートロックがついており、インターホンにはTVモニタもついているため、相手の顔を確認してから来客対応することができます。
キッチンはシステムキッチン仕様になっていますので、お料理好きの方にもぴったり。バス・トイレは別なので、のんびりお風呂タイムも楽しめるでしょう。また、雨の日でも浴室乾燥機を使えば、お洗濯も問題ありません。
通信設備面では、インターネットが無料で使えるので、月々の出費を抑えられるのも魅力です(別途工事等が必要な場合あり)。
建物にはエレベーターがついているので、重い荷物があっても安心。共用部には宅配ボックスが設定されているので、不在の時にも荷物を受け取ることができます。
このお部屋は2階以上に位置しているので、通行人や周囲の住人からの視線が気になりにくく、防犯面でも安心。建物のエントランスはオートロックがついており、インターホンにはTVモニタもついているため、相手の顔を確認してから来客対応することができます。
キッチンはシステムキッチン仕様になっていますので、お料理好きの方にもぴったり。バス・トイレは別なので、のんびりお風呂タイムも楽しめるでしょう。また、雨の日でも浴室乾燥機を使えば、お洗濯も問題ありません。
通信設備面では、インターネットが無料で使えるので、月々の出費を抑えられるのも魅力です(別途工事等が必要な場合あり)。
建物にはエレベーターがついているので、重い荷物があっても安心。共用部には宅配ボックスが設定されているので、不在の時にも荷物を受け取ることができます。
お金・契約の情報
※「-」と表示されているものは、実際は料金が発生するものもございます。詳細はお問い合わせください。
| 家賃 | 13.2万円 | 管理費・共益費 | 1万円 |
|---|---|---|---|
| 敷金 | なし | 礼金 | 13.2万円 |
| 入居決定でお祝い金最大100,000円 | |||
| 保証金 | - | 償却・敷引 | - |
| 住宅保険料 | - | 更新料 | - |
| 保証会社利用 | 必須 | 保証会社名 | - |
| 保証会社費用 | - | 保証会社備考 | 保証会社利用必 初回契約時:40%、更新時:10 000円、月額:1 000円 |
| 契約形態 | - | 契約期間 | - |
| 入居・引渡期間 | 即時 | 現況 | - |
| 契約備考 | 【業界新システム】正直不動産公式副読本掲載の話題沸騰店舗☆ 合計3.85万円(内訳:鍵交換代3.85万円) 更新料 新賃料1.00ヶ月分 1DK 普通借家2年 損保【2.15万円2年】 バストイレ別、エアコン、TVインターホン、浴室乾燥機、オートロック、システムキッチン、温水洗浄便座、エレベーター、宅配ボックス、敷金不要、防犯カメラ、ネット使用料不要、保証金不要、築5年以内、年内入居可、礼金1ヶ月 | ||
部屋の情報
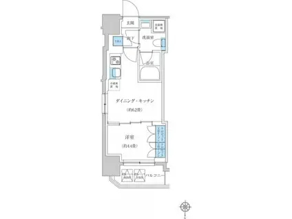
| 間取り | 1DK | 専有面積 | 25m2 |
|---|---|---|---|
| 所在階 / 向き | 11階 / 北 | バルコニー面積 | - |
| 水道 / ガス | - | ||
| 設備 | バス・トイレ別、2階以上、オートロック、テレビドアホン、宅配ボックス、浴室乾燥機、インターネット対応、システムキッチン、エアコン、エレベーター、温水洗浄便座、インターネット使用料無料 | ||
| 当社物件ID | 159766415 | ||
建物の情報
| 建物名 | レジディア蒲田プレイス | ||
|---|---|---|---|
| 所在地 | 東京都大田区西蒲田 | ||
| 交通 | 東急池上線 蓮沼駅 徒歩3分 JR京浜東北線 蒲田駅 徒歩8分 | ||
| 階数 | 14階建 | 総戸数 | 46戸 |
| 築年月 | 2021年05月 / 築5年 | エレベーター | あり |
| 駐車場 | なし | バイク置き場 | - |
| 駐輪場 | - | 管理人/管理会社 | - |
| 建物種別 | マンション | 建物構造 | RC(鉄筋コンクリート) |
この部屋の取扱い不動産会社
| 会社名 | 神宮前不動産(株)(SUUMO経由) | ||
|---|---|---|---|
| 所在地 | 東京都渋谷区神宮前6-19-15 高野第一ビル6階 | 交通 | - |
| 営業時間 | 10:00-19:00 | 定休日 | 水曜日 |
| 免許番号 | 東京都知事105473 | 取引態様 | 仲介 |
| 不動産会社管理番号 | 100475036865 | 当社管理番号 | 89 |
| 所属団体 | (公社)全日本不動産協会東京都本部会員 | ||
| 公正取引協議会 | (公社)首都圏不動産公正取引協議会加盟 | ||
| 取扱い物件情報 | 物件詳細へ | ||
※各種情報と現状に差異がある場合は、現状優先となります。問い合わせをすることで、より詳しい条件、情報を確認する事ができます。
提供:神宮前不動産(株)(SUUMO経由)
この物件が気になったら掲載期限まであと10日
レジディア蒲田プレイスに条件(家賃・エリア)が近い物件一覧
| 写真 | 家賃 管理費等 | 敷金 礼金 | 間取り 専有面積 | 築年数 | 最寄り駅 所在地 | キープ | 詳細 |
|---|---|---|---|---|---|---|---|
マンション 菊鮨ビル(1K/3階) | |||||||
![]() | 8.5万円 3,000円 | 8.5万円 なし | 1K 22m2 | 築42年 | 京浜東北・根岸線 蒲田駅 徒歩9分 京浜急行電鉄本線 京急蒲田駅 徒歩10分 東京都大田区蒲田1丁目 | 詳細を見る | |
一戸建て 東京地下鉄有楽町線 豊洲駅 徒歩12分 築51年(3DK) | |||||||
![]() | 13.8万円 なし | 13.8万円 13.8万円 | 3DK 64.71m2 | 築51年 | 東京地下鉄有楽町線 豊洲駅 徒歩12分 京葉線 潮見駅 徒歩20分 東京地下鉄東西線 木場駅 徒歩24分 東京都江東区枝川1丁目 | 詳細を見る | |
アパート タカマルハイム(1LDK/1階) | |||||||
![]() | 11.5万円 3,000円 | 11.5万円 11.5万円 | 1LDK 34m2 | 築11年 | 東急多摩川線 武蔵新田駅 徒歩8分 東急多摩川線 下丸子駅 徒歩9分 東京都大田区下丸子2丁目 | 詳細を見る | |
マンション CHART HOUSEふるはま公園(2LDK/1階) | |||||||
![]() | 17.6万円 4,000円 | 17.6万円 35.2万円 | 2LDK 52.5m2 | 築6年 | 京浜急行電鉄本線 大森町駅 徒歩14分 東京モノレール羽田 昭和島駅 徒歩16分 東京都大田区大森東3丁目 | 詳細を見る | |
マンション イプセ蒲田ウエスト(ワンルーム/5階) | |||||||
![]() | 9.6万円 6,000円 | 9.6万円 9.6万円 | ワンルーム 24.15m2 | 築19年 | 東急池上線 蓮沼駅 徒歩5分 JR京浜東北線 蒲田駅 徒歩10分 京急空港線 京急蒲田駅 徒歩21分 東京都大田区東矢口 | 詳細を見る | |
マンション コンフォリア・リヴ大森西(2LDK/4階) | |||||||
![]() | 19.5万円 1.8万円 | 19.5万円 なし | 2LDK 42.19m2 | 築1年 | 京急本線 大森町駅 徒歩11分 京急本線 梅屋敷駅(東京) 徒歩16分 京急本線 平和島駅 徒歩18分 東京都大田区大森西 | 詳細を見る | |







