賃貸マンション
パークハウスさいたま新都心 MIDTOWERの賃貸物件情報(3LDK/6階)
| 家賃 | 管理費等 | 敷金 | 礼金 | 間取り | 専有面積 |
|---|---|---|---|---|---|
| 24万円 | なし | 48万円 | 24万円 | 3LDK | 82.64m2 |
入居決定でお祝い金最大100,000円
- 保証金
- -
- 償却・敷引
- -
- 築年数
- 築21年
- 所在階
- 6階
- 向き
- 南東
Point
ピタットハウス与野店は賃貸仲介及び賃貸管理も行っております。ご来店頂いたお客様へはネット未公開のお部屋もご紹介しております!弊社掲載以外のお部屋もご紹介可能です!お部屋探しはピタットハウス与野店へ♪
提供:ピタットハウス与野店(株)彩企(SUUMO経由)

詳細情報 パークハウスさいたま新都心 MIDTOWER
物件紹介
パークハウスさいたま新都心 MIDTOWERはJR埼京線北与野駅から徒歩3分にあり、駅近で通勤通学に便利なマンションです。
このお部屋は2階以上に位置しているので、通行人や周囲の住人からの視線が気になりにくく、防犯面でも安心。建物のエントランスはオートロックがついており、インターホンにはTVモニタもついているため、相手の顔を確認してから来客対応することができます。
人気の南向き・フローリングのお部屋。室内にはウォークインクローゼットがありますので、たくさんの荷物も効率的に収納ができます。キッチンはシステムキッチン仕様になっていますので、お料理好きの方にもぴったり。バス・トイレは別なので、のんびりお風呂タイムも楽しめるでしょう。また、雨の日でも浴室乾燥機を使えば、お洗濯も問題ありません。
通信設備面では、インターネットが無料で使えるので、月々の出費を抑えられるのも魅力です。また、BSアンテナ・CSアンテナがありCATVにも対応しているので、おうち時間も充実するでしょう(別途工事、BS・CS・CATVの契約料等が必要な場合あり)。
床暖房があり、冬も足元から暖かく快適に過ごすことができます。建物にはエレベーターがついているので、重い荷物があっても安心。共用部には宅配ボックスが設定されているので、不在の時にも荷物を受け取ることができます。
このお部屋は2階以上に位置しているので、通行人や周囲の住人からの視線が気になりにくく、防犯面でも安心。建物のエントランスはオートロックがついており、インターホンにはTVモニタもついているため、相手の顔を確認してから来客対応することができます。
人気の南向き・フローリングのお部屋。室内にはウォークインクローゼットがありますので、たくさんの荷物も効率的に収納ができます。キッチンはシステムキッチン仕様になっていますので、お料理好きの方にもぴったり。バス・トイレは別なので、のんびりお風呂タイムも楽しめるでしょう。また、雨の日でも浴室乾燥機を使えば、お洗濯も問題ありません。
通信設備面では、インターネットが無料で使えるので、月々の出費を抑えられるのも魅力です。また、BSアンテナ・CSアンテナがありCATVにも対応しているので、おうち時間も充実するでしょう(別途工事、BS・CS・CATVの契約料等が必要な場合あり)。
床暖房があり、冬も足元から暖かく快適に過ごすことができます。建物にはエレベーターがついているので、重い荷物があっても安心。共用部には宅配ボックスが設定されているので、不在の時にも荷物を受け取ることができます。
お金・契約の情報
※「-」と表示されているものは、実際は料金が発生するものもございます。詳細はお問い合わせください。
| 家賃 | 24万円 | 管理費・共益費 | なし |
|---|---|---|---|
| 敷金 | 48万円 | 礼金 | 24万円 |
| 入居決定でお祝い金最大100,000円 | |||
| 保証金 | - | 償却・敷引 | - |
| 住宅保険料 | - | 更新料 | - |
| 保証会社利用 | 必須 | 保証会社名 | - |
| 保証会社費用 | - | 保証会社備考 | 保証会社利用必 その他 初回 月額総賃料の100% 月額2% |
| 契約形態 | 定期借家 | 契約期間 | 4年 |
| 入居・引渡期間 | - | 現況 | - |
| 契約備考 | 巡回管理/リロサポ 1500円/月 除菌施工料 19800円 駐車場登録料 11000円/台 退去時クリーニング費用は借主負担 6ヶ月未満で解約した場合、賃料0.5ヶ月分を申し受けます。 合計1.98万円(内訳:除菌施工料1.98万円) リロサポ1500円 3LDK 定期借家4年 損保【2.5万円2年】 バストイレ別、バルコニー、エアコン、クロゼット、フローリング、シャワー付洗面台、TVインターホン、浴室乾燥機、オートロック、室内洗濯置、シューズボックス、システムキッチン、追焚機能浴室、温水洗浄便座、脱衣所、エレベーター、洗面所独立、洗面化粧台、駐輪場、宅配ボックス、押入、CATV、外壁タイル張り、BS・CS、3口以上コンロ、防犯カメラ、IHクッキングヒーター、照明付、全居室収納、分譲賃貸、全居室洋室、ウォークインクロゼット、二人入居相談、オール電化、玄関ホール、LDK15畳以上、ネット使用料不要、浄水器、床暖房、食器洗乾燥機、眺望良好、トランクルーム、ディスポーザー、24時間換気システム、防犯ガラス、3沿線以上利用可、駅徒歩5分以内、駅徒歩10分以内、高層階、敷地内ごみ置き場、東南向き、洗面所にドア、室内物干機、シューズWIC、ダウンライト、保証会社利用可、通風良好 入居日:'26年5月中旬 | ||
部屋の情報
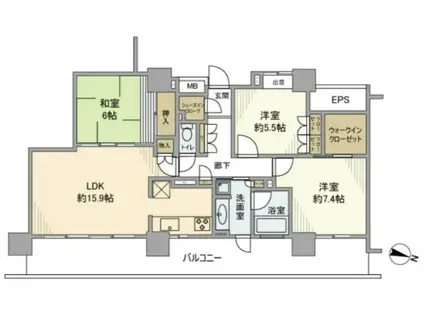
| 間取り | 3LDK | 専有面積 | 82.64m2 |
|---|---|---|---|
| 所在階 / 向き | 6階 / 南東 | バルコニー面積 | - |
| 水道 / ガス | - | ||
| 設備 | バス・トイレ別、2階以上、オートロック、テレビドアホン、宅配ボックス、浴室乾燥機、ウォークインクローゼット、追い焚き、インターネット対応、システムキッチン、エアコン、エレベーター、温水洗浄便座、南向き、バルコニー、フローリング、トランクルーム、洗髪洗面化粧台、オール電化、床暖房、2口コンロ、コンロ:IH、CATV、CSアンテナ、BSアンテナ、インターネット使用料無料、洗濯機:室内 | ||
| 当社物件ID | 159599937 | ||
建物の情報
| 建物名 | パークハウスさいたま新都心 MIDTOWER | ||
|---|---|---|---|
| 所在地 | 埼玉県さいたま市中央区 | ||
| 交通 | JR埼京線 北与野駅 徒歩3分 JR宇都宮線 さいたま新都心駅 徒歩6分 JR京浜東北線 さいたま新都心駅 徒歩6分 | ||
| 階数 | 地下1地上25階建 | 総戸数 | - |
| 築年月 | 2005年11月 / 築21年 | エレベーター | あり |
| 駐車場 | なし | バイク置き場 | - |
| 駐輪場 | あり | 管理人/管理会社 | - |
| 周辺環境 | その他 アコレ北与野駅北店(スーパー)まで173m その他 そごう大宮店(ショッピングセンター)まで1600m その他 私立淑徳与野高校(高校・高専)まで642m その他 さいたま赤十字病院(病院)まで452m その他 さいたま新都心公園(公園)まで1185m その他 さいたま市中央区役所(役所)まで1279m | ||
| 建物種別 | マンション | 建物構造 | RC(鉄筋コンクリート) |
この部屋の取扱い不動産会社
| 会社名 | ピタットハウス与野店(株)彩企(SUUMO経由) | ||
|---|---|---|---|
| 所在地 | 埼玉県さいたま市浦和区上木崎1-2-12 | 交通 | - |
| 営業時間 | 10:00-19:00 | 定休日 | 水曜日 |
| 免許番号 | 埼玉県知事23287 | 取引態様 | 仲介 |
| 不動産会社管理番号 | 100463544263 | 当社管理番号 | 89 |
| 所属団体 | (公社)埼玉県宅地建物取引業協会会員 | ||
| 公正取引協議会 | (公社)首都圏不動産公正取引協議会加盟 | ||
| 取扱い物件情報 | 物件詳細へ | ||
※各種情報と現状に差異がある場合は、現状優先となります。問い合わせをすることで、より詳しい条件、情報を確認する事ができます。
提供:ピタットハウス与野店(株)彩企(SUUMO経由)
この物件が気になったら掲載期限まであと11日
パークハウスさいたま新都心 MIDTOWERに条件(家賃・エリア)が近い物件一覧
| 写真 | 家賃 管理費等 | 敷金 礼金 | 間取り 専有面積 | 築年数 | 最寄り駅 所在地 | キープ | 詳細 |
|---|---|---|---|---|---|---|---|
マンション SUNSHINE RESIDENCE(2LDK/2階) | |||||||
![]() | 14.58万円 5,000円 | 14.58万円 14.58万円 | 2LDK 57.84m2 | 築1年 | JR埼京線 南与野駅 徒歩10分 JR埼京線 中浦和駅 徒歩17分 JR京浜東北線 北浦和駅 徒歩24分 埼玉県さいたま市中央区大戸 | 詳細を見る | |
マンション PJツリーネスト(2LDK/4階) | |||||||
![]() | 17万円 1.3万円 | 17万円 17万円 | 2LDK 64.36m2 | 築1年 | JR武蔵野線 南越谷駅 徒歩5分 東武伊勢崎線 新越谷駅 徒歩6分 埼玉県越谷市南越谷 | 詳細を見る | |
マンション ベルグレイス(2LDK/3階) | |||||||
![]() | 17.8万円 1万円 | なし 35.6万円 | 2LDK 72.17m2 | 築1年 | JR埼京線 戸田駅(埼玉) 徒歩15分 JR埼京線 北戸田駅 徒歩19分 JR埼京線 戸田公園駅 徒歩28分 埼玉県戸田市大字新曽 | 詳細を見る | |
マンション プレジオ川口ASIAN(1LDK/9階) | |||||||
![]() | 14.6万円 1.5万円 | なし 14.6万円 | 1LDK 39.29m2 | 新築 | JR京浜東北線 川口駅 徒歩13分 埼玉高速鉄道 川口元郷駅 徒歩14分 埼玉高速鉄道 南鳩ケ谷駅 徒歩30分 埼玉県川口市青木 | 詳細を見る | |
マンション HY HILLS川越(2SLDK/5階) | |||||||
![]() | 20万円 8,000円 | 20万円 20万円 | 2SLDK 83.22m2 | 築2年 | 東武東上線 川越駅 徒歩3分 JR川越線 川越駅 徒歩3分 西武新宿線 本川越駅 徒歩10分 埼玉県川越市脇田町 | 詳細を見る | |
一戸建て 東武鉄道東上線 鶴瀬駅 徒歩38分 築6年(4LDK) | |||||||
![]() | 17万円 なし | 17万円 17万円 | 4LDK 109.7m2 | 築6年 | 東武鉄道東上線 鶴瀬駅 徒歩38分 埼玉県富士見市大字上南畑 | 詳細を見る | |
マンション ティエリテ(2LDK/2階) | |||||||
![]() | 15.3万円 1.2万円 | なし 38.25万円 | 2LDK 65.43m2 | 築1年 | JR武蔵野線 越谷レイクタウン駅 徒歩13分 東武伊勢崎線 蒲生駅 徒歩33分 JR武蔵野線 南越谷駅 徒歩37分 埼玉県越谷市川柳町 | 詳細を見る | |
一戸建て 東武伊勢崎・大師線 大袋駅 徒歩22分 築5年(3LDK) | |||||||
![]() | 14.8万円 なし | 14.8万円 14.8万円 | 3LDK 69.44m2 | 築5年 | 東武伊勢崎・大師線 大袋駅 徒歩22分 埼玉県越谷市大字下間久里 | 詳細を見る | |









/105x80-f1-q70-wp1)