賃貸マンション
ミライズ横濱サウスレジデンスの賃貸物件情報(1DK/2階)
| 家賃 | 管理費等 | 敷金 | 礼金 | 間取り | 専有面積 |
|---|---|---|---|---|---|
| 11.4万円 | 1万円 | なし | 11.4万円 | 1DK | 27.13m2 |
入居決定でお祝い金最大100,000円
Point
【ご予約無しのご来店も歓迎♪お気軽にお問い合わせください♪】
提供:アパマンショップ二俣川店

詳細情報 ミライズ横濱サウスレジデンス
物件紹介
ミライズ横濱サウスレジデンスは京浜急行電鉄本線戸部駅から徒歩1分にあり、駅近で通勤通学に便利なマンションです。
このお部屋は2階以上に位置しているので、通行人や周囲の住人からの視線が気になりにくく、防犯面でも安心。建物のエントランスはオートロックがついており、インターホンにはTVモニタもついているため、相手の顔を確認してから来客対応することができます。
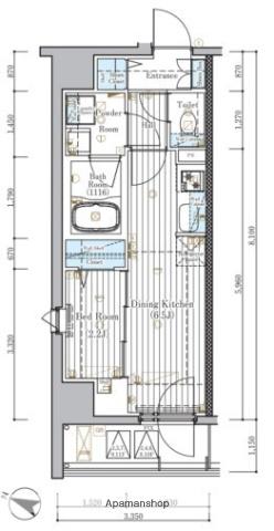
人気の南向き・フローリングのお部屋。角部屋でもあるため、周囲の居住者の生活音も気になりにくい場所です。キッチンはシステムキッチン仕様になっていますので、お料理好きの方にもぴったり。バス・トイレは別なので、のんびりお風呂タイムも楽しめるでしょう。また、雨の日でも浴室乾燥機を使えば、お洗濯も問題ありません。
通信設備面では、インターネットが無料で使えるので、月々の出費を抑えられるのも魅力です(別途工事等が必要な場合あり)。
建物にはエレベーターがついているので、重い荷物があっても安心。共用部には宅配ボックスが設定されているので、不在の時にも荷物を受け取ることができます。
このお部屋は2階以上に位置しているので、通行人や周囲の住人からの視線が気になりにくく、防犯面でも安心。建物のエントランスはオートロックがついており、インターホンにはTVモニタもついているため、相手の顔を確認してから来客対応することができます。
人気の南向き・フローリングのお部屋。角部屋でもあるため、周囲の居住者の生活音も気になりにくい場所です。キッチンはシステムキッチン仕様になっていますので、お料理好きの方にもぴったり。バス・トイレは別なので、のんびりお風呂タイムも楽しめるでしょう。また、雨の日でも浴室乾燥機を使えば、お洗濯も問題ありません。
通信設備面では、インターネットが無料で使えるので、月々の出費を抑えられるのも魅力です(別途工事等が必要な場合あり)。
建物にはエレベーターがついているので、重い荷物があっても安心。共用部には宅配ボックスが設定されているので、不在の時にも荷物を受け取ることができます。
お金・契約の情報
※「-」と表示されているものは、実際は料金が発生するものもございます。詳細はお問い合わせください。
| 家賃 | 11.4万円 | 管理費・共益費 | 1万円 |
|---|---|---|---|
| 敷金 | なし | 礼金 | 11.4万円 |
| 入居決定でお祝い金最大100,000円 | |||
| 保証金 | - | 償却・敷引 | - |
| 住宅保険料 | 2万円(2年) | 更新料 | - |
| 保証会社利用 | 必須 | 保証会社名 | - |
| 保証会社費用 | - | 保証会社備考 | 初回:50% |
| 契約形態 | - | 契約期間 | 2年 |
| 入居・引渡期間 | 2026年02月下旬 | 現況 | - |
| 入居可能条件 | 2人入居可 | ||
| 契約備考 | 短期解約違約金有:総賃料1ヶ月分 解約予告1ヶ月前 24時間駆け付けサポート 1100円/契約事務手数料 11000円、[退去時費用:ハウスクリーニング 63,800円 ※故意・過失等別途実費] | ||
部屋の情報
| 間取り | 1DK | 専有面積 | 27.13m2 |
|---|---|---|---|
| 所在階 / 向き | 2階 / - | バルコニー面積 | - |
| 水道 / ガス | ガス【都市】 | ||
| 設備 | バス・トイレ別、オートロック、テレビドアホン、宅配ボックス、浴室乾燥機、システムキッチン、エレベーター、温水洗浄便座、バルコニー、フローリング、インターネット使用料無料、洗濯機:室内 | ||
| 当社物件ID | 159949195 | ||
建物の情報
| 建物名 | ミライズ横濱サウスレジデンス | ||
|---|---|---|---|
| 所在地 | 神奈川県横浜市西区戸部本町 | ||
| 交通 | 京浜急行電鉄本線 戸部駅 徒歩1分 | ||
| 階数 | 11階建 | 総戸数 | - |
| 築年月 | 2026年01月 / 新築 | エレベーター | あり |
| 駐車場 | - | バイク置き場 | - |
| 駐輪場 | あり | 管理人/管理会社 | - |
| 周辺環境 | その他 ファミリーマート 徒歩1分(53m) その他 戸部警察署 徒歩1分(56m) その他 藍屋横浜戸部店 徒歩2分(90m) その他 ローソン戸部駅前店 徒歩2分(131m) その他 戸部本町郵便局 徒歩3分(204m) その他 まいばすけっと (戸部駅南店) 徒歩4分(304m) その他 ファミリーマート 徒歩5分(364m) その他 ファミリーマート 徒歩5分(341m) | ||
| 建物種別 | マンション | 建物構造 | RC(鉄筋コンクリート) |
この部屋の取扱い不動産会社
| 会社名 | アパマンショップ金沢文庫店 | ||
|---|---|---|---|
| 所在地 | 神奈川県横浜市金沢区谷津町 359ししくら2階 | 交通 | 京浜急行電鉄本線金沢文庫から徒歩3分 |
| 営業時間 | 10:00〜19:00 | 定休日 | 水曜日 |
| 免許番号 | 神奈川県知事(10)13668 | 取引態様 | 仲介 |
| 不動産会社管理番号 | 111332640 | 当社管理番号 | 4 |
| 所属団体 | (公社)神奈川県宅地建物取引業協会 | ||
| 公正取引協議会 | (公社) 首都圏不動産公正取引協議会加盟 | ||
| 取扱い物件情報 | 物件詳細へ | ||
※各種情報と現状に差異がある場合は、現状優先となります。問い合わせをすることで、より詳しい条件、情報を確認する事ができます。
提供:アパマンショップ金沢文庫店
この物件が気になったら掲載期限まであと6日
ミライズ横濱サウスレジデンスの空き部屋一覧
全部で42の空き部屋があります。
ミライズ横濱サウスレジデンスに条件(家賃・エリア)が近い物件一覧
| 写真 | 家賃 管理費等 | 敷金 礼金 | 間取り 専有面積 | 築年数 | 最寄り駅 所在地 | キープ | 詳細 |
|---|---|---|---|---|---|---|---|
アパート ガーデンハウス(ワンルーム/2階) | |||||||
![]() | 7.3万円 2,000円 | 7.3万円 なし | ワンルーム 27.32m2 | 築25年 | 湘南モノレール 富士見町駅(神奈川) 徒歩12分 JR京浜東北線 大船駅 徒歩15分 JR横須賀線 北鎌倉駅 徒歩15分 神奈川県鎌倉市小袋谷 | 詳細を見る | |
アパート セレーノ たまプラーザ(1K/2階) | |||||||
![]() | 8.2万円 3,000円 | なし なし | 1K 20.17m2 | 築1年 | 東急田園都市線 鷺沼駅 徒歩13分 東急田園都市線 たまプラーザ駅 徒歩14分 東急田園都市線 宮前平駅 徒歩28分 神奈川県川崎市宮前区犬蔵 | 詳細を見る | |
アパート COAST TERRACE桜山(1LDK/3階) | |||||||
![]() | 11万円 3,000円 | 11万円 11万円 | 1LDK 30.38m2 | 新築 | 京急逗子線 逗子・葉山駅 徒歩14分 JR横須賀線 逗子駅 徒歩20分 神奈川県逗子市桜山 | 詳細を見る | |
マンション スカイエフビーケー(2DK/4階) | |||||||
![]() | 9.1万円 3,000円 | 9.1万円 9.1万円 | 2DK 45.34m2 | 築39年 | JR南武線 矢向駅 徒歩17分 JR横須賀線 新川崎駅 徒歩18分 JR南武線 鹿島田駅 徒歩21分 神奈川県川崎市幸区小倉 | 詳細を見る | |
マンション プリオーレ鎌倉(1LDK/1階) | |||||||
![]() | 12.6万円 8,000円 | 12.6万円 18.9万円 | 1LDK 42.12m2 | 築2年 | JR東海道本線 大船駅 徒歩20分 JR根岸線 本郷台駅 徒歩38分 神奈川県鎌倉市大船 | 詳細を見る | |
テラスハウス 鎌倉市材木座5丁目計画(1LDK) | |||||||
![]() | 12.3万円 3,000円 | なし 18.45万円 | 1LDK 43.06m2 | 築1年 | 江ノ島電鉄 和田塚駅 徒歩10分 神奈川県鎌倉市材木座5丁目 | 詳細を見る | |
アパート シュガール戸部(1K/4階) | |||||||
![]() | 8.2万円 8,000円 | なし 8.2万円 | 1K 22.43m2 | 築11年 | 京浜急行電鉄本線 戸部駅 徒歩2分 相模鉄道本線 平沼橋駅 徒歩6分 神奈川県横浜市西区中央1丁目 | 詳細を見る | |
マンション GENOVIA二子新地(1K/2階) | |||||||
![]() | 12.3万円 1万円 | なし なし | 1K 25.35m2 | 築1年 | 東急田園都市線 二子新地駅 徒歩5分 東急田園都市線 高津駅(神奈川) 徒歩11分 神奈川県川崎市高津区瀬田 | 詳細を見る | |








