賃貸マンション
ルーブル池上伍番館の賃貸物件情報(1K/2階)
| 家賃 | 管理費等 | 敷金 | 礼金 | 間取り | 専有面積 |
|---|---|---|---|---|---|
| 8.1万円 | なし | なし | 8.1万円 | 1K | 20.25m2 |
入居決定でお祝い金最大100,000円
- 保証金
- -
- 償却・敷引
- -
- 築年数
- 築17年
- 所在階
- 2階
- 向き
- 西
Point
【非公開情報や類似物件も多数ご案内】オートロック設置・設備充実のお部屋★コンビニ・スーパーも近く生活環境良好★オンライン相談・現地待ち合わせでご案内可能/ネットやSNSに出ていないお部屋のご紹介可能!
提供:(株)KENTY不動産蒲田本店(SUUMO経由)

詳細情報 ルーブル池上伍番館
物件紹介
ルーブル池上伍番館は東急多摩川線矢口渡駅から徒歩8分にあり、駅近で通勤通学に便利なマンションです。
このお部屋は2階以上に位置しているので、通行人や周囲の住人からの視線が気になりにくく、防犯面でも安心。建物のエントランスはオートロックがついており、インターホンにはTVモニタもついているため、相手の顔を確認してから来客対応することができます。
人気の角部屋で周囲の居住者の生活音も気になりにくく、また、フローリングのお部屋なのでお掃除もラクラク。キッチンはシステムキッチン仕様になっていますので、お料理好きの方にもぴったり。バス・トイレは別なので、のんびりお風呂タイムも楽しめるでしょう。また、雨の日でも浴室乾燥機を使えば、お洗濯も問題ありません。
通信設備面では、インターネット接続が可能です。また、BSアンテナ・CSアンテナがありCATVにも対応しているので、おうち時間も充実するでしょう(別途工事、契約料が必要な場合あり)。
建物にはエレベーターがついているので、重い荷物があっても安心。共用部には宅配ボックスが設定されているので、不在の時にも荷物を受け取ることができます。
このお部屋は2階以上に位置しているので、通行人や周囲の住人からの視線が気になりにくく、防犯面でも安心。建物のエントランスはオートロックがついており、インターホンにはTVモニタもついているため、相手の顔を確認してから来客対応することができます。
人気の角部屋で周囲の居住者の生活音も気になりにくく、また、フローリングのお部屋なのでお掃除もラクラク。キッチンはシステムキッチン仕様になっていますので、お料理好きの方にもぴったり。バス・トイレは別なので、のんびりお風呂タイムも楽しめるでしょう。また、雨の日でも浴室乾燥機を使えば、お洗濯も問題ありません。
通信設備面では、インターネット接続が可能です。また、BSアンテナ・CSアンテナがありCATVにも対応しているので、おうち時間も充実するでしょう(別途工事、契約料が必要な場合あり)。
建物にはエレベーターがついているので、重い荷物があっても安心。共用部には宅配ボックスが設定されているので、不在の時にも荷物を受け取ることができます。
お金・契約の情報
※「-」と表示されているものは、実際は料金が発生するものもございます。詳細はお問い合わせください。
| 家賃 | 8.1万円 | 管理費・共益費 | なし |
|---|---|---|---|
| 敷金 | なし | 礼金 | 8.1万円 |
| 入居決定でお祝い金最大100,000円 | |||
| 保証金 | - | 償却・敷引 | - |
| 住宅保険料 | - | 更新料 | - |
| 保証会社利用 | 必須 | 保証会社名 | - |
| 保証会社費用 | - | 保証会社備考 | 保証会社利用必 初回保証料総賃料50%年ごと1.2万円、月次手数料440円 |
| 契約形態 | - | 契約期間 | - |
| 入居・引渡期間 | 相談 | 現況 | - |
| 契約備考 | 巡回管理/保証会社利用必須、退去時クリーニング費用49500円、エアコン清掃費用13200円、更新事務手数料11000円、仕様・図面・写真等に相違があった場合は現況を優先します 合計2.75万円(内訳:契約手数料0.55万円鍵交換代2.2万円) 更新料 新賃料1.00ヶ月分 24hサポート 月額1100円 1K 普通借家2年 損保【2万円2年】 バストイレ別、バルコニー、エアコン、ガスコンロ対応、クロゼット、フローリング、TVインターホン、浴室乾燥機、オートロック、室内洗濯置、システムキッチン、角住戸、温水洗浄便座、エレベーター、2口コンロ、宅配ボックス、2面採光、敷金不要、防犯カメラ、分譲賃貸、ディンプルキー、CS、24時間換気システム、3駅以上利用可、24時間ゴミ出し可、敷地内ごみ置き場、都市ガス、BS | ||
部屋の情報
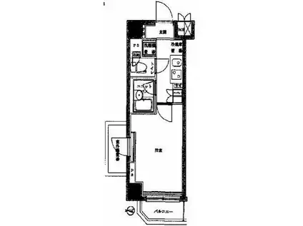
| 間取り | 1K | 専有面積 | 20.25m2 |
|---|---|---|---|
| 所在階 / 向き | 2階 / 西 | バルコニー面積 | - |
| 水道 / ガス | - | ||
| 設備 | バス・トイレ別、2階以上、オートロック、テレビドアホン、宅配ボックス、浴室乾燥機、システムキッチン、エアコン、エレベーター、温水洗浄便座、角部屋、バルコニー、フローリング、2口コンロ、コンロ:ガス、CSアンテナ、BSアンテナ、洗濯機:室内 | ||
| 当社物件ID | 1315565 | ||
建物の情報
| 建物名 | ルーブル池上伍番館 | ||
|---|---|---|---|
| 所在地 | 東京都大田区池上 | ||
| 交通 | 東急多摩川線 矢口渡駅 徒歩8分 東急池上線 池上駅 徒歩9分 東急多摩川線 武蔵新田駅 徒歩11分 | ||
| 階数 | 6階建 | 総戸数 | 54戸 |
| 築年月 | 2009年12月 / 築17年 | エレベーター | あり |
| 駐車場 | なし | バイク置き場 | - |
| 駐輪場 | - | 管理人/管理会社 | - |
| 周辺環境 | その他 ファミリーマート 大田池上徳持店(コンビニ)まで419m その他 島忠 ホームズ 大田千鳥店(ホームセンター)まで494m その他 Welpark(ウェルパーク) 東矢口店(ドラッグストア)まで550m その他 大田池上六郵便局(郵便局)まで500m その他 東急ストア 池上店(スーパー)まで801m その他 etomo(エトモ)池上(ショッピングセンター)まで801m | ||
| 建物種別 | マンション | 建物構造 | RC(鉄筋コンクリート) |
この部屋の取扱い不動産会社
| 会社名 | (株)クレアスレント横浜店(SUUMO経由) | ||
|---|---|---|---|
| 所在地 | 神奈川県横浜市神奈川区台町 17-1 マストビル7階 | 交通 | - |
| 営業時間 | 10時~19時 | 定休日 | 毎週水曜日・GW・夏季・年末年 |
| 免許番号 | 国土交通大臣10473 | 取引態様 | 仲介 |
| 不動産会社管理番号 | 100493254148 | 当社管理番号 | 89 |
| 所属団体 | (公社)東京都宅地建物取引業協会会員 | ||
| 公正取引協議会 | (公社)首都圏不動産公正取引協議会加盟 | ||
| 取扱い物件情報 | 物件詳細へ | ||
※各種情報と現状に差異がある場合は、現状優先となります。問い合わせをすることで、より詳しい条件、情報を確認する事ができます。
提供:(株)クレアスレント横浜店(SUUMO経由)
この物件が気になったら掲載期限まであと11日
ルーブル池上伍番館に条件(家賃・エリア)が近い物件一覧
| 写真 | 家賃 管理費等 | 敷金 礼金 | 間取り 専有面積 | 築年数 | 最寄り駅 所在地 | キープ | 詳細 |
|---|---|---|---|---|---|---|---|
マンション メゾンドボナール(1DK/2階) | |||||||
![]() | 11.8万円 3,000円 | 11.8万円 なし | 1DK 32.48m2 | 築29年 | 京浜東北・根岸線 蒲田駅 徒歩10分 京浜急行電鉄本線 京急蒲田駅 徒歩10分 東京都大田区蒲田3丁目 | 詳細を見る | |
マンション コープ野村亀戸 西棟(ワンルーム/3階) | |||||||
![]() | 7.4万円 6,000円 | なし なし | ワンルーム 31.95m2 | 築44年 | 東京メトロ半蔵門線 錦糸町駅 徒歩7分 JR総武線 亀戸駅 徒歩8分 東武亀戸線 亀戸駅 徒歩8分 東京都江東区亀戸 | 詳細を見る | |
アパート エステル木場(1K/2階) | |||||||
![]() | 9万円 3,000円 | 4.5万円 13.5万円 | 1K 21.94m2 | 築16年 | 東京メトロ東西線 木場駅 徒歩5分 東京メトロ東西線 東陽町駅 徒歩14分 東京メトロ東西線 門前仲町駅 徒歩17分 東京都江東区木場 | 詳細を見る | |
マンション クオリタス江東佐賀(1K/2階) | |||||||
![]() | 12万円 1万円 | なし 6万円 | 1K 25.53m2 | 築5年 | 東京メトロ半蔵門線 水天宮前駅 徒歩8分 東京メトロ東西線 門前仲町駅 徒歩11分 JR京葉線 越中島駅 徒歩18分 東京都江東区佐賀 | 詳細を見る | |
マンション カノーレ大森(ワンルーム/3階) | |||||||
![]() | 7.5万円 3,000円 | 7.5万円 7.5万円 | ワンルーム 17.58m2 | 築14年 | 京浜急行電鉄本線 梅屋敷駅(東京) 徒歩2分 京浜急行電鉄本線 京急蒲田駅 徒歩14分 東京都大田区大森中2丁目 | 詳細を見る | |
マンション 桜ヒルズ仲六郷(ワンルーム/1階) | |||||||
![]() | 6.2万円 4,000円 | 6.2万円 6.2万円 | ワンルーム 15.33m2 | 築5年 | 京急本線 六郷土手駅 徒歩1分 京急本線 雑色駅 徒歩17分 東京都大田区仲六郷 | 詳細を見る | |
マンション セレーヌ大塚(ワンルーム/3階) | |||||||
![]() | 5.7万円 3,000円 | 5.7万円 5.7万円 | ワンルーム 14.99m2 | 築40年 | 京浜急行電鉄本線 梅屋敷駅(東京) 徒歩9分 京浜急行電鉄本線 京急蒲田駅 徒歩13分 東京都大田区蒲田2丁目 | 詳細を見る | |
マンション グランディール(1K/2階) | |||||||
![]() | 8.7万円 5,000円 | 8.7万円 17.4万円 | 1K 24.42m2 | 築22年 | 京浜急行電鉄本線 大森町駅 徒歩5分 京浜急行電鉄本線 梅屋敷駅(東京) 徒歩9分 東京都大田区大森中1丁目 | 詳細を見る | |








