賃貸アパート
レオパレス武蔵野第3の賃貸物件情報(1K/2階)
| 家賃 | 管理費等 | 敷金 | 礼金 | 間取り | 専有面積 |
|---|---|---|---|---|---|
| 5.7万円 | 5,000円 | なし | 5.7万円 | 1K | 22.35m2 |
入居決定でお祝い金最大100,000円
Point
室内設備はエアコン・家具付などが揃っており、とても充実しています。ぜひご覧いただきたい賃貸物件です。
提供:ポラスの賃貸 Room'Spot武蔵浦和営業所(株)中央ビル管理(SUUMO経由)

詳細情報 レオパレス武蔵野第3
物件紹介
レオパレス武蔵野第3はJR武蔵野線西浦和駅から徒歩22分にあるアパートです。
このお部屋は2階以上に位置しているので、通行人や周囲の住人からの視線が気になりにくく、防犯面でも安心。インターホンにはTVモニタもついているため、相手の顔を確認してから来客対応することができます。
フローリングのお部屋なのでお掃除もラクラク。キッチンはシステムキッチン仕様になっていますので、お料理好きの方にもぴったり。バス・トイレは別なので、のんびりお風呂タイムも楽しめるでしょう。また、雨の日でも浴室乾燥機を使えば、お洗濯も問題ありません。
通信設備面では、インターネット接続が可能です。また、CSアンテナもありますので、おうち時間も充実するでしょう(別途工事、契約料が必要な場合あり)。
コンビニまで徒歩8分の場所にあり、日用品や食料品のお買い物にも便利です。
このお部屋は2階以上に位置しているので、通行人や周囲の住人からの視線が気になりにくく、防犯面でも安心。インターホンにはTVモニタもついているため、相手の顔を確認してから来客対応することができます。
フローリングのお部屋なのでお掃除もラクラク。キッチンはシステムキッチン仕様になっていますので、お料理好きの方にもぴったり。バス・トイレは別なので、のんびりお風呂タイムも楽しめるでしょう。また、雨の日でも浴室乾燥機を使えば、お洗濯も問題ありません。
通信設備面では、インターネット接続が可能です。また、CSアンテナもありますので、おうち時間も充実するでしょう(別途工事、契約料が必要な場合あり)。
コンビニまで徒歩8分の場所にあり、日用品や食料品のお買い物にも便利です。
お金・契約の情報
※「-」と表示されているものは、実際は料金が発生するものもございます。詳細はお問い合わせください。
| 家賃 | 5.7万円 | 管理費・共益費 | 5,000円 |
|---|---|---|---|
| 敷金 | なし | 礼金 | 5.7万円 |
| 入居決定でお祝い金最大100,000円 | |||
| 保証金 | - | 償却・敷引 | - |
| 住宅保険料 | 1円 | 更新料 | - |
| その他費用 | 抗菌施工(任意):2.376万円 | ||
| 保証会社利用 | 必須 | 保証会社名 | - |
| 保証会社費用 | - | 保証会社備考 | 保証料:74990円(契約内容により100〜120%で変動有)※記載金額は120%の場合 |
| 契約形態 | - | 契約期間 | - |
| 入居・引渡期間 | 即時 | 現況 | - |
| 契約備考 | 月額(環境維持費 550円) 鍵交換費用:16500 室内清掃費用:41800 その他設備/条件:室内洗濯機置き場 | ||
部屋の情報
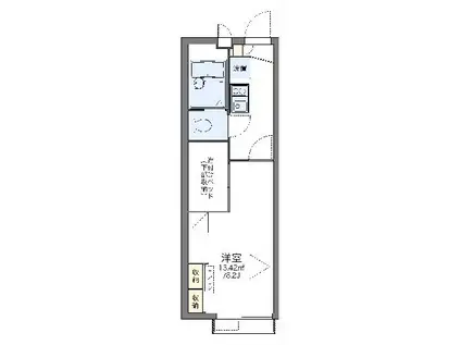
| 間取り | 1K | 専有面積 | 22.35m2 |
|---|---|---|---|
| 所在階 / 向き | 2階 / - | バルコニー面積 | - |
| 水道 / ガス | - | ||
| 設備 | バス・トイレ別、テレビドアホン、光ファイバー対応、エアコン、温水洗浄便座、コンロ:電気 | ||
| 当社物件ID | 7990348 | ||
建物の情報
| 建物名 | レオパレス武蔵野第3 | ||
|---|---|---|---|
| 所在地 | 埼玉県さいたま市南区内谷3丁目 | ||
| 交通 | 埼京線 武蔵浦和駅 バス乗車時間:11分 内谷バス停で下車 徒歩8分 | ||
| 階数 | 2階建 | 総戸数 | 14戸 |
| 築年月 | 2009年09月 / 築17年 | エレベーター | - |
| 駐車場 | なし | バイク置き場 | - |
| 駐輪場 | - | 管理人/管理会社 | - |
| 周辺環境 | コンビニ 徒歩8分(609m) 販売店 徒歩13分(1002m) その他 ドラッグストア その他 公園 その他 銀行 その他 * | ||
| 建物種別 | アパート | 建物構造 | 軽量鉄骨造 |
この部屋の取扱い不動産会社
| 会社名 | ハウスコム埼玉株式会社 大宮店 | ||
|---|---|---|---|
| 所在地 | 埼玉県さいたま市大宮区1-4TS-114ビル1階 | 交通 | - |
| 営業時間 | 10:00~18:00 | 定休日 | - |
| 免許番号 | 埼玉県知事(1)第24888号 | 取引態様 | 仲介 |
| 不動産会社管理番号 | HC5-4956051-203-0031 | 当社管理番号 | 468 |
| 所属団体 | 、 | ||
| 取扱い物件情報 | 物件詳細へ | ||
※各種情報と現状に差異がある場合は、現状優先となります。問い合わせをすることで、より詳しい条件、情報を確認する事ができます。
提供:ハウスコム埼玉株式会社 大宮店
この物件が気になったら掲載期限まであと4日
レオパレス武蔵野第3に条件(家賃・エリア)が近い物件一覧
| 写真 | 家賃 管理費等 | 敷金 礼金 | 間取り 専有面積 | 築年数 | 最寄り駅 所在地 | キープ | 詳細 |
|---|---|---|---|---|---|---|---|
アパート サウススターガーデン(1LDK/2階) | |||||||
![]() | 9.05万円 3,900円 | なし 9.05万円 | 1LDK 50.74m2 | 新築 | 西武新宿線 南大塚駅 徒歩23分 埼玉県川越市中台南 | 詳細を見る | |
アパート リッツ アグリス(1LDK/2階) | |||||||
![]() | 6.7万円 2,900円 | なし 6.7万円 | 1LDK 43.47m2 | 築10年 | 東武鉄道東上線 川越駅 徒歩27分 川越線 川越駅 徒歩28分 西武鉄道新宿線 南大塚駅 徒歩29分 埼玉県川越市豊田町1丁目 | 詳細を見る | |
アパート レスポワールⅠ(2LDK/2階) | |||||||
![]() | 8.1万円 7,000円 | なし 16.2万円 | 2LDK 59.5m2 | 築23年 | 川越線 的場駅 徒歩7分 川越線 笠幡駅 徒歩35分 西武鉄道新宿線 南大塚駅 徒歩50分 埼玉県川越市 | 詳細を見る | |
アパート ベルカーサ(1LDK/2階) | |||||||
![]() | 6.7万円 3,500円 | なし 6.7万円 | 1LDK 49.17m2 | 築14年 | 川越線 的場駅 徒歩16分 川越線 笠幡駅 徒歩26分 東武鉄道東上線 霞ケ関駅(埼玉) 徒歩32分 埼玉県川越市 | 詳細を見る | |
マンション シャトーサンワ(3DK/3階) | |||||||
![]() | 6.8万円 3,000円 | なし 6.8万円 | 3DK 54.23m2 | 築33年 | 西武鉄道新宿線 南大塚駅 徒歩1分 西武鉄道新宿線 新狭山駅 徒歩35分 川越線 西川越駅 徒歩64分 埼玉県川越市南台2丁目 | 詳細を見る | |
マンション THE GARLANDS(1K/1階) | |||||||
![]() | 7.2万円 5,000円 | なし なし | 1K 20.28m2 | 築1年 | 京浜東北・根岸線 西川口駅 徒歩7分 京浜東北・根岸線 川口駅 徒歩22分 京浜東北・根岸線 蕨駅 徒歩32分 埼玉県川口市西川口4丁目 | 詳細を見る | |
アパート レスポワールⅢ(2LDK/2階) | |||||||
![]() | 7.6万円 7,000円 | なし 7.6万円 | 2LDK 62.1m2 | 築23年 | 川越線 的場駅 徒歩7分 川越線 笠幡駅 徒歩35分 西武鉄道新宿線 南大塚駅 徒歩50分 埼玉県川越市 | 詳細を見る | |
アパート ドルチェテラス川越南大塚(1DK/1階) | |||||||
![]() | 6.2万円 3,000円 | なし 6.2万円 | 1DK 26.48m2 | 新築 | 西武鉄道新宿線 南大塚駅 徒歩4分 西武鉄道新宿線 新狭山駅 徒歩37分 東武鉄道東上線 川越駅 徒歩42分 埼玉県川越市 | 詳細を見る | |








