賃貸マンション
六本木デュープレックスエムズの賃貸物件情報(1LDK/2階)
| 家賃 | 管理費等 | 敷金 | 礼金 | 間取り | 専有面積 |
|---|---|---|---|---|---|
| 25.1万円 | 1.5万円 | 25.1万円 | なし | 1LDK | 43.94m2 |
入居決定でお祝い金最大100,000円
- 保証金
- -
- 償却・敷引
- -
- 築年数
- 築19年
- 所在階
- 2階
- 向き
- 南西
Point
オンライン内見・契約実施中!初期費用クレカ決済もご相談ください◎港区・渋谷区の不動産はピアホームにお任せください!
提供:NAVI HOME(株)恵比寿店(SUUMO経由)

詳細情報 六本木デュープレックスエムズ
物件紹介
六本木デュープレックスエムズは東京メトロ日比谷線六本木駅から徒歩6分にあり、駅近で通勤通学に便利なマンションです。
このお部屋は2階以上に位置しているので、通行人や周囲の住人からの視線が気になりにくく、防犯面でも安心。建物のエントランスはオートロックがついており、インターホンにはTVモニタもついているため、相手の顔を確認してから来客対応することができます。
人気の南向きのお部屋。また、フローリングなのでお掃除もラクラク。キッチンはシステムキッチン仕様になっていますので、お料理好きの方にもぴったり。バス・トイレは別なので、のんびりお風呂タイムも楽しめるでしょう。また、雨の日でも浴室乾燥機を使えば、お洗濯も問題ありません。
通信設備面では、インターネットが無料で使えるので、月々の出費を抑えられるのも魅力です。また、BSアンテナ・CSアンテナがありCATVにも対応しているので、おうち時間も充実するでしょう(別途工事、BS・CS・CATVの契約料等が必要な場合あり)。
建物にはエレベーターがついているので、重い荷物があっても安心。共用部には宅配ボックスが設定されているので、不在の時にも荷物を受け取ることができます。
このお部屋は2階以上に位置しているので、通行人や周囲の住人からの視線が気になりにくく、防犯面でも安心。建物のエントランスはオートロックがついており、インターホンにはTVモニタもついているため、相手の顔を確認してから来客対応することができます。
人気の南向きのお部屋。また、フローリングなのでお掃除もラクラク。キッチンはシステムキッチン仕様になっていますので、お料理好きの方にもぴったり。バス・トイレは別なので、のんびりお風呂タイムも楽しめるでしょう。また、雨の日でも浴室乾燥機を使えば、お洗濯も問題ありません。
通信設備面では、インターネットが無料で使えるので、月々の出費を抑えられるのも魅力です。また、BSアンテナ・CSアンテナがありCATVにも対応しているので、おうち時間も充実するでしょう(別途工事、BS・CS・CATVの契約料等が必要な場合あり)。
建物にはエレベーターがついているので、重い荷物があっても安心。共用部には宅配ボックスが設定されているので、不在の時にも荷物を受け取ることができます。
お金・契約の情報
※「-」と表示されているものは、実際は料金が発生するものもございます。詳細はお問い合わせください。
| 家賃 | 25.1万円 | 管理費・共益費 | 1.5万円 |
|---|---|---|---|
| 敷金 | 25.1万円 | 礼金 | なし |
| 入居決定でお祝い金最大100,000円 | |||
| 保証金 | - | 償却・敷引 | - |
| 住宅保険料 | - | 更新料 | - |
| 保証会社利用 | 必須 | 保証会社名 | - |
| 保証会社費用 | - | 保証会社備考 | 保証会社利用必 ◆エポス◆ 賃料総額の60%、月次保証料:賃料総額の1% 、更新料なし |
| 契約形態 | 定期借家 | 契約期間 | 2年 |
| 入居・引渡期間 | 即時 | 現況 | - |
| 入居可能条件 | 事務所可 | ||
| 契約備考 | 通勤管理/※定借2年(再契約相談可)※1年未満解約時違約金有(賃料・管理費の1ヶ月分)。※同タイプ・別階の内観写真を掲載している場合があります。図面と現況が異なる場合は現況を優先いたします。■違約金:契約開始日より1年未満の解約は家賃の2ヶ月分、1~2年未満家賃の1ヶ月分■FR違約金:2年未満FR相当分 合計4.62万円(内訳:鍵交換費:24200円Goodプレミアムα:12100円Goodプレミアムα登録料:2200円契約事務手数料:7700円) 退去時清掃費:60280円退去時エアコンエアコン清掃費:27500円/台SOHO利用時:敷金1ヵ月追加再契約料:251000円 1LDK 定期借家2年 損保【2.8万円2年】 バストイレ別、バルコニー、エアコン、クロゼット、フローリング、TVインターホン、浴室乾燥機、オートロック、室内洗濯置、陽当り良好、シューズボックス、システムキッチン、南向き、温水洗浄便座、エレベーター、駐輪場、宅配ボックス、光ファイバー、防犯カメラ、IHクッキングヒーター、保証人不要、オール電化、CS、ネット使用料不要、事務所相談、南面リビング、エレベーター2基、敷地内ごみ置き場、南西向き、シャワールーム、南面バルコニー、BS、リノベーション、初期費用カード決済可 | ||
部屋の情報
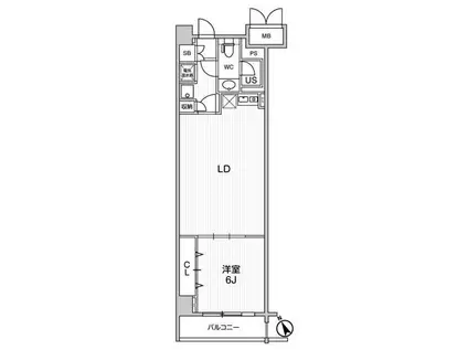
| 間取り | 1LDK | 専有面積 | 43.94m2 |
|---|---|---|---|
| 所在階 / 向き | 2階 / 南西 | バルコニー面積 | - |
| 水道 / ガス | - | ||
| 設備 | バス・トイレ別、2階以上、オートロック、テレビドアホン、宅配ボックス、浴室乾燥機、インターネット対応、システムキッチン、エアコン、エレベーター、温水洗浄便座、南向き、バルコニー、フローリング、オール電化、コンロ:IH、CSアンテナ、BSアンテナ、インターネット使用料無料、洗濯機:室内 | ||
| 当社物件ID | 7929580 | ||
建物の情報
| 建物名 | 六本木デュープレックスエムズ | ||
|---|---|---|---|
| 所在地 | 東京都港区六本木 | ||
| 交通 | 東京メトロ日比谷線 六本木駅 徒歩6分 都営大江戸線 麻布十番駅 徒歩9分 東京メトロ南北線 六本木一丁目駅 徒歩10分 | ||
| 階数 | 8階建 | 総戸数 | - |
| 築年月 | 2007年06月 / 築19年 | エレベーター | あり |
| 駐車場 | なし | バイク置き場 | - |
| 駐輪場 | あり | 管理人/管理会社 | - |
| 周辺環境 | その他 セブン-イレブン 代々木イースト店(コンビニ)まで3833m その他 miniピアゴ 代々木駅東口店(スーパー)まで3764m その他 JR東京総合病院(病院)まで4196m その他 麻布小学校(小学校)まで294m その他 六本木中学校(中学校)まで302m | ||
| 建物種別 | マンション | 建物構造 | RC(鉄筋コンクリート) |
この部屋の取扱い不動産会社
| 会社名 | ピアホーム広尾駅前店(株)PH.C(SUUMO経由) | ||
|---|---|---|---|
| 所在地 | 東京都港区南麻布5-15-11広尾セオハウス2階 | 交通 | - |
| 営業時間 | 9:00~18:30 | 定休日 | 無し |
| 免許番号 | 東京都知事106525 | 取引態様 | 仲介 |
| 不動産会社管理番号 | 100467243363 | 当社管理番号 | 89 |
| 所属団体 | (公社)東京都宅地建物取引業協会会員 | ||
| 公正取引協議会 | (公社)首都圏不動産公正取引協議会加盟 | ||
| 取扱い物件情報 | 物件詳細へ | ||
※各種情報と現状に差異がある場合は、現状優先となります。問い合わせをすることで、より詳しい条件、情報を確認する事ができます。
提供:ピアホーム広尾駅前店(株)PH.C(SUUMO経由)
この物件が気になったら掲載期限まであと10日
六本木デュープレックスエムズに条件(家賃・エリア)が近い物件一覧
| 写真 | 家賃 管理費等 | 敷金 礼金 | 間取り 専有面積 | 築年数 | 最寄り駅 所在地 | キープ | 詳細 |
|---|---|---|---|---|---|---|---|
マンション ラグゼナ東陽町(2LDK/6階) | |||||||
![]() | 23万円 1.5万円 | 23万円 23万円 | 2LDK 57.41m2 | 築4年 | 都営新宿線 住吉駅(東京) 徒歩14分 東京メトロ東西線 東陽町駅 徒歩18分 都営新宿線 西大島駅 徒歩19分 東京都江東区海辺 | 詳細を見る | |
マンション パークアクシス小伝馬町(ワンルーム/3階) | |||||||
![]() | 17.7万円 1.1万円 | 17.7万円 17.7万円 | ワンルーム 31.28m2 | 築10年 | 東京地下鉄日比谷線 小伝馬町駅 徒歩3分 総武本線 馬喰町駅 徒歩5分 山手線 秋葉原駅 徒歩11分 東京都千代田区岩本町1丁目 | 詳細を見る | |
一戸建て 東京地下鉄東西線 木場駅 徒歩7分 築10年(2LDK) | |||||||
![]() | 24万円 なし | 48万円 24万円 | 2LDK 70.43m2 | 築10年 | 東京地下鉄東西線 木場駅 徒歩7分 東京都大江戸線 門前仲町駅 徒歩17分 京葉線 越中島駅 徒歩19分 東京都江東区木場6丁目 | 詳細を見る | |
マンション クレストコート門前仲町(1DK/10階) | |||||||
![]() | 15.5万円 1.2万円 | 15.5万円 なし | 1DK 26.14m2 | 築1年 | 東京都大江戸線 門前仲町駅 徒歩7分 東京地下鉄東西線 門前仲町駅 徒歩7分 東京地下鉄日比谷線 茅場町駅 徒歩15分 東京都江東区永代1丁目 | 詳細を見る | |
マンション クレール日本橋(1LDK/12階) | |||||||
![]() | 24.5万円 なし | 24.5万円 24.5万円 | 1LDK 41.06m2 | 築9年 | 東京都新宿線 馬喰横山駅 徒歩2分 総武本線 馬喰町駅 徒歩2分 東京都中央区日本橋馬喰町1丁目 | 詳細を見る | |
マンション プライムアーバン日本橋浜町(1K/2階) | |||||||
![]() | 15.4万円 8,000円 | 15.4万円 なし | 1K 34.68m2 | 築21年 | 東京都新宿線 浜町駅 徒歩3分 東京地下鉄半蔵門線 水天宮前駅 徒歩6分 東京地下鉄日比谷線 人形町駅 徒歩8分 東京都中央区日本橋浜町2丁目 | 詳細を見る | |
マンション パークキューブ神田(1K/10階) | |||||||
![]() | 15.3万円 1万円 | 15.3万円 15.3万円 | 1K 30.7m2 | 築21年 | 東京都新宿線 岩本町駅 徒歩3分 中央本線 神田駅(東京) 徒歩3分 山手線 秋葉原駅 徒歩6分 東京都千代田区神田須田町2丁目 | 詳細を見る | |
マンション ARROWSAL SHINKAWA(1LDK/1階) | |||||||
![]() | 17万円 8,000円 | なし なし | 1LDK 37.44m2 | 築4年 | 東京地下鉄日比谷線 八丁堀駅(東京) 徒歩8分 東京地下鉄東西線 茅場町駅 徒歩11分 東京都大江戸線 月島駅 徒歩14分 東京都中央区新川2丁目 | 詳細を見る | |








