賃貸マンション
六本木デュープレックスエムズの賃貸物件情報(1LDK/2階)
| 家賃 | 管理費等 | 敷金 | 礼金 | 間取り | 専有面積 |
|---|---|---|---|---|---|
| 25.1万円 | 1.5万円 | 25.1万円 | なし | 1LDK | 43.94m2 |
入居決定でお祝い金最大100,000円
- 保証金
- -
- 償却・敷引
- -
- 築年数
- 築19年
- 所在階
- 2階
- 向き
- 南西
Point
徒歩10分圏内にはコンビニエンスストアやドラックストア、医療施設があり、充実した住環境となっております。内見可能な物件ですので、お気軽にお問い合わせください。
提供:(株)LOHOUSE三田店(SUUMO経由)

詳細情報 六本木デュープレックスエムズ
物件紹介
六本木デュープレックスエムズは東京メトロ日比谷線六本木駅から徒歩6分にあり、駅近で通勤通学に便利なマンションです。
このお部屋は2階以上に位置しているので、通行人や周囲の住人からの視線が気になりにくく、防犯面でも安心。建物のエントランスはオートロックがついており、インターホンにはTVモニタもついているため、相手の顔を確認してから来客対応することができます。
人気の南向きのお部屋。また、フローリングなのでお掃除もラクラク。キッチンはシステムキッチン仕様になっていますので、お料理好きの方にもぴったり。バス・トイレは別なので、のんびりお風呂タイムも楽しめるでしょう。また、雨の日でも浴室乾燥機を使えば、お洗濯も問題ありません。
通信設備面では、インターネット接続が可能です。また、BSアンテナ・CSアンテナもありますので、おうち時間も充実するでしょう(別途工事、契約料が必要な場合あり)。
建物にはエレベーターがついているので、重い荷物があっても安心。共用部には宅配ボックスが設定されているので、不在の時にも荷物を受け取ることができます。
このお部屋は2階以上に位置しているので、通行人や周囲の住人からの視線が気になりにくく、防犯面でも安心。建物のエントランスはオートロックがついており、インターホンにはTVモニタもついているため、相手の顔を確認してから来客対応することができます。
人気の南向きのお部屋。また、フローリングなのでお掃除もラクラク。キッチンはシステムキッチン仕様になっていますので、お料理好きの方にもぴったり。バス・トイレは別なので、のんびりお風呂タイムも楽しめるでしょう。また、雨の日でも浴室乾燥機を使えば、お洗濯も問題ありません。
通信設備面では、インターネット接続が可能です。また、BSアンテナ・CSアンテナもありますので、おうち時間も充実するでしょう(別途工事、契約料が必要な場合あり)。
建物にはエレベーターがついているので、重い荷物があっても安心。共用部には宅配ボックスが設定されているので、不在の時にも荷物を受け取ることができます。
お金・契約の情報
※「-」と表示されているものは、実際は料金が発生するものもございます。詳細はお問い合わせください。
| 家賃 | 25.1万円 | 管理費・共益費 | 1.5万円 |
|---|---|---|---|
| 敷金 | 25.1万円 | 礼金 | なし |
| 入居決定でお祝い金最大100,000円 | |||
| 保証金 | - | 償却・敷引 | - |
| 住宅保険料 | - | 更新料 | - |
| 保証会社利用 | 必須 | 保証会社名 | - |
| 保証会社費用 | - | 保証会社備考 | 保証会社利用必 貸主指定保証会社加入要 貸主指定保証会社加入要 |
| 契約形態 | 定期借家 | 契約期間 | 2年 |
| 入居・引渡期間 | 即時 | 現況 | - |
| 契約備考 | 通勤管理 合計3.63万円(内訳:Goodプレミアムα(24Hサポートのみ1.21万円鍵交換代2.42万円) 更新料 新賃料1.00ヶ月分 月額保証料 月額2660円 1LDK 定期借家2年 損保【2万円2年】 バストイレ別、バルコニー、エアコン、クロゼット、フローリング、TVインターホン、浴室乾燥機、オートロック、室内洗濯置、シューズボックス、システムキッチン、温水洗浄便座、脱衣所、エレベーター、洗面所独立、洗面化粧台、宅配ボックス、外壁タイル張り、即入居可、礼金不要、BS・CS、IHクッキングヒーター、敷金1ヶ月、オール電化、全居室フローリング、2沿線利用可、CS、ネット専用回線、24時間換気システム、耐火構造、2駅利用可、3駅以上利用可、駅徒歩10分以内、24時間ゴミ出し可、敷地内ごみ置き場、南西向き、都市ガス、洗面所にドア、BS | ||
部屋の情報
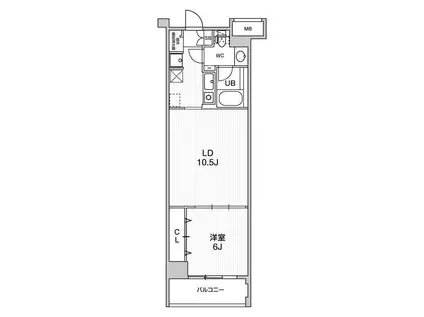
| 間取り | 1LDK | 専有面積 | 43.94m2 |
|---|---|---|---|
| 所在階 / 向き | 2階 / 南西 | バルコニー面積 | - |
| 水道 / ガス | - | ||
| 設備 | バス・トイレ別、2階以上、オートロック、テレビドアホン、宅配ボックス、浴室乾燥機、インターネット対応、システムキッチン、エアコン、エレベーター、温水洗浄便座、南向き、バルコニー、フローリング、洗髪洗面化粧台、オール電化、コンロ:IH、CSアンテナ、BSアンテナ、洗濯機:室内 | ||
| 当社物件ID | 29131421 | ||
建物の情報
| 建物名 | 六本木デュープレックスエムズ | ||
|---|---|---|---|
| 所在地 | 東京都港区六本木 | ||
| 交通 | 東京メトロ日比谷線 六本木駅 徒歩6分 東京メトロ南北線 六本木一丁目駅 徒歩12分 東京メトロ南北線 麻布十番駅 徒歩14分 | ||
| 階数 | 6階建 | 総戸数 | 75戸 |
| 築年月 | 2007年05月 / 築19年 | エレベーター | あり |
| 駐車場 | なし | バイク置き場 | - |
| 駐輪場 | - | 管理人/管理会社 | - |
| 周辺環境 | その他 まいばすけっと 東麻布2丁目店(スーパー)まで1067m その他 ジョイフル 赤坂南部坂店(宅配専門)(飲食店)まで1134m その他 まいばすけっと 東麻布1丁目店(スーパー)まで1189m その他 ファミリーマート 地下鉄六本木駅店(コンビニ)まで419m その他 ローソン メトロス六本木店(コンビニ)まで458m その他 なんでも酒やカクヤス 六本木SS(その他)まで862m | ||
| 建物種別 | マンション | 建物構造 | RC(鉄筋コンクリート) |
この部屋の取扱い不動産会社
| 会社名 | (株)LOHOUSE三田店(SUUMO経由) | ||
|---|---|---|---|
| 所在地 | 東京都港区三田3-1-19 第12シグマビルディング三田5階 | 交通 | - |
| 営業時間 | 10:00~18:30 | 定休日 | 水曜日 |
| 免許番号 | 東京都知事99461 | 取引態様 | 仲介 |
| 不動産会社管理番号 | 100485188134 | 当社管理番号 | 89 |
| 所属団体 | (公社)全日本不動産協会東京都本部会員 | ||
| 公正取引協議会 | (公社)首都圏不動産公正取引協議会加盟 | ||
| 取扱い物件情報 | 物件詳細へ | ||
※各種情報と現状に差異がある場合は、現状優先となります。問い合わせをすることで、より詳しい条件、情報を確認する事ができます。
提供:(株)LOHOUSE三田店(SUUMO経由)
この物件が気になったら掲載期限まであと10日
六本木デュープレックスエムズの空き部屋一覧
全部で23の空き部屋があります。
六本木デュープレックスエムズに条件(家賃・エリア)が近い物件一覧
| 写真 | 家賃 管理費等 | 敷金 礼金 | 間取り 専有面積 | 築年数 | 最寄り駅 所在地 | キープ | 詳細 |
|---|---|---|---|---|---|---|---|
一戸建て 東京地下鉄東西線 木場駅 徒歩7分 築10年(2LDK) | |||||||
![]() | 24万円 なし | 48万円 24万円 | 2LDK 70.43m2 | 築10年 | 東京地下鉄東西線 木場駅 徒歩7分 東京都大江戸線 門前仲町駅 徒歩17分 京葉線 越中島駅 徒歩19分 東京都江東区木場6丁目 | 詳細を見る | |
マンション 渡辺マンション(3SLDK/4階) | |||||||
![]() | 25万円 1万円 | 25万円 50万円 | 3SLDK 86.12m2 | 築48年 | 東急目黒線 西小山駅 徒歩6分 東急目黒線 洗足駅 徒歩11分 東京都品川区荏原7丁目 | 詳細を見る | |
マンション ROSY RESIDENCE SHIROKANE(1LDK/1階) | |||||||
![]() | 20万円 9,000円 | 20万円 40万円 | 1LDK 43.36m2 | 築7年 | 東京メトロ南北線 白金台駅 徒歩10分 東京メトロ日比谷線 広尾駅 徒歩14分 東京メトロ南北線 白金高輪駅 徒歩20分 東京都港区白金 | 詳細を見る | |
アパート 御殿山テラスⅡ(2LDK/1階) | |||||||
![]() | 22.5万円 3,000円 | 22.5万円 45万円 | 2LDK 57.6m2 | 築2年 | 山手線 大崎駅 徒歩8分 京浜急行電鉄本線 北品川駅 徒歩14分 東京都品川区北品川5丁目 | 詳細を見る | |
マンション パティオ秋葉原(ワンルーム/7階) | |||||||
![]() | 16万円 1万円 | 16万円 16万円 | ワンルーム 35.91m2 | 築19年 | 東京地下鉄日比谷線 秋葉原駅 徒歩3分 山手線 秋葉原駅 徒歩5分 東京都新宿線 岩本町駅 徒歩5分 東京都千代田区神田佐久間河岸 | 詳細を見る | |
マンション ミレアコート銀座プレミア(1LDK/12階) | |||||||
![]() | 35万円 2万円 | 35万円 なし | 1LDK 41.89m2 | 築8年 | 東京メトロ日比谷線 東銀座駅 徒歩1分 東京メトロ銀座線 銀座駅 徒歩4分 東京メトロ丸ノ内線 銀座駅 徒歩4分 東京都中央区銀座 | 詳細を見る | |
マンション AUGUSTA RESIDENCE大森(1SLDK/8階) | |||||||
![]() | 21.6万円 1万円 | なし なし | 1SLDK 40.88m2 | 築1年 | 京急本線 大森海岸駅 徒歩5分 JR京浜東北線 大森駅(東京) 徒歩11分 東京モノレール 大井競馬場前駅 徒歩21分 東京都品川区南大井 | 詳細を見る | |
マンション パークアクシス神保町(1DK/5階) | |||||||
![]() | 18万円 1万円 | 18万円 なし | 1DK 27.31m2 | 築2年 | 東京都新宿線 神保町駅 徒歩4分 総武・中央緩行線 水道橋駅 徒歩6分 東京地下鉄半蔵門線 九段下駅 徒歩9分 東京都千代田区神田神保町1丁目 | 詳細を見る | |









