賃貸マンション
パラシオン浜松町の賃貸物件情報(ワンルーム/2階)
| 家賃 | 管理費等 | 敷金 | 礼金 | 間取り | 専有面積 |
|---|---|---|---|---|---|
| 8万円 | なし | 8万円 | 8万円 | ワンルーム | 17.1m2 |
入居決定でお祝い金最大100,000円
- 保証金
- -
- 償却・敷引
- -
- 築年数
- 築47年
- 所在階
- 2階
- 向き
- -
Point
★ミニキッチン・IHコンロ★給湯器★ユニットバス★クッションフロア★エアコン★収納スペース★バルコニー★防犯カメラ★コインランドリー★敷地内ゴミ置場★詳細はお気軽にお問い合わせください!★
提供:(株)アクセス渋谷宮益坂店(SUUMO経由)

詳細情報 パラシオン浜松町
物件紹介
パラシオン浜松町は都営浅草線大門駅から徒歩4分にあり、駅近で通勤通学に便利なマンションです。
このお部屋は2階以上に位置しているので、通行人や周囲の住人からの視線が気になりにくく、防犯面でも安心です。
人気の角部屋。周囲の居住者の生活音も気になりにくい場所です。キッチンはシステムキッチン仕様になっていますので、お料理好きの方にもぴったり。
通信設備面では、インターネット接続が可能です。また、BSアンテナ・CSアンテナもありますので、おうち時間も充実するでしょう(別途工事、契約料が必要な場合あり)。
建物にはエレベーターがついているので、重い荷物があっても安心。
このお部屋は2階以上に位置しているので、通行人や周囲の住人からの視線が気になりにくく、防犯面でも安心です。
人気の角部屋。周囲の居住者の生活音も気になりにくい場所です。キッチンはシステムキッチン仕様になっていますので、お料理好きの方にもぴったり。
通信設備面では、インターネット接続が可能です。また、BSアンテナ・CSアンテナもありますので、おうち時間も充実するでしょう(別途工事、契約料が必要な場合あり)。
建物にはエレベーターがついているので、重い荷物があっても安心。
お金・契約の情報
※「-」と表示されているものは、実際は料金が発生するものもございます。詳細はお問い合わせください。
| 家賃 | 8万円 | 管理費・共益費 | なし |
|---|---|---|---|
| 敷金 | 8万円 | 礼金 | 8万円 |
| 入居決定でお祝い金最大100,000円 | |||
| 保証金 | - | 償却・敷引 | - |
| 住宅保険料 | - | 更新料 | - |
| 保証会社利用 | 必須 | 保証会社名 | - |
| 保証会社費用 | - | 保証会社備考 | 保証会社利用必 初回保証料:賃料等の50%・詳細はお問い合わせください |
| 契約形態 | - | 契約期間 | - |
| 入居・引渡期間 | 即時 | 現況 | - |
| 契約備考 | 巡回管理/※駐輪場がぼざいません ※室内洗濯機置場はございません 退去時クリーニング費用借主負担 合計3.52万円(内訳:ホームマイスター24/2年1.32万円鍵交換代2.2万円) ワンルーム 単身者限定 普通借家2年 損保【1.9万円2年】 バルコニー、エアコン、クロゼット、システムキッチン、温水洗浄便座、エレベーター、即入居可、防犯カメラ、IHクッキングヒーター、分譲賃貸、保証人不要、オール電化、2沿線利用可、2駅利用可、3駅以上利用可、駅徒歩10分以内、敷地内ごみ置き場 | ||
部屋の情報
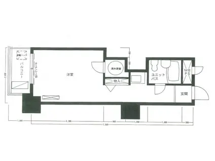
| 間取り | ワンルーム | 専有面積 | 17.1m2 |
|---|---|---|---|
| 所在階 / 向き | 2階 / - | バルコニー面積 | - |
| 水道 / ガス | - | ||
| 設備 | 2階以上、システムキッチン、エアコン、エレベーター、温水洗浄便座、バルコニー、オール電化、コンロ:IH | ||
| 当社物件ID | 160476143 | ||
建物の情報
| 建物名 | パラシオン浜松町 | ||
|---|---|---|---|
| 所在地 | 東京都港区浜松町 | ||
| 交通 | 都営三田線 御成門駅 徒歩6分 都営大江戸線 大門駅(東京) 徒歩7分 都営大江戸線 汐留駅 徒歩8分 | ||
| 階数 | 11階建 | 総戸数 | - |
| 築年月 | 1980年01月 / 築47年 | エレベーター | あり |
| 駐車場 | なし | バイク置き場 | - |
| 駐輪場 | - | 管理人/管理会社 | - |
| 周辺環境 | その他 マルエツ プチ 浜松町一丁目店(スーパー)まで192m その他 ファミリーマート 新橋五丁目店(コンビニ)まで341m その他 トモズ 浜松町店(ドラッグストア)まで377m | ||
| 建物種別 | マンション | 建物構造 | SRC(鉄骨鉄筋コンクリート) |
この部屋の取扱い不動産会社
| 会社名 | そらうみリアルエステート(株)本店(SUUMO経由) | ||
|---|---|---|---|
| 所在地 | 東京都港区麻布十番2-20-14 麻布十番ハウス104 | 交通 | - |
| 営業時間 | 午前9時30分~午後9時30分 | 定休日 | 無休 |
| 免許番号 | 東京都知事94395 | 取引態様 | 仲介 |
| 不動産会社管理番号 | 100490764845 | 当社管理番号 | 89 |
| 所属団体 | (公社)東京都宅地建物取引業協会会員 | ||
| 公正取引協議会 | (公社)首都圏不動産公正取引協議会加盟 | ||
| 取扱い物件情報 | 物件詳細へ | ||
※各種情報と現状に差異がある場合は、現状優先となります。問い合わせをすることで、より詳しい条件、情報を確認する事ができます。
提供:そらうみリアルエステート(株)本店(SUUMO経由)
この物件が気になったら掲載期限まであと10日
パラシオン浜松町に条件(家賃・エリア)が近い物件一覧
| 写真 | 家賃 管理費等 | 敷金 礼金 | 間取り 専有面積 | 築年数 | 最寄り駅 所在地 | キープ | 詳細 |
|---|---|---|---|---|---|---|---|
マンション プライムステイ築地(ワンルーム/9階) | |||||||
![]() | 8.2万円 7,000円 | 8.2万円 8.2万円 | ワンルーム 16.92m2 | 築40年 | 東京地下鉄日比谷線 築地駅 徒歩3分 東京地下鉄有楽町線 新富町駅(東京) 徒歩6分 東京都大江戸線 築地市場駅 徒歩9分 東京都中央区築地3丁目 | 詳細を見る | |
マンション ドルチェ月島・弐番館(1K/10階) | |||||||
![]() | 12.8万円 1.1万円 | なし 12.8万円 | 1K 22.7m2 | 築23年 | 都営大江戸線 勝どき駅 徒歩4分 東京メトロ有楽町線 月島駅 徒歩6分 東京メトロ日比谷線 築地駅 徒歩20分 東京都中央区月島 | 詳細を見る | |
マンション ドルチェ京橋壱番館(1K/3階) | |||||||
![]() | 12.4万円 1.1万円 | なし 12.4万円 | 1K 21.22m2 | 築22年 | 都営浅草線 宝町駅 徒歩2分 東京メトロ日比谷線 八丁堀駅(東京) 徒歩6分 JR山手線 東京駅 徒歩13分 東京都中央区八丁堀 | 詳細を見る | |
マンション ユリカロゼAZ亀戸II(1K/7階) | |||||||
![]() | 11.2万円 1.5万円 | なし 11.2万円 | 1K 26.32m2 | 築1年 | 東武鉄道亀戸線 亀戸水神駅 徒歩3分 総武・中央緩行線 亀戸駅 徒歩10分 東武鉄道亀戸線 東あずま駅 徒歩11分 東京都江東区亀戸4丁目 | 詳細を見る | |
マンション プレール・ドゥーク木場親水公園(1K/2階) | |||||||
![]() | 10.9万円 1.1万円 | なし 10.9万円 | 1K 21.87m2 | 築20年 | 東京地下鉄東西線 木場駅 徒歩8分 東京都江東区木場3丁目 | 詳細を見る | |
マンション メゾン大沢(1DK/5階) | |||||||
![]() | 8.5万円 なし | 8.5万円 8.5万円 | 1DK 28m2 | 築47年 | 東京地下鉄東西線 門前仲町駅 徒歩11分 東京地下鉄東西線 木場駅 徒歩11分 東京地下鉄半蔵門線 清澄白河駅 徒歩14分 東京都江東区冬木 | 詳細を見る | |






