賃貸マンション
潮見が丘コーポラスの賃貸物件情報(3LDK/2階)
| 家賃 | 管理費等 | 敷金 | 礼金 | 間取り | 専有面積 |
|---|---|---|---|---|---|
| 4.9万円 | 6,000円 | なし | 5.5万円 | 3LDK | 74.75m2 |
入居決定でお祝い金最大100,000円
- 保証金
- -
- 償却・敷引
- -
- 築年数
- 築54年
- 所在階
- 2階
- 向き
- 南西
Point
ご来店者様全員に、クオカード2000円プレゼント!※1グループ1名様、期限3月31日まで。
提供:(株)プラン・ドゥ・シー兵庫店(SUUMO経由)

詳細情報 潮見が丘コーポラス
物件紹介
潮見が丘コーポラスは山陽電鉄本線山陽垂水駅から徒歩30分にあるマンションです。
このお部屋は2階以上に位置しているので、通行人や周囲の住人からの視線が気になりにくく、防犯面でも安心。インターホンにはTVモニタもついているため、相手の顔を確認してから来客対応することができます。
おしゃれなデザイナーズ物件!人気の南向き・フローリングのお部屋。角部屋でもあるため、周囲の居住者の生活音も気になりにくい場所です。キッチンはシステムキッチン仕様になっていますので、お料理好きの方にもぴったり。バス・トイレは別なので、のんびりお風呂タイムも楽しめるでしょう。また、雨の日でも浴室乾燥機を使えば、お洗濯も問題ありません。
通信設備面では、インターネット接続が可能です。また、BSアンテナ・CSアンテナがありCATVにも対応しているので、おうち時間も充実するでしょう(別途工事、契約料が必要な場合あり)。
このお部屋は2階以上に位置しているので、通行人や周囲の住人からの視線が気になりにくく、防犯面でも安心。インターホンにはTVモニタもついているため、相手の顔を確認してから来客対応することができます。
おしゃれなデザイナーズ物件!人気の南向き・フローリングのお部屋。角部屋でもあるため、周囲の居住者の生活音も気になりにくい場所です。キッチンはシステムキッチン仕様になっていますので、お料理好きの方にもぴったり。バス・トイレは別なので、のんびりお風呂タイムも楽しめるでしょう。また、雨の日でも浴室乾燥機を使えば、お洗濯も問題ありません。
通信設備面では、インターネット接続が可能です。また、BSアンテナ・CSアンテナがありCATVにも対応しているので、おうち時間も充実するでしょう(別途工事、契約料が必要な場合あり)。
お金・契約の情報
※「-」と表示されているものは、実際は料金が発生するものもございます。詳細はお問い合わせください。
| 家賃 | 4.9万円 | 管理費・共益費 | 6,000円 |
|---|---|---|---|
| 敷金 | なし | 礼金 | 5.5万円 |
| 入居決定でお祝い金最大100,000円 | |||
| 保証金 | - | 償却・敷引 | - |
| 住宅保険料 | - | 更新料 | - |
| 保証会社利用 | 必須 | 保証会社名 | - |
| 保証会社費用 | - | 保証会社備考 | 保証会社利用必 保証会社必須加入 |
| 契約形態 | - | 契約期間 | - |
| 入居・引渡期間 | - | 現況 | - |
| 契約備考 | 短期解約違約金有り(1年以内)初期費用、入居審査の不安など、その他お困りごと是非SumoSumoにご相談下さい★女性スタッフ対応も可能☆ 合計2.2万円(内訳:鍵交換代2.2万円) 更新料 15000円 口座振替手数料 月額400円 3LDK 二人入居可/子供可 普通借家2年 損保【3.3万円1年】 バストイレ別、ガスコンロ対応、クロゼット、フローリング、シャワー付洗面台、TVインターホン、室内洗濯置、陽当り良好、シューズボックス、システムキッチン、角住戸、温水洗浄便座、脱衣所、洗面所独立、洗面化粧台、駐輪場、押入、敷金不要、3口以上コンロ、照明付、分譲賃貸、二人入居相談、バイク置場、ディンプルキー、内装リフォーム済、食器洗乾燥機、眺望良好、外壁コンクリート、クロゼット2ヶ所、耐火構造、南西向き、LDK12畳以上、和室、全居室6畳以上、都市ガス、洗面所にドア、玄関収納、IT重説対応物件、初期費用カード決済可、通風良好 入居日:'26年1月中旬 | ||
部屋の情報
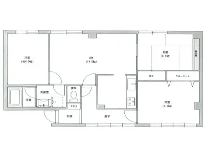
| 間取り | 3LDK | 専有面積 | 74.75m2 |
|---|---|---|---|
| 所在階 / 向き | 2階 / 南西 | バルコニー面積 | - |
| 水道 / ガス | - | ||
| 設備 | バス・トイレ別、2階以上、テレビドアホン、システムキッチン、温水洗浄便座、南向き、角部屋、フローリング、洗髪洗面化粧台、2口コンロ、コンロ:ガス、洗濯機:室内 | ||
| 当社物件ID | 524881 | ||
建物の情報
| 建物名 | 潮見が丘コーポラス | ||
|---|---|---|---|
| 所在地 | 兵庫県神戸市垂水区潮見が丘 | ||
| 交通 | 山陽電鉄本線 山陽垂水駅 徒歩34分 JR山陽本線 垂水駅 徒歩34分 山陽電鉄本線 東垂水駅 徒歩36分 | ||
| 階数 | 6階建 | 総戸数 | 1戸 |
| 築年月 | 1972年05月 / 築54年 | エレベーター | - |
| 駐車場 | 近隣 100m10000円 | バイク置き場 | あり |
| 駐輪場 | あり | 管理人/管理会社 | - |
| 周辺環境 | その他 MaxValu(マックスバリュ) 星陵台店(スーパー)まで506m その他 生活協同組合コープこうべ コープ新多聞(スーパー)まで1211m その他 セブンイレブン 神戸高丸インター店(コンビニ)まで252m その他 ファミリーマート 千鳥が丘店(コンビニ)まで591m その他 ファミリーマート 神戸垂水星陵台店(コンビニ)まで616m その他 スギ薬局 東垂水店(ドラッグストア)まで1658m | ||
| 建物種別 | マンション | 建物構造 | RC(鉄筋コンクリート) |
この部屋の取扱い不動産会社
| 会社名 | (株)プラン・ドゥ・シー兵庫店(SUUMO経由) | ||
|---|---|---|---|
| 所在地 | 兵庫県神戸市兵庫区塚本通7-2-19 ロイヤルメゾン兵庫駅前通り1階 | 交通 | - |
| 営業時間 | 10:00~19:00 | 定休日 | - |
| 免許番号 | 国土交通大臣9550 | 取引態様 | 仲介 |
| 不動産会社管理番号 | 100479491650 | 当社管理番号 | 89 |
| 所属団体 | (公社)全日本不動産協会兵庫県本部会員 | ||
| 公正取引協議会 | (公社)近畿地区不動産公正取引協議会加盟 | ||
| 取扱い物件情報 | 物件詳細へ | ||
※各種情報と現状に差異がある場合は、現状優先となります。問い合わせをすることで、より詳しい条件、情報を確認する事ができます。
提供:(株)プラン・ドゥ・シー兵庫店(SUUMO経由)
この物件が気になったら掲載期限まであと10日
潮見が丘コーポラスに条件(家賃・エリア)が近い物件一覧
| 写真 | 家賃 管理費等 | 敷金 礼金 | 間取り 専有面積 | 築年数 | 最寄り駅 所在地 | キープ | 詳細 |
|---|---|---|---|---|---|---|---|
アパート ビラージュ・ブリエⅠ(1LDK/1階) | |||||||
![]() | 5.65万円 2,300円 | なし 5.65万円 | 1LDK 45.12m2 | 築15年 | 兵庫県加古郡稲美町国岡 | 詳細を見る | |
マンション ビレッジハウス志染(3DK/2階) | |||||||
![]() | 5.87万円 なし | なし なし | 3DK 54.38m2 | 築46年 | 神戸電鉄粟生線 志染駅 徒歩19分 神戸電鉄粟生線 恵比須駅 徒歩29分 神戸電鉄粟生線 広野ゴルフ場前駅 徒歩29分 兵庫県三木市志染町西自由が丘2丁目 | 詳細を見る | |
アパート カーサドマーニ(ワンルーム/2階) | |||||||
![]() | 6.8万円 3,500円 | なし 15万円 | ワンルーム 31.18m2 | 築9年 | 山陽電気鉄道本線 東二見駅 徒歩8分 山陽電気鉄道本線 西二見駅 徒歩19分 兵庫県明石市二見町西二見 | 詳細を見る | |
アパート カーサレジオSUN棟(3LDK/2階) | |||||||
![]() | 7.2万円 4,000円 | 2万円 なし | 3LDK 63.7m2 | 築13年 | 神戸電鉄粟生線 大村駅(兵庫) 徒歩5分 神戸電鉄粟生線 三木駅(神戸電鉄) 徒歩20分 兵庫県三木市平田 | 詳細を見る | |
一戸建て 神戸電鉄粟生線 三木駅(神戸電鉄) 徒歩6分 築48年(3LDK) | |||||||
![]() | 6.8万円 5,000円 | なし 13.6万円 | 3LDK 100m2 | 築48年 | 神戸電鉄粟生線 三木駅(神戸電鉄) 徒歩6分 神戸電鉄粟生線 三木上の丸駅 徒歩11分 神戸電鉄粟生線 恵比須駅 徒歩23分 兵庫県三木市本町3 | 詳細を見る | |
アパート サニーハイツ青山B棟(1LDK/3階) | |||||||
![]() | 7.2万円 5,000円 | なし 14.4万円 | 1LDK 40.68m2 | 築14年 | 兵庫県三木市志染町青山5 | 詳細を見る | |
アパート 兵庫県神戸市垂水区 築1年(1LDK/1階) | |||||||
![]() | 6.7万円 5,000円 | なし 6.7万円 | 1LDK 37.22m2 | 築1年 | 兵庫県神戸市垂水区名谷町 | 詳細を見る | |
アパート シャン・ド・フルールⅠ(2DK/1階) | |||||||
![]() | 5.7万円 2,200円 | なし なし | 2DK 46.22m2 | 築20年 | 兵庫県加古郡稲美町国岡2 | 詳細を見る | |








