賃貸マンション
大神宮下RESIDENCEの賃貸物件情報(1K/5階)
| 家賃 | 管理費等 | 敷金 | 礼金 | 間取り | 専有面積 |
|---|---|---|---|---|---|
| 7.1万円 | 1万円 | 7.1万円 | なし | 1K | 22.94m2 |
入居決定でお祝い金最大100,000円
- 保証金
- -
- 償却・敷引
- -
- 築年数
- 新築(築1年)
- 所在階
- 5階
- 向き
- 北西
Point
セキュリティ面は、オートロック・TVインターホンなど充実しているので安心して生活できます。
提供:(株)LIKEホーム西船橋店(SUUMO経由)

詳細情報 大神宮下RESIDENCE
物件紹介
大神宮下RESIDENCEは京成電鉄本線大神宮下駅から徒歩2分にあり、駅近で通勤通学に便利なマンションです。
このお部屋は2階以上に位置しているので、通行人や周囲の住人からの視線が気になりにくく、防犯面でも安心。建物のエントランスはオートロックがついており、インターホンにはTVモニタもついているため、相手の顔を確認してから来客対応することができます。
フローリングのお部屋なのでお掃除もラクラク。キッチンはシステムキッチン仕様になっていますので、お料理好きの方にもぴったり。バス・トイレは別なので、のんびりお風呂タイムも楽しめるでしょう。また、雨の日でも浴室乾燥機を使えば、お洗濯も問題ありません。
通信設備面では、インターネット接続が可能です。また、BSアンテナ・CSアンテナもありますので、おうち時間も充実するでしょう(別途工事、契約料が必要な場合あり)。
建物にはエレベーターがついているので、重い荷物があっても安心。共用部には宅配ボックスが設定されているので、不在の時にも荷物を受け取ることができます。
このお部屋は2階以上に位置しているので、通行人や周囲の住人からの視線が気になりにくく、防犯面でも安心。建物のエントランスはオートロックがついており、インターホンにはTVモニタもついているため、相手の顔を確認してから来客対応することができます。
フローリングのお部屋なのでお掃除もラクラク。キッチンはシステムキッチン仕様になっていますので、お料理好きの方にもぴったり。バス・トイレは別なので、のんびりお風呂タイムも楽しめるでしょう。また、雨の日でも浴室乾燥機を使えば、お洗濯も問題ありません。
通信設備面では、インターネット接続が可能です。また、BSアンテナ・CSアンテナもありますので、おうち時間も充実するでしょう(別途工事、契約料が必要な場合あり)。
建物にはエレベーターがついているので、重い荷物があっても安心。共用部には宅配ボックスが設定されているので、不在の時にも荷物を受け取ることができます。
お金・契約の情報
※「-」と表示されているものは、実際は料金が発生するものもございます。詳細はお問い合わせください。
| 家賃 | 7.1万円 | 管理費・共益費 | 1万円 |
|---|---|---|---|
| 敷金 | 7.1万円 | 礼金 | なし |
| 入居決定でお祝い金最大100,000円 | |||
| 保証金 | - | 償却・敷引 | - |
| 住宅保険料 | 1円 | 更新料 | - |
| 保証会社利用 | 必須 | 保証会社名 | - |
| 保証会社費用 | - | 保証会社備考 | 初回30% |
| 契約形態 | - | 契約期間 | 2年 |
| 入居・引渡期間 | 2026年01月 | 現況 | - |
| 入居可能条件 | ペット不可 | ||
| 契約備考 | 短期違約金有(1年未満解約時、賃料の1ヶ月) 退去時清掃費用30平米未満:55000円(税込) その他設備/条件:室内洗濯機置き場、独立洗面台、クローゼット、シューズボックス | ||
部屋の情報
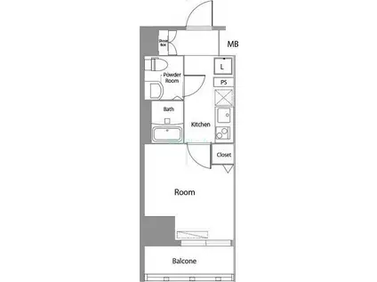
| 間取り | 1K | 専有面積 | 22.94m2 |
|---|---|---|---|
| 所在階 / 向き | 5階 / 北西 | バルコニー面積 | - |
| 水道 / ガス | ガス【都市】 | ||
| 設備 | バス・トイレ別、オートロック、テレビドアホン、宅配ボックス、浴室乾燥機、システムキッチン、エアコン、エレベーター、温水洗浄便座、バルコニー、フローリング、2口コンロ、コンロ:ガス、CSアンテナ、BSアンテナ、シャワー | ||
| 当社物件ID | 160232477 | ||
建物の情報
| 建物名 | 大神宮下RESIDENCE | ||
|---|---|---|---|
| 所在地 | 千葉県船橋市宮本4丁目 | ||
| 交通 | 京成電鉄本線 大神宮下駅 徒歩2分 総武・中央緩行線 船橋駅 徒歩19分 | ||
| 階数 | 9階建 | 総戸数 | - |
| 築年月 | 2025年12月 / 新築(築1年) | エレベーター | あり |
| 駐車場 | なし | バイク置き場 | - |
| 駐輪場 | あり | 管理人/管理会社 | - |
| 周辺環境 | 中学校 船橋市立宮本中学校 徒歩16分(1233m) 小学校 船橋市立宮本小学校 徒歩9分(643m) その他 ドラッグストア その他 公園 その他 銀行 その他 * | ||
| 建物種別 | マンション | 建物構造 | RC(鉄筋コンクリート) |
この部屋の取扱い不動産会社
| 会社名 | ハウスコム千葉株式会社 北習志野店 | ||
|---|---|---|---|
| 所在地 | 千葉県船橋市5-161階 | 交通 | - |
| 営業時間 | 10:00~18:00 | 定休日 | 水曜定休 |
| 免許番号 | 千葉県知事(1)第18235号 | 取引態様 | 仲介 |
| 不動産会社管理番号 | HC2-5337012-506-0150 | 当社管理番号 | 468 |
| 所属団体 | 、 | ||
| 取扱い物件情報 | 物件詳細へ | ||
※各種情報と現状に差異がある場合は、現状優先となります。問い合わせをすることで、より詳しい条件、情報を確認する事ができます。
提供:ハウスコム千葉株式会社 北習志野店
この物件が気になったら掲載期限まであと4日
大神宮下RESIDENCEの空き部屋一覧
全部で59の空き部屋があります。
大神宮下RESIDENCEに条件(家賃・エリア)が近い物件一覧
| 写真 | 家賃 管理費等 | 敷金 礼金 | 間取り 専有面積 | 築年数 | 最寄り駅 所在地 | キープ | 詳細 |
|---|---|---|---|---|---|---|---|
マンション テラスレジデンス津田沼(ワンルーム/3階) | |||||||
![]() | 5.3万円 5,000円 | なし なし | ワンルーム 17.04m2 | 築35年 | 京成電鉄松戸線 前原駅 徒歩11分 千葉県船橋市前原東2丁目 | 詳細を見る | |
マンション キチーム津田沼(1K/7階) | |||||||
![]() | 8.3万円 8,500円 | 8.3万円 8.3万円 | 1K 29.4m2 | 築25年 | 京成松戸線 新津田沼駅 徒歩7分 JR総武線快速 津田沼駅 徒歩10分 JR総武線 津田沼駅 徒歩10分 千葉県船橋市前原東 | 詳細を見る | |
アパート ベルメント船橋(1K/2階) | |||||||
![]() | 6.5万円 1.5万円 | なし 6.5万円 | 1K 20.28m2 | 築7年 | 総武・中央緩行線 船橋駅 徒歩8分 京成電鉄本線 大神宮下駅 徒歩16分 千葉県船橋市本町5丁目 | 詳細を見る | |
マンション レオパレス晃栄(1K/3階) | |||||||
![]() | 4.5万円 5,000円 | なし 4.5万円 | 1K 20.81m2 | 築19年 | 京成電鉄本線 八千代台駅 徒歩8分 千葉県八千代市八千代台西4丁目 | 詳細を見る | |
マンション ボア・クレールB(3K/3階) | |||||||
![]() | 9.5万円 6,000円 | なし 10万円 | 3K 56.16m2 | 築32年 | 京成本線 谷津駅 徒歩8分 JR総武線快速 津田沼駅 徒歩18分 京成本線 船橋競馬場駅 徒歩20分 千葉県習志野市谷津 | 詳細を見る | |
マンション SKビル拾六番館(1K/3階) | |||||||
![]() | 7.6万円 4,000円 | なし なし | 1K 32.93m2 | 新築 | 京成松戸線 鎌ケ谷大仏駅 徒歩18分 北総線 西白井駅 徒歩33分 北総線 白井駅 徒歩47分 千葉県白井市冨士 | 詳細を見る | |
アパート ディアコート勝田台(1K/2階) | |||||||
![]() | 6万円 3,000円 | なし なし | 1K 26.96m2 | 築20年 | 京成本線 勝田台駅 徒歩3分 東葉高速鉄道 東葉勝田台駅 徒歩3分 東葉高速鉄道 村上駅(千葉) 徒歩21分 千葉県八千代市勝田台 | 詳細を見る | |

/105x80-f1-q70-wp1)


/105x80-f1-q70-wp1)


