賃貸マンション
コンフォリア・リヴ大崎の賃貸物件情報(1K/5階)
| 家賃 | 管理費等 | 敷金 | 礼金 | 間取り | 専有面積 |
|---|---|---|---|---|---|
| 14.8万円 | 1万円 | 14.8万円 | なし | 1K | 25.14m2 |
入居決定でお祝い金最大100,000円
Point
まずはお問い合わせ!
不動産会社は街のプロ、あなたに合った物件がきっと見つかります。
提供:東急リバブル(株)大井町センター(SUUMO経由)

詳細情報 コンフォリア・リヴ大崎
物件紹介
コンフォリア・リヴ大崎はJR山手線大崎駅から徒歩10分にあり、駅近で通勤通学に便利なマンションです。
このお部屋は2階以上に位置しているので、通行人や周囲の住人からの視線が気になりにくく、防犯面でも安心。建物のエントランスはオートロックがついており、インターホンにはTVモニタもついているため、相手の顔を確認してから来客対応することができます。
フローリングのお部屋なのでお掃除もラクラク。室内には人気のウォークインクローゼットがありますので、たくさんの荷物も効率的に収納ができます。キッチンはシステムキッチン仕様になっていますので、お料理好きの方にもぴったり。バス・トイレは別なので、のんびりお風呂タイムも楽しめるでしょう。また、雨の日でも浴室乾燥機を使えば、お洗濯も問題ありません。
通信設備面では、インターネットが無料で使えるので、月々の出費を抑えられるのも魅力です。また、BSアンテナ・CSアンテナもありますので、おうち時間も充実するでしょう(別途工事、BS・CSの契約料等が必要な場合あり)。
建物にはエレベーターがついているので、重い荷物があっても安心。共用部には宅配ボックスが設定されているので、不在の時にも荷物を受け取ることができます。また、ペット飼育の相談ができますので、あなたの大切な家族の一員も快適に暮らせるか、ぜひ確認してみてください。
このお部屋は2階以上に位置しているので、通行人や周囲の住人からの視線が気になりにくく、防犯面でも安心。建物のエントランスはオートロックがついており、インターホンにはTVモニタもついているため、相手の顔を確認してから来客対応することができます。
フローリングのお部屋なのでお掃除もラクラク。室内には人気のウォークインクローゼットがありますので、たくさんの荷物も効率的に収納ができます。キッチンはシステムキッチン仕様になっていますので、お料理好きの方にもぴったり。バス・トイレは別なので、のんびりお風呂タイムも楽しめるでしょう。また、雨の日でも浴室乾燥機を使えば、お洗濯も問題ありません。
通信設備面では、インターネットが無料で使えるので、月々の出費を抑えられるのも魅力です。また、BSアンテナ・CSアンテナもありますので、おうち時間も充実するでしょう(別途工事、BS・CSの契約料等が必要な場合あり)。
建物にはエレベーターがついているので、重い荷物があっても安心。共用部には宅配ボックスが設定されているので、不在の時にも荷物を受け取ることができます。また、ペット飼育の相談ができますので、あなたの大切な家族の一員も快適に暮らせるか、ぜひ確認してみてください。
お金・契約の情報
※「-」と表示されているものは、実際は料金が発生するものもございます。詳細はお問い合わせください。
| 家賃 | 14.8万円 | 管理費・共益費 | 1万円 |
|---|---|---|---|
| 敷金 | 14.8万円 | 礼金 | なし |
| 入居決定でお祝い金最大100,000円 | |||
| 保証金 | - | 償却・敷引 | - |
| 住宅保険料 | 1円 | 更新料 | - |
| 保証会社利用 | 必須 | 保証会社名 | エポスカード |
| 保証会社費用 | - | 保証会社備考 | 保証料:賃料等の50%(最低2万)、月額保証料:賃料等の1%(更新料無) |
| 契約形態 | - | 契約期間 | 2年 |
| 入居・引渡期間 | 2026年04月上旬 | 現況 | 未完成 |
| 入居可能条件 | ペット可 | ||
| 契約備考 | 清掃費:38500円(退去時請求).エアコン清掃費:11000円(退去時請求) その他設備/条件:室内洗濯機置き場、ごみ出し24時間OK、防犯カメラ、シューズボックス | ||
部屋の情報
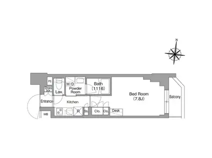
| 間取り | 1K | 専有面積 | 25.14m2 |
|---|---|---|---|
| 間取り詳細 | 洋室(7.8帖) | ||
| 所在階 / 向き | 5階 / 東 | バルコニー面積 | - |
| 水道 / ガス | - | ||
| 設備 | バス・トイレ別、オートロック、テレビドアホン、宅配ボックス、浴室乾燥機、エアコン、エレベーター、温水洗浄便座、トランクルーム、CSアンテナ、BSアンテナ、インターネット使用料無料 | ||
| 当社物件ID | 160489492 | ||
建物の情報
| 建物名 | コンフォリア・リヴ大崎 | ||
|---|---|---|---|
| 所在地 | 東京都品川区西品川2丁目 | ||
| 交通 | 山手線 大崎駅 徒歩10分 東京都浅草線 戸越駅 徒歩13分 | ||
| 階数 | 6階建 | 総戸数 | 35戸 |
| 築年月 | 2026年03月 / 新築 | エレベーター | あり |
| 駐車場 | なし | バイク置き場 | あり |
| 駐輪場 | あり | 管理人/管理会社 | - |
| 周辺環境 | その他 ドラッグストア その他 公園 その他 銀行 その他 * | ||
| 建物種別 | マンション | 建物構造 | RC(鉄筋コンクリート) |
この部屋の取扱い不動産会社
| 会社名 | ハウスコム西東京株式会社 大森店 | ||
|---|---|---|---|
| 所在地 | 東京都大田区2-41階 | 交通 | - |
| 営業時間 | 10:00~18:00 | 定休日 | 水曜定休 |
| 免許番号 | 東京都知事(1)第108225号 | 取引態様 | 仲介 |
| 不動産会社管理番号 | HC5-5402348-503-0220 | 当社管理番号 | 468 |
| 所属団体 | 、 | ||
| 取扱い物件情報 | 物件詳細へ | ||
※各種情報と現状に差異がある場合は、現状優先となります。問い合わせをすることで、より詳しい条件、情報を確認する事ができます。
提供:ハウスコム西東京株式会社 大森店
この物件が気になったら掲載期限まであと4日
コンフォリア・リヴ大崎に条件(家賃・エリア)が近い物件一覧
| 写真 | 家賃 管理費等 | 敷金 礼金 | 間取り 専有面積 | 築年数 | 最寄り駅 所在地 | キープ | 詳細 |
|---|---|---|---|---|---|---|---|
マンション グランズ亀戸(1LDK/10階) | |||||||
![]() | 17万円 5,000円 | 17万円 17万円 | 1LDK 45.21m2 | 築30年 | JR総武線 亀戸駅 徒歩4分 JR総武線 錦糸町駅 徒歩14分 東京都江東区亀戸 | 詳細を見る | |
マンション ACP RESIDENCE 亀戸(2K/7階) | |||||||
![]() | 12.6万円 1.5万円 | なし なし | 2K 25.35m2 | 築2年 | 東武亀戸線 亀戸水神駅 徒歩5分 JR総武線 亀戸駅 徒歩9分 東武亀戸線 小村井駅 徒歩20分 東京都江東区亀戸 | 詳細を見る | |
マンション プレール・ドゥーク大島(2LDK/2階) | |||||||
![]() | 23.3万円 1.1万円 | なし 23.3万円 | 2LDK 53.96m2 | 築2年 | 都営新宿線 東大島駅 徒歩6分 都営新宿線 大島駅(東京) 徒歩8分 都営新宿線 西大島駅 徒歩18分 東京都江東区大島 | 詳細を見る | |
アパート SEED SAVE PETIRASU BREEZE(1LDK/1階) | |||||||
![]() | 10.4万円 1万円 | 20.8万円 10.4万円 | 1LDK 32.95m2 | 築1年 | 東京モノレール羽田 昭和島駅 徒歩12分 京浜急行電鉄本線 大森町駅 徒歩18分 東京都大田区大森東5丁目 | 詳細を見る | |
マンション 京浜急行電鉄本線 梅屋敷駅(東京) 徒歩4分 築36年(3LDK/2階) | |||||||
![]() | 23万円 7,000円 | 23万円 23万円 | 3LDK 84.68m2 | 築36年 | 京浜急行電鉄本線 梅屋敷駅(東京) 徒歩4分 京浜急行電鉄本線 大森町駅 徒歩12分 東京都大田区大森西6丁目 | 詳細を見る | |
マンション エミグランド仲池上(1LDK/3階) | |||||||
![]() | 10.8万円 5,000円 | 10.8万円 21.6万円 | 1LDK 36.55m2 | 築39年 | 都営浅草線 西馬込駅 徒歩18分 東急池上線 御嶽山駅 徒歩18分 東急池上線 久が原駅 徒歩20分 東京都大田区仲池上 | 詳細を見る | |
マンション メゾンドボナール(1DK/4階) | |||||||
![]() | 12万円 3,000円 | 12万円 なし | 1DK 32.48m2 | 築29年 | 京浜東北・根岸線 蒲田駅 徒歩10分 京浜急行電鉄本線 京急蒲田駅 徒歩10分 東京都大田区蒲田3丁目 | 詳細を見る | |








