賃貸マンション
アクタス大橋ステーションタワーの賃貸物件情報(1LDK/8階)
| 家賃 | 管理費等 | 敷金 | 礼金 | 間取り | 専有面積 |
|---|---|---|---|---|---|
| 8.5万円 | なし | 17万円 | なし | 1LDK | 34.08m2 |
入居決定でお祝い金最大100,000円
- 保証金
- -
- 償却・敷引
- -
- 築年数
- 築18年
- 所在階
- 8階
- 向き
- 南西
Point
まずはお問い合わせ!
不動産会社は街のプロ、あなたに合った物件がきっと見つかります。
提供:(株)アクタス(SUUMO経由)

詳細情報 アクタス大橋ステーションタワー
物件紹介
アクタス大橋ステーションタワーは西鉄天神大牟田線大橋駅から徒歩4分にあり、駅近で通勤通学に便利なマンションです。
このお部屋は2階以上に位置しているので、通行人や周囲の住人からの視線が気になりにくく、防犯面でも安心。建物のエントランスはオートロックがついており、インターホンにはTVモニタもついているため、相手の顔を確認してから来客対応することができます。
おしゃれなデザイナーズ物件!人気の南向き・フローリングのお部屋。角部屋でもあるため、周囲の居住者の生活音も気になりにくい場所です。バス・トイレ別の仕様で、のんびりお風呂タイムも楽しめます。
通信設備面では、インターネットが無料で使えるので、月々の出費を抑えられるのも魅力です。また、BSアンテナ・CSアンテナがありCATVにも対応しているので、おうち時間も充実するでしょう(別途工事、BS・CS・CATVの契約料等が必要な場合あり)。
建物にはエレベーターがついているので、重い荷物があっても安心。共用部には宅配ボックスが設定されているので、不在の時にも荷物を受け取ることができます。
このお部屋は2階以上に位置しているので、通行人や周囲の住人からの視線が気になりにくく、防犯面でも安心。建物のエントランスはオートロックがついており、インターホンにはTVモニタもついているため、相手の顔を確認してから来客対応することができます。
おしゃれなデザイナーズ物件!人気の南向き・フローリングのお部屋。角部屋でもあるため、周囲の居住者の生活音も気になりにくい場所です。バス・トイレ別の仕様で、のんびりお風呂タイムも楽しめます。
通信設備面では、インターネットが無料で使えるので、月々の出費を抑えられるのも魅力です。また、BSアンテナ・CSアンテナがありCATVにも対応しているので、おうち時間も充実するでしょう(別途工事、BS・CS・CATVの契約料等が必要な場合あり)。
建物にはエレベーターがついているので、重い荷物があっても安心。共用部には宅配ボックスが設定されているので、不在の時にも荷物を受け取ることができます。
お金・契約の情報
※「-」と表示されているものは、実際は料金が発生するものもございます。詳細はお問い合わせください。
| 家賃 | 8.5万円 | 管理費・共益費 | なし |
|---|---|---|---|
| 敷金 | 17万円 | 礼金 | なし |
| 入居決定でお祝い金最大100,000円 | |||
| 保証金 | - | 償却・敷引 | - |
| 住宅保険料 | - | 更新料 | - |
| 契約形態 | - | 契約期間 | - |
| 入居・引渡期間 | - | 現況 | - |
| 契約備考 | マックスバリューまで144m/やよい軒大橋店まで390m/通勤管理/2口IHクッキングヒーター・グルメシティ大橋まで50m 1LDK 損保【要】 バストイレ別、バルコニー、エアコン、クロゼット、フローリング、シャワー付洗面台、TVインターホン、オートロック、室内洗濯置、陽当り良好、シューズボックス、角住戸、温水洗浄便座、脱衣所、エレベーター、洗面所独立、洗面化粧台、2口コンロ、駐輪場、宅配ボックス、CATV、光ファイバー、礼金不要、2面採光、BS・CS、対面式キッチン、防犯カメラ、IHクッキングヒーター、出窓、分譲賃貸、仲介手数料不要、バイク置場、24時間緊急通報システム、全居室フローリング、デザイナーズ、ディンプルキー、CS、駅まで平坦、ネット使用料不要、眺望良好、24時間換気システム、高温差湯式、南面リビング、バス2路線、駅前、駅徒歩5分以内、バス停徒歩3分以内、敷地内ごみ置き場、平面駐車場、南西向き、日勤管理、当社管理物件、都市ガス、洗面所にドア、BS、高速ネット対応、LAN、通風良好 入居日:'26年4月下旬 | ||
部屋の情報
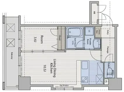
| 間取り | 1LDK | 専有面積 | 34.08m2 |
|---|---|---|---|
| 所在階 / 向き | 8階 / 南西 | バルコニー面積 | - |
| 水道 / ガス | - | ||
| 設備 | バス・トイレ別、2階以上、オートロック、テレビドアホン、宅配ボックス、インターネット対応、エアコン、エレベーター、温水洗浄便座、南向き、角部屋、バルコニー、フローリング、洗髪洗面化粧台、2口コンロ、コンロ:IH、デザイナーズ、CATV、CSアンテナ、BSアンテナ、インターネット使用料無料、洗濯機:室内 | ||
| 当社物件ID | 8886942 | ||
建物の情報
| 建物名 | アクタス大橋ステーションタワー | ||
|---|---|---|---|
| 所在地 | 福岡県福岡市南区大橋 | ||
| 交通 | 西鉄天神大牟田線 大橋駅(福岡) 徒歩4分 西鉄天神大牟田線 高宮駅(福岡) 徒歩20分 西鉄天神大牟田線 井尻駅 徒歩20分 | ||
| 階数 | 10階建 | 総戸数 | - |
| 築年月 | 2008年09月 / 築18年 | エレベーター | あり |
| 駐車場 | なし | バイク置き場 | あり |
| 駐輪場 | あり | 管理人/管理会社 | - |
| 周辺環境 | その他 やよい軒大橋店(飲食店)まで390m その他 レガネット(スーパー)まで457m その他 RAIRIA Ohashi(ショッピングセンター)まで457m その他 ミニストップ福岡大橋一丁目店(コンビニ)まで290m その他 ローソン大橋4丁目店(コンビニ)まで376m その他 マックスバリュー(スーパー)まで144m | ||
| 建物種別 | マンション | 建物構造 | RC(鉄筋コンクリート) |
この部屋の取扱い不動産会社
| 会社名 | (株)アクタス(SUUMO経由) | ||
|---|---|---|---|
| 所在地 | 福岡県福岡市中央区天神3-9-26 アクタス天神セントラルタワー2階 | 交通 | - |
| 営業時間 | 10:00~19:00 | 定休日 | 毎日営業 |
| 免許番号 | 福岡県知事15125 | 取引態様 | 代理 |
| 不動産会社管理番号 | 100485378250 | 当社管理番号 | 89 |
| 所属団体 | (公社)福岡県宅地建物取引業協会会員 | ||
| 公正取引協議会 | (一社)九州不動産公正取引協議会加盟 | ||
| 取扱い物件情報 | 物件詳細へ | ||
※各種情報と現状に差異がある場合は、現状優先となります。問い合わせをすることで、より詳しい条件、情報を確認する事ができます。
提供:(株)アクタス(SUUMO経由)
この物件が気になったら掲載期限まであと9日
アクタス大橋ステーションタワーに条件(家賃・エリア)が近い物件一覧
| 写真 | 家賃 管理費等 | 敷金 礼金 | 間取り 専有面積 | 築年数 | 最寄り駅 所在地 | キープ | 詳細 |
|---|---|---|---|---|---|---|---|
マンション PEARL COURT 春日原(2DK/4階) | |||||||
![]() | 6万円 5,000円 | なし 12万円 | 2DK 38.88m2 | 築33年 | 西鉄天神大牟田線 春日原駅 徒歩5分 鹿児島本線 春日駅(福岡) 徒歩6分 鹿児島本線 大野城駅 徒歩20分 福岡県春日市春日原北町4丁目 | 詳細を見る | |
アパート ピナクルDOZEN D(2DK/2階) | |||||||
![]() | 5.5万円 なし | なし 5.5万円 | 2DK 46m2 | 築29年 | 博多南線 博多南駅 徒歩19分 西鉄天神大牟田線 井尻駅 徒歩67分 鹿児島本線 南福岡駅 徒歩68分 福岡県那珂川市 | 詳細を見る | |
アパート トリシア野多目Ⅰ(2LDK/2階) | |||||||
![]() | 11.5万円 6,000円 | なし 20万円 | 2LDK 56.26m2 | 新築 | 博多南線 博多南駅 徒歩41分 福岡県福岡市南区野多目2丁目 | 詳細を見る | |
アパート PREVOYANCE春日岡本(ワンルーム/1階) | |||||||
![]() | 5.95万円 4,000円 | なし 5.95万円 | ワンルーム 30.02m2 | 築3年 | 鹿児島本線 南福岡駅 徒歩18分 西鉄天神大牟田線 井尻駅 徒歩18分 鹿児島本線 笹原駅 徒歩19分 福岡県春日市岡本1丁目 | 詳細を見る | |
アパート WISTERIA Ⅷ(ワンルーム/2階) | |||||||
![]() | 7.2万円 2,800円 | なし 7.2万円 | ワンルーム 40.74m2 | 新築 | 博多南線 博多南駅 徒歩16分 鹿児島本線 南福岡駅 徒歩55分 福岡県福岡市南区弥永2丁目 | 詳細を見る | |
マンション オアシス日佐(2LDK/3階) | |||||||
![]() | 6.3万円 2,200円 | なし なし | 2LDK 55.07m2 | 築25年 | 博多南線 博多南駅 徒歩27分 西鉄天神大牟田線 井尻駅 徒歩28分 鹿児島本線 笹原駅 徒歩33分 福岡県福岡市南区曰佐5丁目 | 詳細を見る | |
アパート 西鉄天神大牟田線 大橋駅(福岡) 徒歩12分 築41年(2LDK/1階) | |||||||
![]() | 5.5万円 3,000円 | なし なし | 2LDK 60m2 | 築41年 | 西鉄天神大牟田線 大橋駅(福岡) 徒歩12分 西鉄天神大牟田線 井尻駅 徒歩26分 西鉄天神大牟田線 高宮駅(福岡) 徒歩28分 福岡県福岡市南区三宅1丁目 | 詳細を見る | |
マンション 日宝サンセーヌ大橋南(2LDK/2階) | |||||||
![]() | 7.7万円 5,000円 | なし なし | 2LDK 62m2 | 築38年 | 西鉄天神大牟田線 井尻駅 徒歩17分 西鉄天神大牟田線 大橋駅(福岡) 徒歩23分 鹿児島本線 笹原駅 徒歩26分 福岡県福岡市南区横手4丁目 | 詳細を見る | |









