賃貸マンション
ルフレプレミアム横浜リーヴァの賃貸物件情報(1K/4階)
| 家賃 | 管理費等 | 敷金 | 礼金 | 間取り | 専有面積 |
|---|---|---|---|---|---|
| 11万円 | 5,000円 | なし | 11万円 | 1K | 23.32m2 |
入居決定でお祝い金最大100,000円
- 保証金
- -
- 償却・敷引
- -
- 築年数
- 築1年
- 所在階
- 4階
- 向き
- 東
Point
お電話でのお問い合わせは8時30分から21時まで可能です!お気軽にフリーダイヤルまでご連絡ください♪◇webでのお申し込みも対応可能です◇
提供:アエラス蒲田店 (株)アエラス.FR(SUUMO経由)

詳細情報 ルフレプレミアム横浜リーヴァ
物件紹介
ルフレプレミアム横浜リーヴァは京急本線京急鶴見駅から徒歩2分にあり、駅近で通勤通学に便利なマンションです。
このお部屋は2階以上に位置しているので、通行人や周囲の住人からの視線が気になりにくく、防犯面でも安心。建物のエントランスはオートロックがついており、インターホンにはTVモニタもついているため、相手の顔を確認してから来客対応することができます。
人気の角部屋。周囲の居住者の生活音も気になりにくい場所です。キッチンはシステムキッチン仕様になっていますので、お料理好きの方にもぴったり。バス・トイレは別なので、のんびりお風呂タイムも楽しめるでしょう。また、雨の日でも浴室乾燥機を使えば、お洗濯も問題ありません。
通信設備面では、インターネットが無料で使えるので、月々の出費を抑えられるのも魅力です。また、BSアンテナ・CSアンテナもありますので、おうち時間も充実するでしょう(別途工事、BS・CSの契約料等が必要な場合あり)。
建物にはエレベーターがついているので、重い荷物があっても安心。共用部には宅配ボックスが設定されているので、不在の時にも荷物を受け取ることができます。
このお部屋は2階以上に位置しているので、通行人や周囲の住人からの視線が気になりにくく、防犯面でも安心。建物のエントランスはオートロックがついており、インターホンにはTVモニタもついているため、相手の顔を確認してから来客対応することができます。
人気の角部屋。周囲の居住者の生活音も気になりにくい場所です。キッチンはシステムキッチン仕様になっていますので、お料理好きの方にもぴったり。バス・トイレは別なので、のんびりお風呂タイムも楽しめるでしょう。また、雨の日でも浴室乾燥機を使えば、お洗濯も問題ありません。
通信設備面では、インターネットが無料で使えるので、月々の出費を抑えられるのも魅力です。また、BSアンテナ・CSアンテナもありますので、おうち時間も充実するでしょう(別途工事、BS・CSの契約料等が必要な場合あり)。
建物にはエレベーターがついているので、重い荷物があっても安心。共用部には宅配ボックスが設定されているので、不在の時にも荷物を受け取ることができます。
お金・契約の情報
※「-」と表示されているものは、実際は料金が発生するものもございます。詳細はお問い合わせください。
| 家賃 | 11万円 | 管理費・共益費 | 5,000円 |
|---|---|---|---|
| 敷金 | なし | 礼金 | 11万円 |
| 入居決定でお祝い金最大100,000円 | |||
| 保証金 | - | 償却・敷引 | - |
| 住宅保険料 | - | 更新料 | - |
| 保証会社利用 | 必須 | 保証会社名 | - |
| 保証会社費用 | - | 保証会社備考 | 保証会社利用必 初回(月額総賃料の50%)、月額(月額総賃料の1%) |
| 契約形態 | - | 契約期間 | - |
| 入居・引渡期間 | 即時 | 現況 | - |
| 契約備考 | 退去時ハウスクリーニング費用:44000円エアコン洗浄費用:16500円違約金:1年未満の解約時総家賃1ヵ月分◆お持ちのクレジットカードで初期費用の決済が可能です◆初期費用のお見積り等、お気軽にお問い合わせくださいませ◆◆ 更新料 賃料1.50ヶ月分 1K 普通借家2年 損保【2万円2年】 バストイレ別、バルコニー、エアコン、ガスコンロ対応、クロゼット、TVインターホン、浴室乾燥機、オートロック、室内洗濯置、シューズボックス、システムキッチン、角住戸、温水洗浄便座、脱衣所、エレベーター、洗面所独立、洗面化粧台、2口コンロ、駐輪場、宅配ボックス、即入居可、2面採光、敷金不要、防犯カメラ、2沿線利用可、CS、ネット使用料不要、築2年以内、24時間換気システム、2駅利用可、3駅以上利用可、3沿線以上利用可、駅徒歩5分以内、駅徒歩10分以内、敷地内ごみ置き場、都市ガス、BS、初期費用カード決済可 | ||
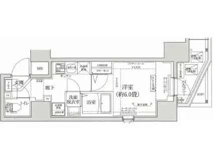
部屋の情報
| 間取り | 1K | 専有面積 | 23.32m2 |
|---|---|---|---|
| 所在階 / 向き | 4階 / 東 | バルコニー面積 | - |
| 水道 / ガス | - | ||
| 設備 | バス・トイレ別、2階以上、オートロック、テレビドアホン、宅配ボックス、浴室乾燥機、インターネット対応、システムキッチン、エアコン、エレベーター、温水洗浄便座、角部屋、バルコニー、洗髪洗面化粧台、2口コンロ、コンロ:ガス、CSアンテナ、BSアンテナ、インターネット使用料無料、洗濯機:室内 | ||
| 当社物件ID | 158980734 | ||
建物の情報
| 建物名 | ルフレプレミアム横浜リーヴァ | ||
|---|---|---|---|
| 所在地 | 神奈川県横浜市鶴見区鶴見中央 | ||
| 交通 | 京急本線 京急鶴見駅 徒歩2分 JR京浜東北線 鶴見駅 徒歩7分 JR鶴見線 国道駅 徒歩12分 | ||
| 階数 | 11階建 | 総戸数 | - |
| 築年月 | 2025年04月 / 築1年 | エレベーター | あり |
| 駐車場 | なし | バイク置き場 | - |
| 駐輪場 | あり | 管理人/管理会社 | - |
| 周辺環境 | その他 京急ストア(スーパー)まで219m その他 ファミリーマート(コンビニ)まで327m その他 鶴見駅 CIAL(その他)まで404m その他 オリンピック(その他)まで444m その他 西友(スーパー)まで616m その他 100円ローソン(スーパー)まで605m | ||
| 建物種別 | マンション | 建物構造 | RC(鉄筋コンクリート) |
この部屋の取扱い不動産会社
| 会社名 | (株)ネクストライフ溝の口店(SUUMO経由) | ||
|---|---|---|---|
| 所在地 | 神奈川県川崎市高津区溝口1-13-18 セキグチビル3階 | 交通 | - |
| 営業時間 | 10:00~18:30(電話8:30~21:00) | 定休日 | 水曜日(1月~3月は営業) |
| 免許番号 | 国土交通大臣8175 | 取引態様 | 仲介 |
| 不動産会社管理番号 | 100464858637 | 当社管理番号 | 89 |
| 所属団体 | (公社)神奈川県宅地建物取引業協会会員 | ||
| 公正取引協議会 | (公社)首都圏不動産公正取引協議会加盟 | ||
| 取扱い物件情報 | 物件詳細へ | ||
※各種情報と現状に差異がある場合は、現状優先となります。問い合わせをすることで、より詳しい条件、情報を確認する事ができます。
提供:(株)ネクストライフ溝の口店(SUUMO経由)
この物件が気になったら掲載期限まであと10日
ルフレプレミアム横浜リーヴァの空き部屋一覧
全部で28の空き部屋があります。
ルフレプレミアム横浜リーヴァに条件(家賃・エリア)が近い物件一覧
| 写真 | 家賃 管理費等 | 敷金 礼金 | 間取り 専有面積 | 築年数 | 最寄り駅 所在地 | キープ | 詳細 |
|---|---|---|---|---|---|---|---|
マンション 吉田ビル(2DK/5階) | |||||||
![]() | 7万円 なし | 7万円 なし | 2DK 42.8m2 | 築46年 | 京急本線 横須賀中央駅 徒歩9分 京急本線 県立大学駅 徒歩14分 京急本線 汐入駅 徒歩23分 神奈川県横須賀市米が浜通 | 詳細を見る | |
アパート CRESCENTE(1K/1階) | |||||||
![]() | 7.2万円 4,000円 | 7.2万円 7.2万円 | 1K 22.28m2 | 築1年 | 京急大師線 川崎大師駅 徒歩13分 京急大師線 東門前駅 徒歩15分 神奈川県川崎市川崎区観音 | 詳細を見る | |
アパート ハウスK2(3DK/1階) | |||||||
![]() | 8.1万円 5,000円 | 8.1万円 なし | 3DK 53.49m2 | 築30年 | 神奈川県藤沢市村岡東 | 詳細を見る | |
マンション ガーデンヒルズ白鳥(ワンルーム/2階) | |||||||
![]() | 7.3万円 7,000円 | 7.3万円 7.3万円 | ワンルーム 30.9m2 | 築23年 | 小田急多摩線 栗平駅 徒歩1分 小田急多摩線 黒川駅(神奈川) 徒歩18分 小田急線 新百合ケ丘駅 徒歩36分 神奈川県川崎市麻生区白鳥 | 詳細を見る | |
アパート DIMOA(1K/2階) | |||||||
![]() | 7.4万円 4,000円 | 7.4万円 7.4万円 | 1K 21m2 | 築15年 | JR南武線 鹿島田駅 徒歩13分 JR横須賀線 新川崎駅 徒歩18分 JR京浜東北線 川崎駅 徒歩34分 神奈川県川崎市幸区古川町 | 詳細を見る | |
マンション 第2長谷グリーンハイツ(2DK/2階) | |||||||
![]() | 8万円 1,000円 | 12万円 4万円 | 2DK 48.02m2 | 築33年 | 江ノ島電鉄線 長谷駅(神奈川) 徒歩11分 江ノ島電鉄線 由比ケ浜駅 徒歩15分 JR横須賀線 鎌倉駅 徒歩20分 神奈川県鎌倉市長谷 | 詳細を見る | |
アパート COLINA DO SUL(2LDK/3階) | |||||||
![]() | 12.6万円 6,000円 | なし 19万円 | 2LDK 52.13m2 | 築4年 | 神奈川県川崎市宮前区南平台 | 詳細を見る | |







