賃貸アパート
レオパレスMARIONの賃貸物件情報(1K/1階)
| 家賃 | 管理費等 | 敷金 | 礼金 | 間取り | 専有面積 |
|---|---|---|---|---|---|
| 4万円 | 4,000円 | なし | 4万円 | 1K | 23.18m2 |
入居決定でお祝い金最大100,000円
- 保証金
- -
- 償却・敷引
- -
- 築年数
- 築20年
- 所在階
- 1階
- 向き
- -
Point
まずはお問い合わせ!
不動産会社は街のプロ、あなたに合った物件がきっと見つかります。
提供:ハウスコム関東株式会社 宇都宮店

詳細情報 レオパレスMARION
物件紹介
このお部屋のインターホンにはTVモニタがついているため、相手の顔を確認してから来客対応することができます。
バス・トイレ別の仕様で、のんびりお風呂タイムも楽しめます。
通信設備面では、インターネット接続が可能です(別途工事、契約料が必要な場合あり)。
共用部には宅配ボックスが設定されているので、不在の時にも荷物を受け取ることができます。
コンビニまで徒歩3分の場所にあり、日用品や食料品のお買い物にも便利です。
バス・トイレ別の仕様で、のんびりお風呂タイムも楽しめます。
通信設備面では、インターネット接続が可能です(別途工事、契約料が必要な場合あり)。
共用部には宅配ボックスが設定されているので、不在の時にも荷物を受け取ることができます。
コンビニまで徒歩3分の場所にあり、日用品や食料品のお買い物にも便利です。
お金・契約の情報
※「-」と表示されているものは、実際は料金が発生するものもございます。詳細はお問い合わせください。
| 家賃 | 4万円 | 管理費・共益費 | 4,000円 |
|---|---|---|---|
| 敷金 | なし | 礼金 | 4万円 |
| 入居決定でお祝い金最大100,000円 | |||
| 保証金 | - | 償却・敷引 | - |
| 住宅保険料 | 1円 | 更新料 | - |
| その他費用 | 抗菌施工(任意):2.376万円 | ||
| 保証会社利用 | 必須 | 保証会社名 | - |
| 保証会社費用 | - | 保証会社備考 | 保証料:47390円(契約内容により100〜120%で変動有)※記載金額は120%の場合 |
| 契約形態 | - | 契約期間 | - |
| 入居・引渡期間 | 即時 | 現況 | - |
| 契約備考 | 鍵交換費10450円、抗菌施工(任意)18040円から23760円(税込)、環境維持費540円/月 月額(環境維持費 550円) 鍵交換費用:16500 室内清掃費用:41800 その他設備/条件:室内洗濯機置き場 | ||
部屋の情報
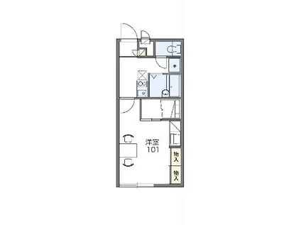
| 間取り | 1K | 専有面積 | 23.18m2 |
|---|---|---|---|
| 所在階 / 向き | 1階 / - | バルコニー面積 | - |
| 水道 / ガス | - | ||
| 設備 | バス・トイレ別、テレビドアホン、宅配ボックス、光ファイバー対応、エアコン | ||
| 当社物件ID | 5516890 | ||
建物の情報
| 建物名 | レオパレスMARION | ||
|---|---|---|---|
| 所在地 | 栃木県宇都宮市上戸祭町 | ||
| 交通 | 東北本線 宇都宮駅 バス乗車時間:21分 第二グリーンヒル北バス停で下車 徒歩7分 | ||
| 階数 | 2階建 | 総戸数 | 10戸 |
| 築年月 | 2007年01月 / 築20年 | エレベーター | - |
| 駐車場 | なし | バイク置き場 | - |
| 駐輪場 | - | 管理人/管理会社 | - |
| 周辺環境 | コンビニ 徒歩3分(227m) 販売店 徒歩8分(615m) その他 ドラッグストア その他 公園 その他 銀行 その他 * | ||
| 建物種別 | アパート | 建物構造 | 木造 |
この部屋の取扱い不動産会社
| 会社名 | ハウスコム関東株式会社 宇都宮店 | ||
|---|---|---|---|
| 所在地 | 栃木県宇都宮市5-9笠島ビル1階 | 交通 | - |
| 営業時間 | 10:00~18:00 | 定休日 | - |
| 免許番号 | 国土交通大臣(1)第10263号 | 取引態様 | 仲介 |
| 不動産会社管理番号 | HC5-92084-105-0041 | 当社管理番号 | 468 |
| 所属団体 | 一般社団法人全国住宅産業協会/公益社団法人首都圏不動産公正取引協議会/公益財団法人日本賃貸住宅管理協会、 | ||
| 取扱い物件情報 | 物件詳細へ | ||
※各種情報と現状に差異がある場合は、現状優先となります。問い合わせをすることで、より詳しい条件、情報を確認する事ができます。
提供:ハウスコム関東株式会社 宇都宮店
この物件が気になったら掲載期限まであと4日
レオパレスMARIONに条件(家賃・エリア)が近い物件一覧
| 写真 | 家賃 管理費等 | 敷金 礼金 | 間取り 専有面積 | 築年数 | 最寄り駅 所在地 | キープ | 詳細 |
|---|---|---|---|---|---|---|---|
アパート セレノ・アロッジオ(2K/1階) | |||||||
![]() | 4.55万円 2,300円 | なし 7万円 | 2K 30.85m2 | 築10年 | 栃木県日光市吉沢 | 詳細を見る | |
アパート グラバティーハイツ(1K/1階) | |||||||
![]() | 2.9万円 なし | なし なし | 1K 19.8m2 | 築39年 | 宇都宮芳賀ライト線 陽東3丁目駅 徒歩16分 栃木県宇都宮市峰町 | 詳細を見る | |
アパート グリーンハイツ III棟(2LDK/1階) | |||||||
![]() | 4.8万円 なし | 4.8万円 なし | 2LDK 63.76m2 | 築28年 | JR日光線 鹿沼駅 徒歩24分 東武日光線 新鹿沼駅 徒歩29分 東武日光線 樅山駅 徒歩55分 栃木県鹿沼市西茂呂 | 詳細を見る | |
アパート プレステージハイツ(ワンルーム/1階) | |||||||
![]() | 2.6万円 なし | なし なし | ワンルーム 22.87m2 | 築39年 | JR日光線 鶴田駅 徒歩11分 東武宇都宮線 江曽島駅 徒歩12分 東武宇都宮線 東武宇都宮駅 徒歩53分 栃木県宇都宮市西川田町 | 詳細を見る | |
アパート レオパレスメゾンT C(1K/1階) | |||||||
![]() | 4万円 4,000円 | なし なし | 1K 23.61m2 | 築17年 | 東北本線 雀宮駅 徒歩21分 栃木県宇都宮市若松原1丁目 | 詳細を見る | |
アパート プチロジェ 新富ビル(1DK/3階) | |||||||
![]() | 3.5万円 なし | なし なし | 1DK 23.8m2 | 築39年 | JR宇都宮線 雀宮駅 徒歩20分 栃木県宇都宮市新富町 | 詳細を見る | |
アパート レオパレスTOKIO(1K/1階) | |||||||
![]() | 4.1万円 4,000円 | なし なし | 1K 20.28m2 | 築27年 | 日光線 鹿沼駅 徒歩30分 栃木県鹿沼市西茂呂1丁目 | 詳細を見る | |
マンション レオパレスパークハウス宮の内(1K/1階) | |||||||
![]() | 5.2万円 6,000円 | なし なし | 1K 23.18m2 | 築20年 | 東北本線 雀宮駅 徒歩18分 栃木県宇都宮市宮の内2丁目 | 詳細を見る | |









