賃貸アパート
レオパレスMARIONの賃貸物件情報(1K/2階)
| 家賃 | 管理費等 | 敷金 | 礼金 | 間取り | 専有面積 |
|---|---|---|---|---|---|
| 4.3万円 | 4,000円 | なし | なし | 1K | 23.18m2 |
入居決定でお祝い金最大100,000円
- 保証金
- -
- 償却・敷引
- -
- 築年数
- 築20年
- 所在階
- 2階
- 向き
- -
Point
まずはお問い合わせ!
不動産会社は街のプロ、あなたに合った物件がきっと見つかります。
提供:ハウスコム関東株式会社 宇都宮店

詳細情報 レオパレスMARION
物件紹介
このお部屋は2階以上に位置しているので、通行人や周囲の住人からの視線が気になりにくく、防犯面でも安心。インターホンにはTVモニタもついているため、相手の顔を確認してから来客対応することができます。
バス・トイレ別の仕様で、のんびりお風呂タイムも楽しめます。
通信設備面では、インターネット接続が可能です(別途工事、契約料が必要な場合あり)。
共用部には宅配ボックスが設定されているので、不在の時にも荷物を受け取ることができます。
コンビニまで徒歩3分の場所にあり、日用品や食料品のお買い物にも便利です。
バス・トイレ別の仕様で、のんびりお風呂タイムも楽しめます。
通信設備面では、インターネット接続が可能です(別途工事、契約料が必要な場合あり)。
共用部には宅配ボックスが設定されているので、不在の時にも荷物を受け取ることができます。
コンビニまで徒歩3分の場所にあり、日用品や食料品のお買い物にも便利です。
お金・契約の情報
※「-」と表示されているものは、実際は料金が発生するものもございます。詳細はお問い合わせください。
| 家賃 | 4.3万円 | 管理費・共益費 | 4,000円 |
|---|---|---|---|
| 敷金 | なし | 礼金 | なし |
| 入居決定でお祝い金最大100,000円 | |||
| 保証金 | - | 償却・敷引 | - |
| 住宅保険料 | 1円 | 更新料 | - |
| その他費用 | 抗菌施工(任意):2.376万円 | ||
| 保証会社利用 | 必須 | 保証会社名 | - |
| 保証会社費用 | - | 保証会社備考 | 保証料:49190円(契約内容により100〜120%で変動有)※記載金額は120%の場合 |
| 契約形態 | - | 契約期間 | - |
| 入居・引渡期間 | 即時 | 現況 | - |
| 契約備考 | 月額(環境維持費 550円) 鍵交換費用:16500 室内清掃費用:41800 その他設備/条件:室内洗濯機置き場 | ||
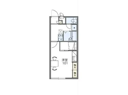
部屋の情報
| 間取り | 1K | 専有面積 | 23.18m2 |
|---|---|---|---|
| 所在階 / 向き | 2階 / - | バルコニー面積 | - |
| 水道 / ガス | - | ||
| 設備 | バス・トイレ別、テレビドアホン、宅配ボックス、光ファイバー対応、エアコン、温水洗浄便座、家具家電付き | ||
| 当社物件ID | 5015456 | ||
建物の情報
| 建物名 | レオパレスMARION | ||
|---|---|---|---|
| 所在地 | 栃木県宇都宮市上戸祭町 | ||
| 交通 | 東北本線 宇都宮駅 バス乗車時間:21分 第二グリーンヒル北バス停で下車 徒歩7分 | ||
| 階数 | 2階建 | 総戸数 | 10戸 |
| 築年月 | 2007年01月 / 築20年 | エレベーター | - |
| 駐車場 | 空有 4,950円/月 | バイク置き場 | - |
| 駐輪場 | - | 管理人/管理会社 | - |
| 周辺環境 | コンビニ 徒歩3分(227m) 販売店 徒歩8分(615m) その他 ドラッグストア その他 公園 その他 銀行 その他 * | ||
| 建物種別 | アパート | 建物構造 | 木造 |
この部屋の取扱い不動産会社
| 会社名 | ハウスコム関東株式会社 宇都宮店 | ||
|---|---|---|---|
| 所在地 | 栃木県宇都宮市5-9笠島ビル1階 | 交通 | - |
| 営業時間 | 10:00~18:00 | 定休日 | - |
| 免許番号 | 国土交通大臣(1)第10263号 | 取引態様 | 仲介 |
| 不動産会社管理番号 | HC5-92084-203-0041 | 当社管理番号 | 468 |
| 所属団体 | 一般社団法人全国住宅産業協会/公益社団法人首都圏不動産公正取引協議会/公益財団法人日本賃貸住宅管理協会、 | ||
| 取扱い物件情報 | 物件詳細へ | ||
※各種情報と現状に差異がある場合は、現状優先となります。問い合わせをすることで、より詳しい条件、情報を確認する事ができます。
提供:ハウスコム関東株式会社 宇都宮店
この物件が気になったら掲載期限まであと12日
レオパレスMARIONに条件(家賃・エリア)が近い物件一覧
| 写真 | 家賃 管理費等 | 敷金 礼金 | 間取り 専有面積 | 築年数 | 最寄り駅 所在地 | キープ | 詳細 |
|---|---|---|---|---|---|---|---|
アパート コートビレッジ南宇都宮駅前(2DK/1階) | |||||||
![]() | 3.7万円 3,000円 | 3.7万円 なし | 2DK 32.84m2 | 築39年 | 東武宇都宮線 南宇都宮駅 徒歩1分 JR日光線 鶴田駅 徒歩23分 栃木県宇都宮市日の出 | 詳細を見る | |
マンション コープオリンピア宇津宮(ワンルーム/3階) | |||||||
![]() | 3.8万円 3,500円 | なし なし | ワンルーム 41.44m2 | 築39年 | 東武宇都宮線 東武宇都宮駅 徒歩21分 東北新幹線 宇都宮駅 徒歩36分 JR日光線 宇都宮駅 徒歩36分 栃木県宇都宮市下戸祭 | 詳細を見る | |
マンション 新町ロイヤルパレス(2DK/1階) | |||||||
![]() | 4.7万円 2,000円 | 4.7万円 なし | 2DK 36.76m2 | 築39年 | 東武宇都宮線 南宇都宮駅 徒歩10分 東武宇都宮線 東武宇都宮駅 徒歩23分 栃木県宇都宮市新町 | 詳細を見る | |
アパート フィオレット(1LDK/1階) | |||||||
![]() | 6.9万円 2,000円 | なし 13.8万円 | 1LDK 33.26m2 | 築20年 | 湘南新宿ライン宇須 宇都宮駅 徒歩18分 東武宇都宮線 東武宇都宮駅 徒歩40分 栃木県宇都宮市峰 | 詳細を見る | |
アパート 石井パストラル(ワンルーム/1階) | |||||||
![]() | 2.8万円 なし | 2.8万円 2.8万円 | ワンルーム 20.88m2 | 築28年 | 栃木県宇都宮市石井町 | 詳細を見る | |
アパート シャーリーハイツ(ワンルーム/1階) | |||||||
![]() | 4.8万円 2,300円 | なし 4.8万円 | ワンルーム 32.9m2 | 築15年 | JR宇都宮線 雀宮駅 徒歩8分 栃木県宇都宮市雀宮町 | 詳細を見る | |
アパート ピア・アベニューC棟(1LDK/1階) | |||||||
![]() | 5.1万円 4,000円 | なし なし | 1LDK 45.45m2 | 築20年 | 栃木県宇都宮市駒生町 | 詳細を見る | |
アパート ルミエールM(1K/1階) | |||||||
![]() | 4.3万円 3,000円 | 4.3万円 なし | 1K 29.75m2 | 築20年 | JR日光線 鹿沼駅 徒歩18分 栃木県鹿沼市貝島町 | 詳細を見る | |









