賃貸マンション
エクセラン新城の賃貸物件情報(3LDK/1階)
| 家賃 | 管理費等 | 敷金 | 礼金 | 間取り | 専有面積 |
|---|---|---|---|---|---|
| 14万円 | 5,000円 | 14万円 | 14万円 | 3LDK | 68.7m2 |
入居決定でお祝い金最大100,000円
- 保証金
- -
- 償却・敷引
- -
- 築年数
- 築30年
- 所在階
- 1階
- 向き
- 南
Point
★お気軽にお問合せください★気になる物件はまとめてご紹介いたします!★他社様の掲載物件もお取り扱い可能です★ZOOMでのご相談も承ります★
提供:(株)タウンハウジング神奈川 鹿島田店(SUUMO経由)

詳細情報 エクセラン新城
物件紹介
エクセラン新城はJR南武線武蔵中原駅から徒歩9分にあり、駅近で通勤通学に便利なマンションです。
人気の南向きのお部屋。また、フローリングなのでお掃除もラクラク。バス・トイレ別の仕様で、のんびりお風呂タイムも楽しめます。
通信設備面では、インターネット接続が可能です。また、BSアンテナがありCATVにも対応しているので、おうち時間も充実するでしょう(別途工事、契約料が必要な場合あり)。
建物にはエレベーターがついているので、重い荷物があっても安心。
人気の南向きのお部屋。また、フローリングなのでお掃除もラクラク。バス・トイレ別の仕様で、のんびりお風呂タイムも楽しめます。
通信設備面では、インターネット接続が可能です。また、BSアンテナがありCATVにも対応しているので、おうち時間も充実するでしょう(別途工事、契約料が必要な場合あり)。
建物にはエレベーターがついているので、重い荷物があっても安心。
お金・契約の情報
※「-」と表示されているものは、実際は料金が発生するものもございます。詳細はお問い合わせください。
| 家賃 | 14万円 | 管理費・共益費 | 5,000円 |
|---|---|---|---|
| 敷金 | 14万円 | 礼金 | 14万円 |
| 入居決定でお祝い金最大100,000円 | |||
| 保証金 | - | 償却・敷引 | - |
| 住宅保険料 | - | 更新料 | - |
| 保証会社利用 | 必須 | 保証会社名 | - |
| 保証会社費用 | - | 保証会社備考 | 保証会社利用必 初回保証料:月額賃料等の35~100%/継続保証料:更新料の1%(更新時)または8000円~10000円(1年毎)/月次保証料:月額賃料の1%/現状回復保証料:原状回復費用の1%(解約時) |
| 契約形態 | - | 契約期間 | - |
| 入居・引渡期間 | 相談 | 現況 | - |
| 契約備考 | ★弊社では直営店145店舗以上の広い情報網と地域密着型の細かいエリア情報を活かして、お客様のニーズに合わせてお部屋のご紹介をさせて頂きます★地域No1の情報量の当店へぜひ一度お問合せ下さいませ!★スタッフ一同心よりお待ちしております★ 合計4.4万円(内訳:鍵交換代:22000円/室内清掃費用:22000円) 更新料新賃料(ヶ月):1.00ヶ月 3LDK 二人入居可 普通借家2年 損保【要】 バストイレ別、バルコニー、エアコン、ガスコンロ対応、クロゼット、フローリング、室内洗濯置、陽当り良好、シューズボックス、南向き、追焚機能浴室、脱衣所、エレベーター、洗面所独立、洗面化粧台、2口コンロ、押入、CATV、光ファイバー、外壁タイル張り、閑静な住宅地、照明付、全居室収納、保証人不要、敷金1ヶ月、二人入居相談、玄関ホール、2沿線利用可、駅まで平坦、保証金不要、平坦地、南面2室、南面リビング、一部フローリング、駅徒歩10分以内、敷地内ごみ置き場、都市ガス、洗面所にドア、南面バルコニー、玄関収納、BS、高速ネット対応、礼金1ヶ月、IT重説対応物件、通風良好 | ||
部屋の情報
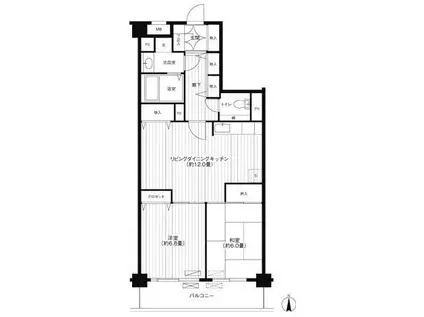
| 間取り | 3LDK | 専有面積 | 68.7m2 |
|---|---|---|---|
| 所在階 / 向き | 1階 / 南 | バルコニー面積 | - |
| 水道 / ガス | - | ||
| 設備 | バス・トイレ別、追い焚き、インターネット対応、エアコン、エレベーター、南向き、バルコニー、フローリング、洗髪洗面化粧台、2口コンロ、コンロ:ガス、CATV、BSアンテナ、洗濯機:室内 | ||
| 当社物件ID | 100141232 | ||
建物の情報
| 建物名 | エクセラン新城 | ||
|---|---|---|---|
| 所在地 | 神奈川県川崎市中原区下新城 | ||
| 交通 | JR南武線 武蔵中原駅 徒歩9分 JR南武線 武蔵新城駅 徒歩10分 東急目黒線 武蔵小杉駅 徒歩22分 | ||
| 階数 | 5階建 | 総戸数 | - |
| 築年月 | 1996年09月 / 築30年 | エレベーター | あり |
| 駐車場 | 近隣 300m18000円 | バイク置き場 | - |
| 駐輪場 | - | 管理人/管理会社 | - |
| 周辺環境 | その他 まいばすけっと(スーパー)まで434m その他 マルエツ(スーパー)まで427m その他 セブンイレブン(コンビニ)まで197m その他 スギ薬局(ドラッグストア)まで379m その他 ほっともっと(その他)まで211m その他 ヤマダ電機テックランド武蔵中原店(その他)まで433m | ||
| 建物種別 | マンション | 建物構造 | RC(鉄筋コンクリート) |
この部屋の取扱い不動産会社
| 会社名 | (株)タウンハウジング神奈川 鹿島田店(SUUMO経由) | ||
|---|---|---|---|
| 所在地 | 神奈川県川崎市幸区下平間 130 コスモ鹿島田ビル101 | 交通 | - |
| 営業時間 | AM10:00~PM7:00 | 定休日 | 水曜日 |
| 免許番号 | 国土交通大臣9928 | 取引態様 | 仲介 |
| 不動産会社管理番号 | 100480412693 | 当社管理番号 | 89 |
| 所属団体 | (公社)神奈川県宅地建物取引業協会会員 | ||
| 公正取引協議会 | (公社)首都圏不動産公正取引協議会加盟 | ||
| 取扱い物件情報 | 物件詳細へ | ||
※各種情報と現状に差異がある場合は、現状優先となります。問い合わせをすることで、より詳しい条件、情報を確認する事ができます。
提供:(株)タウンハウジング神奈川 鹿島田店(SUUMO経由)
この物件が気になったら掲載期限まであと10日
エクセラン新城に条件(家賃・エリア)が近い物件一覧
| 写真 | 家賃 管理費等 | 敷金 礼金 | 間取り 専有面積 | 築年数 | 最寄り駅 所在地 | キープ | 詳細 |
|---|---|---|---|---|---|---|---|
アパート グリーンメゾン(3LDK/2階) | |||||||
![]() | 10.4万円 6,000円 | なし 15.6万円 | 3LDK 68.5m2 | 築15年 | 相鉄いずみ野線 弥生台駅 徒歩25分 神奈川県横浜市泉区岡津町 | 詳細を見る | |
マンション アーヴァイン山太(3LDK/3階) | |||||||
![]() | 15.5万円 6,500円 | なし なし | 3LDK 69.38m2 | 築30年 | 相模鉄道いずみ野線 二俣川駅 徒歩7分 神奈川県横浜市旭区さちが丘 | 詳細を見る | |
マンション ルフレプレミアム横浜リーヴァ(1K/4階) | |||||||
![]() | 8.75万円 2万円 | なし なし | 1K 21.96m2 | 築1年 | 京急本線 京急鶴見駅 徒歩2分 JR京浜東北線 鶴見駅 徒歩5分 JR鶴見線 国道駅 徒歩12分 神奈川県横浜市鶴見区鶴見中央 | 詳細を見る | |
アパート QUIET CRAB HAUSE MIX弘明寺(1LDK/1階) | |||||||
![]() | 13.8万円 5,000円 | なし なし | 1LDK 40.61m2 | 新築 | 京浜急行電鉄本線 弘明寺駅(京急) 徒歩7分 神奈川県横浜市南区中島町2丁目 | 詳細を見る | |
マンション エフ・パークレジデンス横浜反町1216(1LDK/1階) | |||||||
![]() | 13万円 5,000円 | 13万円 13万円 | 1LDK 40.1m2 | 築10年 | 東急東横線 反町駅 徒歩1分 京急本線 神奈川駅 徒歩7分 JR東海道本線 横浜駅 徒歩16分 神奈川県横浜市神奈川区松本町 | 詳細を見る | |
マンション プロスペリテII(2LDK/3階) | |||||||
![]() | 9.7万円 3,500円 | 9.7万円 なし | 2LDK 60.88m2 | 築29年 | JR横浜線 小机駅 徒歩15分 ブルーライン 片倉町駅 徒歩20分 ブルーライン 新横浜駅 徒歩34分 神奈川県横浜市港北区鳥山町 | 詳細を見る | |
マンション ハイツ磯子台(1LDK/4階) | |||||||
![]() | 8.7万円 5,000円 | 8.7万円 8.7万円 | 1LDK 43.21m2 | 築53年 | 京急本線 上大岡駅 徒歩18分 神奈川県横浜市磯子区岡村 | 詳細を見る | |
アパート スカイハイ・ウィッシュ(2LDK/1階) | |||||||
![]() | 10万円 4,000円 | 10万円 10万円 | 2LDK 58.78m2 | 築10年 | グリーンライン 高田駅(神奈川) 徒歩14分 ブルーライン 新羽駅 徒歩23分 東急東横線 綱島駅 徒歩28分 神奈川県横浜市港北区新吉田東 | 詳細を見る | |









