賃貸マンション
ドミールKの賃貸物件情報(1K/2階)
| 家賃 | 管理費等 | 敷金 | 礼金 | 間取り | 専有面積 |
|---|---|---|---|---|---|
| 7.5万円 | 4,000円 | 7.5万円 | 7.5万円 | 1K | 22.51m2 |
入居決定でお祝い金最大100,000円
Point
まずはお問い合わせ!
不動産会社は街のプロ、あなたに合った物件がきっと見つかります。
提供:(株)エールーム新宿店(SUUMO経由)

詳細情報 ドミールK
物件紹介
ドミールKは西武新宿線都立家政駅から徒歩5分にあり、駅近で通勤通学に便利なマンションです。
このお部屋は2階以上に位置しているので、通行人や周囲の住人からの視線が気になりにくく、防犯面でも安心。建物のエントランスはオートロックがついており、インターホンにはTVモニタもついているため、相手の顔を確認してから来客対応することができます。
人気の角部屋で周囲の居住者の生活音も気になりにくく、また、フローリングのお部屋なのでお掃除もラクラク。キッチンはシステムキッチン仕様になっていますので、お料理好きの方にもぴったり。バス・トイレは別なので、のんびりお風呂タイムも楽しめるでしょう。また、雨の日でも浴室乾燥機を使えば、お洗濯も問題ありません。
通信設備面では、インターネット接続が可能です。また、BSアンテナ・CSアンテナがありCATVにも対応しているので、おうち時間も充実するでしょう(別途工事、契約料が必要な場合あり)。
共用部には宅配ボックスが設定されているので、不在の時にも荷物を受け取ることができます。
このお部屋は2階以上に位置しているので、通行人や周囲の住人からの視線が気になりにくく、防犯面でも安心。建物のエントランスはオートロックがついており、インターホンにはTVモニタもついているため、相手の顔を確認してから来客対応することができます。
人気の角部屋で周囲の居住者の生活音も気になりにくく、また、フローリングのお部屋なのでお掃除もラクラク。キッチンはシステムキッチン仕様になっていますので、お料理好きの方にもぴったり。バス・トイレは別なので、のんびりお風呂タイムも楽しめるでしょう。また、雨の日でも浴室乾燥機を使えば、お洗濯も問題ありません。
通信設備面では、インターネット接続が可能です。また、BSアンテナ・CSアンテナがありCATVにも対応しているので、おうち時間も充実するでしょう(別途工事、契約料が必要な場合あり)。
共用部には宅配ボックスが設定されているので、不在の時にも荷物を受け取ることができます。
お金・契約の情報
※「-」と表示されているものは、実際は料金が発生するものもございます。詳細はお問い合わせください。
| 家賃 | 7.5万円 | 管理費・共益費 | 4,000円 |
|---|---|---|---|
| 敷金 | 7.5万円 | 礼金 | 7.5万円 |
| 入居決定でお祝い金最大100,000円 | |||
| 保証金 | - | 償却・敷引 | - |
| 住宅保険料 | - | 更新料 | - |
| 保証会社利用 | 必須 | 保証会社名 | - |
| 保証会社費用 | - | 保証会社備考 | 保証会社利用必 初回総賃料:50%、継続保証委託料:10000円/年、口座振替手数料330円。 |
| 契約形態 | - | 契約期間 | - |
| 入居・引渡期間 | - | 現況 | - |
| 契約備考 | 【電話問い合わせ限定】仲介手数料0円(対象物件)退去時クリーニング代実費。短期解約違約金あり 2年未満総賃料1か月。 合計3.96万円(内訳:鍵交換代3.96万円) 24時間サポート 月額1430円 1K 事務所利用不可 普通借家2年 損保【1.8万円2年】 バストイレ別、エアコン、ガスコンロ対応、クロゼット、フローリング、TVインターホン、浴室乾燥機、室内洗濯置、シューズボックス、システムキッチン、角住戸、温水洗浄便座、脱衣所、洗面所独立、洗面化粧台、2口コンロ、宅配ボックス、CATV、2面採光、BS・CS、防犯カメラ、保証人不要、2沿線利用可、CS、ダブルロックキー、2駅利用可、3駅以上利用可、駅徒歩5分以内、敷地内ごみ置き場、都市ガス、洗面所にドア、BS 入居日:'26年4月上旬 | ||
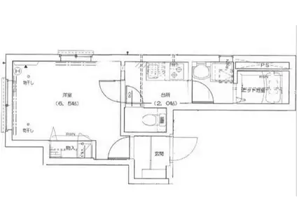
部屋の情報
| 間取り | 1K | 専有面積 | 22.51m2 |
|---|---|---|---|
| 所在階 / 向き | 2階 / 西 | バルコニー面積 | - |
| 水道 / ガス | - | ||
| 設備 | バス・トイレ別、2階以上、テレビドアホン、宅配ボックス、浴室乾燥機、システムキッチン、エアコン、温水洗浄便座、角部屋、フローリング、洗髪洗面化粧台、2口コンロ、コンロ:ガス、CATV、CSアンテナ、BSアンテナ、洗濯機:室内 | ||
| 当社物件ID | 5071485 | ||
建物の情報
| 建物名 | ドミールK | ||
|---|---|---|---|
| 所在地 | 東京都中野区若宮 | ||
| 交通 | 西武新宿線 都立家政駅 徒歩5分 西武新宿線 鷺ノ宮駅 徒歩11分 JR総武線 高円寺駅 徒歩19分 | ||
| 階数 | 3階建 | 総戸数 | - |
| 築年月 | 2008年12月 / 築18年 | エレベーター | - |
| 駐車場 | なし | バイク置き場 | - |
| 駐輪場 | - | 管理人/管理会社 | - |
| 周辺環境 | その他 都立家政駅(その他)まで407m その他 西中野小学校(小学校)まで1621m その他 緑野中学校(中学校)まで1723m その他 まいばすけっと 都立家政駅南店(スーパー)まで208m その他 ローソン 都立家政店(コンビニ)まで152m その他 セブンイレブン中野都立家政店(コンビニ)まで316m | ||
| 建物種別 | マンション | 建物構造 | 鉄骨造 |
この部屋の取扱い不動産会社
| 会社名 | (株)Vision高田馬場店(SUUMO経由) | ||
|---|---|---|---|
| 所在地 | 東京都新宿区高田馬場3-3-1 キカワビル3階 | 交通 | - |
| 営業時間 | 10~19時 | 定休日 | 不定休 |
| 免許番号 | 東京都知事96944 | 取引態様 | 仲介 |
| 不動産会社管理番号 | 100487116403 | 当社管理番号 | 89 |
| 所属団体 | (公社)東京都宅地建物取引業協会会員 | ||
| 公正取引協議会 | (公社)首都圏不動産公正取引協議会加盟 | ||
| 取扱い物件情報 | 物件詳細へ | ||
※各種情報と現状に差異がある場合は、現状優先となります。問い合わせをすることで、より詳しい条件、情報を確認する事ができます。
提供:(株)Vision高田馬場店(SUUMO経由)
この物件が気になったら掲載期限まであと11日
ドミールKに条件(家賃・エリア)が近い物件一覧
| 写真 | 家賃 管理費等 | 敷金 礼金 | 間取り 専有面積 | 築年数 | 最寄り駅 所在地 | キープ | 詳細 |
|---|---|---|---|---|---|---|---|
アパート レオパレス光が丘(1K/2階) | |||||||
![]() | 8.9万円 7,500円 | なし 8.9万円 | 1K 19.87m2 | 築24年 | 都営大江戸線 光が丘駅 徒歩10分 都営大江戸線 練馬春日町駅 徒歩12分 東京メトロ有楽町線 平和台駅(東京) 徒歩29分 東京都練馬区田柄 | 詳細を見る | |
アパート サニーハイツ(1K/2階) | |||||||
![]() | 5.9万円 3,000円 | なし なし | 1K 15.9m2 | 築36年 | 中央本線 荻窪駅 徒歩8分 東京都杉並区天沼3丁目 | 詳細を見る | |
マンション 番衆エムエスビル(ワンルーム/2階) | |||||||
![]() | 9.5万円 なし | 9.5万円 9.5万円 | ワンルーム 22.72m2 | 築40年 | 東京メトロ丸ノ内線 新宿御苑前駅 徒歩7分 東京メトロ丸ノ内線 新宿三丁目駅 徒歩7分 東京メトロ副都心線 東新宿駅 徒歩14分 東京都新宿区新宿 | 詳細を見る | |
マンション LUDENS練馬(ワンルーム/1階) | |||||||
![]() | 7.4万円 1.2万円 | なし なし | ワンルーム 18.75m2 | 築8年 | 都営大江戸線 練馬駅 徒歩8分 西武豊島線 豊島園駅 徒歩16分 西武池袋線 桜台駅(東京) 徒歩17分 東京都練馬区豊玉中 | 詳細を見る | |
マンション アレーズ南池袋(1K/7階) | |||||||
![]() | 11.9万円 8,000円 | なし 11.9万円 | 1K 27.09m2 | 築14年 | 東京地下鉄有楽町線 東池袋駅 徒歩4分 東京都豊島区南池袋4丁目 | 詳細を見る | |
アパート レギュームテデ成田東(ワンルーム/1階) | |||||||
![]() | 6.2万円 4,000円 | なし 6.2万円 | ワンルーム 11.04m2 | 築4年 | 東京メトロ丸ノ内線 南阿佐ケ谷駅 徒歩8分 JR総武線 阿佐ケ谷駅 徒歩11分 JR総武線 荻窪駅 徒歩17分 東京都杉並区成田東 | 詳細を見る | |
アパート 第1石井コーポ(2DK/2階) | |||||||
![]() | 7.2万円 2,000円 | 7.2万円 7.2万円 | 2DK 38m2 | 築57年 | 西武池袋線 保谷駅 徒歩13分 西武池袋線 大泉学園駅 徒歩27分 西武池袋線 ひばりケ丘駅(東京) 徒歩33分 東京都練馬区西大泉 | 詳細を見る | |
アパート NOVAハイツ早稲田(1K/1階) | |||||||
![]() | 6.5万円 1,000円 | 6.5万円 なし | 1K 19.87m2 | 築38年 | 都電荒川線 面影橋駅 徒歩6分 JR山手線 高田馬場駅 徒歩9分 東京メトロ副都心線 西早稲田駅 徒歩9分 東京都新宿区西早稲田 | 詳細を見る | |




/105x80-f1-q70-wp1)


