賃貸マンション
メゾン・コパンの賃貸物件情報(1K/3階)
| 家賃 | 管理費等 | 敷金 | 礼金 | 間取り | 専有面積 |
|---|---|---|---|---|---|
| 6.8万円 | 6,000円 | なし | 17万円 | 1K | 29.28m2 |
入居決定でお祝い金最大100,000円
- 保証金
- -
- 償却・敷引
- -
- 築年数
- 築5年
- 所在階
- 3階
- 向き
- 西
Point
2022年築!人気物件に空きがでました!龍谷大学徒歩圏内!インターネット無料、浴室乾燥機、温水洗浄便座、独立洗面台、宅配ボックス等、設備充実しております。お気軽にお問い合わせください。
提供:(株)ユナイテッド・ウィル・キョウト(SUUMO経由)

詳細情報 メゾン・コパン
物件紹介
メゾン・コパンは京阪本線藤森駅から徒歩8分にあり、駅近で通勤通学に便利なマンションです。
このお部屋は2階以上に位置しているので、通行人や周囲の住人からの視線が気になりにくく、防犯面でも安心。建物のエントランスはオートロックがついており、インターホンにはTVモニタもついているため、相手の顔を確認してから来客対応することができます。
おしゃれなデザイナーズ物件!フローリングのお部屋なのでお掃除もラクラク。キッチンはシステムキッチン仕様になっていますので、お料理好きの方にもぴったり。バス・トイレは別なので、のんびりお風呂タイムも楽しめるでしょう。また、雨の日でも浴室乾燥機を使えば、お洗濯も問題ありません。
通信設備面では、インターネットが無料で使えるので、月々の出費を抑えられるのも魅力です(別途工事等が必要な場合あり)。
建物にはエレベーターがついているので、重い荷物があっても安心。共用部には宅配ボックスが設定されているので、不在の時にも荷物を受け取ることができます。
このお部屋は2階以上に位置しているので、通行人や周囲の住人からの視線が気になりにくく、防犯面でも安心。建物のエントランスはオートロックがついており、インターホンにはTVモニタもついているため、相手の顔を確認してから来客対応することができます。
おしゃれなデザイナーズ物件!フローリングのお部屋なのでお掃除もラクラク。キッチンはシステムキッチン仕様になっていますので、お料理好きの方にもぴったり。バス・トイレは別なので、のんびりお風呂タイムも楽しめるでしょう。また、雨の日でも浴室乾燥機を使えば、お洗濯も問題ありません。
通信設備面では、インターネットが無料で使えるので、月々の出費を抑えられるのも魅力です(別途工事等が必要な場合あり)。
建物にはエレベーターがついているので、重い荷物があっても安心。共用部には宅配ボックスが設定されているので、不在の時にも荷物を受け取ることができます。
お金・契約の情報
※「-」と表示されているものは、実際は料金が発生するものもございます。詳細はお問い合わせください。
| 家賃 | 6.8万円 | 管理費・共益費 | 6,000円 |
|---|---|---|---|
| 敷金 | なし | 礼金 | 17万円 |
| 入居決定でお祝い金最大100,000円 | |||
| 保証金 | - | 償却・敷引 | - |
| 住宅保険料 | - | 更新料 | - |
| 保証会社利用 | 必須 | 保証会社名 | - |
| 保証会社費用 | - | 保証会社備考 | 保証会社利用必 初回:50% 更新時:1万円/1年 |
| 契約形態 | - | 契約期間 | - |
| 入居・引渡期間 | 相談 | 現況 | - |
| 契約備考 | 巡回管理/京都市内のお部屋探しは弊社にお任せ下さい!現地待ち合わせ、オンライン内見も対応可能です。お気軽にご相談ください。 合計3.39万円(内訳:インターネット初回手数料0.99万円メゾンクラブ2.4万円) 更新料 新賃料1.00ヶ月分 1K 普通借家2年 損保【1.6万円2年】 バストイレ別、バルコニー、エアコン、クロゼット、フローリング、TVインターホン、浴室乾燥機、オートロック、室内洗濯置、陽当り良好、シューズボックス、システムキッチン、温水洗浄便座、脱衣所、エレベーター、洗面所独立、洗面化粧台、2口コンロ、駐輪場、宅配ボックス、光ファイバー、敷金不要、防犯カメラ、IHクッキングヒーター、バイク置場、全居室フローリング、デザイナーズ、2沿線利用可、クッションフロア、仲手0.55ヶ月、ネット使用料不要、ダブルロックキー、築2年以内、24時間換気システム、耐火構造、耐震構造、2駅利用可、3駅以上利用可、駅徒歩10分以内、耐風構造、24時間ゴミ出し可、敷地内ごみ置き場、寝室8畳以上、都市ガス、洗面所にドア、年内入居可、年度内入居可、IT重説対応物件、通風良好 | ||
部屋の情報
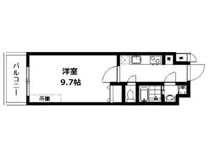
| 間取り | 1K | 専有面積 | 29.28m2 |
|---|---|---|---|
| 所在階 / 向き | 3階 / 西 | バルコニー面積 | - |
| 水道 / ガス | - | ||
| 設備 | バス・トイレ別、2階以上、オートロック、テレビドアホン、宅配ボックス、浴室乾燥機、インターネット対応、システムキッチン、エアコン、エレベーター、温水洗浄便座、バルコニー、フローリング、洗髪洗面化粧台、2口コンロ、コンロ:IH、デザイナーズ、インターネット使用料無料、洗濯機:室内 | ||
| 当社物件ID | 101130593 | ||
建物の情報
| 建物名 | メゾン・コパン | ||
|---|---|---|---|
| 所在地 | 京都府京都市伏見区 | ||
| 交通 | 京阪本線 藤森駅 徒歩8分 京阪本線 龍谷大前深草駅 徒歩13分 近鉄京都線 竹田駅(京都) 徒歩13分 | ||
| 階数 | 5階建 | 総戸数 | - |
| 築年月 | 2021年11月 / 築5年 | エレベーター | あり |
| 駐車場 | なし | バイク置き場 | あり |
| 駐輪場 | あり | 管理人/管理会社 | - |
| 周辺環境 | その他 セブンイレブン 深草西浦8丁目店(コンビニ)まで277m その他 ドラッグユタカ伏見西浦店(ドラッグストア)まで391m その他 平和書店 TSUTAYA 藤の森店(レンタルビデオ)まで421m その他 MaxValu(マックスバリュ) 藤森店(スーパー)まで711m その他 龍谷大学 深草キャンパス(大学・短大)まで619m その他 ファミリーマート 京都深草フチ町店(コンビニ)まで475m | ||
| 建物種別 | マンション | 建物構造 | RC(鉄筋コンクリート) |
この部屋の取扱い不動産会社
| 会社名 | (株)ユナイテッド・ウィル・キョウト(SUUMO経由) | ||
|---|---|---|---|
| 所在地 | 京都府京都市伏見区深草大亀谷大山町 21-1 | 交通 | - |
| 営業時間 | 10:00~18:00 | 定休日 | 水曜日 |
| 免許番号 | 国土交通大臣10752 | 取引態様 | 仲介 |
| 不動産会社管理番号 | 100482160962 | 当社管理番号 | 89 |
| 所属団体 | (公社)京都府宅地建物取引業協会会員 | ||
| 公正取引協議会 | (公社)近畿地区不動産公正取引協議会加盟 | ||
| 取扱い物件情報 | 物件詳細へ | ||
※各種情報と現状に差異がある場合は、現状優先となります。問い合わせをすることで、より詳しい条件、情報を確認する事ができます。
提供:(株)ユナイテッド・ウィル・キョウト(SUUMO経由)
この物件が気になったら掲載期限まであと11日
メゾン・コパンに条件(家賃・エリア)が近い物件一覧
| 写真 | 家賃 管理費等 | 敷金 礼金 | 間取り 専有面積 | 築年数 | 最寄り駅 所在地 | キープ | 詳細 |
|---|---|---|---|---|---|---|---|
アパート 京阪電気鉄道京阪線 橋本駅(京都) 徒歩12分 築9年(2LDK/1階) | |||||||
![]() | 9.4万円 8,000円 | なし 15万円 | 2LDK 59.69m2 | 築9年 | 京阪電気鉄道京阪線 橋本駅(京都) 徒歩12分 京阪電気鉄道京阪線 樟葉駅 徒歩33分 京都府八幡市橋本東原 | 詳細を見る | |
アパート エーデルハイム南端(1LDK/1階) | |||||||
![]() | 8.5万円 8,000円 | なし 15万円 | 1LDK 44.45m2 | 築9年 | 奈良線 木幡駅(JR) 徒歩11分 京阪電気鉄道宇治線 木幡駅(京阪) 徒歩14分 京都府宇治市木幡南端 | 詳細を見る | |
マンション ステラ長岡(ワンルーム/3階) | |||||||
![]() | 4.8万円 2,000円 | なし なし | ワンルーム 23.07m2 | 築40年 | 阪急電鉄京都線 長岡天神駅 徒歩5分 東海道本線 長岡京駅 徒歩7分 京都府長岡京市開田3丁目 | 詳細を見る | |
マンション 近鉄京都線 向島駅 徒歩15分 築46年(2LDK/8階) | |||||||
![]() | 6万円 2,700円 | 6万円 なし | 2LDK 57.72m2 | 築46年 | 近鉄京都線 向島駅 徒歩15分 京阪電気鉄道宇治線 観月橋駅 徒歩20分 京都府京都市伏見区向島藤ノ木町 | 詳細を見る | |
アパート 京阪電気鉄道宇治線 観月橋駅 徒歩3分 築1年(1K/1階) | |||||||
![]() | 6.45万円 4,000円 | なし 6.45万円 | 1K 21.68m2 | 築1年 | 京阪電気鉄道宇治線 観月橋駅 徒歩3分 奈良線 桃山駅 徒歩10分 京都府京都市伏見区桃陵町 | 詳細を見る | |
マンション TSクエスト(1K/3階) | |||||||
![]() | 5.5万円 5,000円 | なし 5.5万円 | 1K 38m2 | 築37年 | 奈良線 宇治駅(JR) 徒歩6分 京阪電気鉄道宇治線 宇治駅(京阪) 徒歩13分 近鉄京都線 小倉駅(京都) 徒歩14分 京都府宇治市宇治若森 | 詳細を見る | |
マンション 東海道本線 長岡京駅 徒歩3分 築39年(1K/3階) | |||||||
![]() | 4.2万円 3,000円 | なし なし | 1K 21.05m2 | 築39年 | 東海道本線 長岡京駅 徒歩3分 阪急電鉄京都線 長岡天神駅 徒歩10分 京都府長岡京市神足1丁目 | 詳細を見る | |








