賃貸マンション
フェニックス下目黒の賃貸物件情報(ワンルーム/3階)
| 家賃 | 管理費等 | 敷金 | 礼金 | 間取り | 専有面積 |
|---|---|---|---|---|---|
| 10.2万円 | 1.3万円 | 10.2万円 | 10.2万円 | ワンルーム | 25.17m2 |
入居決定でお祝い金最大100,000円
- 保証金
- -
- 償却・敷引
- -
- 築年数
- 築25年
- 所在階
- 3階
- 向き
- 北東
Point
《創業30年・東急沿線中心に10店舗・宅建保有率80%超》経験×エリア×スキルが強みの不動産会社です!【未公開情報多数】【初期費用分割払い可能】様々な角度からご提案致します★お気軽にお問合せください★
提供:(株)FINDERS KICHIJOJI(SUUMO経由)

詳細情報 フェニックス下目黒
物件紹介
フェニックス下目黒はJR山手線目黒駅から徒歩9分にあり、駅近で通勤通学に便利なマンションです。
このお部屋は2階以上に位置しているので、通行人や周囲の住人からの視線が気になりにくく、防犯面でも安心。建物のエントランスはオートロックがついており、インターホンにはTVモニタもついているため、相手の顔を確認してから来客対応することができます。
人気の角部屋で周囲の居住者の生活音も気になりにくく、また、フローリングのお部屋なのでお掃除もラクラク。キッチンはシステムキッチン仕様になっていますので、お料理好きの方にもぴったり。バス・トイレは別なので、のんびりお風呂タイムも楽しめるでしょう。また、雨の日でも浴室乾燥機を使えば、お洗濯も問題ありません。
通信設備面では、インターネットが無料で使えるので、月々の出費を抑えられるのも魅力です(別途工事等が必要な場合あり)。
建物にはエレベーターがついているので、重い荷物があっても安心。共用部には宅配ボックスが設定されているので、不在の時にも荷物を受け取ることができます。
このお部屋は2階以上に位置しているので、通行人や周囲の住人からの視線が気になりにくく、防犯面でも安心。建物のエントランスはオートロックがついており、インターホンにはTVモニタもついているため、相手の顔を確認してから来客対応することができます。
人気の角部屋で周囲の居住者の生活音も気になりにくく、また、フローリングのお部屋なのでお掃除もラクラク。キッチンはシステムキッチン仕様になっていますので、お料理好きの方にもぴったり。バス・トイレは別なので、のんびりお風呂タイムも楽しめるでしょう。また、雨の日でも浴室乾燥機を使えば、お洗濯も問題ありません。
通信設備面では、インターネットが無料で使えるので、月々の出費を抑えられるのも魅力です(別途工事等が必要な場合あり)。
建物にはエレベーターがついているので、重い荷物があっても安心。共用部には宅配ボックスが設定されているので、不在の時にも荷物を受け取ることができます。
お金・契約の情報
※「-」と表示されているものは、実際は料金が発生するものもございます。詳細はお問い合わせください。
| 家賃 | 10.2万円 | 管理費・共益費 | 1.3万円 |
|---|---|---|---|
| 敷金 | 10.2万円 | 礼金 | 10.2万円 |
| 入居決定でお祝い金最大100,000円 | |||
| 保証金 | - | 償却・敷引 | - |
| 住宅保険料 | - | 更新料 | - |
| 保証会社利用 | 必須 | 保証会社名 | - |
| 保証会社費用 | - | 保証会社備考 | 保証会社利用必 トーシンライフ、オリコフォレントインシュア、全保連/保証料:初回=賃料等×50%、月額=賃料等×1% |
| 契約形態 | 定期借家 | 契約期間 | 2年 |
| 入居・引渡期間 | 相談 | 現況 | - |
| 契約備考 | 《地域創業30年・東急沿線中心に10店舗・宅建保有率80%超》経験×エリア×スキルが強みの不動産会社です!【未公開情報多数】初期費用の分割払いも相談可能です!様々な角度からご提案いたします。★お気軽にお問合せください★※掲載情報は画像含め現況優先 合計2.75万円(内訳:鍵交換費用(税込)27500円) ■契約時:当月分+翌月分の賃料・管理費をお支払い頂きます ■解約時:ルームクリーニング費用及び借主負担分の原状回復費用をお支払い頂きます、家財保険+付帯サービス(税込)1735円/月 ワンルーム 定期借家2年 バストイレ別、バルコニー、エアコン、ガスコンロ対応、クロゼット、フローリング、TVインターホン、浴室乾燥機、オートロック、室内洗濯置、シューズボックス、システムキッチン、角住戸、温水洗浄便座、脱衣所、エレベーター、洗面所独立、洗面化粧台、2口コンロ、駐輪場、宅配ボックス、外壁タイル張り、2面採光、防犯カメラ、照明付、分譲賃貸、グリル付、敷金1ヶ月、バイク置場、2沿線利用可、ネット専用回線、ネット使用料不要、人感照明センサー、耐震構造、3駅以上利用可、駅徒歩10分以内、24時間ゴミ出し可、クリーニングボックス、敷地内ごみ置き場、都市ガス、LAN、マルチメディアコンセント、礼金1ヶ月、IT重説対応物件 | ||
部屋の情報
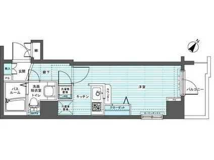
| 間取り | ワンルーム | 専有面積 | 25.17m2 |
|---|---|---|---|
| 所在階 / 向き | 3階 / 北東 | バルコニー面積 | 3m2 |
| 水道 / ガス | - | ||
| 設備 | バス・トイレ別、2階以上、オートロック、テレビドアホン、宅配ボックス、浴室乾燥機、インターネット対応、システムキッチン、エアコン、エレベーター、温水洗浄便座、角部屋、バルコニー、フローリング、洗髪洗面化粧台、2口コンロ、コンロ:ガス、インターネット使用料無料、洗濯機:室内 | ||
| 当社物件ID | 160702842 | ||
建物の情報
| 建物名 | フェニックス下目黒 | ||
|---|---|---|---|
| 所在地 | 東京都目黒区下目黒 | ||
| 交通 | JR山手線 目黒駅 徒歩9分 東急目黒線 不動前駅 徒歩9分 東急目黒線 武蔵小山駅 徒歩19分 | ||
| 階数 | 12階建 | 総戸数 | 33戸 |
| 築年月 | 2001年10月 / 築25年 | エレベーター | あり |
| 駐車場 | なし | バイク置き場 | あり |
| 駐輪場 | あり | 管理人/管理会社 | - |
| 周辺環境 | その他 目黒駅(その他)まで907m | ||
| 建物種別 | マンション | 建物構造 | SRC(鉄骨鉄筋コンクリート) |
この部屋の取扱い不動産会社
| 会社名 | Balleggs (株)バレッグス鷹番センター(SUUMO経由) | ||
|---|---|---|---|
| 所在地 | 東京都目黒区鷹番2-5-2 市川クリニックヴィラ1・2階 | 交通 | - |
| 営業時間 | 10時~18時(電話受付は12時~13時以外) | 定休日 | 火曜日、水曜日 |
| 免許番号 | 東京都知事62730 | 取引態様 | 仲介 |
| 不動産会社管理番号 | 100503596526 | 当社管理番号 | 89 |
| 所属団体 | (公社)東京都宅地建物取引業協会会員 | ||
| 公正取引協議会 | (公社)首都圏不動産公正取引協議会加盟 | ||
| 取扱い物件情報 | 物件詳細へ | ||
※各種情報と現状に差異がある場合は、現状優先となります。問い合わせをすることで、より詳しい条件、情報を確認する事ができます。
提供:Balleggs (株)バレッグス鷹番センター(SUUMO経由)
この物件が気になったら掲載期限まであと11日
フェニックス下目黒に条件(家賃・エリア)が近い物件一覧
| 写真 | 家賃 管理費等 | 敷金 礼金 | 間取り 専有面積 | 築年数 | 最寄り駅 所在地 | キープ | 詳細 |
|---|---|---|---|---|---|---|---|
アパート ミズノハイムA棟(1K/1階) | |||||||
![]() | 6.5万円 2,000円 | 6.5万円 なし | 1K 20.25m2 | 築37年 | 京浜急行電鉄本線 梅屋敷駅(東京) 徒歩7分 京浜急行電鉄本線 大森町駅 徒歩11分 東京都大田区大森西5丁目 | 詳細を見る | |
マンション エクセルⅡ(1K/3階) | |||||||
![]() | 7.6万円 4,000円 | 7.6万円 なし | 1K 19.37m2 | 築18年 | 京浜急行電鉄本線 梅屋敷駅(東京) 徒歩15分 京浜急行電鉄空港線 大鳥居駅 徒歩19分 東京都大田区北糀谷1丁目 | 詳細を見る | |
マンション ミレニアムハイム(1LDK/4階) | |||||||
![]() | 14.9万円 5,000円 | 14.9万円 14.9万円 | 1LDK 43.36m2 | 築26年 | 京浜東北・根岸線 蒲田駅 徒歩18分 京浜急行電鉄本線 大森町駅 徒歩18分 東京都大田区中央8丁目 | 詳細を見る | |
マンション アクアマーレ大森(1LDK/1階) | |||||||
![]() | 13.2万円 4,000円 | 13.2万円 26.4万円 | 1LDK 44.77m2 | 築15年 | 京浜急行電鉄本線 梅屋敷駅(東京) 徒歩15分 京浜急行電鉄本線 大森町駅 徒歩15分 東京都大田区大森西4丁目 | 詳細を見る | |
マンション サンヴァレンティーノ(1K/3階) | |||||||
![]() | 10.5万円 5,000円 | 10.5万円 10.5万円 | 1K 30.66m2 | 築26年 | 京浜東北・根岸線 蒲田駅 徒歩7分 京浜急行電鉄本線 京急蒲田駅 徒歩13分 東京都大田区蒲田1丁目 | 詳細を見る | |
マンション BLANCHE(1LDK/1階) | |||||||
![]() | 12万円 3,000円 | 12万円 12万円 | 1LDK 34.23m2 | 築10年 | 東急池上線 久が原駅 徒歩2分 東急池上線 御嶽山駅 徒歩8分 東急多摩川線 鵜の木駅 徒歩12分 東京都大田区東嶺町 | 詳細を見る | |
マンション メゾンド・シャンテ(1K/1階) | |||||||
![]() | 12万円 3,000円 | 12万円 なし | 1K 27.95m2 | 築4年 | 京浜急行電鉄本線 梅屋敷駅(東京) 徒歩6分 京浜急行電鉄本線 京急蒲田駅 徒歩13分 東京都大田区蒲田2丁目 | 詳細を見る | |







