賃貸アパート
KハウスRの賃貸物件情報(1K/1階)
| 家賃 | 管理費等 | 敷金 | 礼金 | 間取り | 専有面積 |
|---|---|---|---|---|---|
| 5.6万円 | 2,000円 | なし | なし | 1K | 23.18m2 |
入居決定でお祝い金最大100,000円
- 保証金
- -
- 償却・敷引
- -
- 築年数
- 築10年
- 所在階
- 1階
- 向き
- 東
Point
当物件は初期費用のクレジットカード決済や分割が可能になります。また入居審査や入居希望日、初期費用のご相談もお気軽にお問合せください。
提供:スマイファミリー 大宮店(株)セレンホーム(SUUMO経由)

詳細情報 KハウスR
物件紹介
KハウスRは東武伊勢崎線草加駅から徒歩13分にあるアパートです。
建物のエントランスはオートロックがついており、インターホンにはTVモニタもついているため、相手の顔を確認してから来客対応することができます。
人気の角部屋。周囲の居住者の生活音も気になりにくい場所です。キッチンはシステムキッチン仕様になっていますので、お料理好きの方にもぴったり。バス・トイレは別なので、のんびりお風呂タイムも楽しめるでしょう。また、雨の日でも浴室乾燥機を使えば、お洗濯も問題ありません。
建物のエントランスはオートロックがついており、インターホンにはTVモニタもついているため、相手の顔を確認してから来客対応することができます。
人気の角部屋。周囲の居住者の生活音も気になりにくい場所です。キッチンはシステムキッチン仕様になっていますので、お料理好きの方にもぴったり。バス・トイレは別なので、のんびりお風呂タイムも楽しめるでしょう。また、雨の日でも浴室乾燥機を使えば、お洗濯も問題ありません。
お金・契約の情報
※「-」と表示されているものは、実際は料金が発生するものもございます。詳細はお問い合わせください。
| 家賃 | 5.6万円 | 管理費・共益費 | 2,000円 |
|---|---|---|---|
| 敷金 | なし | 礼金 | なし |
| フリーレント | あり | ||
| 入居決定でお祝い金最大100,000円 | |||
| 保証金 | - | 償却・敷引 | - |
| 住宅保険料 | - | 更新料 | - |
| 保証会社利用 | 必須 | 保証会社名 | - |
| 保証会社費用 | - | 保証会社備考 | 保証会社利用必 保証会社 初回0円(定額プラン込み) |
| 契約形態 | - | 契約期間 | - |
| 入居・引渡期間 | 即時 | 現況 | - |
| 契約備考 | 【店頭へ初回ご来店・お問合わせのお客様、当物件限定、仲介手数料0円】経年劣化による修繕などで掲載している写真や設備などと実際の設備が異なる場合があります。お問い合わせやご契約の際は、その点にご留意頂き現状優先でのお貸出しになる事をご了承ください。※退去時クリーニング費用(退去時精算・借主負担)入居審査事前相談可能(外国人可、生活保護など)※短期解約違約金有 合計11万円(内訳:初期費用定額プラン11万円) 更新料 新賃料1.00ヶ月分 ルームサポート 月額2700円 1K フリーレント1ヶ月1ヶ月 普通借家2年 損保【要】 バストイレ別、バルコニー、エアコン、TVインターホン、浴室乾燥機、オートロック、室内洗濯置、システムキッチン、追焚機能浴室、角住戸、温水洗浄便座、洗面所独立、洗面化粧台、2口コンロ、即入居可、礼金不要、敷金不要、IHクッキングヒーター、オートバス、保証人不要、仲介手数料不要、フリーレント、2駅利用可、3駅以上利用可、敷地内ごみ置き場、シャッター、室内物干機、敷金・礼金不要、保証会社利用可、IT重説対応物件 | ||
部屋の情報
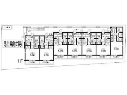
| 間取り | 1K | 専有面積 | 23.18m2 |
|---|---|---|---|
| 所在階 / 向き | 1階 / 東 | バルコニー面積 | - |
| 水道 / ガス | - | ||
| 設備 | バス・トイレ別、オートロック、テレビドアホン、浴室乾燥機、追い焚き、システムキッチン、エアコン、温水洗浄便座、角部屋、バルコニー、洗髪洗面化粧台、2口コンロ、コンロ:IH、洗濯機:室内 | ||
| 当社物件ID | 158651093 | ||
建物の情報
| 建物名 | KハウスR | ||
|---|---|---|---|
| 所在地 | 埼玉県草加市草加 | ||
| 交通 | 東武伊勢崎線 草加駅 徒歩13分 東武伊勢崎線 獨協大学前駅 徒歩22分 東武伊勢崎線 谷塚駅 徒歩30分 | ||
| 階数 | 2階建 | 総戸数 | - |
| 築年月 | 2016年03月 / 築10年 | エレベーター | - |
| 駐車場 | 近隣 200m10000円 | バイク置き場 | - |
| 駐輪場 | - | 管理人/管理会社 | - |
| 周辺環境 | その他 業務スーパー 花栗店(スーパー)まで493m その他 ビッグ・エー草加住吉店(スーパー)まで983m その他 プラザ薬局草加市立病院前(ドラッグストア)まで368m その他 草加八潮医師会准看護学校(その他)まで3658m その他 獨協大学 総合企画課(大学・短大)まで1338m その他 ファミリーマート 草加二丁目店(コンビニ)まで50m | ||
| 建物種別 | アパート | 建物構造 | 木造 |
この部屋の取扱い不動産会社
| 会社名 | スマイファミリー 大宮店(株)セレンホーム(SUUMO経由) | ||
|---|---|---|---|
| 所在地 | 埼玉県さいたま市中央区上落合9-8-12 エクセレント与野201 | 交通 | - |
| 営業時間 | 9時~18時 | 定休日 | 水曜 第2・第4火曜日 |
| 免許番号 | 埼玉県知事25681 | 取引態様 | 仲介 |
| 不動産会社管理番号 | 100472829475 | 当社管理番号 | 89 |
| 取扱い物件情報 | 物件詳細へ | ||
※各種情報と現状に差異がある場合は、現状優先となります。問い合わせをすることで、より詳しい条件、情報を確認する事ができます。
提供:スマイファミリー 大宮店(株)セレンホーム(SUUMO経由)
この物件が気になったら掲載期限まであと10日
KハウスRに条件(家賃・エリア)が近い物件一覧
| 写真 | 家賃 管理費等 | 敷金 礼金 | 間取り 専有面積 | 築年数 | 最寄り駅 所在地 | キープ | 詳細 |
|---|---|---|---|---|---|---|---|
アパート 第2明徳団地(1DK/2階) | |||||||
![]() | 5万円 2,000円 | 5万円 なし | 1DK 28.76m2 | 築58年 | JR武蔵野線 南越谷駅 徒歩8分 東武伊勢崎線 新越谷駅 徒歩9分 東武伊勢崎線 蒲生駅 徒歩16分 埼玉県越谷市登戸町 | 詳細を見る | |
アパート レオパレスあい(ワンルーム/2階) | |||||||
![]() | 6.2万円 5,000円 | なし 6.2万円 | ワンルーム 31.05m2 | 築20年 | JR武蔵野線 吉川美南駅 徒歩23分 埼玉県三郷市彦糸 | 詳細を見る | |
マンション ラディアントコート(1K/4階) | |||||||
![]() | 7.1万円 7,000円 | 7.1万円 なし | 1K 30.46m2 | 築23年 | JR京浜東北線 西川口駅 徒歩4分 JR京浜東北線 蕨駅 徒歩25分 JR京浜東北線 川口駅 徒歩30分 埼玉県川口市西川口 | 詳細を見る | |
マンション ピース&ウェルネス(1K/2階) | |||||||
![]() | 6.9万円 4,000円 | なし 6.9万円 | 1K 28.56m2 | 築9年 | 埼玉高速鉄道 東川口駅 徒歩12分 JR武蔵野線 東川口駅 徒歩14分 埼玉高速鉄道 浦和美園駅 徒歩29分 埼玉県川口市東川口 | 詳細を見る | |
マンション ロイヤルパーク(1K/4階) | |||||||
![]() | 8.7万円 3,300円 | なし 8.7万円 | 1K 27.68m2 | 新築 | 埼玉高速鉄道 川口元郷駅 徒歩10分 JR京浜東北線 川口駅 徒歩15分 埼玉県川口市栄町 | 詳細を見る | |
アパート レオパレスフリーダ(1K/1階) | |||||||
![]() | 4.6万円 7,000円 | なし 4.6万円 | 1K 19.87m2 | 築20年 | 東武伊勢崎線 北越谷駅 徒歩24分 埼玉県越谷市大字南荻島 | 詳細を見る | |
マンション クレイノシャルム(1K/2階) | |||||||
![]() | 7.2万円 7,000円 | なし 7.2万円 | 1K 21.81m2 | 築7年 | JR京浜東北線 蕨駅 徒歩24分 埼玉県川口市芝宮根町 | 詳細を見る | |
アパート BELLWOOD(1K/1階) | |||||||
![]() | 4.8万円 3,000円 | なし なし | 1K 22.21m2 | 築19年 | 東武伊勢崎線 せんげん台駅 徒歩11分 埼玉県越谷市千間台東 | 詳細を見る | |









