賃貸マンション
ビレッジハウス伏屋 3号棟の賃貸物件情報(3DK/5階)
| 家賃 | 管理費等 | 敷金 | 礼金 | 間取り | 専有面積 |
|---|---|---|---|---|---|
| 4.87万円 | なし | なし | なし | 3DK | 49.2m2 |
入居決定でお祝い金最大100,000円
- 保証金
- -
- 償却・敷引
- -
- 築年数
- 築63年
- 所在階
- 5階
- 向き
- 南
Point
まずはお問い合わせ!
不動産会社は街のプロ、あなたに合った物件がきっと見つかります。
提供:アパマンショップ泉北深井駅前店

詳細情報 ビレッジハウス伏屋 3号棟
物件紹介
ビレッジハウス伏屋 3号棟は南海泉北線光明池駅から徒歩9分にあり、駅近で通勤通学に便利なマンションです。
このお部屋は2階以上に位置しているので、通行人や周囲の住人からの視線が気になりにくく、防犯面でも安心。インターホンにはTVモニタもついているため、相手の顔を確認してから来客対応することができます。
人気の南向きのお部屋。また、フローリングなのでお掃除もラクラク。キッチンはシステムキッチン仕様になっていますので、お料理好きの方にもぴったり。また、バス・トイレは別で、のんびりお風呂タイムも楽しめるでしょう。
通信設備面では、インターネット接続が可能です(別途工事、契約料が必要な場合あり)。
ペット飼育の相談ができますので、あなたの大切な家族の一員も快適に暮らせるか、ぜひ確認してみてください。
このお部屋は2階以上に位置しているので、通行人や周囲の住人からの視線が気になりにくく、防犯面でも安心。インターホンにはTVモニタもついているため、相手の顔を確認してから来客対応することができます。
人気の南向きのお部屋。また、フローリングなのでお掃除もラクラク。キッチンはシステムキッチン仕様になっていますので、お料理好きの方にもぴったり。また、バス・トイレは別で、のんびりお風呂タイムも楽しめるでしょう。
通信設備面では、インターネット接続が可能です(別途工事、契約料が必要な場合あり)。
ペット飼育の相談ができますので、あなたの大切な家族の一員も快適に暮らせるか、ぜひ確認してみてください。
お金・契約の情報
※「-」と表示されているものは、実際は料金が発生するものもございます。詳細はお問い合わせください。
| 家賃 | 4.87万円 | 管理費・共益費 | なし |
|---|---|---|---|
| 敷金 | なし | 礼金 | なし |
| フリーレント | 0ヶ月 | ||
| 入居決定でお祝い金最大100,000円 | |||
| 保証金 | - | 償却・敷引 | - |
| 住宅保険料 | 1万円(2年) | 更新料 | - |
| 保証会社利用 | - | 保証会社名 | - |
| 保証会社費用 | - | 保証会社備考 | - |
| 契約形態 | - | 契約期間 | - |
| 入居・引渡期間 | - | 現況 | 空室 |
| 入居可能条件 | 2人入居可、高齢者相談、学生可、ペット相談 | ||
| 契約備考 | 契約種類:普通契約、24時間緊急対応、洗面台 | ||
部屋の情報
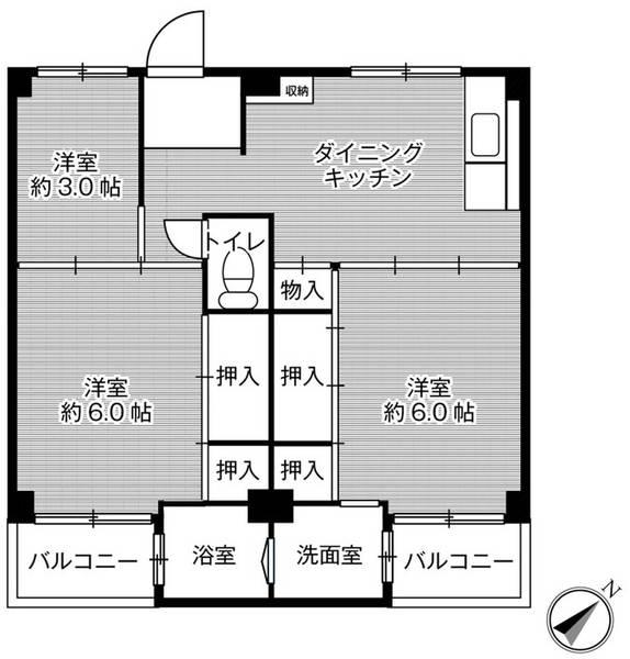
| 間取り | 3DK | 専有面積 | 49.2m2 |
|---|---|---|---|
| 所在階 / 向き | 5階 / 南 | バルコニー面積 | - |
| 水道 / ガス | - | ||
| 設備 | バス・トイレ別、テレビドアホン、エアコン、バルコニー、給湯、洗濯機:室内 | ||
| 当社物件ID | 26836222 | ||
建物の情報
| 建物名 | ビレッジハウス伏屋 3号棟 | ||
|---|---|---|---|
| 所在地 | 大阪府和泉市伏屋町5丁目11-3 | ||
| 交通 | 南海電鉄泉北線 光明池駅 徒歩11分 南海電鉄泉北線 栂・美木多駅 徒歩33分 南海電鉄泉北線 和泉中央駅 徒歩33分 | ||
| 階数 | 5階建 | 総戸数 | - |
| 築年月 | 1963年11月 / 築63年 | エレベーター | - |
| 駐車場 | 空有 7,700円/月 円 | バイク置き場 | - |
| 駐輪場 | - | 管理人/管理会社 | 日勤 |
| 建物種別 | マンション | 建物構造 | RC(鉄筋コンクリート) |
この部屋の取扱い不動産会社
| 会社名 | ビレッジハウス住まい相談センター | ||
|---|---|---|---|
| 所在地 | 愛知県名古屋市中区大須4-10-32 上前津KDビル5階 | 交通 | 名城線「上前津駅」徒歩3分 |
| 営業時間 | 平日:9:00-18:30/土日祝:9:00-18:00 | 定休日 | 年末年始休業:2025年12月27日~2026年1月4日 |
| 免許番号 | 東京都知事(2)第100758号 | 取引態様 | 貸主 |
| 不動産会社管理番号 | 00010904272 | 当社管理番号 | 459 |
| 所属団体 | 公益社団法人東京都宅地建物取引業協会会員 日本賃貸住宅管理協会会員 | ||
| 取扱い物件情報 | 物件詳細へ | ||
※各種情報と現状に差異がある場合は、現状優先となります。問い合わせをすることで、より詳しい条件、情報を確認する事ができます。
提供:ビレッジハウス住まい相談センター
この物件が気になったら掲載期限まであと12日
ビレッジハウス伏屋 3号棟に条件(家賃・エリア)が近い物件一覧
| 写真 | 家賃 管理費等 | 敷金 礼金 | 間取り 専有面積 | 築年数 | 最寄り駅 所在地 | キープ | 詳細 |
|---|---|---|---|---|---|---|---|
マンション 南海電鉄高師浜支線 高師浜駅 徒歩12分 築26年(1K/3階) | |||||||
![]() | 4.8万円 なし | なし 5万円 | 1K 20.09m2 | 築26年 | 南海電鉄高師浜支線 高師浜駅 徒歩12分 南海電鉄高師浜支線 伽羅橋駅 徒歩14分 大阪府高石市綾園1丁目 | 詳細を見る | |
アパート REVITA鳳北町4丁(1LDK/3階) | |||||||
![]() | 6.6万円 5,000円 | なし 6.6万円 | 1LDK 30.43m2 | 築1年 | 阪和線 津久野駅 徒歩10分 阪和線 鳳駅 徒歩12分 南海電鉄南海本線 浜寺公園駅 徒歩26分 大阪府堺市西区鳳北町4丁 | 詳細を見る | |
アパート 南海電鉄南海本線 忠岡駅 徒歩6分 築17年(1K/1階) | |||||||
![]() | 4.5万円 4,900円 | なし なし | 1K 27.2m2 | 築17年 | 南海電鉄南海本線 忠岡駅 徒歩6分 南海電鉄南海本線 春木駅 徒歩27分 南海電鉄南海本線 泉大津駅 徒歩30分 大阪府泉北郡忠岡町忠岡東1丁目 | 詳細を見る | |
マンション コルロフ51(2DK/4階) | |||||||
![]() | 5.2万円 3,000円 | なし なし | 2DK 45.65m2 | 築29年 | 阪和線 久米田駅 徒歩13分 南海電鉄南海本線 春木駅 徒歩18分 阪和線 下松駅(大阪) 徒歩21分 大阪府岸和田市下池田町1丁目 | 詳細を見る | |
アパート クレイノやよい(1K/1階) | |||||||
![]() | 5.7万円 5,000円 | なし なし | 1K 25.13m2 | 築9年 | 阪和線 久米田駅 徒歩7分 阪和線 下松駅(大阪) 徒歩17分 阪和線 東岸和田駅 徒歩35分 大阪府岸和田市小松里町 | 詳細を見る | |
アパート 阪和線 富木駅 徒歩14分 築32年(2LDK/2階) | |||||||
![]() | 6.5万円 5,000円 | なし 9.75万円 | 2LDK 56.17m2 | 築32年 | 阪和線 富木駅 徒歩14分 阪和線 鳳駅 徒歩19分 阪和線 北信太駅 徒歩29分 大阪府堺市西区上 | 詳細を見る | |
マンション 南海電鉄南海本線 羽衣駅 徒歩7分 築29年(3LDK/4階) | |||||||
![]() | 7.3万円 9,000円 | なし 12万円 | 3LDK 65m2 | 築29年 | 南海電鉄南海本線 羽衣駅 徒歩7分 阪和線 東羽衣駅 徒歩9分 南海電鉄南海本線 高石駅 徒歩17分 大阪府高石市 | 詳細を見る | |
アパート COZY COURT(3LDK/2階) | |||||||
![]() | 7.5万円 2,200円 | なし 7.5万円 | 3LDK 87.78m2 | 築26年 | 阪和線 久米田駅 徒歩8分 阪和線 下松駅(大阪) 徒歩23分 南海電鉄南海本線 春木駅 徒歩23分 大阪府岸和田市小松里町 | 詳細を見る | |








