賃貸マンション
グランドガーラ横浜関内の賃貸物件情報(1K/2階)
| 家賃 | 管理費等 | 敷金 | 礼金 | 間取り | 専有面積 |
|---|---|---|---|---|---|
| 6.7万円 | 9,000円 | 6.7万円 | 13.4万円 | 1K | 24.17m2 |
入居決定でお祝い金最大100,000円
- 保証金
- -
- 償却・敷引
- -
- 築年数
- 築25年
- 所在階
- 2階
- 向き
- -
Point
◆ご内見は現地待ち合わせも可能です!もしくはご来店後に数件まとめてご案内(車)いたします◆公式LINEでのご対応も可能◆初期費用の分割(スムーズ)や、クレカ決済も全物件ご対応できます!
提供:(株)LIFIX関内店(SUUMO経由)

詳細情報 グランドガーラ横浜関内
物件紹介
グランドガーラ横浜関内はブルーライン伊勢佐木長者町駅から徒歩2分にあり、駅近で通勤通学に便利なマンションです。
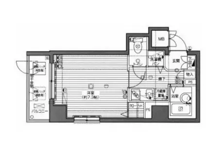
このお部屋は2階以上に位置しているので、通行人や周囲の住人からの視線が気になりにくく、防犯面でも安心。建物のエントランスはオートロックがついており、インターホンにはTVモニタもついているため、相手の顔を確認してから来客対応することができます。
人気の角部屋で周囲の居住者の生活音も気になりにくく、また、フローリングのお部屋なのでお掃除もラクラク。キッチンはシステムキッチン仕様になっていますので、お料理好きの方にもぴったり。バス・トイレは別なので、のんびりお風呂タイムも楽しめるでしょう。また、雨の日でも浴室乾燥機を使えば、お洗濯も問題ありません。
通信設備面では、インターネット接続が可能です。また、BSアンテナ・CSアンテナもありますので、おうち時間も充実するでしょう(別途工事、契約料が必要な場合あり)。
建物にはエレベーターがついているので、重い荷物があっても安心。共用部には宅配ボックスが設定されているので、不在の時にも荷物を受け取ることができます。
このお部屋は2階以上に位置しているので、通行人や周囲の住人からの視線が気になりにくく、防犯面でも安心。建物のエントランスはオートロックがついており、インターホンにはTVモニタもついているため、相手の顔を確認してから来客対応することができます。
人気の角部屋で周囲の居住者の生活音も気になりにくく、また、フローリングのお部屋なのでお掃除もラクラク。キッチンはシステムキッチン仕様になっていますので、お料理好きの方にもぴったり。バス・トイレは別なので、のんびりお風呂タイムも楽しめるでしょう。また、雨の日でも浴室乾燥機を使えば、お洗濯も問題ありません。
通信設備面では、インターネット接続が可能です。また、BSアンテナ・CSアンテナもありますので、おうち時間も充実するでしょう(別途工事、契約料が必要な場合あり)。
建物にはエレベーターがついているので、重い荷物があっても安心。共用部には宅配ボックスが設定されているので、不在の時にも荷物を受け取ることができます。
お金・契約の情報
※「-」と表示されているものは、実際は料金が発生するものもございます。詳細はお問い合わせください。
| 家賃 | 6.7万円 | 管理費・共益費 | 9,000円 |
|---|---|---|---|
| 敷金 | 6.7万円 | 礼金 | 13.4万円 |
| 入居決定でお祝い金最大100,000円 | |||
| 保証金 | - | 償却・敷引 | - |
| 住宅保険料 | - | 更新料 | - |
| 保証会社利用 | 利用可 | 保証会社名 | - |
| 保証会社費用 | - | 保証会社備考 | 保証会社利用可 クレディセゾン 保証料:賃料等の0.5ヶ月分(最低保証料2万円)/月額保証料 賃料等の1.2% |
| 契約形態 | - | 契約期間 | - |
| 入居・引渡期間 | - | 現況 | - |
| 契約備考 | 物件の詳細や諸条件(入居時期・保証人・初期費用・分割・入居審査・交渉事など)について、何でもご相談ください。LINEでもご対応可能です。初期費用の分割(スムーズ)は、←こちらのURLから事前審査可能!クレジットカード持ってなくてもOK☆3回から46回払いまでご対応(3回払いは金利0%)※規定有 合計10.08万円(内訳:(退去時)エアコンクリーニング費用/1台につき1.32万円火災保険(地震特約付き)2.6万円室内清掃費用3.85万円鍵交換代2.31万円) 更新料 新賃料1.00ヶ月分 1K 普通借家2年 損保【2万円2年】 バストイレ別、バルコニー、エアコン、ガスコンロ対応、クロゼット、フローリング、TVインターホン、浴室乾燥機、オートロック、室内洗濯置、シューズボックス、システムキッチン、温水洗浄便座、エレベーター、2口コンロ、駐輪場、宅配ボックス、光ファイバー、2面採光、防犯カメラ、保証人不要、駅徒歩5分以内、24時間ゴミ出し可、敷地内ごみ置き場、都市ガス、IT重説対応物件、家賃カード決済可 入居日:'26年2月下旬 | ||
部屋の情報
| 間取り | 1K | 専有面積 | 24.17m2 |
|---|---|---|---|
| 所在階 / 向き | 2階 / - | バルコニー面積 | - |
| 水道 / ガス | - | ||
| 設備 | バス・トイレ別、2階以上、オートロック、テレビドアホン、宅配ボックス、浴室乾燥機、インターネット対応、システムキッチン、エアコン、エレベーター、温水洗浄便座、バルコニー、フローリング、2口コンロ、コンロ:ガス、洗濯機:室内 | ||
| 当社物件ID | 4803827 | ||
建物の情報
| 建物名 | グランドガーラ横浜関内 | ||
|---|---|---|---|
| 所在地 | 神奈川県横浜市中区不老町 | ||
| 交通 | ブルーライン 伊勢佐木長者町駅 徒歩2分 JR京浜東北線 関内駅 徒歩4分 京急本線 日ノ出町駅 徒歩12分 | ||
| 階数 | 11階建 | 総戸数 | - |
| 築年月 | 2002年02月 / 築25年 | エレベーター | あり |
| 駐車場 | 空有 22000円 | バイク置き場 | - |
| 駐輪場 | あり | 管理人/管理会社 | - |
| 周辺環境 | その他 まいばすけっと 横浜不老町2丁目店(スーパー)まで40m その他 ローソン 横浜不老町3丁目店(コンビニ)まで126m その他 横浜長者町郵便局(郵便局)まで159m その他 ローソンストア100 LS伊勢佐木長者町店(その他)まで188m その他 ハックドラッグ横浜関内店(ドラッグストア)まで157m その他 セブンイレブン 横浜長者町店(コンビニ)まで262m | ||
| 建物種別 | マンション | 建物構造 | SRC(鉄骨鉄筋コンクリート) |
この部屋の取扱い不動産会社
| 会社名 | へやなび横濱関内(株)GHエステート(SUUMO経由) | ||
|---|---|---|---|
| 所在地 | 神奈川県横浜市中区港町4-16 馬車道徳永ビル3階 | 交通 | - |
| 営業時間 | 10:00~19:00 | 定休日 | 水曜日、隔週火曜日 |
| 免許番号 | 神奈川県知事31349 | 取引態様 | 仲介 |
| 不動産会社管理番号 | 100484478040 | 当社管理番号 | 89 |
| 所属団体 | (公社)全日本不動産協会神奈川県本部会員 | ||
| 公正取引協議会 | (公社)首都圏不動産公正取引協議会加盟 | ||
| 取扱い物件情報 | 物件詳細へ | ||
※各種情報と現状に差異がある場合は、現状優先となります。問い合わせをすることで、より詳しい条件、情報を確認する事ができます。
提供:へやなび横濱関内(株)GHエステート(SUUMO経由)
この物件が気になったら掲載期限まであと10日
グランドガーラ横浜関内に条件(家賃・エリア)が近い物件一覧
| 写真 | 家賃 管理費等 | 敷金 礼金 | 間取り 専有面積 | 築年数 | 最寄り駅 所在地 | キープ | 詳細 |
|---|---|---|---|---|---|---|---|
マンション パルテール宮本(1LDK/3階) | |||||||
![]() | 9.5万円 6,000円 | 9.5万円 14.25万円 | 1LDK 39.87m2 | 築24年 | 京急大師線 東門前駅 徒歩4分 京急大師線 川崎大師駅 徒歩10分 神奈川県川崎市川崎区東門前 | 詳細を見る | |
アパート サニーサイド北鎌倉B(1K/1階) | |||||||
![]() | 5万円 なし | なし なし | 1K 19.46m2 | 築33年 | JR横須賀線 北鎌倉駅 徒歩11分 湘南モノレール 富士見町駅(神奈川) 徒歩15分 JR東海道本線 大船駅 徒歩23分 神奈川県鎌倉市台 | 詳細を見る | |
マンション アゼリアガーデンズ柿生(ワンルーム/2階) | |||||||
![]() | 4.1万円 なし | 4.4万円 なし | ワンルーム 16.2m2 | 築40年 | 小田急電鉄小田原線 柿生駅 徒歩10分 小田急電鉄小田原線 新百合ケ丘駅 徒歩20分 神奈川県川崎市麻生区王禅寺西6丁目 | 詳細を見る | |
アパート スイーニュ21(2DK/2階) | |||||||
![]() | 7万円 なし | 7万円 なし | 2DK 40m2 | 築37年 | 根岸線 山手駅 徒歩20分 京浜東北・根岸線 石川町駅 徒歩25分 神奈川県横浜市中区本郷町3丁目 | 詳細を見る | |
アパート G・Aタウン石川町(ワンルーム/2階) | |||||||
![]() | 4.9万円 3,000円 | なし なし | ワンルーム 14.48m2 | 築9年 | JR京浜東北線 石川町駅 徒歩13分 JR京浜東北線 山手駅 徒歩13分 ブルーライン 伊勢佐木長者町駅 徒歩17分 神奈川県横浜市中区山元町 | 詳細を見る | |
一戸建て 京浜急行電鉄本線 浦賀駅 徒歩21分 築50年(3DK) | |||||||
![]() | 6.5万円 3,000円 | なし なし | 3DK 61.23m2 | 築50年 | 京浜急行電鉄本線 浦賀駅 徒歩21分 神奈川県横須賀市二葉2丁目 | 詳細を見る | |
マンション アドーレ湘南(1K/4階) | |||||||
![]() | 4.3万円 3,000円 | 4.3万円 なし | 1K 18.9m2 | 築36年 | 小田急電鉄江ノ島線 六会日大前駅 徒歩4分 神奈川県藤沢市亀井野2丁目 | 詳細を見る | |
マンション 中央林間エスケービル(ワンルーム/3階) | |||||||
![]() | 5.9万円 3,000円 | 5.9万円 5.9万円 | ワンルーム 25.26m2 | 築31年 | 東急田園都市線 中央林間駅 徒歩2分 小田急江ノ島線 南林間駅 徒歩19分 東急田園都市線 つきみ野駅 徒歩23分 神奈川県大和市中央林間 | 詳細を見る | |








