賃貸マンション
ペガサスマンション本郷の賃貸物件情報(1K/5階)
| 家賃 | 管理費等 | 敷金 | 礼金 | 間取り | 専有面積 |
|---|---|---|---|---|---|
| 11万円 | なし | 11万円 | 11万円 | 1K | 23.35m2 |
入居決定でお祝い金最大100,000円
- 保証金
- -
- 償却・敷引
- -
- 築年数
- 築42年
- 所在階
- 5階
- 向き
- 北東
Point
エリア問わず気になる物件は複数まとめてご紹介!初期費用は分割・カード払いOK。公式HPでは新着物件・ネット非公開物件を毎日リアルタイムに更新中。遠方の方にはオンライン接客にて店頭同様の対応も可能です!
提供:アエラス駒込店 (株)アエラス.FR(SUUMO経由)

詳細情報 ペガサスマンション本郷
物件紹介
ペガサスマンション本郷は東京メトロ南北線東大前駅から徒歩4分にあり、駅近で通勤通学に便利なマンションです。
このお部屋は2階以上に位置しているので、通行人や周囲の住人からの視線が気になりにくく、防犯面でも安心です。
フローリングのお部屋なのでお掃除もラクラク。
通信設備面では、インターネット接続が可能です(別途工事、契約料が必要な場合あり)。
建物にはエレベーターがついているので、重い荷物があっても安心。
このお部屋は2階以上に位置しているので、通行人や周囲の住人からの視線が気になりにくく、防犯面でも安心です。
フローリングのお部屋なのでお掃除もラクラク。
通信設備面では、インターネット接続が可能です(別途工事、契約料が必要な場合あり)。
建物にはエレベーターがついているので、重い荷物があっても安心。
お金・契約の情報
※「-」と表示されているものは、実際は料金が発生するものもございます。詳細はお問い合わせください。
| 家賃 | 11万円 | 管理費・共益費 | なし |
|---|---|---|---|
| 敷金 | 11万円 | 礼金 | 11万円 |
| 入居決定でお祝い金最大100,000円 | |||
| 保証金 | - | 償却・敷引 | - |
| 住宅保険料 | - | 更新料 | - |
| 保証会社利用 | 必須 | 保証会社名 | - |
| 保証会社費用 | - | 保証会社備考 | 保証会社利用必 お気軽にお問い合わせください。 初回保証料:月額総賃料の100% 更新保証料:有(2年毎) |
| 契約形態 | - | 契約期間 | - |
| 入居・引渡期間 | 即時 | 現況 | - |
| 契約備考 | 物件詳細やご見学等はお気軽にご相談下さいませ★毎日新規物件50件以上登録しております★リアルタイム物件情報は当社ホームページへ!入居日・初期費用等の交渉事は全て当社にお任せ下さい!お客様のご希望にそって全力でお部屋探しのサポートをさせて頂きます!当店では、シングル(一人暮らし)・ファミリー(家族)賃貸物件を中心にお部屋探しをサポート致します!その他非公開物件の情報提供も致します! 更新料 新賃料1.00ヶ月分 1K 普通借家2年 損保【要】 バルコニー、エアコン、ガスコンロ対応、クロゼット、フローリング、シューズボックス、エレベーター、2口コンロ、駐輪場、光ファイバー、即入居可、照明付、保証人不要、ネット専用回線、内装リフォーム済、耐火構造、3駅以上利用可、3沿線以上利用可、駅徒歩10分以内、敷地内ごみ置き場、保証会社利用可、IT重説対応物件、初期費用カード決済可 | ||
部屋の情報
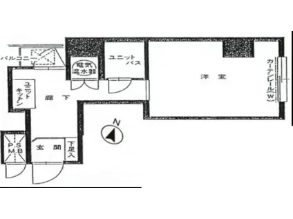
| 間取り | 1K | 専有面積 | 23.35m2 |
|---|---|---|---|
| 所在階 / 向き | 5階 / 北東 | バルコニー面積 | - |
| 水道 / ガス | - | ||
| 設備 | 2階以上、インターネット対応、エアコン、エレベーター、バルコニー、フローリング、2口コンロ、コンロ:ガス | ||
| 当社物件ID | 23229803 | ||
建物の情報
| 建物名 | ペガサスマンション本郷 | ||
|---|---|---|---|
| 所在地 | 東京都文京区本郷 | ||
| 交通 | 東京メトロ南北線 東大前駅 徒歩6分 東京メトロ丸ノ内線 本郷三丁目駅 徒歩10分 東京メトロ千代田線 根津駅 徒歩13分 | ||
| 階数 | 地下1地上12階建 | 総戸数 | - |
| 築年月 | 1984年05月 / 築42年 | エレベーター | あり |
| 駐車場 | なし | バイク置き場 | - |
| 駐輪場 | あり | 管理人/管理会社 | - |
| 周辺環境 | その他 まいばすけっと 文京向丘1丁目店(スーパー)まで719m その他 セブンイレブン 文京西片1丁目店(コンビニ)まで729m その他 牛角(飲食店)まで1137m その他 日高屋 春日駅前店(飲食店)まで800m その他 マクドナルド 春日駅前店(飲食店)まで750m その他 松屋フーズ白山店(飲食店)まで1216m | ||
| 建物種別 | マンション | 建物構造 | SRC(鉄骨鉄筋コンクリート) |
この部屋の取扱い不動産会社
| 会社名 | (株)With4(SUUMO経由) | ||
|---|---|---|---|
| 所在地 | 東京都豊島区巣鴨1-13-4 スガモプラザビルA棟5階 | 交通 | - |
| 営業時間 | 10:00~19:00 | 定休日 | 火曜日、水曜日 |
| 免許番号 | 東京都知事109819 | 取引態様 | 仲介 |
| 不動産会社管理番号 | 100472381744 | 当社管理番号 | 89 |
| 所属団体 | (公社)全日本不動産協会東京都本部会員 | ||
| 公正取引協議会 | (公社)首都圏不動産公正取引協議会加盟 | ||
| 取扱い物件情報 | 物件詳細へ | ||
※各種情報と現状に差異がある場合は、現状優先となります。問い合わせをすることで、より詳しい条件、情報を確認する事ができます。
提供:(株)With4(SUUMO経由)
この物件が気になったら掲載期限まであと10日
ペガサスマンション本郷に条件(家賃・エリア)が近い物件一覧
| 写真 | 家賃 管理費等 | 敷金 礼金 | 間取り 専有面積 | 築年数 | 最寄り駅 所在地 | キープ | 詳細 |
|---|---|---|---|---|---|---|---|
マンション プレサンスブルーム浅草ノース(1K/3階) | |||||||
![]() | 10万円 2万円 | なし なし | 1K 25.44m2 | 築4年 | つくばエクスプレス 浅草駅(つくばEXP) 徒歩7分 東京地下鉄日比谷線 入谷駅(東京) 徒歩13分 東京地下鉄銀座線 浅草駅(東武・都営・メトロ) 徒歩16分 東京都台東区浅草4丁目 | 詳細を見る | |
マンション パークキューブ神田(1K/10階) | |||||||
![]() | 15.3万円 1万円 | 15.3万円 15.3万円 | 1K 30.7m2 | 築21年 | 東京都新宿線 岩本町駅 徒歩3分 中央本線 神田駅(東京) 徒歩3分 山手線 秋葉原駅 徒歩6分 東京都千代田区神田須田町2丁目 | 詳細を見る | |
マンション レジデンストーキョー北上野(ワンルーム/4階) | |||||||
![]() | 8万円 9,000円 | なし 8万円 | ワンルーム 17.95m2 | 築9年 | 東京地下鉄日比谷線 入谷駅(東京) 徒歩3分 山手線 鶯谷駅 徒歩10分 山手線 上野駅 徒歩12分 東京都台東区北上野2丁目 | 詳細を見る | |
マンション レッドウィング(ワンルーム/3階) | |||||||
![]() | 9.4万円 5,000円 | 9.4万円 9.4万円 | ワンルーム 26.87m2 | 築9年 | 東京地下鉄銀座線 浅草駅(東武・都営・メトロ) 徒歩17分 東武伊勢崎・大師線 浅草駅(東武・都営・メトロ) 徒歩17分 東武伊勢崎・大師線 曳舟駅 徒歩26分 東京都台東区今戸2丁目 | 詳細を見る | |
マンション J.リヴェール上野入谷プレイス(1DK/8階) | |||||||
![]() | 12.2万円 1.5万円 | 12.2万円 なし | 1DK 26.35m2 | 築4年 | 東京地下鉄日比谷線 入谷駅(東京) 徒歩2分 山手線 鶯谷駅 徒歩7分 山手線 上野駅 徒歩13分 東京都台東区下谷2丁目 | 詳細を見る | |
マンション パークアクシス本郷の杜(1K/7階) | |||||||
![]() | 16.5万円 1万円 | 16.5万円 16.5万円 | 1K 31.98m2 | 築21年 | 東京都大江戸線 本郷三丁目駅 徒歩1分 東京地下鉄丸ノ内線 本郷三丁目駅 徒歩3分 総武・中央緩行線 水道橋駅 徒歩15分 東京都文京区本郷7丁目 | 詳細を見る | |
マンション CASSIA上野入谷(1LDK/2階) | |||||||
![]() | 17.3万円 1.5万円 | 17.3万円 17.3万円 | 1LDK 41.39m2 | 築6年 | 東京地下鉄日比谷線 入谷駅(東京) 徒歩6分 東京地下鉄日比谷線 三ノ輪駅 徒歩8分 東京都台東区竜泉1丁目 | 詳細を見る | |
マンション パレヴェール文京(ワンルーム/3階) | |||||||
![]() | 6.9万円 4,000円 | 6.9万円 なし | ワンルーム 20.82m2 | 築36年 | 東京都荒川線 早稲田駅(都電) 徒歩7分 東京地下鉄有楽町線 江戸川橋駅 徒歩11分 東京地下鉄東西線 早稲田駅(メトロ) 徒歩11分 東京都文京区関口1丁目 | 詳細を見る | |









