賃貸アパート
レオパレスウエスト 18の賃貸物件情報(1K/1階)
| 家賃 | 管理費等 | 敷金 | 礼金 | 間取り | 専有面積 |
|---|---|---|---|---|---|
| 3.9万円 | 5,000円 | なし | 3.9万円 | 1K | 23.18m2 |
入居決定でお祝い金最大100,000円
Point
全物件クレジット決済OK。現地待ち合わせOK。ご内見の際はお気軽にお問い合わせください。
提供:ベストリーシング(SUUMO経由)

詳細情報 レオパレスウエスト 18
物件紹介
レオパレスウエスト 18は北条鉄道北条線北条町駅から徒歩7分にあり、駅近で通勤通学に便利なアパートです。
このお部屋のインターホンにはTVモニタがついているため、相手の顔を確認してから来客対応することができます。
バス・トイレ別の仕様で、のんびりお風呂タイムも楽しめます。また、浴室乾燥機を使えば、雨の日でもお洗濯は問題ありません。
通信設備面では、インターネット接続が可能です(別途工事、契約料が必要な場合あり)。
共用部には宅配ボックスが設定されているので、不在の時にも荷物を受け取ることができます。
このお部屋のインターホンにはTVモニタがついているため、相手の顔を確認してから来客対応することができます。
バス・トイレ別の仕様で、のんびりお風呂タイムも楽しめます。また、浴室乾燥機を使えば、雨の日でもお洗濯は問題ありません。
通信設備面では、インターネット接続が可能です(別途工事、契約料が必要な場合あり)。
共用部には宅配ボックスが設定されているので、不在の時にも荷物を受け取ることができます。
お金・契約の情報
※「-」と表示されているものは、実際は料金が発生するものもございます。詳細はお問い合わせください。
| 家賃 | 3.9万円 | 管理費・共益費 | 5,000円 |
|---|---|---|---|
| 敷金 | なし | 礼金 | 3.9万円 |
| 入居決定でお祝い金最大100,000円 | |||
| 保証金 | - | 償却・敷引 | - |
| 住宅保険料 | - | 更新料 | - |
| 契約形態 | - | 契約期間 | - |
| 入居・引渡期間 | - | 現況 | - |
| 契約備考 | 全物件クレジット決済OK。現地待ち合わせOK。ご内見の際はお気軽にお問い合わせください。 合計5.83万円(内訳:鍵交換費:16,500円/退去時清掃費:41,800円) 更新料:16,500円 1K バストイレ別、エアコン、TVインターホン、浴室乾燥機、室内洗濯置、温水洗浄便座、駐輪場、宅配ボックス、敷金不要、防犯カメラ、仲介手数料不要、保証金不要、家電付、家具付、駐車5台以上、駅徒歩10分以内、高速ネット対応、礼金1ヶ月 入居日:'26年2月下旬 | ||
部屋の情報
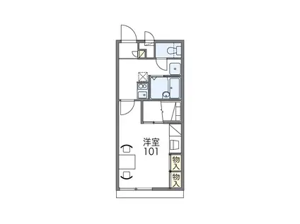
| 間取り | 1K | 専有面積 | 23.18m2 |
|---|---|---|---|
| 所在階 / 向き | 1階 / - | バルコニー面積 | - |
| 水道 / ガス | - | ||
| 設備 | バス・トイレ別、テレビドアホン、宅配ボックス、浴室乾燥機、インターネット対応、エアコン、温水洗浄便座、洗濯機:室内 | ||
| 当社物件ID | 4698615 | ||
建物の情報
| 建物名 | レオパレスウエスト 18 | ||
|---|---|---|---|
| 所在地 | 兵庫県加西市北条町北条 | ||
| 交通 | 北条鉄道北条線 北条町駅 徒歩7分 | ||
| 階数 | 2階建 | 総戸数 | 18戸 |
| 築年月 | 2004年10月 / 築22年 | エレベーター | - |
| 駐車場 | 空有 4950円 | バイク置き場 | - |
| 駐輪場 | あり | 管理人/管理会社 | - |
| 周辺環境 | その他 セブンイレブン加西北条駅前店(コンビニ)まで446m | ||
| 建物種別 | アパート | 建物構造 | 木造 |
この部屋の取扱い不動産会社
| 会社名 | ベストリーシング(SUUMO経由) | ||
|---|---|---|---|
| 所在地 | 兵庫県加古川市米田町平津 477-1 | 交通 | - |
| 営業時間 | AM9:00~PM7:00 | 定休日 | 毎週水曜日 |
| 免許番号 | 兵庫県知事401520 | 取引態様 | 仲介 |
| 不動産会社管理番号 | 100425822204 | 当社管理番号 | 89 |
| 所属団体 | (一社)兵庫県宅地建物取引業協会会員 | ||
| 公正取引協議会 | (公社)近畿地区不動産公正取引協議会加盟 | ||
| 取扱い物件情報 | 物件詳細へ | ||
※各種情報と現状に差異がある場合は、現状優先となります。問い合わせをすることで、より詳しい条件、情報を確認する事ができます。
提供:ベストリーシング(SUUMO経由)
この物件が気になったら掲載期限まであと9日
レオパレスウエスト 18に条件(家賃・エリア)が近い物件一覧
| 写真 | 家賃 管理費等 | 敷金 礼金 | 間取り 専有面積 | 築年数 | 最寄り駅 所在地 | キープ | 詳細 |
|---|---|---|---|---|---|---|---|
アパート プレジデントふくなが(2LDK/2階) | |||||||
![]() | 5.2万円 なし | なし 5.2万円 | 2LDK 60.4m2 | 築34年 | JR播但線 福崎駅 徒歩29分 兵庫県神崎郡福崎町西田原 | 詳細を見る | |
アパート グランアウローラⅤ(1LDK/1階) | |||||||
![]() | 5.6万円 4,100円 | なし 6.6万円 | 1LDK 37.76m2 | 築14年 | 山陽電気鉄道本線 妻鹿駅 徒歩17分 山陽電気鉄道本線 飾磨駅 徒歩20分 山陽電気鉄道本線 亀山駅(兵庫) 徒歩22分 兵庫県姫路市飾磨区阿成植木 | 詳細を見る | |
マンション メゾン・ド・姫路野里(1K/6階) | |||||||
![]() | 3.4万円 5,000円 | なし なし | 1K 24.5m2 | 築35年 | 播但線 京口駅 徒歩12分 播但線 野里駅 徒歩15分 山陽本線 姫路駅 徒歩30分 兵庫県姫路市野里 | 詳細を見る | |
アパート アメニティカスガⅡ(2LDK/2階) | |||||||
![]() | 5万円 1,783円 | なし なし | 2LDK 65.64m2 | 築27年 | 加古川線 西脇市駅 徒歩21分 加古川線 新西脇駅 徒歩25分 兵庫県西脇市高田井町 | 詳細を見る | |
アパート 雅ガーデンハイツN棟(1K/2階) | |||||||
![]() | 3.8万円 5,000円 | なし 3.8万円 | 1K 23.1m2 | 築32年 | JR播但線 野里駅 徒歩12分 JR播但線 京口駅 徒歩30分 JR播但線 砥堀駅 徒歩34分 兵庫県姫路市伊伝居 | 詳細を見る | |
アパート 山本ハイツ(2DK/2階) | |||||||
![]() | 4.5万円 なし | なし 9万円 | 2DK 45m2 | 築29年 | 山陽電鉄本線 大塩駅 徒歩5分 山陽電鉄本線 的形駅 徒歩17分 兵庫県姫路市大塩町 | 詳細を見る | |
アパート リープラス御着駅前Ⅱ(1K/2階) | |||||||
![]() | 5.9万円 3,000円 | なし なし | 1K 24.06m2 | 築1年 | 山陽本線 御着駅 徒歩3分 兵庫県姫路市御国野町御着 | 詳細を見る | |
マンション ISM Ⅰ(ワンルーム/3階) | |||||||
![]() | 3.9万円 3,000円 | 5万円 5万円 | ワンルーム 28.03m2 | 築35年 | 姫新線 余部駅 徒歩13分 姫新線 播磨高岡駅 徒歩25分 兵庫県姫路市西夢前台2丁目 | 詳細を見る | |









