賃貸マンション
パークハビオ新橋の賃貸物件情報(ワンルーム/8階)
| 家賃 | 管理費等 | 敷金 | 礼金 | 間取り | 専有面積 |
|---|---|---|---|---|---|
| 15.5万円 | 1万円 | 15.5万円 | 15.5万円 | ワンルーム | 25.03m2 |
入居決定でお祝い金最大100,000円
Point
まずはお問い合わせ!
不動産会社は街のプロ、あなたに合った物件がきっと見つかります。
提供:アパマンショップ目黒西口店

詳細情報 パークハビオ新橋
物件紹介
パークハビオ新橋は東京都三田線御成門駅から徒歩4分にあり、駅近で通勤通学に便利なマンションです。
このお部屋は2階以上に位置しているので、通行人や周囲の住人からの視線が気になりにくく、防犯面でも安心。建物のエントランスはオートロックがついており、インターホンにはTVモニタもついているため、相手の顔を確認してから来客対応することができます。
おしゃれなデザイナーズ物件!また、楽器相談が可能な物件となっているので、楽器演奏をお考えの方はぜひ相談してみてください。人気の南向き・フローリングのお部屋。角部屋でもあるため、周囲の居住者の生活音も気になりにくい場所です。キッチンはシステムキッチン仕様になっていますので、お料理好きの方にもぴったり。バス・トイレは別なので、のんびりお風呂タイムも楽しめるでしょう。また、雨の日でも浴室乾燥機を使えば、お洗濯も問題ありません。
通信設備面では、インターネット接続が可能です。また、BSアンテナ・CSアンテナがありCATVにも対応しているので、おうち時間も充実するでしょう(別途工事、契約料が必要な場合あり)。
建物にはエレベーターがついているので、重い荷物があっても安心。共用部には宅配ボックスが設定されているので、不在の時にも荷物を受け取ることができます。また、ペット飼育の相談ができますので、あなたの大切な家族の一員も快適に暮らせるか、ぜひ確認してみてください。
コンビニまで徒歩33分の場所にあり、日用品や食料品のお買い物にも便利です。
このお部屋は2階以上に位置しているので、通行人や周囲の住人からの視線が気になりにくく、防犯面でも安心。建物のエントランスはオートロックがついており、インターホンにはTVモニタもついているため、相手の顔を確認してから来客対応することができます。
おしゃれなデザイナーズ物件!また、楽器相談が可能な物件となっているので、楽器演奏をお考えの方はぜひ相談してみてください。人気の南向き・フローリングのお部屋。角部屋でもあるため、周囲の居住者の生活音も気になりにくい場所です。キッチンはシステムキッチン仕様になっていますので、お料理好きの方にもぴったり。バス・トイレは別なので、のんびりお風呂タイムも楽しめるでしょう。また、雨の日でも浴室乾燥機を使えば、お洗濯も問題ありません。
通信設備面では、インターネット接続が可能です。また、BSアンテナ・CSアンテナがありCATVにも対応しているので、おうち時間も充実するでしょう(別途工事、契約料が必要な場合あり)。
建物にはエレベーターがついているので、重い荷物があっても安心。共用部には宅配ボックスが設定されているので、不在の時にも荷物を受け取ることができます。また、ペット飼育の相談ができますので、あなたの大切な家族の一員も快適に暮らせるか、ぜひ確認してみてください。
コンビニまで徒歩33分の場所にあり、日用品や食料品のお買い物にも便利です。
お金・契約の情報
※「-」と表示されているものは、実際は料金が発生するものもございます。詳細はお問い合わせください。
| 家賃 | 15.5万円 | 管理費・共益費 | 1万円 |
|---|---|---|---|
| 敷金 | 15.5万円 | 礼金 | 15.5万円 |
| 入居決定でお祝い金最大100,000円 | |||
| 保証金 | - | 償却・敷引 | - |
| 住宅保険料 | - | 更新料 | - |
| 保証会社利用 | 必須 | 保証会社名 | - |
| 保証会社費用 | - | 保証会社備考 | 日本セーフティー 初年度保証料:賃料等合計額の30%(最低保証料1.2万円)2年目以降:1年毎1万円 |
| 契約形態 | - | 契約期間 | 2年 |
| 入居・引渡期間 | 2026年03月上旬 | 現況 | - |
| 入居可能条件 | 楽器可、ペット可 | ||
| 契約備考 | 保証会社未使用時敷金2か月 ペット・楽器相談(諸条件弊社募集図面要確認) SOHO使用応相談(敷金1か月積増/保証料要確認) 民泊不可 鍵交換必須/退去時:室内清掃・エアコン洗浄費借主負担 付属施設空状況要確認 鍵交換代 33000円 | ||
部屋の情報
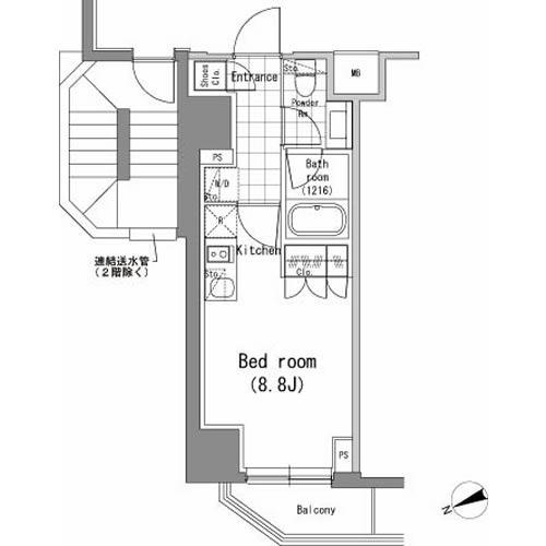
| 間取り | ワンルーム | 専有面積 | 25.03m2 |
|---|---|---|---|
| 間取り詳細 | 洋室(8.8帖)、洋室(8.8帖) | ||
| 所在階 / 向き | 8階 / 北西 | バルコニー面積 | 2m2 |
| 水道 / ガス | - | ||
| 設備 | バス・トイレ別、オートロック、テレビドアホン、宅配ボックス、浴室乾燥機、追い焚き、光ファイバー対応、エレベーター、温水洗浄便座、バルコニー、フローリング、BSアンテナ、シャワー、給湯、洗濯機:室内、タイル張り | ||
| 当社物件ID | 10861114 | ||
建物の情報
| 建物名 | パークハビオ新橋 | ||
|---|---|---|---|
| 所在地 | 東京都港区新橋5丁目 | ||
| 交通 | 東京都三田線 御成門駅 徒歩4分 | ||
| 階数 | 15階建 | 総戸数 | 100戸 |
| 築年月 | 2013年09月 / 築13年 | エレベーター | あり |
| 駐車場 | - | バイク置き場 | - |
| 駐輪場 | - | 管理人/管理会社 | - |
| 周辺環境 | 小学校 京橋築地小学校 徒歩28分(2215m) その他 セブンイレブン 徒歩21分(1669m) その他 芝一郵便局 徒歩20分(1597m) その他 セブンイレブン 徒歩25分(1933m) その他 セブンイレブン 徒歩26分(2066m) その他 築地本願寺心の電話 徒歩29分(2300m) その他 ファミリーマート築地本願寺前店 徒歩28分(2193m) その他 ミニストップ築地2丁目店 徒歩28分(2205m) | ||
| 建物種別 | マンション | 建物構造 | RC(鉄筋コンクリート) |
この部屋の取扱い不動産会社
| 会社名 | アパマンショップ渋谷道玄坂店 | ||
|---|---|---|---|
| 所在地 | 東京都渋谷区道玄坂2丁目 9-9光真ビル3階 | 交通 | 湘南新宿ライン宇須渋谷から徒歩1分 |
| 営業時間 | 10:00〜19:00(オンライン接客・内見可能!) | 定休日 | 水曜日 |
| 免許番号 | 国土交通大臣(5)6971 | 取引態様 | 仲介 |
| 不動産会社管理番号 | 92516654 | 当社管理番号 | 4 |
| 所属団体 | (公社)東京都宅地建物取引協会 | ||
| 公正取引協議会 | (公社) 首都圏不動産公正取引協議会加盟 | ||
| 取扱い物件情報 | 物件詳細へ | ||
※各種情報と現状に差異がある場合は、現状優先となります。問い合わせをすることで、より詳しい条件、情報を確認する事ができます。
提供:アパマンショップ渋谷道玄坂店
この物件が気になったら掲載期限まであと13日
パークハビオ新橋に条件(家賃・エリア)が近い物件一覧
| 写真 | 家賃 管理費等 | 敷金 礼金 | 間取り 専有面積 | 築年数 | 最寄り駅 所在地 | キープ | 詳細 |
|---|---|---|---|---|---|---|---|
マンション ザ・パークワンズ日本橋人形町(1LDK/2階) | |||||||
![]() | 21万円 なし | 21万円 21万円 | 1LDK 33.26m2 | 築1年 | 東京メトロ日比谷線 人形町駅 徒歩3分 東京メトロ半蔵門線 水天宮前駅 徒歩5分 都営新宿線 浜町駅 徒歩8分 東京都中央区日本橋人形町 | 詳細を見る | |
一戸建て 東京地下鉄有楽町線 豊洲駅 徒歩12分 築51年(3DK) | |||||||
![]() | 13.8万円 なし | 13.8万円 13.8万円 | 3DK 64.71m2 | 築51年 | 東京地下鉄有楽町線 豊洲駅 徒歩12分 京葉線 潮見駅 徒歩20分 東京地下鉄東西線 木場駅 徒歩24分 東京都江東区枝川1丁目 | 詳細を見る | |
マンション パークフロント亀戸(ワンルーム/2階) | |||||||
![]() | 9.6万円 1万円 | 9.6万円 9.6万円 | ワンルーム 27.01m2 | 築7年 | 東武亀戸線 亀戸水神駅 徒歩6分 JR総武線 亀戸駅 徒歩9分 都営新宿線 大島駅(東京) 徒歩10分 東京都江東区亀戸 | 詳細を見る | |
一戸建て 東京都新宿線 大島駅(東京) 徒歩7分 築77年(1DK) | |||||||
![]() | 15.8万円 なし | 15.8万円 15.8万円 | 1DK 27.91m2 | 築77年 | 東京都新宿線 大島駅(東京) 徒歩7分 東京都新宿線 西大島駅 徒歩7分 総武・中央緩行線 亀戸駅 徒歩11分 東京都江東区大島3丁目 | 詳細を見る | |
マンション クレストコート門前仲町(1DK/10階) | |||||||
![]() | 15.8万円 1.2万円 | 15.8万円 なし | 1DK 26.14m2 | 築1年 | 東京地下鉄東西線 門前仲町駅 徒歩7分 東京都江東区永代1丁目 | 詳細を見る | |
マンション クレヴィスタ亀戸V(1K/6階) | |||||||
![]() | 12.8万円 1.1万円 | なし 12.8万円 | 1K 25.41m2 | 築6年 | 東武鉄道亀戸線 亀戸水神駅 徒歩2分 総武・中央緩行線 亀戸駅 徒歩9分 東武鉄道亀戸線 東あずま駅 徒歩12分 東京都江東区亀戸8丁目 | 詳細を見る | |
マンション アジールコート汐浜キャナル(1K/2階) | |||||||
![]() | 11.2万円 1万円 | 11.2万円 11.2万円 | 1K 25.2m2 | 築3年 | JR京葉線 越中島駅 徒歩10分 東京メトロ有楽町線 豊洲駅 徒歩13分 東京メトロ東西線 木場駅 徒歩14分 東京都江東区塩浜 | 詳細を見る | |





/105x80-f1-q70-wp1)

