賃貸マンション
東雲キャナルコートCODAN18号棟の賃貸物件情報(3LDK/8階)
| 家賃 | 管理費等 | 敷金 | 礼金 | 間取り | 専有面積 |
|---|---|---|---|---|---|
| 27万円 | 1.5万円 | 27万円 | 27万円 | 3LDK | 90.9m2 |
入居決定でお祝い金最大100,000円
- 保証金
- -
- 償却・敷引
- -
- 築年数
- 築22年
- 所在階
- 8階
- 向き
- 北
Point
まずはお問い合わせ!
不動産会社は街のプロ、あなたに合った物件がきっと見つかります。
提供:いえどき本店(株)iedoki(SUUMO経由)

詳細情報 東雲キャナルコートCODAN18号棟
物件紹介
東雲キャナルコートCODAN18号棟はりんかい線東雲駅から徒歩8分にあり、駅近で通勤通学に便利なマンションです。
このお部屋は2階以上に位置しているので、通行人や周囲の住人からの視線が気になりにくく、防犯面でも安心。建物のエントランスはオートロックがついており、インターホンにはTVモニタもついているため、相手の顔を確認してから来客対応することができます。
おしゃれなデザイナーズ物件!人気の角部屋で周囲の居住者の生活音も気になりにくく、また、フローリングのお部屋なのでお掃除もラクラク。キッチンはシステムキッチン仕様になっていますので、お料理好きの方にもぴったり。また、バス・トイレは別で、のんびりお風呂タイムも楽しめるでしょう。
通信設備面では、インターネット接続が可能です。また、BSアンテナ・CSアンテナがありCATVにも対応しているので、おうち時間も充実するでしょう(別途工事、契約料が必要な場合あり)。
床暖房があり、冬も足元から暖かく快適に過ごすことができます。建物にはエレベーターがついているので、重い荷物があっても安心。共用部には宅配ボックスが設定されているので、不在の時にも荷物を受け取ることができます。
このお部屋は2階以上に位置しているので、通行人や周囲の住人からの視線が気になりにくく、防犯面でも安心。建物のエントランスはオートロックがついており、インターホンにはTVモニタもついているため、相手の顔を確認してから来客対応することができます。
おしゃれなデザイナーズ物件!人気の角部屋で周囲の居住者の生活音も気になりにくく、また、フローリングのお部屋なのでお掃除もラクラク。キッチンはシステムキッチン仕様になっていますので、お料理好きの方にもぴったり。また、バス・トイレは別で、のんびりお風呂タイムも楽しめるでしょう。
通信設備面では、インターネット接続が可能です。また、BSアンテナ・CSアンテナがありCATVにも対応しているので、おうち時間も充実するでしょう(別途工事、契約料が必要な場合あり)。
床暖房があり、冬も足元から暖かく快適に過ごすことができます。建物にはエレベーターがついているので、重い荷物があっても安心。共用部には宅配ボックスが設定されているので、不在の時にも荷物を受け取ることができます。
お金・契約の情報
※「-」と表示されているものは、実際は料金が発生するものもございます。詳細はお問い合わせください。
| 家賃 | 27万円 | 管理費・共益費 | 1.5万円 |
|---|---|---|---|
| 敷金 | 27万円 | 礼金 | 27万円 |
| 入居決定でお祝い金最大100,000円 | |||
| 保証金 | - | 償却・敷引 | - |
| 住宅保険料 | - | 更新料 | - |
| 保証会社利用 | 必須 | 保証会社名 | - |
| 保証会社費用 | - | 保証会社備考 | 保証会社利用必 初回賃料等の50%(最低2万円)、月額保証・事務手数料:賃料等の1% |
| 契約形態 | - | 契約期間 | - |
| 入居・引渡期間 | - | 現況 | - |
| 契約備考 | 常駐管理/【こちらへのお電話が一番スムーズです】→★本物件の諸条件その他のご質問は、お電話でのお問い合わせにてご対応いたします★メールでのお問い合わせの場合には、お電話番号を記載していただきますとスムーズなご案内が可能です★本物件に限らず、他に気になっている物件がございましたらまとめて空室確認、お車にてご案内をさせて頂きます★弊社一同お気軽にお問い合わせお待ちしております★ 合計3.32万円(内訳:鍵交換代3.3万円/口座振替手数料0.011万円) 退去時の清掃代:126500円退去時のエアコン清掃費:28600円/台 3LDK 二人入居可/子供可/事務所利用不可 損保【1.66万円2年】 バストイレ別、バルコニー、エアコン、クロゼット、フローリング、TVインターホン、オートロック、室内洗濯置、陽当り良好、システムキッチン、角住戸、温水洗浄便座、脱衣所、エレベーター、洗面所独立、洗面化粧台、駐輪場、宅配ボックス、CATV、光ファイバー、閑静な住宅地、BS・CS、3口以上コンロ、対面式キッチン、防犯カメラ、全居室収納、24時間有人管理、全居室洋室、保証人不要、CATVインターネット、二人入居相談、全居室フローリング、ガスレンジ付、デザイナーズ、2沿線利用可、エアコン2台、ディンプルキー、物置、駅まで平坦、床暖房、24時間換気システム、クロゼット2ヶ所、平坦地、エレベーター2基、クロゼット3ヶ所、耐震構造、2駅利用可、3駅以上利用可、3沿線以上利用可、駅徒歩10分以内、24時間ゴミ出し可、敷地内ごみ置き場、LDK12畳以上、都市ガス、玄関収納、年内入居可、保証会社利用可、IT重説対応物件、初期費用カード決済可、通風良好 入居日:'26年1月下旬 | ||
部屋の情報
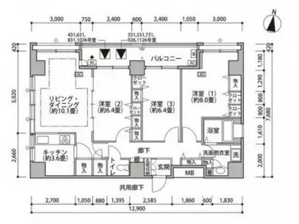
| 間取り | 3LDK | 専有面積 | 90.9m2 |
|---|---|---|---|
| 所在階 / 向き | 8階 / 北 | バルコニー面積 | - |
| 水道 / ガス | - | ||
| 設備 | バス・トイレ別、2階以上、オートロック、テレビドアホン、宅配ボックス、インターネット対応、システムキッチン、エアコン、エレベーター、温水洗浄便座、角部屋、バルコニー、フローリング、洗髪洗面化粧台、床暖房、2口コンロ、コンロ:ガス、デザイナーズ、CATV、CSアンテナ、BSアンテナ、洗濯機:室内 | ||
| 当社物件ID | 159913815 | ||
建物の情報
| 建物名 | 東雲キャナルコートCODAN18号棟 | ||
|---|---|---|---|
| 所在地 | 東京都江東区東雲 | ||
| 交通 | りんかい線 東雲駅(東京) 徒歩8分 東京メトロ有楽町線 辰巳駅 徒歩9分 東京メトロ有楽町線 豊洲駅 徒歩15分 | ||
| 階数 | 14階建 | 総戸数 | - |
| 築年月 | 2004年03月 / 築22年 | エレベーター | あり |
| 駐車場 | なし | バイク置き場 | - |
| 駐輪場 | あり | 管理人/管理会社 | - |
| 周辺環境 | その他 SHIPS Days豊洲店(ショッピングセンター)まで532m その他 イオン東雲ショッピングセンター(ショッピングセンター)まで493m その他 イオン東雲店(スーパー)まで595m その他 ファミリーマート江東東雲一丁目店(コンビニ)まで195m その他 ローソン東雲1丁目店(コンビニ)まで484m その他 くすりの福太郎東雲店(ドラッグストア)まで2m | ||
| 建物種別 | マンション | 建物構造 | RC(鉄筋コンクリート) |
この部屋の取扱い不動産会社
| 会社名 | いえどき本店(株)iedoki(SUUMO経由) | ||
|---|---|---|---|
| 所在地 | 東京都中央区新富1-9-1 SHINTOMI191ビル8階 | 交通 | - |
| 営業時間 | 09:30~18:30 | 定休日 | 水曜 |
| 免許番号 | 東京都知事103480 | 取引態様 | 仲介 |
| 不動産会社管理番号 | 100474664024 | 当社管理番号 | 89 |
| 所属団体 | (公社)全日本不動産協会東京都本部会員 | ||
| 公正取引協議会 | (公社)首都圏不動産公正取引協議会加盟 | ||
| 取扱い物件情報 | 物件詳細へ | ||
※各種情報と現状に差異がある場合は、現状優先となります。問い合わせをすることで、より詳しい条件、情報を確認する事ができます。
提供:いえどき本店(株)iedoki(SUUMO経由)
この物件が気になったら掲載期限まであと10日
東雲キャナルコートCODAN18号棟に条件(家賃・エリア)が近い物件一覧
| 写真 | 家賃 管理費等 | 敷金 礼金 | 間取り 専有面積 | 築年数 | 最寄り駅 所在地 | キープ | 詳細 |
|---|---|---|---|---|---|---|---|
マンション コンフォリア・リヴ大森西(2LDK/4階) | |||||||
![]() | 19.5万円 1.8万円 | 19.5万円 なし | 2LDK 42.19m2 | 築1年 | 京浜急行電鉄本線 大森町駅 徒歩10分 東京都大田区大森西4丁目 | 詳細を見る | |
マンション フロリス オーランティウム3(ワンルーム/5階) | |||||||
![]() | 18.2万円 1.1万円 | なし 18.2万円 | ワンルーム 45.6m2 | 築55年 | 都営大江戸線 月島駅 徒歩2分 都営大江戸線 勝どき駅 徒歩7分 東京メトロ日比谷線 築地駅 徒歩21分 東京都中央区月島 | 詳細を見る | |
マンション ラティエラ大鳥居(1LDK/8階) | |||||||
![]() | 18.8万円 1.2万円 | 18.8万円 18.8万円 | 1LDK 41.07m2 | 築4年 | 京浜急行電鉄空港線 大鳥居駅 徒歩6分 東京都大田区萩中3丁目 | 詳細を見る | |
一戸建て 京浜東北・根岸線 蒲田駅 徒歩11分 築4年(2SLDK) | |||||||
![]() | 32.3万円 なし | 32.3万円 32.3万円 | 2SLDK 94.36m2 | 築4年 | 京浜東北・根岸線 蒲田駅 徒歩11分 東京都大田区東矢口3丁目 | 詳細を見る | |
マンション RJRプレシア大森北(2SLDK/2階) | |||||||
![]() | 27.4万円 1.5万円 | 27.4万円 なし | 2SLDK 59.47m2 | 築2年 | 京急本線 平和島駅 徒歩12分 JR京浜東北線 大森駅(東京) 徒歩14分 都営浅草線 西馬込駅 徒歩29分 東京都大田区大森北 | 詳細を見る | |
アパート 御殿山テラスⅡ(2LDK/1階) | |||||||
![]() | 23.9万円 3,000円 | 23.9万円 なし | 2LDK 57.6m2 | 築2年 | 山手線 大崎駅 徒歩8分 京浜急行電鉄本線 北品川駅 徒歩14分 東京都品川区北品川5丁目 | 詳細を見る | |
マンション シャルマンドミール(2LDK/2階) | |||||||
![]() | 17.6万円 3,000円 | 17.6万円 35.2万円 | 2LDK 57.22m2 | 築11年 | 京浜急行電鉄本線 大森町駅 徒歩14分 京浜急行電鉄本線 梅屋敷駅(東京) 徒歩15分 東京都大田区大森南1丁目 | 詳細を見る | |
マンション ジニア不動前(1DK/1階) | |||||||
![]() | 16.7万円 1.5万円 | 16.7万円 16.7万円 | 1DK 35.64m2 | 築5年 | 東急目黒線 不動前駅 徒歩7分 東急池上線 戸越銀座駅 徒歩11分 JR山手線 五反田駅 徒歩18分 東京都品川区西五反田 | 詳細を見る | |


/105x80-f1-q70-wp1)






