賃貸マンション
アーバハイツ六町環七北通の賃貸物件情報(1DK/3階)
| 家賃 | 管理費等 | 敷金 | 礼金 | 間取り | 専有面積 |
|---|---|---|---|---|---|
| 9.7万円 | 8,000円 | なし | なし | 1DK | 25.37m2 |
入居決定でお祝い金最大100,000円
Point
まずはお問い合わせ!
不動産会社は街のプロ、あなたに合った物件がきっと見つかります。
提供:ポラスの賃貸 Room'Spot竹ノ塚営業所(株)中央ビル管理(SUUMO経由)

詳細情報 アーバハイツ六町環七北通
物件紹介
アーバハイツ六町環七北通はつくばエクスプレス六町駅から徒歩7分にあり、駅近で通勤通学に便利なマンションです。
このお部屋は2階以上に位置しているので、通行人や周囲の住人からの視線が気になりにくく、防犯面でも安心。建物のエントランスはオートロックがついており、インターホンにはTVモニタもついているため、相手の顔を確認してから来客対応することができます。
フローリングのお部屋なのでお掃除もラクラク。キッチンはシステムキッチン仕様になっていますので、お料理好きの方にもぴったり。バス・トイレは別なので、のんびりお風呂タイムも楽しめるでしょう。また、雨の日でも浴室乾燥機を使えば、お洗濯も問題ありません。
通信設備面では、インターネットが無料で使えるので、月々の出費を抑えられるのも魅力です。また、BSアンテナ・CSアンテナもありますので、おうち時間も充実するでしょう(別途工事、BS・CSの契約料等が必要な場合あり)。
建物にはエレベーターがついているので、重い荷物があっても安心。共用部には宅配ボックスが設定されているので、不在の時にも荷物を受け取ることができます。また、ペット飼育の相談ができますので、あなたの大切な家族の一員も快適に暮らせるか、ぜひ確認してみてください。
このお部屋は2階以上に位置しているので、通行人や周囲の住人からの視線が気になりにくく、防犯面でも安心。建物のエントランスはオートロックがついており、インターホンにはTVモニタもついているため、相手の顔を確認してから来客対応することができます。
フローリングのお部屋なのでお掃除もラクラク。キッチンはシステムキッチン仕様になっていますので、お料理好きの方にもぴったり。バス・トイレは別なので、のんびりお風呂タイムも楽しめるでしょう。また、雨の日でも浴室乾燥機を使えば、お洗濯も問題ありません。
通信設備面では、インターネットが無料で使えるので、月々の出費を抑えられるのも魅力です。また、BSアンテナ・CSアンテナもありますので、おうち時間も充実するでしょう(別途工事、BS・CSの契約料等が必要な場合あり)。
建物にはエレベーターがついているので、重い荷物があっても安心。共用部には宅配ボックスが設定されているので、不在の時にも荷物を受け取ることができます。また、ペット飼育の相談ができますので、あなたの大切な家族の一員も快適に暮らせるか、ぜひ確認してみてください。
お金・契約の情報
※「-」と表示されているものは、実際は料金が発生するものもございます。詳細はお問い合わせください。
| 家賃 | 9.7万円 | 管理費・共益費 | 8,000円 |
|---|---|---|---|
| 敷金 | なし | 礼金 | なし |
| フリーレント | あり | ||
| 入居決定でお祝い金最大100,000円 | |||
| 保証金 | - | 償却・敷引 | - |
| 住宅保険料 | - | 更新料 | - |
| 保証会社利用 | 必須 | 保証会社名 | - |
| 保証会社費用 | - | 保証会社備考 | 保証会社利用必 株式会社エポスカード(東京) ROOM iD(個人)保証料:保証人有30% 無40% (法人)40%※保証人不要 更新料:10000円/1年14000円/1年(総賃料が15万以上) |
| 契約形態 | - | 契約期間 | - |
| 入居・引渡期間 | - | 現況 | - |
| 入居可能条件 | ペット相談 | ||
| 契約備考 | 合計7.15万円(内訳:カギ費用:33000円/退去時RC代:38500円) 1DK ペット相談/フリーレント1ヶ月 損保【2.2万円2年】 バストイレ別、バルコニー、エアコン、クロゼット、フローリング、シャワー付洗面台、浴室乾燥機、オートロック、室内洗濯置、シューズボックス、システムキッチン、温水洗浄便座、エレベーター、洗面化粧台、宅配ボックス、礼金不要、BS・CS、敷金不要、防犯カメラ、ペット相談、照明付、二人入居相談、ガスレンジ付、ネット使用料不要、フリーレント、ダブルロックキー、築2年以内、24時間換気システム、人感照明センサー、駅徒歩10分以内、敷地内ごみ置き場、都市ガス、BS、敷金・礼金不要 入居日:'26年1月下旬 | ||
部屋の情報
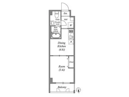
| 間取り | 1DK | 専有面積 | 25.37m2 |
|---|---|---|---|
| 所在階 / 向き | 3階 / - | バルコニー面積 | - |
| 水道 / ガス | - | ||
| 設備 | バス・トイレ別、2階以上、オートロック、宅配ボックス、浴室乾燥機、インターネット対応、システムキッチン、エアコン、エレベーター、温水洗浄便座、バルコニー、フローリング、コンロ:ガス、CSアンテナ、BSアンテナ、インターネット使用料無料、洗濯機:室内 | ||
| 当社物件ID | 160128380 | ||
建物の情報
| 建物名 | アーバハイツ六町環七北通 | ||
|---|---|---|---|
| 所在地 | 東京都足立区六町 | ||
| 交通 | つくばエクスプレス 六町駅 徒歩7分 | ||
| 階数 | 7階建 | 総戸数 | 59戸 |
| 築年月 | 2026年01月 / 新築 | エレベーター | あり |
| 駐車場 | なし | バイク置き場 | - |
| 駐輪場 | - | 管理人/管理会社 | - |
| 建物種別 | マンション | 建物構造 | RC(鉄筋コンクリート) |
この部屋の取扱い不動産会社
| 会社名 | ポラスの賃貸 Room'Spot竹ノ塚営業所(株)中央ビル管理(SUUMO経由) | ||
|---|---|---|---|
| 所在地 | 東京都足立区竹の塚6-15-6 プルミエール竹の塚107 | 交通 | - |
| 営業時間 | 9:30~18:00 | 定休日 | 火曜日・水曜日 |
| 免許番号 | 国土交通大臣3918 | 取引態様 | 仲介 |
| 不動産会社管理番号 | 100480375463 | 当社管理番号 | 89 |
| 所属団体 | (公社)東京都宅地建物取引業協会会員 | ||
| 公正取引協議会 | (公社)首都圏不動産公正取引協議会加盟 | ||
| 取扱い物件情報 | 物件詳細へ | ||
※各種情報と現状に差異がある場合は、現状優先となります。問い合わせをすることで、より詳しい条件、情報を確認する事ができます。
提供:ポラスの賃貸 Room'Spot竹ノ塚営業所(株)中央ビル管理(SUUMO経由)
この物件が気になったら掲載期限まであと11日
アーバハイツ六町環七北通の空き部屋一覧
全部で48の空き部屋があります。
アーバハイツ六町環七北通に条件(家賃・エリア)が近い物件一覧
| 写真 | 家賃 管理費等 | 敷金 礼金 | 間取り 専有面積 | 築年数 | 最寄り駅 所在地 | キープ | 詳細 |
|---|---|---|---|---|---|---|---|
マンション アーバンパーク押上(1DK/1階) | |||||||
![]() | 12.15万円 1.5万円 | なし なし | 1DK 25.81m2 | 築2年 | 東武伊勢崎・大師線 とうきょうスカイツリー駅 徒歩11分 東京都墨田区向島3丁目 | 詳細を見る | |
マンション スカイコート両国壱番館(ワンルーム/5階) | |||||||
![]() | 9.11万円 5,900円 | 9.11万円 9.11万円 | ワンルーム 23.4m2 | 築24年 | 総武・中央緩行線 両国駅 徒歩3分 東京都浅草線 東日本橋駅 徒歩11分 東京都新宿線 浜町駅 徒歩16分 東京都墨田区両国2丁目 | 詳細を見る | |
マンション 西川ビル(1K/7階) | |||||||
![]() | 9.2万円 8,000円 | なし 13.8万円 | 1K 23.26m2 | 築21年 | 東京地下鉄千代田線 西日暮里駅 徒歩2分 山手線 西日暮里駅 徒歩3分 京成電鉄本線 新三河島駅 徒歩12分 東京都荒川区西日暮里5丁目 | 詳細を見る | |
マンション アルカディアⅤ(1K/6階) | |||||||
![]() | 9.5万円 5,800円 | なし 14.25万円 | 1K 25.8m2 | 築11年 | 東京地下鉄日比谷線 南千住駅 徒歩5分 東京地下鉄日比谷線 三ノ輪駅 徒歩8分 常磐線 南千住駅 徒歩8分 東京都荒川区南千住2丁目 | 詳細を見る | |
マンション コンフォート文華(ワンルーム/2階) | |||||||
![]() | 8万円 3,000円 | なし 8万円 | ワンルーム 19.44m2 | 築28年 | 東京地下鉄半蔵門線 押上駅 徒歩5分 東武伊勢崎・大師線 曳舟駅 徒歩10分 東京都墨田区押上3丁目 | 詳細を見る | |
マンション HW.HILLS 東日暮里(1LDK/1階) | |||||||
![]() | 13.6万円 1万円 | なし なし | 1LDK 35.08m2 | 築1年 | 常磐線 三河島駅 徒歩7分 東京都荒川線 荒川区役所前駅 徒歩9分 東京地下鉄日比谷線 三ノ輪駅 徒歩13分 東京都荒川区東日暮里3丁目 | 詳細を見る | |
マンション VILLA VICINA(1LDK/1階) | |||||||
![]() | 14.2万円 4,000円 | 14.2万円 28.4万円 | 1LDK 44.5m2 | 築18年 | 総武・中央緩行線 錦糸町駅 徒歩13分 東京地下鉄半蔵門線 錦糸町駅 徒歩13分 東京都浅草線 本所吾妻橋駅 徒歩15分 東京都墨田区亀沢3丁目 | 詳細を見る | |
マンション ルクレ両国(1K/4階) | |||||||
![]() | 12万円 1.5万円 | なし なし | 1K 26.68m2 | 築6年 | 東京都大江戸線 両国駅 徒歩5分 東京都新宿線 森下駅(東京) 徒歩5分 総武・中央緩行線 両国駅 徒歩8分 東京都墨田区両国4丁目 | 詳細を見る | |


/105x80-f1-q70-wp1)






