賃貸マンション
ガーラ横濱関内グランドステージの賃貸物件情報(1K/10階)
| 家賃 | 管理費等 | 敷金 | 礼金 | 間取り | 専有面積 |
|---|---|---|---|---|---|
| 8.4万円 | 9,000円 | 8.4万円 | 16.8万円 | 1K | 21.67m2 |
入居決定でお祝い金最大100,000円
- 保証金
- -
- 償却・敷引
- -
- 築年数
- 築9年
- 所在階
- 10階
- 向き
- 北東
Point
収納はクロゼット・シューズボックスなどが備え付けられているので、衣類や日用品の収納に重宝します。
提供:FUNFUN賃貸合同会社(SUUMO経由)

詳細情報 ガーラ横濱関内グランドステージ
物件紹介
ガーラ横濱関内グランドステージはブルーライン伊勢佐木長者町駅から徒歩3分にあり、駅近で通勤通学に便利なマンションです。
このお部屋は2階以上に位置しているので、通行人や周囲の住人からの視線が気になりにくく、防犯面でも安心。建物のエントランスはオートロックがついており、インターホンにはTVモニタもついているため、相手の顔を確認してから来客対応することができます。
おしゃれなデザイナーズ物件!人気の角部屋で周囲の居住者の生活音も気になりにくく、また、フローリングのお部屋なのでお掃除もラクラク。キッチンはシステムキッチン仕様になっていますので、お料理好きの方にもぴったり。バス・トイレは別なので、のんびりお風呂タイムも楽しめるでしょう。また、雨の日でも浴室乾燥機を使えば、お洗濯も問題ありません。
通信設備面では、インターネットが無料で使えるので、月々の出費を抑えられるのも魅力です。また、BSアンテナ・CSアンテナもありますので、おうち時間も充実するでしょう(別途工事、BS・CSの契約料等が必要な場合あり)。
建物にはエレベーターがついているので、重い荷物があっても安心。共用部には宅配ボックスが設定されているので、不在の時にも荷物を受け取ることができます。
このお部屋は2階以上に位置しているので、通行人や周囲の住人からの視線が気になりにくく、防犯面でも安心。建物のエントランスはオートロックがついており、インターホンにはTVモニタもついているため、相手の顔を確認してから来客対応することができます。
おしゃれなデザイナーズ物件!人気の角部屋で周囲の居住者の生活音も気になりにくく、また、フローリングのお部屋なのでお掃除もラクラク。キッチンはシステムキッチン仕様になっていますので、お料理好きの方にもぴったり。バス・トイレは別なので、のんびりお風呂タイムも楽しめるでしょう。また、雨の日でも浴室乾燥機を使えば、お洗濯も問題ありません。
通信設備面では、インターネットが無料で使えるので、月々の出費を抑えられるのも魅力です。また、BSアンテナ・CSアンテナもありますので、おうち時間も充実するでしょう(別途工事、BS・CSの契約料等が必要な場合あり)。
建物にはエレベーターがついているので、重い荷物があっても安心。共用部には宅配ボックスが設定されているので、不在の時にも荷物を受け取ることができます。
お金・契約の情報
※「-」と表示されているものは、実際は料金が発生するものもございます。詳細はお問い合わせください。
| 家賃 | 8.4万円 | 管理費・共益費 | 9,000円 |
|---|---|---|---|
| 敷金 | 8.4万円 | 礼金 | 16.8万円 |
| 入居決定でお祝い金最大100,000円 | |||
| 保証金 | - | 償却・敷引 | - |
| 住宅保険料 | 1円 | 更新料 | - |
| その他費用 | (退去時)エアコンクリーニング費用/1台につき:1.32万円、26000円: | ||
| 保証会社利用 | 必須 | 保証会社名 | - |
| 保証会社費用 | - | 保証会社備考 | 初回保証料:賃料等の0.5ヶ月分(最低保証料2万円)/月額保証料 賃料等の1.2% |
| 契約形態 | - | 契約期間 | 2年 |
| 入居・引渡期間 | 2026年01月中旬 | 現況 | - |
| 入居可能条件 | 楽器不可、ペット不可 | ||
| 契約備考 | 鍵交換費用:23100 室内清掃費用:38500 その他設備/条件:室内洗濯機置き場、ごみ出し24時間OK、独立洗面台、防犯カメラ、クローゼット、シューズボックス、分譲賃貸 | ||
部屋の情報
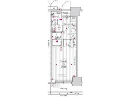
| 間取り | 1K | 専有面積 | 21.67m2 |
|---|---|---|---|
| 間取り詳細 | 洋室(7帖) | ||
| 所在階 / 向き | 10階 / 北東 | バルコニー面積 | 3m2 |
| 水道 / ガス | 水道【公営】、ガス【都市】 | ||
| 設備 | バス・トイレ別、オートロック、テレビドアホン、宅配ボックス、浴室乾燥機、光ファイバー対応、システムキッチン、エアコン、エレベーター、温水洗浄便座、バルコニー、フローリング、2口コンロ、コンロ:ガス、インターネット使用料無料、シャワー、給湯 | ||
| 当社物件ID | 160047626 | ||
建物の情報
| 建物名 | ガーラ横濱関内グランドステージ | ||
|---|---|---|---|
| 所在地 | 神奈川県横浜市中区不老町3丁目 | ||
| 交通 | 横浜市ブルーライン 伊勢佐木長者町駅 徒歩3分 京浜東北・根岸線 関内駅 徒歩5分 | ||
| 階数 | 11階建 | 総戸数 | 200戸 |
| 築年月 | 2017年03月 / 築9年 | エレベーター | あり |
| 駐車場 | 空有 1.9万円/月 台数:60 | バイク置き場 | - |
| 駐輪場 | あり | 管理人/管理会社 | 日勤 |
| 周辺環境 | その他 ドラッグストア その他 公園 その他 銀行 その他 * | ||
| 建物種別 | マンション | 建物構造 | RC(鉄筋コンクリート) |
この部屋の取扱い不動産会社
| 会社名 | ハウスコム東神奈川株式会社 横浜店 | ||
|---|---|---|---|
| 所在地 | 神奈川県横浜市西区20-2共栄ビル1階 | 交通 | - |
| 営業時間 | 10:00~18:00 | 定休日 | - |
| 免許番号 | 神奈川県知事(1)第31769号 | 取引態様 | 仲介 |
| 不動産会社管理番号 | HC5-5189389-1008-0054 | 当社管理番号 | 468 |
| 所属団体 | 、 | ||
| 取扱い物件情報 | 物件詳細へ | ||
※各種情報と現状に差異がある場合は、現状優先となります。問い合わせをすることで、より詳しい条件、情報を確認する事ができます。
提供:ハウスコム東神奈川株式会社 横浜店
この物件が気になったら掲載期限まであと1日
ガーラ横濱関内グランドステージの空き部屋一覧
全部で34の空き部屋があります。
ガーラ横濱関内グランドステージに条件(家賃・エリア)が近い物件一覧
| 写真 | 家賃 管理費等 | 敷金 礼金 | 間取り 専有面積 | 築年数 | 最寄り駅 所在地 | キープ | 詳細 |
|---|---|---|---|---|---|---|---|
マンション TOP・川崎第5(ワンルーム/6階) | |||||||
![]() | 5.5万円 4,000円 | なし なし | ワンルーム 16.96m2 | 築39年 | 京急本線 京急川崎駅 徒歩8分 京急大師線 港町駅 徒歩8分 JR東海道本線 川崎駅 徒歩12分 神奈川県川崎市川崎区本町 | 詳細を見る | |
アパート ブルーミー川崎(ワンルーム/2階) | |||||||
![]() | 5.5万円 3,500円 | なし なし | ワンルーム 12.35m2 | 新築 | 神奈川県川崎市川崎区桜本 | 詳細を見る | |
マンション GRAN MERVEILLE藤沢(1LDK/1階) | |||||||
![]() | 8.8万円 6,000円 | なし 17.6万円 | 1LDK 42.5m2 | 築7年 | 小田急電鉄江ノ島線 藤沢本町駅 徒歩8分 神奈川県藤沢市藤沢1丁目 | 詳細を見る | |
マンション レオパレスグランデ(1K/3階) | |||||||
![]() | 8.2万円 5,500円 | なし 8.2万円 | 1K 20.28m2 | 築25年 | 東急東横線 元住吉駅 徒歩11分 神奈川県川崎市中原区苅宿 | 詳細を見る | |
マンション LE GRAND BLUE-グランブルー-(1K/3階) | |||||||
![]() | 6.3万円 2,000円 | 6.3万円 6.3万円 | 1K 20.07m2 | 築10年 | 京急本線 追浜駅 徒歩3分 神奈川県横須賀市追浜町 | 詳細を見る | |
マンション プレール・ドゥーク川崎V(1K/4階) | |||||||
![]() | 10.7万円 8,000円 | なし 10.7万円 | 1K 22.34m2 | 築1年 | JR京浜東北線 川崎駅 徒歩9分 JR南武線 尻手駅 徒歩9分 京急本線 京急川崎駅 徒歩14分 神奈川県川崎市幸区南幸町 | 詳細を見る | |
マンション ライリッヒ・フーガ(2LDK/2階) | |||||||
![]() | 8.6万円 4,000円 | なし なし | 2LDK 50.5m2 | 築26年 | 神奈川県川崎市麻生区王禅寺 | 詳細を見る | |
マンション SQUARE CITY YOKOHAMA NEGISHI(1K/7階) | |||||||
![]() | 7.65万円 1.5万円 | なし 7.65万円 | 1K 21.58m2 | 新築 | 根岸線 根岸駅(神奈川) 徒歩8分 神奈川県横浜市中区根岸町3丁目 | 詳細を見る | |





