賃貸マンション
ガーラ横濱関内グランドステージの賃貸物件情報(1K/4階)
| 家賃 | 管理費等 | 敷金 | 礼金 | 間取り | 専有面積 |
|---|---|---|---|---|---|
| 8.1万円 | 9,000円 | 8.1万円 | 16.2万円 | 1K | 21.67m2 |
入居決定でお祝い金最大100,000円
- 保証金
- -
- 償却・敷引
- -
- 築年数
- 築9年
- 所在階
- 4階
- 向き
- -
Point
GOIng関内店では、初期費用を分割でお支払い頂くことが可能です☆他社さん掲載のお部屋でも対応可能です!!初期費用の減額交渉もさせて頂きます!また、近隣へのお迎え、送迎のサービスもしております♪
提供:(株)GOIng関内営業所(SUUMO経由)

詳細情報 ガーラ横濱関内グランドステージ
物件紹介
ガーラ横濱関内グランドステージはブルーライン伊勢佐木長者町駅から徒歩3分にあり、駅近で通勤通学に便利なマンションです。
このお部屋は2階以上に位置しているので、通行人や周囲の住人からの視線が気になりにくく、防犯面でも安心。建物のエントランスはオートロックがついており、インターホンにはTVモニタもついているため、相手の顔を確認してから来客対応することができます。
フローリングのお部屋なのでお掃除もラクラク。キッチンはシステムキッチン仕様になっていますので、お料理好きの方にもぴったり。バス・トイレは別なので、のんびりお風呂タイムも楽しめるでしょう。また、雨の日でも浴室乾燥機を使えば、お洗濯も問題ありません。
通信設備面では、インターネットが無料で使えるので、月々の出費を抑えられるのも魅力です(別途工事等が必要な場合あり)。
建物にはエレベーターがついているので、重い荷物があっても安心。共用部には宅配ボックスが設定されているので、不在の時にも荷物を受け取ることができます。
このお部屋は2階以上に位置しているので、通行人や周囲の住人からの視線が気になりにくく、防犯面でも安心。建物のエントランスはオートロックがついており、インターホンにはTVモニタもついているため、相手の顔を確認してから来客対応することができます。
フローリングのお部屋なのでお掃除もラクラク。キッチンはシステムキッチン仕様になっていますので、お料理好きの方にもぴったり。バス・トイレは別なので、のんびりお風呂タイムも楽しめるでしょう。また、雨の日でも浴室乾燥機を使えば、お洗濯も問題ありません。
通信設備面では、インターネットが無料で使えるので、月々の出費を抑えられるのも魅力です(別途工事等が必要な場合あり)。
建物にはエレベーターがついているので、重い荷物があっても安心。共用部には宅配ボックスが設定されているので、不在の時にも荷物を受け取ることができます。
お金・契約の情報
※「-」と表示されているものは、実際は料金が発生するものもございます。詳細はお問い合わせください。
| 家賃 | 8.1万円 | 管理費・共益費 | 9,000円 |
|---|---|---|---|
| 敷金 | 8.1万円 | 礼金 | 16.2万円 |
| 入居決定でお祝い金最大100,000円 | |||
| 保証金 | - | 償却・敷引 | - |
| 住宅保険料 | - | 更新料 | - |
| 保証会社利用 | 必須 | 保証会社名 | - |
| 保証会社費用 | - | 保証会社備考 | 保証会社利用必 保証料:賃料等の0.5ヶ月分(最低保証料2万円)/月額保証料800円 |
| 契約形態 | - | 契約期間 | - |
| 入居・引渡期間 | 即時 | 現況 | - |
| 契約備考 | 伊勢佐木長者町駅徒歩5秒!! GOIng関内店では、近隣への送迎サービスをしておりますので、ぜひご活用ください☆ また各種カードで初期費用分割払いご利用可能です!! 手数料も不要!3回から24回まで可能です♪ お手間取らせる審査なども一切ございませんので、お気軽にご相談ください☆カードのポイント等も貯まりますよ!! 合計2.31万円(内訳:鍵交換代等23100円) 【退去時】室内清掃費用:38,500円 エアコンクリーニング費用:13,200円 1K 普通借家2年 損保【2万円2年】 バストイレ別、バルコニー、エアコン、ガスコンロ対応、クロゼット、フローリング、TVインターホン、浴室乾燥機、オートロック、室内洗濯置、シューズボックス、システムキッチン、温水洗浄便座、脱衣所、エレベーター、洗面所独立、洗面化粧台、2口コンロ、駐輪場、宅配ボックス、光ファイバー、外壁タイル張り、即入居可、防犯カメラ、分譲賃貸、グリル付、保証人不要、敷金1ヶ月、24時間緊急通報システム、カードキー、駅まで平坦、ネット使用料不要、24時間換気システム、平坦地、人感照明センサー、エレベーター2基、耐震構造、3駅以上利用可、3沿線以上利用可、駅前、駅徒歩5分以内、24時間ゴミ出し可、敷地内ごみ置き場、都市ガス、礼金2ヶ月、IT重説対応物件、初期費用カード決済可、家賃カード決済可、通風良好 | ||
部屋の情報
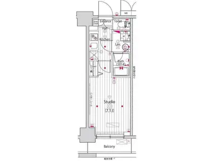
| 間取り | 1K | 専有面積 | 21.67m2 |
|---|---|---|---|
| 所在階 / 向き | 4階 / - | バルコニー面積 | - |
| 水道 / ガス | - | ||
| 設備 | バス・トイレ別、2階以上、オートロック、テレビドアホン、宅配ボックス、浴室乾燥機、インターネット対応、システムキッチン、エアコン、エレベーター、温水洗浄便座、バルコニー、フローリング、洗髪洗面化粧台、2口コンロ、コンロ:ガス、インターネット使用料無料、洗濯機:室内 | ||
| 当社物件ID | 39512313 | ||
建物の情報
| 建物名 | ガーラ横濱関内グランドステージ | ||
|---|---|---|---|
| 所在地 | 神奈川県横浜市中区不老町 | ||
| 交通 | ブルーライン 伊勢佐木長者町駅 徒歩3分 JR京浜東北線 関内駅 徒歩5分 みなとみらい線 日本大通り駅 徒歩13分 | ||
| 階数 | 11階建 | 総戸数 | 200戸 |
| 築年月 | 2017年03月 / 築9年 | エレベーター | あり |
| 駐車場 | 空有 24000円 | バイク置き場 | - |
| 駐輪場 | あり | 管理人/管理会社 | - |
| 周辺環境 | その他 ローソン不老町店(コンビニ)まで20m その他 横浜スタジアム(その他)まで400m その他 横浜中華街(その他)まで1000m その他 山下公園(公園)まで1500m その他 横浜市役所(役所)まで350m その他 神奈川県庁(役所)まで1000m | ||
| 建物種別 | マンション | 建物構造 | RC(鉄筋コンクリート) |
この部屋の取扱い不動産会社
| 会社名 | (株)GOIng関内営業所(SUUMO経由) | ||
|---|---|---|---|
| 所在地 | 神奈川県横浜市中区長者町4-11-7 長者町朝日ビル603 | 交通 | - |
| 営業時間 | 10:00~18:30 | 定休日 | 定休日なし |
| 免許番号 | 神奈川県知事32309 | 取引態様 | 仲介 |
| 不動産会社管理番号 | 100478271936 | 当社管理番号 | 89 |
| 所属団体 | (公社)神奈川県宅地建物取引業協会会員 | ||
| 公正取引協議会 | (公社)首都圏不動産公正取引協議会加盟 | ||
| 取扱い物件情報 | 物件詳細へ | ||
※各種情報と現状に差異がある場合は、現状優先となります。問い合わせをすることで、より詳しい条件、情報を確認する事ができます。
提供:(株)GOIng関内営業所(SUUMO経由)
この物件が気になったら掲載期限まであと10日
ガーラ横濱関内グランドステージの空き部屋一覧
全部で34の空き部屋があります。
ガーラ横濱関内グランドステージに条件(家賃・エリア)が近い物件一覧
| 写真 | 家賃 管理費等 | 敷金 礼金 | 間取り 専有面積 | 築年数 | 最寄り駅 所在地 | キープ | 詳細 |
|---|---|---|---|---|---|---|---|
マンション LEXE 横濱関内(ワンルーム/4階) | |||||||
![]() | 8.35万円 1.2万円 | なし なし | ワンルーム 21.71m2 | 築1年 | 横浜市ブルーライン 伊勢佐木長者町駅 徒歩5分 神奈川県横浜市中区福富町西通 | 詳細を見る | |
マンション シンフォニア大和(1K/5階) | |||||||
![]() | 5.7万円 9,000円 | 7万円 7万円 | 1K 25.18m2 | 築28年 | 小田急江ノ島線 大和駅(神奈川) 徒歩8分 相鉄本線 大和駅(神奈川) 徒歩8分 神奈川県大和市中央 | 詳細を見る | |
マンション ガーラ・ステーション川崎平間(2K/3階) | |||||||
![]() | 9.19万円 9,000円 | 9.19万円 13.79万円 | 2K 25.38m2 | 新築 | JR南武線 平間駅 徒歩3分 JR横須賀線 新川崎駅 徒歩15分 JR横須賀線 武蔵小杉駅 徒歩26分 神奈川県川崎市中原区田尻町 | 詳細を見る | |
マンション AXIS元住吉(1K/2階) | |||||||
![]() | 9.8万円 4,000円 | 9.8万円 19.6万円 | 1K 28.67m2 | 築19年 | 東急東横線 元住吉駅 徒歩6分 東急東横線 武蔵小杉駅 徒歩18分 神奈川県川崎市中原区木月住吉町 | 詳細を見る | |
アパート グリーンハイツB(ワンルーム/2階) | |||||||
![]() | 5.2万円 3,000円 | なし なし | ワンルーム 19.44m2 | 築33年 | 小田急線 柿生駅 徒歩10分 小田急多摩線 五月台駅 徒歩13分 小田急線 鶴川駅 徒歩29分 神奈川県川崎市麻生区片平 | 詳細を見る | |
マンション ガーラ・グランディ横濱関内(1K/11階) | |||||||
![]() | 8.2万円 9,000円 | 8.2万円 16.4万円 | 1K 22.5m2 | 築5年 | ブルーライン 伊勢佐木長者町駅 徒歩8分 JR京浜東北線 関内駅 徒歩13分 京急本線 黄金町駅 徒歩15分 神奈川県横浜市南区永楽町 | 詳細を見る | |
アパート リーフガーデンII(2LDK/1階) | |||||||
![]() | 11.9万円 6,000円 | なし 17.85万円 | 2LDK 59.6m2 | 築12年 | 小田急電鉄江ノ島線 六会日大前駅 徒歩6分 神奈川県藤沢市亀井野4丁目 | 詳細を見る | |
マンション ジェノヴィア川崎VII(1K/2階) | |||||||
![]() | 9.25万円 1万円 | なし なし | 1K 25.73m2 | 築1年 | JR東海道本線 川崎駅 徒歩10分 京急大師線 京急川崎駅 徒歩11分 JR南武線 八丁畷駅 徒歩13分 神奈川県川崎市川崎区南町 | 詳細を見る | |









