賃貸マンション
クラッシィハウス神田錦町の賃貸物件情報(1LDK/6階)
| 家賃 | 管理費等 | 敷金 | 礼金 | 間取り | 専有面積 |
|---|---|---|---|---|---|
| 22万円 | なし | 22万円 | 22万円 | 1LDK | 39.21m2 |
入居決定でお祝い金最大100,000円
- 保証金
- -
- 償却・敷引
- -
- 築年数
- 築8年
- 所在階
- 6階
- 向き
- 東
Point
オンライン内見・契約実施!気になる物件はまとめてご案内可能です!お部屋探しはナビホーム赤坂店にお任せください♪
提供:(株)タウンハウジング東京 秋葉原店(SUUMO経由)

詳細情報 クラッシィハウス神田錦町
物件紹介
クラッシィハウス神田錦町は東京メトロ千代田線新御茶ノ水駅から徒歩5分にあり、駅近で通勤通学に便利なマンションです。
このお部屋は2階以上に位置しているので、通行人や周囲の住人からの視線が気になりにくく、防犯面でも安心。建物のエントランスはオートロックがついており、インターホンにはTVモニタもついているため、相手の顔を確認してから来客対応することができます。
フローリングのお部屋なのでお掃除もラクラク。室内には人気のウォークインクローゼットがありますので、たくさんの荷物も効率的に収納ができます。キッチンはシステムキッチン仕様になっていますので、お料理好きの方にもぴったり。バス・トイレは別なので、のんびりお風呂タイムも楽しめるでしょう。また、雨の日でも浴室乾燥機を使えば、お洗濯も問題ありません。
通信設備面では、インターネットが無料で使えるので、月々の出費を抑えられるのも魅力です。また、BSアンテナ・CSアンテナがありCATVにも対応しているので、おうち時間も充実するでしょう(別途工事、BS・CS・CATVの契約料等が必要な場合あり)。
床暖房があり、冬も足元から暖かく快適に過ごすことができます。建物にはエレベーターがついているので、重い荷物があっても安心。共用部には宅配ボックスが設定されているので、不在の時にも荷物を受け取ることができます。
このお部屋は2階以上に位置しているので、通行人や周囲の住人からの視線が気になりにくく、防犯面でも安心。建物のエントランスはオートロックがついており、インターホンにはTVモニタもついているため、相手の顔を確認してから来客対応することができます。
フローリングのお部屋なのでお掃除もラクラク。室内には人気のウォークインクローゼットがありますので、たくさんの荷物も効率的に収納ができます。キッチンはシステムキッチン仕様になっていますので、お料理好きの方にもぴったり。バス・トイレは別なので、のんびりお風呂タイムも楽しめるでしょう。また、雨の日でも浴室乾燥機を使えば、お洗濯も問題ありません。
通信設備面では、インターネットが無料で使えるので、月々の出費を抑えられるのも魅力です。また、BSアンテナ・CSアンテナがありCATVにも対応しているので、おうち時間も充実するでしょう(別途工事、BS・CS・CATVの契約料等が必要な場合あり)。
床暖房があり、冬も足元から暖かく快適に過ごすことができます。建物にはエレベーターがついているので、重い荷物があっても安心。共用部には宅配ボックスが設定されているので、不在の時にも荷物を受け取ることができます。
お金・契約の情報
※「-」と表示されているものは、実際は料金が発生するものもございます。詳細はお問い合わせください。
| 家賃 | 22万円 | 管理費・共益費 | なし |
|---|---|---|---|
| 敷金 | 22万円 | 礼金 | 22万円 |
| 入居決定でお祝い金最大100,000円 | |||
| 保証金 | - | 償却・敷引 | - |
| 住宅保険料 | - | 更新料 | - |
| 保証会社利用 | 必須 | 保証会社名 | - |
| 保証会社費用 | - | 保証会社備考 | 保証会社利用必 株式会社Casa 初回保証料:賃料総額の50% 2年目以降保証料:毎年1万円 口座引落手数料:月額330円 |
| 契約形態 | 定期借家 | 契約期間 | 4年 |
| 入居・引渡期間 | - | 現況 | - |
| 契約備考 | 退去時の室内クリーニング費用66000円は借主負担 1年未満での解約は違約金220000円 民泊不可 賃貸保証:加入要株式会社Casa 初回保証料:賃料総額の50% 2年目以降保証料:毎年1万円 口座引落手数料:月額330円 1LDK 二人入居可 定期借家4年 損保【1.8万円2年】 バストイレ別、バルコニー、ガスコンロ対応、クロゼット、フローリング、TVインターホン、浴室乾燥機、オートロック、室内洗濯置、システムキッチン、追焚機能浴室、温水洗浄便座、脱衣所、エレベーター、洗面所独立、洗面化粧台、2口コンロ、駐輪場、宅配ボックス、外壁タイル張り、対面式キッチン、全居室収納、分譲賃貸、全居室洋室、ウォークインクロゼット、保証人不要、敷金1ヶ月、二人入居相談、全居室フローリング、2沿線利用可、ネット使用料不要、浄水器、床暖房、保証金不要、ミストサウナ、耐火構造、サウナ、2駅利用可、3駅以上利用可、3沿線以上利用可、駅徒歩5分以内、24時間ゴミ出し可、敷地内ごみ置き場、都市ガス、洗面所にドア、シューズWIC、年内入居可、年度内入居可、礼金1ヶ月、保証会社利用可 入居日:'26年1月中旬 | ||
部屋の情報
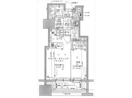
| 間取り | 1LDK | 専有面積 | 39.21m2 |
|---|---|---|---|
| 所在階 / 向き | 6階 / 東 | バルコニー面積 | 5m2 |
| 水道 / ガス | - | ||
| 設備 | バス・トイレ別、2階以上、オートロック、テレビドアホン、宅配ボックス、浴室乾燥機、ウォークインクローゼット、追い焚き、インターネット対応、システムキッチン、エレベーター、温水洗浄便座、バルコニー、フローリング、洗髪洗面化粧台、床暖房、2口コンロ、コンロ:ガス、インターネット使用料無料、洗濯機:室内 | ||
| 当社物件ID | 27545735 | ||
建物の情報
| 建物名 | クラッシィハウス神田錦町 | ||
|---|---|---|---|
| 所在地 | 東京都千代田区神田錦町 | ||
| 交通 | 東京メトロ千代田線 新御茶ノ水駅 徒歩5分 東京メトロ半蔵門線 大手町駅(東京) 徒歩7分 JR山手線 神田駅(東京) 徒歩10分 | ||
| 階数 | 13階建 | 総戸数 | - |
| 築年月 | 2018年03月 / 築8年 | エレベーター | あり |
| 駐車場 | なし | バイク置き場 | - |
| 駐輪場 | あり | 管理人/管理会社 | - |
| 周辺環境 | その他 ミニストップ 神田美土代町店(コンビニ)まで361m その他 セブンイレブン 神田小川町2丁目店(コンビニ)まで443m その他 くすりの福太郎 神田小川町店(ドラッグストア)まで354m その他 十字堂薬局(ドラッグストア)まで415m | ||
| 建物種別 | マンション | 建物構造 | RC(鉄筋コンクリート) |
この部屋の取扱い不動産会社
| 会社名 | TR(株)MINATO HOME(SUUMO経由) | ||
|---|---|---|---|
| 所在地 | 東京都港区赤坂2-19-5 内田ビル301 | 交通 | - |
| 営業時間 | 10:00~19:00 | 定休日 | 無し |
| 免許番号 | 東京都知事109457 | 取引態様 | 仲介 |
| 不動産会社管理番号 | 100479429483 | 当社管理番号 | 89 |
| 所属団体 | (公社)東京都宅地建物取引業協会会員 | ||
| 公正取引協議会 | (公社)首都圏不動産公正取引協議会加盟 | ||
| 取扱い物件情報 | 物件詳細へ | ||
※各種情報と現状に差異がある場合は、現状優先となります。問い合わせをすることで、より詳しい条件、情報を確認する事ができます。
提供:TR(株)MINATO HOME(SUUMO経由)
この物件が気になったら掲載期限まであと10日
クラッシィハウス神田錦町に条件(家賃・エリア)が近い物件一覧
| 写真 | 家賃 管理費等 | 敷金 礼金 | 間取り 専有面積 | 築年数 | 最寄り駅 所在地 | キープ | 詳細 |
|---|---|---|---|---|---|---|---|
マンション プライマル小石川(ワンルーム/3階) | |||||||
![]() | 13.3万円 7,000円 | 13.3万円 なし | ワンルーム 31.5m2 | 築20年 | 東京都大江戸線 飯田橋駅 徒歩9分 総武・中央緩行線 飯田橋駅 徒歩9分 東京地下鉄丸ノ内線 後楽園駅 徒歩11分 東京都文京区水道1丁目 | 詳細を見る | |
マンション アーバネックス東京八丁堀(1DK/10階) | |||||||
![]() | 16.7万円 1.5万円 | 16.7万円 なし | 1DK 25.02m2 | 築3年 | 東京メトロ日比谷線 八丁堀駅(東京) 徒歩4分 東京メトロ有楽町線 新富町駅(東京) 徒歩8分 都営浅草線 宝町駅 徒歩11分 東京都中央区入船 | 詳細を見る | |
マンション フロリス オーランティウム3(ワンルーム/5階) | |||||||
![]() | 18.2万円 1.1万円 | なし 18.2万円 | ワンルーム 45.6m2 | 築55年 | 都営大江戸線 月島駅 徒歩2分 都営大江戸線 勝どき駅 徒歩7分 東京メトロ日比谷線 築地駅 徒歩21分 東京都中央区月島 | 詳細を見る | |
マンション BLAU三ノ輪(1LDK/4階) | |||||||
![]() | 16.7万円 1.5万円 | 16.7万円 なし | 1LDK 40.08m2 | 築5年 | 東京地下鉄日比谷線 三ノ輪駅 徒歩4分 常磐線 南千住駅 徒歩13分 東京都台東区三ノ輪1丁目 | 詳細を見る | |
マンション プレール・ドゥーク浅草Ⅳ(1LDK/8階) | |||||||
![]() | 17万円 1万円 | なし 17万円 | 1LDK 40.32m2 | 築7年 | 東武伊勢崎・大師線 浅草駅(東武・都営・メトロ) 徒歩8分 東京地下鉄銀座線 浅草駅(東武・都営・メトロ) 徒歩9分 東京地下鉄日比谷線 入谷駅(東京) 徒歩19分 東京都台東区浅草3丁目 | 詳細を見る | |
マンション オーキッドレジデンス東日本橋(1K/6階) | |||||||
![]() | 16.7万円 1万円 | 16.7万円 16.7万円 | 1K 32.44m2 | 築23年 | 都営浅草線 東日本橋駅 徒歩1分 JR総武線快速 馬喰町駅 徒歩2分 都営新宿線 馬喰横山駅 徒歩2分 東京都中央区東日本橋 | 詳細を見る | |
マンション パレステージ文京江戸川橋(1DK/1階) | |||||||
![]() | 14.8万円 1.5万円 | なし 14.8万円 | 1DK 37.87m2 | 築9年 | 東京地下鉄有楽町線 江戸川橋駅 徒歩7分 東京地下鉄東西線 神楽坂駅 徒歩11分 東京地下鉄南北線 飯田橋駅 徒歩14分 東京都文京区水道2丁目 | 詳細を見る | |
マンション FIRSTSTAGE ASAKUSA BUILDING(1LDK/4階) | |||||||
![]() | 13.8万円 5,000円 | 13.8万円 なし | 1LDK 42.71m2 | 築34年 | つくばエクスプレス 新御徒町駅 徒歩6分 東京都大江戸線 新御徒町駅 徒歩6分 東京地下鉄銀座線 稲荷町駅(東京) 徒歩8分 東京都台東区元浅草3丁目 | 詳細を見る | |








