賃貸マンション
プレサンス神戸セレスティアの賃貸物件情報(1DK/11階)
| 家賃 | 管理費等 | 敷金 | 礼金 | 間取り | 専有面積 |
|---|---|---|---|---|---|
| 11.2万円 | 8,000円 | なし | 15万円 | 1DK | 29.61m2 |
入居決定でお祝い金最大100,000円
- 保証金
- -
- 償却・敷引
- -
- 築年数
- 築2年
- 所在階
- 11階
- 向き
- 北東
Point
IoT「マルチファンクションライト」採用!音響、外出先からの警戒&エアコンなどの遠隔操作が可能です!UFB「ウルトラファインバブル」水道水で100万分の1バブルであらゆる効果がコスト0で利用可能です!
提供:センチュリー21 (株)リライフ神戸三宮店(SUUMO経由)

詳細情報 プレサンス神戸セレスティア
物件紹介
プレサンス神戸セレスティアは神戸高速鉄道東西線高速神戸駅から徒歩1分にあり、駅近で通勤通学に便利なマンションです。
このお部屋は2階以上に位置しているので通行人や周囲の住人からの視線が気になりにくく、建物のエントランスはオートロックがついているので防犯性が高くなっています。
こちらは楽器相談が可能な物件。楽器演奏をお考えの方はぜひ相談してみてください。フローリングのお部屋なのでお掃除もラクラク。キッチンはシステムキッチン仕様になっていますので、お料理好きの方にもぴったり。バス・トイレは別なので、のんびりお風呂タイムも楽しめるでしょう。また、雨の日でも浴室乾燥機を使えば、お洗濯も問題ありません。
通信設備面では、インターネットが無料で使えるので、月々の出費を抑えられるのも魅力です。また、BSアンテナ・CSアンテナもありますので、おうち時間も充実するでしょう(別途工事、BS・CSの契約料等が必要な場合あり)。
建物にはエレベーターがついているので、重い荷物があっても安心。共用部には宅配ボックスが設定されているので、不在の時にも荷物を受け取ることができます。
このお部屋は2階以上に位置しているので通行人や周囲の住人からの視線が気になりにくく、建物のエントランスはオートロックがついているので防犯性が高くなっています。
こちらは楽器相談が可能な物件。楽器演奏をお考えの方はぜひ相談してみてください。フローリングのお部屋なのでお掃除もラクラク。キッチンはシステムキッチン仕様になっていますので、お料理好きの方にもぴったり。バス・トイレは別なので、のんびりお風呂タイムも楽しめるでしょう。また、雨の日でも浴室乾燥機を使えば、お洗濯も問題ありません。
通信設備面では、インターネットが無料で使えるので、月々の出費を抑えられるのも魅力です。また、BSアンテナ・CSアンテナもありますので、おうち時間も充実するでしょう(別途工事、BS・CSの契約料等が必要な場合あり)。
建物にはエレベーターがついているので、重い荷物があっても安心。共用部には宅配ボックスが設定されているので、不在の時にも荷物を受け取ることができます。
お金・契約の情報
※「-」と表示されているものは、実際は料金が発生するものもございます。詳細はお問い合わせください。
| 家賃 | 11.2万円 | 管理費・共益費 | 8,000円 |
|---|---|---|---|
| 敷金 | なし | 礼金 | 15万円 |
| 入居決定でお祝い金最大100,000円 | |||
| 保証金 | - | 償却・敷引 | - |
| 住宅保険料 | - | 更新料 | - |
| 保証会社利用 | 必須 | 保証会社名 | - |
| 保証会社費用 | - | 保証会社備考 | 保証会社利用必 プレサンス保証 初回50% 月額1.5% |
| 契約形態 | - | 契約期間 | - |
| 入居・引渡期間 | 相談 | 現況 | - |
| 入居可能条件 | 事務所可、楽器相談 | ||
| 契約備考 | ライフ神戸駅前店まで350m/ファミリーマート高速神戸店まで102m/通勤管理/**つなぐネットコミュニケーションズ「UCOM光レジデンス」搭載無料WiFi駐輪場/バイク置き場/オートロック/宅配BOX/WiFi無料/ディンプルキー/室内洗濯機置き場/浴室乾燥機/ウォシュレット/2口ガスコンロ/エアコン/シューズボックス/管理人/TVモニター付きインターホン/フローリング/エアコン/宅配ボックス/クローゼッット/シューズボックス/東向き/RC造マンション プレサポ安心24/900円 バイク置き場1500円 駐輪場500円 1DK 単身者可/二人入居可/楽器相談/事務所利用相談/ルームシェア相談 普通借家1年 損保【1.1万円1年】 バストイレ別、バルコニー、エアコン、クロゼット、浴室乾燥機、オートロック、室内洗濯置、陽当り良好、シューズボックス、システムキッチン、温水洗浄便座、脱衣所、洗面所独立、洗面化粧台、2口コンロ、駐輪場、宅配ボックス、光ファイバー、外壁タイル張り、BS・CS、敷金不要、防犯カメラ、分譲賃貸、保証人不要、二人入居相談、バイク置場、24時間緊急通報システム、全居室フローリング、ディンプルキー、駅まで平坦、ネット使用料不要、眺望良好、ダブルロックキー、事務所相談、24時間換気システム、楽器相談、平坦地、ルームシェア相談、人感照明センサー、エレベーター2基、耐震構造、3駅以上利用可、3沿線以上利用可、駅徒歩5分以内、敷地内ごみ置き場、平面駐車場、日勤管理、セキュリティ会社加入済、都市ガス、洗面所にドア、保証会社利用可、IT重説対応物件、高齢者歓迎、LGBTフレンドリー、初期費用カード決済可、通風良好 | ||
部屋の情報
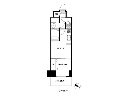
| 間取り | 1DK | 専有面積 | 29.61m2 |
|---|---|---|---|
| 所在階 / 向き | 11階 / 北東 | バルコニー面積 | 5m2 |
| 水道 / ガス | - | ||
| 設備 | バス・トイレ別、2階以上、オートロック、宅配ボックス、浴室乾燥機、インターネット対応、システムキッチン、エアコン、エレベーター、温水洗浄便座、バルコニー、フローリング、洗髪洗面化粧台、2口コンロ、CSアンテナ、BSアンテナ、インターネット使用料無料、洗濯機:室内 | ||
| 当社物件ID | 157332214 | ||
建物の情報
| 建物名 | プレサンス神戸セレスティア | ||
|---|---|---|---|
| 所在地 | 兵庫県神戸市兵庫区西多聞通 | ||
| 交通 | 神戸高速鉄道東西線 高速神戸駅 徒歩1分 JR東海道本線 神戸駅(兵庫) 徒歩8分 地下鉄海岸線 ハーバーランド駅 徒歩10分 | ||
| 階数 | 15階建 | 総戸数 | - |
| 築年月 | 2024年11月 / 築2年 | エレベーター | あり |
| 駐車場 | 近隣 100m18000円 | バイク置き場 | あり |
| 駐輪場 | あり | 管理人/管理会社 | - |
| 周辺環境 | その他 ライフ神戸駅前店(スーパー)まで350m その他 神鉄食彩館新開地店(スーパー)まで596m その他 ファミリーマート高速神戸店(コンビニ)まで102m その他 ダイコクドラッグ高速神戸駅西口店(ドラッグストア)まで296m その他 神戸多聞郵便局(郵便局)まで128m その他 三井住友銀行兵庫支店(銀行)まで429m | ||
| 建物種別 | マンション | 建物構造 | RC(鉄筋コンクリート) |
この部屋の取扱い不動産会社
| 会社名 | センチュリー21(株)リライフ神戸駅前店(SUUMO経由) | ||
|---|---|---|---|
| 所在地 | 兵庫県神戸市中央区相生町4-4-20 原田ビル2階 | 交通 | - |
| 営業時間 | 10:00~19:00 | 定休日 | 年末年始.水曜日 |
| 免許番号 | 兵庫県知事11692 | 取引態様 | 仲介 |
| 不動産会社管理番号 | 100481645582 | 当社管理番号 | 89 |
| 所属団体 | (公社)全日本不動産協会兵庫県本部会員 | ||
| 公正取引協議会 | (公社)近畿地区不動産公正取引協議会加盟 | ||
| 取扱い物件情報 | 物件詳細へ | ||
※各種情報と現状に差異がある場合は、現状優先となります。問い合わせをすることで、より詳しい条件、情報を確認する事ができます。
提供:センチュリー21(株)リライフ神戸駅前店(SUUMO経由)
この物件が気になったら掲載期限まであと5日
プレサンス神戸セレスティアの空き部屋一覧
全部で34の空き部屋があります。
プレサンス神戸セレスティアに条件(家賃・エリア)が近い物件一覧
| 写真 | 家賃 管理費等 | 敷金 礼金 | 間取り 専有面積 | 築年数 | 最寄り駅 所在地 | キープ | 詳細 |
|---|---|---|---|---|---|---|---|
マンション 神戸市海岸線 御崎公園駅 徒歩2分 築28年(2LDK/3階) | |||||||
![]() | 10.1万円 5,500円 | 20.2万円 なし | 2LDK 60m2 | 築28年 | 神戸市海岸線 御崎公園駅 徒歩2分 山陽本線 和田岬駅 徒歩12分 兵庫県神戸市兵庫区浜中町1丁目 | 詳細を見る | |
アパート エルビエントⅡ(2LDK/3階) | |||||||
![]() | 11.6万円 6,500円 | 3万円 25万円 | 2LDK 58.38m2 | 築9年 | 山陽本線 大久保駅(兵庫) 徒歩11分 山陽電気鉄道本線 中八木駅 徒歩26分 山陽電気鉄道本線 藤江駅 徒歩37分 兵庫県明石市大久保町大窪 | 詳細を見る | |
マンション 神戸市西神山手線 湊川公園駅 徒歩4分 築27年(1DK/10階) | |||||||
![]() | 9.15万円 2,190円 | 18.3万円 なし | 1DK 42m2 | 築27年 | 神戸市西神山手線 湊川公園駅 徒歩4分 神戸高速鉄道東西線 新開地駅 徒歩11分 東海道本線 神戸駅(兵庫) 徒歩23分 兵庫県神戸市兵庫区荒田町4丁目 | 詳細を見る | |
マンション カーサアトリオSK(1LDK/1階) | |||||||
![]() | 7万円 6,000円 | 2万円 なし | 1LDK 42.58m2 | 築7年 | 神戸電鉄粟生線 三木駅(神戸電鉄) 徒歩11分 神戸電鉄粟生線 大村駅(兵庫) 徒歩13分 神戸電鉄粟生線 三木上の丸駅 徒歩24分 兵庫県三木市平田 | 詳細を見る | |
アパート ヒカルサ稲美天満Ⅰ(1LDK/1階) | |||||||
![]() | 7.55万円 3,900円 | なし 7.55万円 | 1LDK 44.7m2 | 築1年 | 兵庫県加古郡稲美町六分一 | 詳細を見る | |
一戸建て 神戸電鉄粟生線 緑が丘駅(兵庫) 徒歩6分 築23年(3LDK) | |||||||
![]() | 9.8万円 3,500円 | 2万円 14万円 | 3LDK 92.29m2 | 築23年 | 神戸電鉄粟生線 緑が丘駅(兵庫) 徒歩6分 神戸電鉄粟生線 広野ゴルフ場前駅 徒歩13分 神戸電鉄粟生線 押部谷駅 徒歩22分 兵庫県三木市緑が丘町本町1丁目 | 詳細を見る | |
マンション サンハイツ志染(2LDK/3階) | |||||||
![]() | 7万円 3,000円 | 15万円 20万円 | 2LDK 62.56m2 | 築29年 | 神戸電鉄粟生線 志染駅 徒歩5分 兵庫県三木市志染町西自由が丘 | 詳細を見る | |
アパート LA MAISON林崎(2LDK/1階) | |||||||
![]() | 12.5万円 7,000円 | 3万円 25万円 | 2LDK 58.93m2 | 築1年 | 山陽電気鉄道本線 林崎松江海岸駅 徒歩9分 山陽電気鉄道本線 西新町駅 徒歩12分 兵庫県明石市林崎1 | 詳細を見る | |








