賃貸マンション
サンヒルズ金子の賃貸物件情報(ワンルーム/2階)
| 家賃 | 管理費等 | 敷金 | 礼金 | 間取り | 専有面積 |
|---|---|---|---|---|---|
| 22万円 | 5,500円 | なし | 22万円 | ワンルーム | 100m2 |
入居決定でお祝い金最大100,000円
- 保証金
- 110.0万円
- 償却・敷引
- -
- 築年数
- 築40年
- 所在階
- 2階
- 向き
- 西
- 交通
- 東急こどもの国線 こどもの国駅(神奈川) 徒歩32分
東急田園都市線 青葉台駅 徒歩34分
東急田園都市線 青葉台駅 バス乗車時間:7分 最寄りバス停で下車 徒歩2分
- 所在地
- 神奈川県横浜市青葉区鴨志田町
サンヒルズ金子
[地図を表示]
Point
駐車場1台付きの店舗に空きがでました!
提供:(株)横浜コミュニティー(SUUMO経由)

詳細情報 サンヒルズ金子
物件紹介
サンヒルズ金子は東急こどもの国線こどもの国駅から徒歩32分にあるマンションです。
このお部屋は2階以上に位置しているので、通行人や周囲の住人からの視線が気になりにくく、防犯面でも安心です。
人気の角部屋。周囲の居住者の生活音も気になりにくい場所です。
このお部屋は2階以上に位置しているので、通行人や周囲の住人からの視線が気になりにくく、防犯面でも安心です。
人気の角部屋。周囲の居住者の生活音も気になりにくい場所です。
お金・契約の情報
※「-」と表示されているものは、実際は料金が発生するものもございます。詳細はお問い合わせください。
| 家賃 | 22万円 | 管理費・共益費 | 5,500円 |
|---|---|---|---|
| 敷金 | なし | 礼金 | 22万円 |
| 入居決定でお祝い金最大100,000円 | |||
| 保証金 | 110.0万円 | 償却・敷引 | - |
| 住宅保険料 | - | 更新料 | - |
| 保証会社利用 | 必須 | 保証会社名 | - |
| 保証会社費用 | - | 保証会社備考 | 保証会社利用必 初回保証料:賃料総額100% |
| 契約形態 | - | 契約期間 | - |
| 入居・引渡期間 | 即時 | 現況 | - |
| 入居可能条件 | 事務所可 | ||
| 契約備考 | この物件のお問い合わせは横浜コミュニティーTEL:まで★お待ちしております。 ワンルーム 事務所利用相談 普通借家3年 角住戸、即入居可、閑静な住宅地、2面採光、3面採光、事務所相談、当社管理物件 | ||
部屋の情報
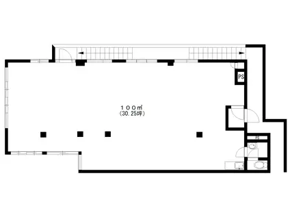
| 間取り | ワンルーム | 専有面積 | 100m2 |
|---|---|---|---|
| 所在階 / 向き | 2階 / 西 | バルコニー面積 | - |
| 水道 / ガス | - | ||
| 設備 | 2階以上、角部屋 | ||
| 当社物件ID | 123256918 | ||
建物の情報
| 建物名 | サンヒルズ金子 | ||
|---|---|---|---|
| 所在地 | 神奈川県横浜市青葉区鴨志田町 | ||
| 交通 | 東急こどもの国線 こどもの国駅(神奈川) 徒歩32分 東急田園都市線 青葉台駅 徒歩34分 東急田園都市線 青葉台駅 バス乗車時間:7分 最寄りバス停で下車 徒歩2分 | ||
| 階数 | 4階建 | 総戸数 | - |
| 築年月 | 1987年03月 / 築40年 | エレベーター | - |
| 駐車場 | 空有 付無料 | バイク置き場 | - |
| 駐輪場 | - | 管理人/管理会社 | - |
| 周辺環境 | その他 sanwa鴨志田店(スーパー)まで551m その他 いなげや横浜桂台店(スーパー)まで1334m その他 クリエイトエス・ディー新鴨志田店(ドラッグストア)まで293m その他 サンドラッグたちばな台店(ドラッグストア)まで1178m その他 セブンイレブン横浜鴨志田店(コンビニ)まで247m その他 ローソン鴨志田町店(コンビニ)まで439m | ||
| 建物種別 | マンション | 建物構造 | 鉄骨造 |
この部屋の取扱い不動産会社
| 会社名 | (株)横浜コミュニティー(SUUMO経由) | ||
|---|---|---|---|
| 所在地 | 神奈川県横浜市港北区大倉山1-3-13 | 交通 | - |
| 営業時間 | 9:00~18:00 | 定休日 | 毎水曜日 |
| 免許番号 | 神奈川県知事28100 | 取引態様 | 仲介 |
| 不動産会社管理番号 | 100301489951 | 当社管理番号 | 89 |
| 所属団体 | (公社)全日本不動産協会神奈川県本部会員 | ||
| 公正取引協議会 | (公社)首都圏不動産公正取引協議会加盟 | ||
| 取扱い物件情報 | 物件詳細へ | ||
※各種情報と現状に差異がある場合は、現状優先となります。問い合わせをすることで、より詳しい条件、情報を確認する事ができます。
提供:(株)横浜コミュニティー(SUUMO経由)
この物件が気になったら掲載期限まであと2日
サンヒルズ金子に条件(家賃・エリア)が近い物件一覧
| 写真 | 家賃 管理費等 | 敷金 礼金 | 間取り 専有面積 | 築年数 | 最寄り駅 所在地 | キープ | 詳細 |
|---|---|---|---|---|---|---|---|
マンション 下小田中1丁目ヘーベルメゾン(2LDK/1階) | |||||||
![]() | 20.4万円 7,000円 | 20.4万円 20.4万円 | 2LDK 58.9m2 | 新築 | JR南武線 武蔵中原駅 徒歩6分 JR南武線 武蔵新城駅 徒歩20分 東急東横線 武蔵小杉駅 徒歩27分 神奈川県川崎市中原区下小田中 | 詳細を見る | |
アパート D PAINA 登戸Ⅲ(1LDK/2階) | |||||||
![]() | 15.8万円 5,500円 | なし 31.6万円 | 1LDK 39.56m2 | 新築 | 小田急電鉄小田原線 登戸駅 徒歩8分 小田急電鉄小田原線 向ケ丘遊園駅 徒歩9分 神奈川県川崎市多摩区登戸 | 詳細を見る | |
マンション ブランシエスタ新丸子リバーフロント(2LDK/5階) | |||||||
![]() | 19.6万円 2万円 | 19.6万円 19.6万円 | 2LDK 40.39m2 | 築1年 | 東急東横線 新丸子駅 徒歩8分 東急東横線 武蔵小杉駅 徒歩14分 東急東横線 多摩川駅 徒歩17分 神奈川県川崎市中原区上丸子八幡町 | 詳細を見る | |
マンション ラゾーナ川崎レジデンス(2LDK/22階) | |||||||
![]() | 26.5万円 1.5万円 | 26.5万円 26.5万円 | 2LDK 61.03m2 | 築20年 | JR京浜東北線 川崎駅 徒歩3分 京急本線 京急川崎駅 徒歩3分 京急本線 六郷土手駅 徒歩24分 神奈川県川崎市幸区堀川町 | 詳細を見る | |
マンション ブレス宮崎台(1LDK/1階) | |||||||
![]() | 14.1万円 8,000円 | 14.1万円 14.1万円 | 1LDK 45.5m2 | 築10年 | 東急田園都市線 宮崎台駅 徒歩4分 東急田園都市線 宮前平駅 徒歩11分 東急田園都市線 梶が谷駅 徒歩25分 神奈川県川崎市宮前区宮崎 | 詳細を見る | |
マンション GENOVIA二子新地(1K/2階) | |||||||
![]() | 14.6万円 1.1万円 | なし 14.6万円 | 1K 25.35m2 | 築1年 | 東急田園都市線 二子新地駅 徒歩5分 東急田園都市線 高津駅(神奈川) 徒歩11分 東急田園都市線 二子玉川駅 徒歩13分 神奈川県川崎市高津区瀬田 | 詳細を見る | |
マンション ヘーベルヴィレッジ市ヶ尾東棟CALME イースト(1LDK/1階) | |||||||
![]() | 17.6万円 2.9万円 | 35.2万円 17.6万円 | 1LDK 47.05m2 | 築1年 | 東急田園都市線 市が尾駅 徒歩5分 東急田園都市線 藤が丘駅(神奈川) 徒歩21分 東急田園都市線 江田駅(神奈川) 徒歩22分 神奈川県横浜市青葉区市ケ尾町 | 詳細を見る | |
マンション SERES PROMENADE(1LDK/3階) | |||||||
![]() | 14.3万円 7,000円 | 14.3万円 14.3万円 | 1LDK 36.68m2 | 新築 | 東急田園都市線 高津駅(神奈川) 徒歩8分 神奈川県川崎市高津区二子6丁目 | 詳細を見る | |









/105x80-f1-q70-wp1)