賃貸マンション
ラ・リヴィエールの賃貸物件情報(3LDK/6階)
| 家賃 | 管理費等 | 敷金 | 礼金 | 間取り | 専有面積 |
|---|---|---|---|---|---|
| 16.5万円 | 5,000円 | なし | 49.5万円 | 3LDK | 80.4m2 |
入居決定でお祝い金最大100,000円
Point
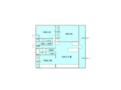
室内設備は浴室乾燥機・洗面所独立など大変充実しております。収納はクロゼット・シューズボックスなど豊富なので、広々と空間を利用することも可能です。バルコニー付きの物件で、用途に合わせて使用できます。
提供:博多エステート サンエー管理(株)(SUUMO経由)

詳細情報 ラ・リヴィエール
物件紹介
ラ・リヴィエールは地下鉄空港線姪浜駅から徒歩12分にあるマンションです。
このお部屋は2階以上に位置しているので、通行人や周囲の住人からの視線が気になりにくく、防犯面でも安心。建物のエントランスはオートロックがついており、インターホンにはTVモニタもついているため、相手の顔を確認してから来客対応することができます。
こちらは楽器相談が可能な物件。楽器演奏をお考えの方はぜひ相談してみてください。人気の角部屋で周囲の居住者の生活音も気になりにくく、また、フローリングのお部屋なのでお掃除もラクラク。バス・トイレ別の仕様で、のんびりお風呂タイムも楽しめます。また、浴室乾燥機を使えば、雨の日でもお洗濯は問題ありません。
通信設備面では、インターネットが無料で使えるので、月々の出費を抑えられるのも魅力です。また、BSアンテナもありますので、おうち時間も充実するでしょう(別途工事、BSの契約料等が必要な場合あり)。
建物にはエレベーターがついているので、重い荷物があっても安心。
このお部屋は2階以上に位置しているので、通行人や周囲の住人からの視線が気になりにくく、防犯面でも安心。建物のエントランスはオートロックがついており、インターホンにはTVモニタもついているため、相手の顔を確認してから来客対応することができます。
こちらは楽器相談が可能な物件。楽器演奏をお考えの方はぜひ相談してみてください。人気の角部屋で周囲の居住者の生活音も気になりにくく、また、フローリングのお部屋なのでお掃除もラクラク。バス・トイレ別の仕様で、のんびりお風呂タイムも楽しめます。また、浴室乾燥機を使えば、雨の日でもお洗濯は問題ありません。
通信設備面では、インターネットが無料で使えるので、月々の出費を抑えられるのも魅力です。また、BSアンテナもありますので、おうち時間も充実するでしょう(別途工事、BSの契約料等が必要な場合あり)。
建物にはエレベーターがついているので、重い荷物があっても安心。
お金・契約の情報
※「-」と表示されているものは、実際は料金が発生するものもございます。詳細はお問い合わせください。
| 家賃 | 16.5万円 | 管理費・共益費 | 5,000円 |
|---|---|---|---|
| 敷金 | なし | 礼金 | 49.5万円 |
| 入居決定でお祝い金最大100,000円 | |||
| 保証金 | - | 償却・敷引 | - |
| 住宅保険料 | - | 更新料 | - |
| 保証会社利用 | 必須 | 保証会社名 | - |
| 保証会社費用 | - | 保証会社備考 | 保証会社利用必 エポスカード 初回50% 月次保証料1,000円 要確認 |
| 契約形態 | 定期借家 | 契約期間 | 3年 |
| 入居・引渡期間 | - | 現況 | - |
| 入居可能条件 | 楽器相談 | ||
| 契約備考 | 巡回管理/リフォーム:2026年2月室内全体浴室のユニットバス総交換。洗面台、ウォシュレットを 合計3.85万円(内訳:消毒代1.65万円鍵交換代2.2万円) 更新料 新賃料0.50ヶ月分 町費 月額500円 3LDK 法人希望/二人入居可/子供可/楽器相談 定期借家3年 損保【1万円1年】 バストイレ別、バルコニー、エアコン、ガスコンロ対応、クロゼット、フローリング、TVインターホン、浴室乾燥機、オートロック、室内洗濯置、シューズボックス、追焚機能浴室、角住戸、温水洗浄便座、エレベーター、洗面所独立、外壁タイル張り、閑静な住宅地、最上階、敷金不要、3口以上コンロ、対面式キッチン、防犯カメラ、出窓、保証人不要、全居室フローリング、3面採光、2沿線利用可、ネット使用料不要、保証金不要、楽器相談、前面棟無、2駅利用可、プロパンガス、BS、内装リフォーム後渡、リノベーション、年内入居可 入居日:'26年3月上旬 | ||
部屋の情報
| 間取り | 3LDK | 専有面積 | 80.4m2 |
|---|---|---|---|
| 所在階 / 向き | 6階 / 東 | バルコニー面積 | 11m2 |
| 水道 / ガス | - | ||
| 設備 | バス・トイレ別、2階以上、オートロック、テレビドアホン、浴室乾燥機、追い焚き、インターネット対応、エアコン、エレベーター、温水洗浄便座、角部屋、バルコニー、フローリング、洗髪洗面化粧台、2口コンロ、コンロ:ガス、BSアンテナ、インターネット使用料無料、洗濯機:室内 | ||
| 当社物件ID | 160369426 | ||
建物の情報
| 建物名 | ラ・リヴィエール | ||
|---|---|---|---|
| 所在地 | 福岡県福岡市西区姪の浜 | ||
| 交通 | 地下鉄空港線 姪浜駅 徒歩12分 JR筑肥線 姪浜駅 徒歩12分 | ||
| 階数 | 6階建 | 総戸数 | 28戸 |
| 築年月 | 1998年02月 / 築29年 | エレベーター | あり |
| 駐車場 | 空有 11000円 | バイク置き場 | - |
| 駐輪場 | - | 管理人/管理会社 | - |
| 周辺環境 | その他 JA福岡市姪浜支店(銀行)まで349m その他 にしてつストア レガネット姪の浜(スーパー)まで623m その他 ローソン 姪浜四丁目店(コンビニ)まで473m その他 姪浜郵便局(郵便局)まで695m その他 茂木病院(病院)まで218m その他 西警察署 姪の浜警部交番(警察署・交番)まで646m | ||
| 建物種別 | マンション | 建物構造 | RC(鉄筋コンクリート) |
この部屋の取扱い不動産会社
| 会社名 | 博多エステート サンエー管理(株)(SUUMO経由) | ||
|---|---|---|---|
| 所在地 | 福岡県福岡市博多区博多駅南1-15-29 レジディア博多 | 交通 | - |
| 営業時間 | 9:30~18:00 | 定休日 | 年末年始・お盆 |
| 免許番号 | 福岡県知事13728 | 取引態様 | 代理 |
| 不動産会社管理番号 | 100487486424 | 当社管理番号 | 89 |
| 所属団体 | (公社)福岡県宅地建物取引業協会会員 | ||
| 公正取引協議会 | (一社)九州不動産公正取引協議会加盟 | ||
| 取扱い物件情報 | 物件詳細へ | ||
※各種情報と現状に差異がある場合は、現状優先となります。問い合わせをすることで、より詳しい条件、情報を確認する事ができます。
提供:博多エステート サンエー管理(株)(SUUMO経由)
この物件が気になったら掲載期限まであと10日
ラ・リヴィエールに条件(家賃・エリア)が近い物件一覧
| 写真 | 家賃 管理費等 | 敷金 礼金 | 間取り 専有面積 | 築年数 | 最寄り駅 所在地 | キープ | 詳細 |
|---|---|---|---|---|---|---|---|
タウンハウス GRAN FORTINA春日(3LDK) | |||||||
![]() | 12万円 4,000円 | なし 24万円 | 3LDK 80.3m2 | 築8年 | 西鉄天神大牟田線 井尻駅 徒歩23分 鹿児島本線 南福岡駅 徒歩26分 鹿児島本線 笹原駅 徒歩26分 福岡県春日市須玖南4丁目 | 詳細を見る | |
アパート D-ROOM平田台4丁目(2LDK/3階) | |||||||
![]() | 10.6万円 5,000円 | なし 21.2万円 | 2LDK 56.4m2 | 新築 | 西鉄天神大牟田線 白木原駅 徒歩33分 鹿児島本線 春日駅(福岡) 徒歩44分 西鉄天神大牟田線 春日原駅 徒歩47分 福岡県春日市平田台4丁目 | 詳細を見る | |
マンション シティパル春日セントレ(3SLDK/5階) | |||||||
![]() | 11万円 5,000円 | なし なし | 3SLDK 95.73m2 | 築34年 | JR博多南線 博多南駅 徒歩27分 JR鹿児島本線 春日駅(福岡) 徒歩27分 JR鹿児島本線 南福岡駅 徒歩33分 福岡県春日市大谷 | 詳細を見る | |
タウンハウス ヘーベルメゾンⅠ-NE(3LDK) | |||||||
![]() | 12.3万円 6,500円 | なし なし | 3LDK 74.08m2 | 築1年 | 鹿児島本線 南福岡駅 徒歩17分 鹿児島本線 春日駅(福岡) 徒歩18分 西鉄天神大牟田線 桜並木駅 徒歩23分 福岡県春日市伯玄町2丁目 | 詳細を見る | |
アパート トリシア 東大利(3LDK/3階) | |||||||
![]() | 14万円 7,500円 | なし 14万円 | 3LDK 70.68m2 | 築1年 | 西鉄天神大牟田線 白木原駅 徒歩11分 鹿児島本線 大野城駅 徒歩16分 福岡県大野城市東大利2丁目 | 詳細を見る | |
マンション アリビオ春日野(2LDK/3階) | |||||||
![]() | 10.3万円 6,000円 | なし 20.6万円 | 2LDK 63.28m2 | 築1年 | 西鉄天神大牟田線 白木原駅 徒歩21分 鹿児島本線 大野城駅 徒歩22分 西鉄天神大牟田線 下大利駅 徒歩33分 福岡県春日市 | 詳細を見る | |
マンション 博多南線 博多南駅 徒歩6分 築27年(4LDK/8階) | |||||||
![]() | 13.5万円 なし | 13.5万円 27万円 | 4LDK 96.16m2 | 築27年 | 博多南線 博多南駅 徒歩6分 鹿児島本線 南福岡駅 徒歩47分 福岡県春日市 | 詳細を見る | |








