賃貸マンション
ヒューリックレジデンス千葉中央の賃貸物件情報(1K/14階)
| 家賃 | 管理費等 | 敷金 | 礼金 | 間取り | 専有面積 |
|---|---|---|---|---|---|
| 8.9万円 | 4,000円 | 8.9万円 | 8.9万円 | 1K | 26.32m2 |
入居決定でお祝い金最大100,000円
- 保証金
- -
- 償却・敷引
- -
- 築年数
- 築12年
- 所在階
- 14階
- 向き
- 北西
Point
収納はシューズボックス・クロゼットなど豊富なので、衣類や履き物の整理がしやすく便利です。
提供:(株)リビングギャラリー千葉店(SUUMO経由)

詳細情報 ヒューリックレジデンス千葉中央
物件紹介
ヒューリックレジデンス千葉中央は千葉都市モノレール葭川公園駅から徒歩4分にあり、駅近で通勤通学に便利なマンションです。
このお部屋は2階以上に位置しているので、通行人や周囲の住人からの視線が気になりにくく、防犯面でも安心。建物のエントランスはオートロックがついており、インターホンにはTVモニタもついているため、相手の顔を確認してから来客対応することができます。
フローリングのお部屋なのでお掃除もラクラク。キッチンはシステムキッチン仕様になっていますので、お料理好きの方にもぴったり。バス・トイレは別なので、のんびりお風呂タイムも楽しめるでしょう。また、雨の日でも浴室乾燥機を使えば、お洗濯も問題ありません。
通信設備面では、インターネット接続が可能です。また、BSアンテナ・CSアンテナもありますので、おうち時間も充実するでしょう(別途工事、契約料が必要な場合あり)。
建物にはエレベーターがついているので、重い荷物があっても安心。共用部には宅配ボックスが設定されているので、不在の時にも荷物を受け取ることができます。
このお部屋は2階以上に位置しているので、通行人や周囲の住人からの視線が気になりにくく、防犯面でも安心。建物のエントランスはオートロックがついており、インターホンにはTVモニタもついているため、相手の顔を確認してから来客対応することができます。
フローリングのお部屋なのでお掃除もラクラク。キッチンはシステムキッチン仕様になっていますので、お料理好きの方にもぴったり。バス・トイレは別なので、のんびりお風呂タイムも楽しめるでしょう。また、雨の日でも浴室乾燥機を使えば、お洗濯も問題ありません。
通信設備面では、インターネット接続が可能です。また、BSアンテナ・CSアンテナもありますので、おうち時間も充実するでしょう(別途工事、契約料が必要な場合あり)。
建物にはエレベーターがついているので、重い荷物があっても安心。共用部には宅配ボックスが設定されているので、不在の時にも荷物を受け取ることができます。
お金・契約の情報
※「-」と表示されているものは、実際は料金が発生するものもございます。詳細はお問い合わせください。
| 家賃 | 8.9万円 | 管理費・共益費 | 4,000円 |
|---|---|---|---|
| 敷金 | 8.9万円 | 礼金 | 8.9万円 |
| 入居決定でお祝い金最大100,000円 | |||
| 保証金 | - | 償却・敷引 | - |
| 住宅保険料 | 1円 | 更新料 | - |
| その他費用 | 鍵交換費:2.75万円 | ||
| 保証会社利用 | 必須 | 保証会社名 | - |
| 保証会社費用 | - | 保証会社備考 | 貸主指定、初回総賃料35パーセント、以後月額賃料1パーセント |
| 契約形態 | - | 契約期間 | 2年 |
| 入居・引渡期間 | 相談 | 現況 | - |
| 入居可能条件 | 事務所不可、単身者限定、2人入居不可、学生可、楽器不可、ペット不可 | ||
| 契約備考 | 鍵交換費用:27500 その他設備/条件:室内洗濯機置き場、独立洗面台、防犯カメラ、ルームシェア不可、クローゼット、シューズボックス | ||
部屋の情報
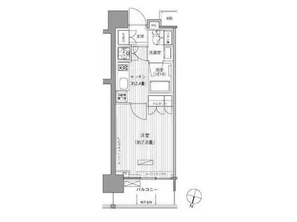
| 間取り | 1K | 専有面積 | 26.32m2 |
|---|---|---|---|
| 間取り詳細 | 洋室(7.8帖)、K(2.4帖) | ||
| 所在階 / 向き | 14階 / 北西 | バルコニー面積 | - |
| 水道 / ガス | 水道【公営】、ガス【都市】 | ||
| 設備 | バス・トイレ別、オートロック、テレビドアホン、宅配ボックス、浴室乾燥機、追い焚き、光ファイバー対応、システムキッチン、エアコン、エレベーター、バルコニー、フローリング、2口コンロ、コンロ:ガス、BSアンテナ、シャワー、給湯 | ||
| 当社物件ID | 12074321 | ||
建物の情報
| 建物名 | ヒューリックレジデンス千葉中央 | ||
|---|---|---|---|
| 所在地 | 千葉県千葉市中央区中央2丁目 | ||
| 交通 | 京成電鉄千葉線 千葉中央駅 徒歩9分 総武・中央緩行線 千葉駅 徒歩12分 | ||
| 階数 | 14階建 | 総戸数 | - |
| 築年月 | 2014年03月 / 築12年 | エレベーター | あり |
| 駐車場 | 空有 1.836万円/月 | バイク置き場 | あり |
| 駐輪場 | あり | 管理人/管理会社 | - |
| 周辺環境 | 小学校 千葉市立宮崎小学校 徒歩47分(3715m) その他 ドラッグストア その他 公園 その他 銀行 その他 * | ||
| 建物種別 | マンション | 建物構造 | RC(鉄筋コンクリート) |
この部屋の取扱い不動産会社
| 会社名 | ハウスコム千葉株式会社 稲毛店 | ||
|---|---|---|---|
| 所在地 | 千葉県千葉市稲毛区4-11川島東ビル3階 | 交通 | - |
| 営業時間 | 10:00~18:00 | 定休日 | - |
| 免許番号 | 千葉県知事(1)第18235号 | 取引態様 | 仲介 |
| 不動産会社管理番号 | HC2-239466-1409-0175 | 当社管理番号 | 468 |
| 所属団体 | 、 | ||
| 取扱い物件情報 | 物件詳細へ | ||
※各種情報と現状に差異がある場合は、現状優先となります。問い合わせをすることで、より詳しい条件、情報を確認する事ができます。
提供:ハウスコム千葉株式会社 稲毛店
この物件が気になったら掲載期限まであと4日
ヒューリックレジデンス千葉中央に条件(家賃・エリア)が近い物件一覧
| 写真 | 家賃 管理費等 | 敷金 礼金 | 間取り 専有面積 | 築年数 | 最寄り駅 所在地 | キープ | 詳細 |
|---|---|---|---|---|---|---|---|
マンション コスモ千葉グレイスヒルズ(3LDK/6階) | |||||||
![]() | 9万円 なし | 18万円 9万円 | 3LDK 73.5m2 | 築35年 | 千葉県千葉市中央区都町 | 詳細を見る | |
アパート エクセルコート都(1LDK/1階) | |||||||
![]() | 6.3万円 2,000円 | 6.3万円 なし | 1LDK 41.84m2 | 築13年 | 千葉県千葉市中央区都町 | 詳細を見る | |
アパート イオソレーユII(1LDK/2階) | |||||||
![]() | 7.5万円 5,000円 | なし 3.75万円 | 1LDK 37.78m2 | 築16年 | 京成本線 八千代台駅 徒歩15分 京成本線 京成大和田駅 徒歩23分 東葉高速鉄道 八千代中央駅 徒歩29分 千葉県八千代市 | 詳細を見る | |
マンション エスポワール(1LDK/2階) | |||||||
![]() | 7万円 8,000円 | 7万円 7万円 | 1LDK 29.45m2 | 築8年 | JR内房線 本千葉駅 徒歩2分 千葉都市モノレール 県庁前駅(千葉) 徒歩7分 京成千葉線 千葉中央駅 徒歩12分 千葉県千葉市中央区港町 | 詳細を見る | |
アパート ユウ・エトワール(1LDK/1階) | |||||||
![]() | 11万円 5,000円 | なし 22万円 | 1LDK 44m2 | 新築 | 京成本線 京成津田沼駅 徒歩3分 JR総武線快速 津田沼駅 徒歩16分 京成松戸線 新津田沼駅 徒歩16分 千葉県習志野市津田沼 | 詳細を見る | |
アパート アウル勝田台(1LDK/2階) | |||||||
![]() | 7.1万円 3,500円 | なし 7.1万円 | 1LDK 28.98m2 | 新築 | 東葉高速鉄道 東葉勝田台駅 徒歩6分 京成電鉄本線 勝田台駅 徒歩7分 千葉県八千代市勝田台北2丁目 | 詳細を見る | |
マンション ロイジェントパークス千葉中央(ワンルーム/7階) | |||||||
![]() | 8.9万円 6,000円 | 8.9万円 なし | ワンルーム 26.96m2 | 築7年 | 京成電鉄千葉線 千葉中央駅 徒歩6分 千葉県千葉市中央区中央3丁目 | 詳細を見る | |
アパート メゾンライフ(1LDK/1階) | |||||||
![]() | 7.6万円 4,400円 | なし 7.6万円 | 1LDK 50.14m2 | 新築 | 東金線 大網駅 徒歩11分 外房線 大網駅 徒歩11分 千葉県大網白里市大竹 | 詳細を見る | |








