賃貸マンション
ルーウェ東大泉の賃貸物件情報(2LDK/1階)
| 家賃 | 管理費等 | 敷金 | 礼金 | 間取り | 専有面積 |
|---|---|---|---|---|---|
| 17.8万円 | 1.2万円 | 17.8万円 | 26.7万円 | 2LDK | 58.82m2 |
入居決定でお祝い金最大100,000円
- 保証金
- -
- 償却・敷引
- -
- 築年数
- 築1年
- 所在階
- 1階
- 向き
- 西
Point
当物件は初期費用分割払い可(クレジットカード決済も可)/お客様のご希望に合わせた方法(店頭、オンライン等)で物件をご提案いたします。初期費用のお見積りや入居希望日のご相談もお気軽にお問い合わせください
提供:アエラス石神井公園店 (株)アエラス.FR(SUUMO経由)

詳細情報 ルーウェ東大泉
物件紹介
ルーウェ東大泉は西武池袋線大泉学園駅から徒歩12分にあるマンションです。
建物のエントランスはオートロックがついており、インターホンにはTVモニタもついているため、相手の顔を確認してから来客対応することができます。
フローリングのお部屋なのでお掃除もラクラク。室内には人気のウォークインクローゼットがありますので、たくさんの荷物も効率的に収納ができます。キッチンはシステムキッチン仕様になっていますので、お料理好きの方にもぴったり。バス・トイレは別なので、のんびりお風呂タイムも楽しめるでしょう。また、雨の日でも浴室乾燥機を使えば、お洗濯も問題ありません。
通信設備面では、インターネットが無料で使えるので、月々の出費を抑えられるのも魅力です。また、CSアンテナがありCATVにも対応しているので、おうち時間も充実するでしょう(別途工事、CS・CATVの契約料等が必要な場合あり)。
建物にはエレベーターがついているので、重い荷物があっても安心。共用部には宅配ボックスが設定されているので、不在の時にも荷物を受け取ることができます。
建物のエントランスはオートロックがついており、インターホンにはTVモニタもついているため、相手の顔を確認してから来客対応することができます。
フローリングのお部屋なのでお掃除もラクラク。室内には人気のウォークインクローゼットがありますので、たくさんの荷物も効率的に収納ができます。キッチンはシステムキッチン仕様になっていますので、お料理好きの方にもぴったり。バス・トイレは別なので、のんびりお風呂タイムも楽しめるでしょう。また、雨の日でも浴室乾燥機を使えば、お洗濯も問題ありません。
通信設備面では、インターネットが無料で使えるので、月々の出費を抑えられるのも魅力です。また、CSアンテナがありCATVにも対応しているので、おうち時間も充実するでしょう(別途工事、CS・CATVの契約料等が必要な場合あり)。
建物にはエレベーターがついているので、重い荷物があっても安心。共用部には宅配ボックスが設定されているので、不在の時にも荷物を受け取ることができます。
お金・契約の情報
※「-」と表示されているものは、実際は料金が発生するものもございます。詳細はお問い合わせください。
| 家賃 | 17.8万円 | 管理費・共益費 | 1.2万円 |
|---|---|---|---|
| 敷金 | 17.8万円 | 礼金 | 26.7万円 |
| 入居決定でお祝い金最大100,000円 | |||
| 保証金 | - | 償却・敷引 | - |
| 住宅保険料 | - | 更新料 | - |
| 保証会社利用 | 必須 | 保証会社名 | - |
| 保証会社費用 | - | 保証会社備考 | 保証会社利用必 初回:賃料等の50%(最低2万)、月額保証・事務手数料:賃料等の1%(更新料無) |
| 契約形態 | - | 契約期間 | - |
| 入居・引渡期間 | 即時 | 現況 | - |
| 契約備考 | 東京都立大泉高等学校・東京都立まで631m/ベネッセ大泉学園まで374m/バイク置場(有料) 3300円月額額/CATVでBSCS視聴可(CATVBS別途契約要有償)/鍵交換代借主負担/室内清掃費用 61820円(退去時)/エアコン清掃費用借主負担(退去時) 2LDK 二人入居可/子供可 普通借家2年 損保【要】 バストイレ別、バルコニー、ガスコンロ対応、フローリング、TVインターホン、浴室乾燥機、オートロック、室内洗濯置、システムキッチン、追焚機能浴室、温水洗浄便座、脱衣所、エレベーター、洗面所独立、洗面化粧台、2口コンロ、駐輪場、宅配ボックス、CATV、光ファイバー、外壁タイル張り、即入居可、防犯カメラ、オートバス、グリル付、全居室洋室、ウォークインクロゼット、敷金1ヶ月、二人入居相談、バイク置場、ディンプルキー、CS、ネット使用料不要、食器洗乾燥機、ダブルロックキー、保証金不要、外壁コンクリート、エアコン3台、3駅以上利用可、24時間ゴミ出し可、玄関収納、高速ネット対応、初期費用カード決済可 | ||
部屋の情報
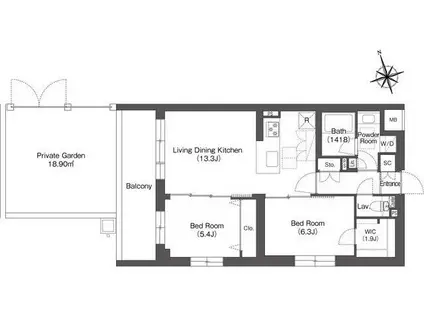
| 間取り | 2LDK | 専有面積 | 58.82m2 |
|---|---|---|---|
| 所在階 / 向き | 1階 / 西 | バルコニー面積 | - |
| 水道 / ガス | - | ||
| 設備 | バス・トイレ別、オートロック、テレビドアホン、宅配ボックス、浴室乾燥機、ウォークインクローゼット、追い焚き、インターネット対応、システムキッチン、エアコン、エレベーター、温水洗浄便座、バルコニー、フローリング、洗髪洗面化粧台、2口コンロ、コンロ:ガス、CATV、CSアンテナ、インターネット使用料無料、洗濯機:室内 | ||
| 当社物件ID | 158505879 | ||
建物の情報
| 建物名 | ルーウェ東大泉 | ||
|---|---|---|---|
| 所在地 | 東京都練馬区東大泉 | ||
| 交通 | 西武池袋線 大泉学園駅 徒歩12分 西武池袋線 石神井公園駅 徒歩20分 西武池袋線 練馬高野台駅 徒歩34分 | ||
| 階数 | 6階建 | 総戸数 | 89戸 |
| 築年月 | 2025年10月 / 築1年 | エレベーター | あり |
| 駐車場 | 近隣 392m14410円 | バイク置き場 | あり |
| 駐輪場 | あり | 管理人/管理会社 | - |
| 周辺環境 | その他 ハンズビーグランエミオ大泉学園店(ホームセンター)まで1143m その他 グランエミオ大泉学園(ショッピングセンター)まで1149m その他 リヴィンオズ大泉店(スーパー)まで510m その他 セブンイレブン練馬東大泉NTTビル店(コンビニ)まで507m その他 ウエルシア練馬三原台店(ドラッグストア)まで310m その他 ひとくち茶屋 大泉OZリヴィン店(飲食店)まで733m | ||
| 建物種別 | マンション | 建物構造 | RC(鉄筋コンクリート) |
この部屋の取扱い不動産会社
| 会社名 | アエラス石神井公園店 (株)アエラス.FR(SUUMO経由) | ||
|---|---|---|---|
| 所在地 | 東京都練馬区石神井町3-21-10 セリオ石神井公園 1階 | 交通 | - |
| 営業時間 | 10:00~19:00 | 定休日 | 毎週水曜日 |
| 免許番号 | 国土交通大臣10206 | 取引態様 | 仲介 |
| 不動産会社管理番号 | 100481236257 | 当社管理番号 | 89 |
| 所属団体 | (公社)東京都宅地建物取引業協会会員 | ||
| 公正取引協議会 | (公社)首都圏不動産公正取引協議会加盟 | ||
| 取扱い物件情報 | 物件詳細へ | ||
※各種情報と現状に差異がある場合は、現状優先となります。問い合わせをすることで、より詳しい条件、情報を確認する事ができます。
提供:アエラス石神井公園店 (株)アエラス.FR(SUUMO経由)
この物件が気になったら掲載期限まであと10日
ルーウェ東大泉の空き部屋一覧
全部で34の空き部屋があります。
ルーウェ東大泉に条件(家賃・エリア)が近い物件一覧
| 写真 | 家賃 管理費等 | 敷金 礼金 | 間取り 専有面積 | 築年数 | 最寄り駅 所在地 | キープ | 詳細 |
|---|---|---|---|---|---|---|---|
マンション MOMOS HOUSE(1LDK/1階) | |||||||
![]() | 14万円 5,000円 | なし 14万円 | 1LDK 41.15m2 | 築1年 | 京王線 八幡山駅 徒歩4分 京王線 芦花公園駅 徒歩10分 京王線 上北沢駅 徒歩13分 東京都杉並区上高井戸 | 詳細を見る | |
マンション スターロワイヤル阿佐谷(3SLDK/3階) | |||||||
![]() | 25.5万円 なし | 12.75万円 25.5万円 | 3SLDK 95.73m2 | 築40年 | JR中央線 阿佐ケ谷駅 徒歩6分 東京メトロ丸ノ内線 南阿佐ケ谷駅 徒歩8分 東京メトロ丸ノ内線 新高円寺駅 徒歩14分 東京都杉並区阿佐谷南 | 詳細を見る | |
マンション シティライフ赤塚(2LDK/5階) | |||||||
![]() | 18.8万円 1万円 | 18.8万円 なし | 2LDK 58.32m2 | 築34年 | 東京メトロ有楽町線 地下鉄赤塚駅 徒歩1分 東武東上線 下赤塚駅 徒歩4分 東京都板橋区赤塚新町 | 詳細を見る | |
マンション SAKURA AXIS 中板橋(1K/3階) | |||||||
![]() | 11.65万円 1万円 | 11.65万円 11.65万円 | 1K 25.65m2 | 築1年 | 東武東上線 中板橋駅 徒歩5分 東武東上線 ときわ台駅(東京) 徒歩5分 都営三田線 板橋本町駅 徒歩16分 東京都板橋区常盤台 | 詳細を見る | |
マンション アベニュー板橋(1LDK/1階) | |||||||
![]() | 16万円 8,000円 | 16万円 16万円 | 1LDK 37.52m2 | 築1年 | 東武東上線 下板橋駅 徒歩2分 JR埼京線 板橋駅 徒歩6分 都営三田線 新板橋駅 徒歩9分 東京都板橋区板橋 | 詳細を見る | |
マンション リコラータ(3LDK/2階) | |||||||
![]() | 28.6万円 1.1万円 | なし 57.2万円 | 3LDK 78.8m2 | 新築 | 東京メトロ有楽町線 千川駅 徒歩5分 東京メトロ副都心線 千川駅 徒歩5分 西武有楽町線 小竹向原駅 徒歩11分 東京都板橋区向原 | 詳細を見る | |







