賃貸マンション
ヒューリック荏原の賃貸物件情報(1K/5階)
| 家賃 | 管理費等 | 敷金 | 礼金 | 間取り | 専有面積 |
|---|---|---|---|---|---|
| 11.4万円 | 4,000円 | 11.4万円 | 11.4万円 | 1K | 23.32m2 |
入居決定でお祝い金最大100,000円
- 保証金
- -
- 償却・敷引
- -
- 築年数
- 築16年
- 所在階
- 5階
- 向き
- 南東
Point
まずはお問い合わせ!
不動産会社は街のプロ、あなたに合った物件がきっと見つかります。
提供:(株)REVE浜松町店(SUUMO経由)

詳細情報 ヒューリック荏原
物件紹介
ヒューリック荏原は東急池上線戸越銀座駅から徒歩8分にあり、駅近で通勤通学に便利なマンションです。
このお部屋は2階以上に位置しているので、通行人や周囲の住人からの視線が気になりにくく、防犯面でも安心。建物のエントランスはオートロックがついており、インターホンにはTVモニタもついているため、相手の顔を確認してから来客対応することができます。
人気の南向きのお部屋。また、フローリングなのでお掃除もラクラク。キッチンはシステムキッチン仕様になっていますので、お料理好きの方にもぴったり。バス・トイレは別なので、のんびりお風呂タイムも楽しめるでしょう。また、雨の日でも浴室乾燥機を使えば、お洗濯も問題ありません。
通信設備面では、インターネット接続が可能です。また、BSアンテナ・CSアンテナがありCATVにも対応しているので、おうち時間も充実するでしょう(別途工事、契約料が必要な場合あり)。
建物にはエレベーターがついているので、重い荷物があっても安心。共用部には宅配ボックスが設定されているので、不在の時にも荷物を受け取ることができます。
このお部屋は2階以上に位置しているので、通行人や周囲の住人からの視線が気になりにくく、防犯面でも安心。建物のエントランスはオートロックがついており、インターホンにはTVモニタもついているため、相手の顔を確認してから来客対応することができます。
人気の南向きのお部屋。また、フローリングなのでお掃除もラクラク。キッチンはシステムキッチン仕様になっていますので、お料理好きの方にもぴったり。バス・トイレは別なので、のんびりお風呂タイムも楽しめるでしょう。また、雨の日でも浴室乾燥機を使えば、お洗濯も問題ありません。
通信設備面では、インターネット接続が可能です。また、BSアンテナ・CSアンテナがありCATVにも対応しているので、おうち時間も充実するでしょう(別途工事、契約料が必要な場合あり)。
建物にはエレベーターがついているので、重い荷物があっても安心。共用部には宅配ボックスが設定されているので、不在の時にも荷物を受け取ることができます。
お金・契約の情報
※「-」と表示されているものは、実際は料金が発生するものもございます。詳細はお問い合わせください。
| 家賃 | 11.4万円 | 管理費・共益費 | 4,000円 |
|---|---|---|---|
| 敷金 | 11.4万円 | 礼金 | 11.4万円 |
| 入居決定でお祝い金最大100,000円 | |||
| 保証金 | - | 償却・敷引 | - |
| 住宅保険料 | - | 更新料 | - |
| 保証会社利用 | 必須 | 保証会社名 | - |
| 保証会社費用 | - | 保証会社備考 | 保証会社利用必 賃貸保証料:0.35ヶ月 |
| 契約形態 | - | 契約期間 | - |
| 入居・引渡期間 | 即時 | 現況 | - |
| 契約備考 | 東急大井町線戸越公園駅徒歩15分/~お客様の人生をより良いものにするため、責任と自信を持って住まいを提案する~港区を中心に、品川区・千代田区・中央区・新宿区など都内中心部の物件情報を取り扱っております。周辺環境を熟知したスタッフが、楽しくカウンセリングをしながら最適なご提案をさせていただきます。安心してお部屋探しをお任せください。「電話問合せ窓口」TEL 合計2.75万円(内訳:鍵交換代:27500円) 更新料新賃料(ヶ月):1.00ヶ月 1K 二人入居可 普通借家2年 損保【1.8万円2年】 バストイレ別、バルコニー、エアコン、ガスコンロ対応、クロゼット、フローリング、TVインターホン、浴室乾燥機、オートロック、室内洗濯置、シューズボックス、システムキッチン、追焚機能浴室、温水洗浄便座、エレベーター、洗面所独立、2口コンロ、駐輪場、宅配ボックス、CATV、光ファイバー、即入居可、BS・CS、防犯カメラ、保証人不要、敷金1ヶ月、二人入居相談、全居室フローリング、ネット専用回線、エアコン全室、南面リビング、全室東南向き、日勤管理、都市ガス、天井高シューズクロゼット、高速ネット対応、LAN、礼金1ヶ月、IT重説対応物件、初期費用カード決済可 | ||
部屋の情報
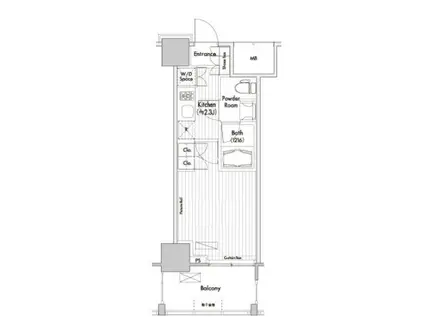
| 間取り | 1K | 専有面積 | 23.32m2 |
|---|---|---|---|
| 所在階 / 向き | 5階 / 南東 | バルコニー面積 | - |
| 水道 / ガス | - | ||
| 設備 | バス・トイレ別、2階以上、オートロック、テレビドアホン、宅配ボックス、浴室乾燥機、追い焚き、インターネット対応、システムキッチン、エアコン、エレベーター、温水洗浄便座、南向き、バルコニー、フローリング、洗髪洗面化粧台、2口コンロ、コンロ:ガス、CATV、CSアンテナ、BSアンテナ、洗濯機:室内 | ||
| 当社物件ID | 1090914 | ||
建物の情報
| 建物名 | ヒューリック荏原 | ||
|---|---|---|---|
| 所在地 | 東京都品川区荏原 | ||
| 交通 | 東急池上線 戸越銀座駅 徒歩8分 東急目黒線 武蔵小山駅 徒歩9分 都営浅草線 戸越駅 徒歩10分 | ||
| 階数 | 地下1地上13階建 | 総戸数 | - |
| 築年月 | 2010年08月 / 築16年 | エレベーター | あり |
| 駐車場 | なし | バイク置き場 | - |
| 駐輪場 | あり | 管理人/管理会社 | - |
| 周辺環境 | その他 戸越駅(都営地下鉄 浅草線)(その他)まで800m その他 アトレ目黒1(ショッピングセンター)まで2470m その他 ライフ品川御殿山店(スーパー)まで2560m その他 ローソン恵比寿南一丁目店(コンビニ)まで3860m その他 KoKuMiNアトレ恵比寿店(ドラッグストア)まで3960m その他 ヤマダデンキLABI LIFE SELECT品川大井町(ホームセンター)まで2900m | ||
| 建物種別 | マンション | 建物構造 | RC(鉄筋コンクリート) |
この部屋の取扱い不動産会社
| 会社名 | (株)REVE浜松町店(SUUMO経由) | ||
|---|---|---|---|
| 所在地 | 東京都港区芝公園2-10-4 浜松町ウエストビル3階 | 交通 | - |
| 営業時間 | 9:00~18:00 | 定休日 | - |
| 免許番号 | 東京都知事105371 | 取引態様 | 仲介 |
| 不動産会社管理番号 | 100482065853 | 当社管理番号 | 89 |
| 取扱い物件情報 | 物件詳細へ | ||
※各種情報と現状に差異がある場合は、現状優先となります。問い合わせをすることで、より詳しい条件、情報を確認する事ができます。
提供:(株)REVE浜松町店(SUUMO経由)
この物件が気になったら掲載期限まであと11日
ヒューリック荏原に条件(家賃・エリア)が近い物件一覧
| 写真 | 家賃 管理費等 | 敷金 礼金 | 間取り 専有面積 | 築年数 | 最寄り駅 所在地 | キープ | 詳細 |
|---|---|---|---|---|---|---|---|
マンション ラトレールエスポワール(1K/1階) | |||||||
![]() | 9.2万円 3,000円 | 9.2万円 なし | 1K 24.69m2 | 築24年 | 東急多摩川線 下丸子駅 徒歩4分 東急多摩川線 武蔵新田駅 徒歩14分 東京都大田区下丸子3丁目 | 詳細を見る | |
マンション ロサルバ大森(2DK/4階) | |||||||
![]() | 16.1万円 7,000円 | 16.1万円 16.1万円 | 2DK 50.48m2 | 築23年 | 京急本線 大森町駅 徒歩8分 京急本線 梅屋敷駅(東京) 徒歩8分 京急本線 平和島駅 徒歩14分 東京都大田区大森西 | 詳細を見る | |
マンション グラン シャリオ(1K/3階) | |||||||
![]() | 8.4万円 5,600円 | 8.4万円 なし | 1K 22.46m2 | 築17年 | 東急多摩川線 武蔵新田駅 徒歩9分 東急多摩川線 矢口渡駅 徒歩11分 東京都大田区矢口2丁目 | 詳細を見る | |
マンション クレヴィスタ亀戸IV(1K/10階) | |||||||
![]() | 13.5万円 1.1万円 | なし 13.5万円 | 1K 25.56m2 | 築6年 | 総武・中央緩行線 亀戸駅 徒歩4分 東武鉄道亀戸線 亀戸駅 徒歩4分 総武本線 錦糸町駅 徒歩12分 東京都江東区亀戸2丁目 | 詳細を見る | |
一戸建て 京浜急行電鉄本線 大森町駅 徒歩14分 築38年(3LDK) | |||||||
![]() | 14.8万円 なし | 14.8万円 14.8万円 | 3LDK 62.09m2 | 築38年 | 京浜急行電鉄本線 大森町駅 徒歩14分 京浜急行電鉄本線 平和島駅 徒歩19分 東京都大田区大森東3丁目 | 詳細を見る | |
マンション SEED JUST B-BASE COAST(1LDK/3階) | |||||||
![]() | 9.9万円 1.5万円 | 9.9万円 9.9万円 | 1LDK 25.41m2 | 築1年 | 東京モノレール羽田 昭和島駅 徒歩11分 京浜急行電鉄本線 梅屋敷駅(東京) 徒歩19分 東京都大田区大森南4丁目 | 詳細を見る | |
マンション メゾンドボナール(1DK/4階) | |||||||
![]() | 12万円 3,000円 | 12万円 なし | 1DK 32.48m2 | 築29年 | 京浜東北・根岸線 蒲田駅 徒歩10分 京浜急行電鉄本線 京急蒲田駅 徒歩10分 東京都大田区蒲田3丁目 | 詳細を見る | |
マンション メゾン大沢(1DK/5階) | |||||||
![]() | 8.5万円 なし | 8.5万円 8.5万円 | 1DK 28m2 | 築47年 | 東京地下鉄東西線 門前仲町駅 徒歩11分 東京地下鉄東西線 木場駅 徒歩11分 東京地下鉄半蔵門線 清澄白河駅 徒歩14分 東京都江東区冬木 | 詳細を見る | |









