賃貸アパート
晴美荘の賃貸物件情報(2K/2階)
| 家賃 | 管理費等 | 敷金 | 礼金 | 間取り | 専有面積 |
|---|---|---|---|---|---|
| 4.9万円 | 2,000円 | 9.8万円 | なし | 2K | 28.9m2 |
入居決定でお祝い金最大100,000円
Point
高台につき日当たり・通風良好!!敷地内駐車場有!!
提供:(有)第一住宅社(SUUMO経由)

詳細情報 晴美荘
物件紹介
晴美荘は小田急線町田駅から徒歩10分にあり、駅近で通勤通学に便利なアパートです。
このお部屋は2階以上に位置しているので、通行人や周囲の住人からの視線が気になりにくく、防犯面でも安心です。
人気の南向きのお部屋。また、フローリングなのでお掃除もラクラク。バス・トイレ別の仕様で、のんびりお風呂タイムも楽しめます。
通信設備面では、インターネット接続が可能です。また、BSアンテナがありCATVにも対応しているので、おうち時間も充実するでしょう(別途工事、契約料が必要な場合あり)。
このお部屋は2階以上に位置しているので、通行人や周囲の住人からの視線が気になりにくく、防犯面でも安心です。
人気の南向きのお部屋。また、フローリングなのでお掃除もラクラク。バス・トイレ別の仕様で、のんびりお風呂タイムも楽しめます。
通信設備面では、インターネット接続が可能です。また、BSアンテナがありCATVにも対応しているので、おうち時間も充実するでしょう(別途工事、契約料が必要な場合あり)。
お金・契約の情報
※「-」と表示されているものは、実際は料金が発生するものもございます。詳細はお問い合わせください。
| 家賃 | 4.9万円 | 管理費・共益費 | 2,000円 |
|---|---|---|---|
| 敷金 | 9.8万円 | 礼金 | なし |
| 入居決定でお祝い金最大100,000円 | |||
| 保証金 | - | 償却・敷引 | - |
| 住宅保険料 | - | 更新料 | - |
| 保証会社利用 | 必須 | 保証会社名 | - |
| 保証会社費用 | - | 保証会社備考 | 保証会社利用必 エルズサポ-ト 初回月額賃料等合計の50% 以降毎年1万円 |
| 契約形態 | - | 契約期間 | - |
| 入居・引渡期間 | 即時 | 現況 | - |
| 契約備考 | 巡回管理 カギ交換代 19,800円 2K 損保【2万円2年】 バストイレ別、バルコニー、エアコン、ガスコンロ対応、陽当り良好、追焚機能浴室、CATV、光ファイバー、即入居可、礼金不要、閑静な住宅地、全居室収納、内外装リフォーム済、保証人不要、2沿線利用可、眺望良好、高台に立地、一部フローリング、防音サッシ、前面棟無、敷地内ごみ置き場、平面駐車場、東南向き、和室、プロパンガス、シャッター、BS、通風良好 | ||
部屋の情報
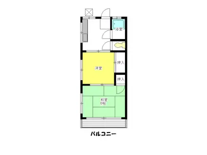
| 間取り | 2K | 専有面積 | 28.9m2 |
|---|---|---|---|
| 所在階 / 向き | 2階 / 南西 | バルコニー面積 | - |
| 水道 / ガス | - | ||
| 設備 | バス・トイレ別、2階以上、追い焚き、インターネット対応、エアコン、南向き、バルコニー、フローリング、コンロ:ガス、CATV、BSアンテナ | ||
| 当社物件ID | 19180946 | ||
建物の情報
| 建物名 | 晴美荘 | ||
|---|---|---|---|
| 所在地 | 東京都町田市森野 | ||
| 交通 | 小田急線 町田駅 徒歩10分 | ||
| 階数 | 2階建 | 総戸数 | - |
| 築年月 | 1981年03月 / 築45年 | エレベーター | - |
| 駐車場 | 空有 7700円 | バイク置き場 | - |
| 駐輪場 | - | 管理人/管理会社 | - |
| 周辺環境 | その他 フードワン森野店(スーパー)まで602m その他 セブンイレブン森野店(コンビニ)まで464m その他 ファミリーマート中里森野店(コンビニ)まで426m その他 安楽亭町田森野店(飲食店)まで207m その他 町田市役所(役所)まで519m その他 西友・小田急百貨店(ショッピングセンター)まで1000m | ||
| 建物種別 | アパート | 建物構造 | 木造 |
この部屋の取扱い不動産会社
| 会社名 | (有)第一住宅社(SUUMO経由) | ||
|---|---|---|---|
| 所在地 | 神奈川県相模原市南区若松3-48-2 | 交通 | - |
| 営業時間 | 9:00~17:00 | 定休日 | 水・祝日 |
| 免許番号 | 神奈川県知事5796 | 取引態様 | 仲介 |
| 不動産会社管理番号 | 100385259731 | 当社管理番号 | 89 |
| 所属団体 | (公社)神奈川県宅地建物取引業協会会員 | ||
| 公正取引協議会 | (公社)首都圏不動産公正取引協議会加盟 | ||
| 取扱い物件情報 | 物件詳細へ | ||
※各種情報と現状に差異がある場合は、現状優先となります。問い合わせをすることで、より詳しい条件、情報を確認する事ができます。
提供:(有)第一住宅社(SUUMO経由)
この物件が気になったら掲載期限まであと4日
晴美荘に条件(家賃・エリア)が近い物件一覧
| 写真 | 家賃 管理費等 | 敷金 礼金 | 間取り 専有面積 | 築年数 | 最寄り駅 所在地 | キープ | 詳細 |
|---|---|---|---|---|---|---|---|
アパート レオネクストコッリーナみなみ野(1LDK/1階) | |||||||
![]() | 7.7万円 5,000円 | なし 7.7万円 | 1LDK 46.94m2 | 築16年 | 横浜線 八王子みなみ野駅 徒歩16分 京王電鉄高尾線 山田駅(東京) 徒歩28分 東京都八王子市みなみ野5丁目 | 詳細を見る | |
アパート レオパレス大和田Ⅱ(1K/1階) | |||||||
![]() | 5.8万円 5,000円 | なし 5.8万円 | 1K 19.87m2 | 築18年 | 八高線 北八王子駅 徒歩12分 京王電鉄京王線 京王八王子駅 徒歩22分 中央本線 八王子駅 徒歩28分 東京都八王子市大和田町4丁目 | 詳細を見る | |
マンション ハイムサニーキャビンアネックス(1K/2階) | |||||||
![]() | 5.2万円 なし | なし 5.2万円 | 1K 25.41m2 | 築25年 | 京王高尾線 山田駅(東京) 徒歩3分 京王高尾線 めじろ台駅 徒歩20分 京王高尾線 京王片倉駅 徒歩22分 東京都八王子市小比企町 | 詳細を見る | |
アパート コーポこみや(ワンルーム/2階) | |||||||
![]() | 3.5万円 2,000円 | なし なし | ワンルーム 20.88m2 | 築42年 | 中央本線 西八王子駅 徒歩45分 京王電鉄京王線 京王八王子駅 徒歩63分 東京都八王子市犬目町 | 詳細を見る | |
アパート レオネクストプロムナード(ワンルーム/2階) | |||||||
![]() | 7万円 7,000円 | なし 7万円 | ワンルーム 33.12m2 | 築10年 | 八高線 北八王子駅 徒歩36分 東京都八王子市左入町 | 詳細を見る | |
アパート ワンデス(1K/1階) | |||||||
![]() | 5万円 なし | 7.5万円 なし | 1K 25.92m2 | 築20年 | 八高線 小宮駅 徒歩11分 八高線 北八王子駅 徒歩37分 青梅線 中神駅 徒歩49分 東京都八王子市久保山町1丁目 | 詳細を見る | |
マンション グリーンペアパレス(ワンルーム/1階) | |||||||
![]() | 3.8万円 2,000円 | なし なし | ワンルーム 20m2 | 築34年 | 京王電鉄京王線 京王八王子駅 徒歩17分 中央本線 八王子駅 徒歩19分 八高線 北八王子駅 徒歩29分 東京都八王子市大和田町7丁目 | 詳細を見る | |
マンション ミルト ハウス(1K/5階) | |||||||
![]() | 7.4万円 4,600円 | なし 14.8万円 | 1K 33.02m2 | 築7年 | JR八高線 北八王子駅 徒歩11分 JR中央線 豊田駅 徒歩26分 東京都八王子市高倉町 | 詳細を見る | |









