賃貸マンション
コスモグラシア三ノ輪の賃貸物件情報(2LDK/8階)
| 家賃 | 管理費等 | 敷金 | 礼金 | 間取り | 専有面積 |
|---|---|---|---|---|---|
| 22.1万円 | 2万円 | なし | なし | 2LDK | 50.4m2 |
入居決定でお祝い金最大100,000円
- 保証金
- -
- 償却・敷引
- -
- 築年数
- 築4年
- 所在階
- 8階
- 向き
- 南
Point
情報量ナンバーワン。常磐線、山手線、舎人ライナー、京成本線のお部屋探しはタウンハウジング日暮里店にお任せ下さい。
提供:(株)タウンハウジング東京 浅草店(SUUMO経由)

詳細情報 コスモグラシア三ノ輪
物件紹介
コスモグラシア三ノ輪は東京メトロ日比谷線三ノ輪駅から徒歩6分にあり、駅近で通勤通学に便利なマンションです。
このお部屋は2階以上に位置しているので、通行人や周囲の住人からの視線が気になりにくく、防犯面でも安心。建物のエントランスはオートロックがついており、インターホンにはTVモニタもついているため、相手の顔を確認してから来客対応することができます。
人気の南向きのお部屋。また、フローリングなのでお掃除もラクラク。キッチンはシステムキッチン仕様になっていますので、お料理好きの方にもぴったり。バス・トイレは別なので、のんびりお風呂タイムも楽しめるでしょう。また、雨の日でも浴室乾燥機を使えば、お洗濯も問題ありません。
通信設備面では、インターネットが無料で使えるので、月々の出費を抑えられるのも魅力です。また、BSアンテナ・CSアンテナもありますので、おうち時間も充実するでしょう(別途工事、BS・CSの契約料等が必要な場合あり)。
建物にはエレベーターがついているので、重い荷物があっても安心。共用部には宅配ボックスが設定されているので、不在の時にも荷物を受け取ることができます。
このお部屋は2階以上に位置しているので、通行人や周囲の住人からの視線が気になりにくく、防犯面でも安心。建物のエントランスはオートロックがついており、インターホンにはTVモニタもついているため、相手の顔を確認してから来客対応することができます。
人気の南向きのお部屋。また、フローリングなのでお掃除もラクラク。キッチンはシステムキッチン仕様になっていますので、お料理好きの方にもぴったり。バス・トイレは別なので、のんびりお風呂タイムも楽しめるでしょう。また、雨の日でも浴室乾燥機を使えば、お洗濯も問題ありません。
通信設備面では、インターネットが無料で使えるので、月々の出費を抑えられるのも魅力です。また、BSアンテナ・CSアンテナもありますので、おうち時間も充実するでしょう(別途工事、BS・CSの契約料等が必要な場合あり)。
建物にはエレベーターがついているので、重い荷物があっても安心。共用部には宅配ボックスが設定されているので、不在の時にも荷物を受け取ることができます。
お金・契約の情報
※「-」と表示されているものは、実際は料金が発生するものもございます。詳細はお問い合わせください。
| 家賃 | 22.1万円 | 管理費・共益費 | 2万円 |
|---|---|---|---|
| 敷金 | なし | 礼金 | なし |
| フリーレント | あり | ||
| 入居決定でお祝い金最大100,000円 | |||
| 保証金 | - | 償却・敷引 | - |
| 住宅保険料 | - | 更新料 | - |
| 保証会社利用 | 必須 | 保証会社名 | - |
| 保証会社費用 | - | 保証会社備考 | 保証会社利用必 賃貸保証料:0.40ヶ月 エポス |
| 契約形態 | - | 契約期間 | - |
| 入居・引渡期間 | 即時 | 現況 | - |
| 契約備考 | 都電荒川線荒川一中前駅徒歩15分/★インターネット上の物件はほぼ全てご紹介可能です★現地待ち合わせ、オンライン内見、オンライン申し込みも対応可能★お気軽にご相談ください♪お部屋探しはタウンハウジング日暮里店にお任せください!★ 合計1.5万円(内訳:エアコン清掃費:15000円) 更新料新賃料(ヶ月):1.00ヶ月、駐輪場:空有:220円/月 2LDK 二人入居可/フリーレント1ヶ月短期解約違約金 普通借家2年 損保【2.2万円2年】 バストイレ別、バルコニー、エアコン、ガスコンロ対応、クロゼット、フローリング、シャワー付洗面台、TVインターホン、浴室乾燥機、オートロック、室内洗濯置、シューズボックス、システムキッチン、南向き、温水洗浄便座、脱衣所、エレベーター、洗面所独立、洗面化粧台、駐輪場、宅配ボックス、即入居可、礼金不要、2面採光、BS・CS、敷金不要、3口以上コンロ、防犯カメラ、グリル付、保証人不要、二人入居相談、バイク置場、全居室フローリング、2沿線利用可、クッションフロア、ネット使用料不要、フリーレント、ダブルロックキー、保証金不要、クロゼット2ヶ所、築3年以内、2駅利用可、駅徒歩10分以内、高層階、築5年以内、都市ガス、洗面所にドア、南面バルコニー、敷金・礼金不要、IT重説対応物件、初期費用カード決済可 | ||
部屋の情報
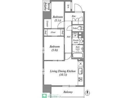
| 間取り | 2LDK | 専有面積 | 50.4m2 |
|---|---|---|---|
| 所在階 / 向き | 8階 / 南 | バルコニー面積 | - |
| 水道 / ガス | - | ||
| 設備 | バス・トイレ別、2階以上、オートロック、テレビドアホン、宅配ボックス、浴室乾燥機、インターネット対応、システムキッチン、エアコン、エレベーター、温水洗浄便座、南向き、バルコニー、フローリング、洗髪洗面化粧台、2口コンロ、コンロ:ガス、CSアンテナ、BSアンテナ、インターネット使用料無料、洗濯機:室内 | ||
| 当社物件ID | 127141131 | ||
建物の情報
| 建物名 | コスモグラシア三ノ輪 | ||
|---|---|---|---|
| 所在地 | 東京都台東区竜泉 | ||
| 交通 | 東京メトロ日比谷線 三ノ輪駅 徒歩6分 東京メトロ日比谷線 入谷駅(東京) 徒歩10分 都電荒川線 三ノ輪橋駅 徒歩12分 | ||
| 階数 | 14階建 | 総戸数 | - |
| 築年月 | 2022年12月 / 築4年 | エレベーター | あり |
| 駐車場 | 空有 36300円 | バイク置き場 | あり |
| 駐輪場 | あり | 管理人/管理会社 | - |
| 周辺環境 | その他 ドン・キホーテ浅草店(ショッピングセンター)まで1100m その他 ワイズマート三ノ輪店(スーパー)まで440m その他 まいばすけっと三ノ輪店(スーパー)まで630m その他 ミニストップ入谷2丁目店(コンビニ)まで400m その他 ファミリーマート(コンビニ)まで660m その他 どらっぐぱぱす入谷店(ドラッグストア)まで730m | ||
| 建物種別 | マンション | 建物構造 | RC(鉄筋コンクリート) |
この部屋の取扱い不動産会社
| 会社名 | (株)タウンハウジング東京 浅草店(SUUMO経由) | ||
|---|---|---|---|
| 所在地 | 東京都台東区雷門2-18-15 TSビル2階 | 交通 | - |
| 営業時間 | AM10:00~PM7:00 | 定休日 | 水曜日 |
| 免許番号 | 国土交通大臣9926 | 取引態様 | 仲介 |
| 不動産会社管理番号 | 100497263961 | 当社管理番号 | 89 |
| 所属団体 | (公社)東京都宅地建物取引業協会会員 | ||
| 公正取引協議会 | (公社)首都圏不動産公正取引協議会加盟 | ||
| 取扱い物件情報 | 物件詳細へ | ||
※各種情報と現状に差異がある場合は、現状優先となります。問い合わせをすることで、より詳しい条件、情報を確認する事ができます。
提供:(株)タウンハウジング東京 浅草店(SUUMO経由)
この物件が気になったら掲載期限まであと11日
コスモグラシア三ノ輪に条件(家賃・エリア)が近い物件一覧
| 写真 | 家賃 管理費等 | 敷金 礼金 | 間取り 専有面積 | 築年数 | 最寄り駅 所在地 | キープ | 詳細 |
|---|---|---|---|---|---|---|---|
マンション BELLE VUE 浅草橋(1LDK/9階) | |||||||
![]() | 18.3万円 1.2万円 | 18.3万円 18.3万円 | 1LDK 40.43m2 | 築12年 | 東京都浅草線 浅草橋駅 徒歩1分 総武・中央緩行線 浅草橋駅 徒歩2分 東京都台東区浅草橋1丁目 | 詳細を見る | |
マンション BLUROCK後楽園(2LDK/6階) | |||||||
![]() | 22.4万円 2万円 | 22.4万円 なし | 2LDK 40.51m2 | 築4年 | 東京地下鉄南北線 後楽園駅 徒歩7分 東京都三田線 春日駅(東京) 徒歩7分 東京都大江戸線 飯田橋駅 徒歩11分 東京都文京区春日1丁目 | 詳細を見る | |
マンション ルジェンテ・バリュ上野根岸(1LDK/12階) | |||||||
![]() | 15.3万円 1.2万円 | 15.3万円 15.3万円 | 1LDK 31.43m2 | 築4年 | 東京地下鉄日比谷線 入谷駅(東京) 徒歩5分 山手線 鶯谷駅 徒歩8分 山手線 上野駅 徒歩15分 東京都台東区根岸3丁目 | 詳細を見る | |
マンション ALTERNA菊川Ⅱ(1LDK/5階) | |||||||
![]() | 19.5万円 1.8万円 | なし なし | 1LDK 41.59m2 | 築4年 | 東京都新宿線 菊川駅(東京) 徒歩5分 東京都大江戸線 森下駅(東京) 徒歩13分 総武本線 錦糸町駅 徒歩15分 東京都墨田区立川4丁目 | 詳細を見る | |
マンション HF曳舟レジデンス(1LDK/4階) | |||||||
![]() | 17.4万円 1.4万円 | 17.4万円 17.4万円 | 1LDK 44.42m2 | 築8年 | 京成押上線 京成曳舟駅 徒歩8分 京成押上線 押上駅 徒歩16分 東京都墨田区京島 | 詳細を見る | |
マンション アーバネックス東京八丁堀(1LDK/2階) | |||||||
![]() | 16.3万円 1.5万円 | 16.3万円 なし | 1LDK 25.02m2 | 築4年 | 東京地下鉄日比谷線 八丁堀駅(東京) 徒歩4分 京葉線 八丁堀駅(東京) 徒歩4分 東京地下鉄日比谷線 築地駅 徒歩8分 東京都中央区入船2丁目 | 詳細を見る | |
マンション ラクラス日本橋久松町(1LDK/9階) | |||||||
![]() | 22.2万円 1.3万円 | 22.2万円 22.2万円 | 1LDK 41.83m2 | 築21年 | 都営浅草線 東日本橋駅 徒歩4分 都営新宿線 馬喰横山駅 徒歩4分 JR総武線快速 馬喰町駅 徒歩6分 東京都中央区日本橋久松町 | 詳細を見る | |
マンション ZOOM錦糸町(1LDK/12階) | |||||||
![]() | 20万円 1.5万円 | 20万円 20万円 | 1LDK 37.82m2 | 築5年 | 総武・中央緩行線 錦糸町駅 徒歩4分 総武本線 錦糸町駅 徒歩4分 東京地下鉄半蔵門線 錦糸町駅 徒歩5分 東京都墨田区江東橋2丁目 | 詳細を見る | |









