賃貸マンション
メインステージ両国IIの賃貸物件情報(1LDK/5階)
| 家賃 | 管理費等 | 敷金 | 礼金 | 間取り | 専有面積 |
|---|---|---|---|---|---|
| 19.4万円 | 1.5万円 | なし | なし | 1LDK | 41.11m2 |
入居決定でお祝い金最大100,000円
- 保証金
- -
- 償却・敷引
- -
- 築年数
- 築9年
- 所在階
- 5階
- 向き
- 東
Point
室内見学承ります・お客様のご都合に合わせてオンラインまたはお近くの店舗でご提案可・初期費用分割払い可・クレジットカード利用可・引越業者割引・初期費用のお見積や入居日のご相談もお気軽にお問合せください
提供:(株)リライフ浅草店(SUUMO経由)

詳細情報 メインステージ両国II
物件紹介
メインステージ両国IIは都営大江戸線両国駅から徒歩2分にあり、駅近で通勤通学に便利なマンションです。
このお部屋は2階以上に位置しているので、通行人や周囲の住人からの視線が気になりにくく、防犯面でも安心。建物のエントランスはオートロックがついており、インターホンにはTVモニタもついているため、相手の顔を確認してから来客対応することができます。
おしゃれなデザイナーズ物件!人気の角部屋で周囲の居住者の生活音も気になりにくく、また、フローリングのお部屋なのでお掃除もラクラク。キッチンはシステムキッチン仕様になっていますので、お料理好きの方にもぴったり。バス・トイレは別なので、のんびりお風呂タイムも楽しめるでしょう。また、雨の日でも浴室乾燥機を使えば、お洗濯も問題ありません。
通信設備面では、インターネットが無料で使えるので、月々の出費を抑えられるのも魅力です。また、BSアンテナ・CSアンテナもありますので、おうち時間も充実するでしょう(別途工事、BS・CSの契約料等が必要な場合あり)。
建物にはエレベーターがついているので、重い荷物があっても安心。共用部には宅配ボックスが設定されているので、不在の時にも荷物を受け取ることができます。また、ペット飼育の相談ができますので、あなたの大切な家族の一員も快適に暮らせるか、ぜひ確認してみてください。
このお部屋は2階以上に位置しているので、通行人や周囲の住人からの視線が気になりにくく、防犯面でも安心。建物のエントランスはオートロックがついており、インターホンにはTVモニタもついているため、相手の顔を確認してから来客対応することができます。
おしゃれなデザイナーズ物件!人気の角部屋で周囲の居住者の生活音も気になりにくく、また、フローリングのお部屋なのでお掃除もラクラク。キッチンはシステムキッチン仕様になっていますので、お料理好きの方にもぴったり。バス・トイレは別なので、のんびりお風呂タイムも楽しめるでしょう。また、雨の日でも浴室乾燥機を使えば、お洗濯も問題ありません。
通信設備面では、インターネットが無料で使えるので、月々の出費を抑えられるのも魅力です。また、BSアンテナ・CSアンテナもありますので、おうち時間も充実するでしょう(別途工事、BS・CSの契約料等が必要な場合あり)。
建物にはエレベーターがついているので、重い荷物があっても安心。共用部には宅配ボックスが設定されているので、不在の時にも荷物を受け取ることができます。また、ペット飼育の相談ができますので、あなたの大切な家族の一員も快適に暮らせるか、ぜひ確認してみてください。
お金・契約の情報
※「-」と表示されているものは、実際は料金が発生するものもございます。詳細はお問い合わせください。
| 家賃 | 19.4万円 | 管理費・共益費 | 1.5万円 |
|---|---|---|---|
| 敷金 | なし | 礼金 | なし |
| 入居決定でお祝い金最大100,000円 | |||
| 保証金 | - | 償却・敷引 | - |
| 住宅保険料 | - | 更新料 | - |
| 保証会社利用 | 必須 | 保証会社名 | - |
| 保証会社費用 | - | 保証会社備考 | 保証会社利用必 総家賃50%~ |
| 契約形態 | - | 契約期間 | - |
| 入居・引渡期間 | - | 現況 | - |
| 入居可能条件 | ペット相談 | ||
| 契約備考 | 当物件はオンラインまたはお近くの店舗でご相談お申込を承ります。リライフは首都圏23店舗のネットワークで豊富な物件情報をご提供いたします。当物件に類似した未公開物件のご提案も可能です。お気軽にお問い合わせください。違約金有:短期解約違約金有 合計4.62万円(内訳:鍵交換代金2.97万円AMLクラブサポート(初回のみ)1.65万円) 1LDK 二人入居可/ペット相談/事務所利用不可 損保【要】 バストイレ別、バルコニー、エアコン、ガスコンロ対応、クロゼット、フローリング、TVインターホン、浴室乾燥機、オートロック、室内洗濯置、シューズボックス、システムキッチン、角住戸、温水洗浄便座、脱衣所、エレベーター、洗面所独立、駐輪場、宅配ボックス、2面採光、3口以上コンロ、対面式キッチン、防犯カメラ、ペット相談、分譲賃貸、グリル付、保証人不要、二人入居相談、全居室フローリング、エアコン2台、ネット使用料不要、エアコン全室、ダブルロックキー、24時間換気システム、耐火構造、耐震構造、2駅利用可、3沿線以上利用可、24時間ゴミ出し可、敷地内ごみ置き場、都市ガス、シューズWIC、玄関収納、BS、LAN、保証会社利用可、初期費用カード決済可、通風良好 敷金積み増し【ペット飼育の場合敷金1ヶ月(総額)】 入居日:'26年4月中旬 | ||
部屋の情報
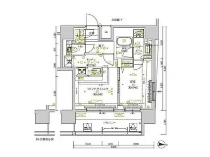
| 間取り | 1LDK | 専有面積 | 41.11m2 |
|---|---|---|---|
| 所在階 / 向き | 5階 / 東 | バルコニー面積 | - |
| 水道 / ガス | - | ||
| 設備 | バス・トイレ別、2階以上、オートロック、テレビドアホン、宅配ボックス、浴室乾燥機、インターネット対応、システムキッチン、エアコン、エレベーター、温水洗浄便座、角部屋、バルコニー、フローリング、洗髪洗面化粧台、2口コンロ、コンロ:ガス、BSアンテナ、インターネット使用料無料、洗濯機:室内 | ||
| 当社物件ID | 27196249 | ||
建物の情報
| 建物名 | メインステージ両国II | ||
|---|---|---|---|
| 所在地 | 東京都墨田区緑 | ||
| 交通 | 都営大江戸線 両国駅 徒歩2分 JR総武線 両国駅 徒歩7分 都営新宿線 森下駅(東京) 徒歩9分 | ||
| 階数 | 12階建 | 総戸数 | - |
| 築年月 | 2018年04月 / 築9年 | エレベーター | あり |
| 駐車場 | なし | バイク置き場 | - |
| 駐輪場 | あり | 管理人/管理会社 | - |
| 周辺環境 | その他 マルエツプチ 両国緑一丁目店(スーパー)まで140m その他 まいばすけっと 両国駅東店(スーパー)まで219m その他 セブンイレブン墨田両国4丁目店(コンビニ)まで98m その他 ファミリーマート 亀沢一丁目店(コンビニ)まで98m その他 どらっぐぱぱす 両国店(ドラッグストア)まで604m その他 ポニークリーニング都営両国駅前店(その他)まで228m | ||
| 建物種別 | マンション | 建物構造 | RC(鉄筋コンクリート) |
この部屋の取扱い不動産会社
| 会社名 | (株)リライフ浅草橋店(SUUMO経由) | ||
|---|---|---|---|
| 所在地 | 東京都台東区柳橋1-13-5 大島屋浅草橋ビル2階 | 交通 | - |
| 営業時間 | 10:00~18:30 | 定休日 | 毎週火・水曜日 |
| 免許番号 | 国土交通大臣10792 | 取引態様 | 仲介 |
| 不動産会社管理番号 | 100475199799 | 当社管理番号 | 89 |
| 所属団体 | (公社)東京都宅地建物取引業協会会員 | ||
| 公正取引協議会 | (公社)首都圏不動産公正取引協議会加盟 | ||
| 取扱い物件情報 | 物件詳細へ | ||
※各種情報と現状に差異がある場合は、現状優先となります。問い合わせをすることで、より詳しい条件、情報を確認する事ができます。
提供:(株)リライフ浅草橋店(SUUMO経由)
この物件が気になったら掲載期限まであと10日
メインステージ両国IIに条件(家賃・エリア)が近い物件一覧
| 写真 | 家賃 管理費等 | 敷金 礼金 | 間取り 専有面積 | 築年数 | 最寄り駅 所在地 | キープ | 詳細 |
|---|---|---|---|---|---|---|---|
マンション リブリ・うえの(1K/2階) | |||||||
![]() | 12.1万円 4,000円 | なし 12.1万円 | 1K 25.66m2 | 築13年 | 東京地下鉄日比谷線 仲御徒町駅 徒歩3分 東京都大江戸線 上野御徒町駅 徒歩3分 山手線 上野駅 徒歩5分 東京都台東区東上野2丁目 | 詳細を見る | |
マンション コンフォリア浅草松が谷(1LDK/9階) | |||||||
![]() | 20.2万円 8,000円 | 20.2万円 なし | 1LDK 43.08m2 | 築17年 | 東京地下鉄銀座線 田原町駅(東京) 徒歩7分 つくばエクスプレス 浅草駅(つくばEXP) 徒歩8分 東京都台東区松が谷1丁目 | 詳細を見る | |
マンション フュージョナル日本橋浜町(1K/7階) | |||||||
![]() | 12.8万円 1.2万円 | 12.8万円 12.8万円 | 1K 25.28m2 | 築13年 | 東京メトロ半蔵門線 水天宮前駅 徒歩4分 都営新宿線 浜町駅 徒歩8分 都営浅草線 人形町駅 徒歩11分 東京都中央区日本橋浜町 | 詳細を見る | |
マンション GENOVIA両国VIGREEN VEIL(1DK/12階) | |||||||
![]() | 18.4万円 1.8万円 | なし なし | 1DK 41.47m2 | 築4年 | 都営大江戸線 両国駅 徒歩9分 都営新宿線 菊川駅(東京) 徒歩10分 JR総武線 錦糸町駅 徒歩11分 東京都墨田区緑 | 詳細を見る | |
マンション EST FELICITA 押上(1SLDK/1階) | |||||||
![]() | 20万円 8,000円 | なし なし | 1SLDK 46.43m2 | 築1年 | 東京地下鉄半蔵門線 押上駅 徒歩5分 東武伊勢崎・大師線 押上駅 徒歩12分 東京都墨田区押上3丁目 | 詳細を見る | |
マンション コンフォリア・リヴ上野(1LDK/7階) | |||||||
![]() | 22.7万円 1.5万円 | 22.7万円 なし | 1LDK 40.22m2 | 築1年 | 東京地下鉄日比谷線 入谷駅(東京) 徒歩5分 山手線 上野駅 徒歩7分 東京都台東区下谷1丁目 | 詳細を見る | |
マンション クレヴィスタ亀戸III(1K/4階) | |||||||
![]() | 12.5万円 1.1万円 | なし 12.5万円 | 1K 25.6m2 | 築7年 | 東武鉄道亀戸線 亀戸水神駅 徒歩2分 総武・中央緩行線 亀戸駅 徒歩9分 東武鉄道亀戸線 東あずま駅 徒歩12分 東京都江東区亀戸8丁目 | 詳細を見る | |
マンション ルミークアン東陽町(1DK/4階) | |||||||
![]() | 12.9万円 2万円 | なし 12.9万円 | 1DK 29.1m2 | 築2年 | 東京メトロ東西線 東陽町駅 徒歩7分 都営大江戸線 門前仲町駅 徒歩21分 JR京葉線 潮見駅 徒歩23分 東京都江東区東陽 | 詳細を見る | |








