賃貸マンション
S-RESIDENCE烏森AUREATEの賃貸物件情報(2K/10階)
| 家賃 | 管理費等 | 敷金 | 礼金 | 間取り | 専有面積 |
|---|---|---|---|---|---|
| 7.3万円 | 8,000円 | なし | 7.3万円 | 2K | 29.79m2 |
入居決定でお祝い金最大100,000円
- 保証金
- -
- 償却・敷引
- -
- 築年数
- 築1年
- 所在階
- 10階
- 向き
- 東
Point
名古屋市全域、周辺地域まとめてご案内いたします。お気軽にお問い合わせくださいませ!
提供:ホームメイトFC大曽根駅前店エステートプラス(株)(SUUMO経由)

詳細情報 S-RESIDENCE烏森AUREATE
物件紹介
S-RESIDENCE烏森AUREATEは近鉄名古屋線烏森駅から徒歩5分にあり、駅近で通勤通学に便利なマンションです。
このお部屋は2階以上に位置しているので、通行人や周囲の住人からの視線が気になりにくく、防犯面でも安心。建物のエントランスはオートロックがついており、インターホンにはTVモニタもついているため、相手の顔を確認してから来客対応することができます。
おしゃれなデザイナーズ物件!人気の角部屋で周囲の居住者の生活音も気になりにくく、また、フローリングのお部屋なのでお掃除もラクラク。室内にはウォークインクローゼットがありますので、たくさんの荷物も効率的に収納ができます。キッチンはシステムキッチン仕様になっていますので、お料理好きの方にもぴったり。バス・トイレは別なので、のんびりお風呂タイムも楽しめるでしょう。また、雨の日でも浴室乾燥機を使えば、お洗濯も問題ありません。
通信設備面では、インターネットが無料で使えるので、月々の出費を抑えられるのも魅力です。また、BSアンテナ・CSアンテナがありCATVにも対応しているので、おうち時間も充実するでしょう(別途工事、BS・CS・CATVの契約料等が必要な場合あり)。
建物にはエレベーターがついているので、重い荷物があっても安心。共用部には宅配ボックスが設定されているので、不在の時にも荷物を受け取ることができます。
このお部屋は2階以上に位置しているので、通行人や周囲の住人からの視線が気になりにくく、防犯面でも安心。建物のエントランスはオートロックがついており、インターホンにはTVモニタもついているため、相手の顔を確認してから来客対応することができます。
おしゃれなデザイナーズ物件!人気の角部屋で周囲の居住者の生活音も気になりにくく、また、フローリングのお部屋なのでお掃除もラクラク。室内にはウォークインクローゼットがありますので、たくさんの荷物も効率的に収納ができます。キッチンはシステムキッチン仕様になっていますので、お料理好きの方にもぴったり。バス・トイレは別なので、のんびりお風呂タイムも楽しめるでしょう。また、雨の日でも浴室乾燥機を使えば、お洗濯も問題ありません。
通信設備面では、インターネットが無料で使えるので、月々の出費を抑えられるのも魅力です。また、BSアンテナ・CSアンテナがありCATVにも対応しているので、おうち時間も充実するでしょう(別途工事、BS・CS・CATVの契約料等が必要な場合あり)。
建物にはエレベーターがついているので、重い荷物があっても安心。共用部には宅配ボックスが設定されているので、不在の時にも荷物を受け取ることができます。
お金・契約の情報
※「-」と表示されているものは、実際は料金が発生するものもございます。詳細はお問い合わせください。
| 家賃 | 7.3万円 | 管理費・共益費 | 8,000円 |
|---|---|---|---|
| 敷金 | なし | 礼金 | 7.3万円 |
| 入居決定でお祝い金最大100,000円 | |||
| 保証金 | - | 償却・敷引 | - |
| 住宅保険料 | - | 更新料 | - |
| 保証会社利用 | 必須 | 保証会社名 | - |
| 保証会社費用 | - | 保証会社備考 | 保証会社利用必 K-net(近畿保証サービス)初回保証料:総賃料の50%1年更新:12 000円法人契約(上場企業及びそれに準ずる企業)で、保証会社未加入の場合、敷金として賃料の1ヶ月分要/管理会社指定 |
| 契約形態 | - | 契約期間 | - |
| 入居・引渡期間 | 相談 | 現況 | - |
| 契約備考 | 更新料 新賃料1.00ヶ月分 室内清掃費用 44000円 口座振替手数料(税込) 月額330円 2K 普通借家2年 損保【2.2万円2年】 エアコン、TVインターホン、浴室乾燥機、シューズボックス、角住戸、温水洗浄便座、敷金不要、ネット使用料不要、保証金不要、築2年以内、築3年以内、築5年以内、都市ガス、年内入居可、礼金1ヶ月 | ||
部屋の情報
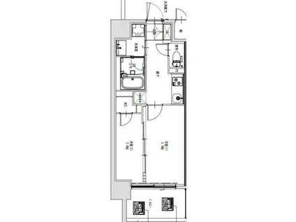
| 間取り | 2K | 専有面積 | 29.79m2 |
|---|---|---|---|
| 所在階 / 向き | 10階 / 東 | バルコニー面積 | - |
| 水道 / ガス | - | ||
| 設備 | 2階以上、テレビドアホン、浴室乾燥機、インターネット対応、エアコン、温水洗浄便座、角部屋、インターネット使用料無料 | ||
| 当社物件ID | 159697889 | ||
建物の情報
| 建物名 | S-RESIDENCE烏森AUREATE | ||
|---|---|---|---|
| 所在地 | 愛知県名古屋市中村区牛田通 | ||
| 交通 | 近鉄名古屋線 烏森駅 徒歩5分 近鉄名古屋線 黄金駅(愛知) 徒歩8分 あおなみ線 小本駅(愛知) 徒歩12分 | ||
| 階数 | 12階建 | 総戸数 | 62戸 |
| 築年月 | 2025年11月 / 築1年 | エレベーター | - |
| 駐車場 | なし | バイク置き場 | - |
| 駐輪場 | - | 管理人/管理会社 | - |
| 周辺環境 | その他 名古屋市立柳小学校(小学校)まで529m | ||
| 建物種別 | マンション | 建物構造 | RC(鉄筋コンクリート) |
この部屋の取扱い不動産会社
| 会社名 | ホームメイトFC大曽根駅前店エステートプラス(株)(SUUMO経由) | ||
|---|---|---|---|
| 所在地 | 愛知県名古屋市北区大曽根4-19-24 大曽根シティハウス1F | 交通 | - |
| 営業時間 | 10:00~19:00 | 定休日 | 水曜日 |
| 免許番号 | 愛知県知事23084 | 取引態様 | 仲介 |
| 不動産会社管理番号 | 100472367353 | 当社管理番号 | 89 |
| 所属団体 | (公社)愛知県宅地建物取引業協会会員 | ||
| 公正取引協議会 | 東海不動産公正取引協議会加盟 | ||
| 取扱い物件情報 | 物件詳細へ | ||
※各種情報と現状に差異がある場合は、現状優先となります。問い合わせをすることで、より詳しい条件、情報を確認する事ができます。
提供:ホームメイトFC大曽根駅前店エステートプラス(株)(SUUMO経由)
この物件が気になったら掲載期限まであと10日
S-RESIDENCE烏森AUREATEの空き部屋一覧
全部で22の空き部屋があります。
S-RESIDENCE烏森AUREATEに条件(家賃・エリア)が近い物件一覧
| 写真 | 家賃 管理費等 | 敷金 礼金 | 間取り 専有面積 | 築年数 | 最寄り駅 所在地 | キープ | 詳細 |
|---|---|---|---|---|---|---|---|
アパート T.A長筬町4丁目(1LDK/1階) | |||||||
![]() | 5.6万円 4,000円 | なし 11.2万円 | 1LDK 32.51m2 | 築8年 | 地下鉄東山線 中村公園駅 徒歩8分 地下鉄東山線 岩塚駅 徒歩15分 地下鉄東山線 中村日赤駅 徒歩20分 愛知県名古屋市中村区長筬町 | 詳細を見る | |
アパート プルミエール角割町(1K/1階) | |||||||
![]() | 5.4万円 4,000円 | なし なし | 1K 24.88m2 | 築2年 | 近鉄名古屋線 黄金駅(愛知) 徒歩4分 近鉄名古屋線 烏森駅 徒歩9分 名古屋臨海高速鉄道 小本駅(愛知) 徒歩16分 愛知県名古屋市中村区角割町2丁目 | 詳細を見る | |
マンション メイクスアート名駅南Ⅳ(1LDK/12階) | |||||||
![]() | 8.35万円 8,000円 | なし なし | 1LDK 29.91m2 | 築1年 | 名古屋臨海高速鉄道 ささしまライブ駅 徒歩12分 名古屋市鶴舞線 大須観音駅 徒歩13分 名鉄名古屋本線 山王駅(愛知) 徒歩13分 愛知県名古屋市中村区名駅南3丁目 | 詳細を見る | |
マンション エステムコート名古屋TWIN ウエスト(1K/13階) | |||||||
![]() | 6.75万円 4,680円 | なし なし | 1K 26.07m2 | 築1年 | 名古屋市東山線 中村日赤駅 徒歩6分 愛知県名古屋市中村区日吉町 | 詳細を見る | |
マンション S-RESIDENCE名駅ノース Ⅱ(1K/6階) | |||||||
![]() | 7.05万円 8,000円 | なし なし | 1K 23.29m2 | 築2年 | 名古屋市東山線 亀島駅 徒歩4分 愛知県名古屋市中村区井深町 | 詳細を見る | |
アパート クレール岩塚Ⅰ(1K/1階) | |||||||
![]() | 4.8万円 3,000円 | なし なし | 1K 20.22m2 | 築8年 | 名古屋市東山線 岩塚駅 徒歩12分 近鉄名古屋線 烏森駅 徒歩14分 近鉄名古屋線 黄金駅(愛知) 徒歩15分 愛知県名古屋市中村区日ノ宮町3丁目 | 詳細を見る | |
マンション SK BUILDING10(ワンルーム/2階) | |||||||
![]() | 5.4万円 6,000円 | なし なし | ワンルーム 24.85m2 | 築14年 | 近鉄名古屋線 米野駅 徒歩3分 名古屋臨海高速鉄道 ささしまライブ駅 徒歩7分 名古屋市桜通線 太閤通駅 徒歩14分 愛知県名古屋市中村区大正町1丁目 | 詳細を見る | |
アパート CASTANA.城主 (1K/2階) | |||||||
![]() | 5万円 3,000円 | なし なし | 1K 21.78m2 | 築9年 | 名古屋市桜通線 太閤通駅 徒歩10分 近鉄名古屋線 黄金駅(愛知) 徒歩13分 名古屋市東山線 中村日赤駅 徒歩17分 愛知県名古屋市中村区城主町6丁目 | 詳細を見る | |






