賃貸マンション
ザ・パークハビオ南大井の賃貸物件情報(1K/4階)
| 家賃 | 管理費等 | 敷金 | 礼金 | 間取り | 専有面積 |
|---|---|---|---|---|---|
| 12.8万円 | 1.5万円 | 12.8万円 | なし | 1K | 29.76m2 |
入居決定でお祝い金最大100,000円
- 保証金
- -
- 償却・敷引
- -
- 築年数
- 築5年
- 所在階
- 4階
- 向き
- 東
Point
当物件は初期費用分割払い可(クレジットカード決済も可)/お客様のご希望に合わせた方法(店頭、オンライン等)で物件をご提案いたします。初期費用のお見積りや入居希望日のご相談もお気軽にお問い合わせください
提供:TR(株)ナビホーム赤坂店(SUUMO経由)

詳細情報 ザ・パークハビオ南大井
物件紹介
ザ・パークハビオ南大井は京急本線立会川駅から徒歩5分にあり、駅近で通勤通学に便利なマンションです。
このお部屋は2階以上に位置しているので、通行人や周囲の住人からの視線が気になりにくく、防犯面でも安心。建物のエントランスはオートロックがついており、インターホンにはTVモニタもついているため、相手の顔を確認してから来客対応することができます。
おしゃれなデザイナーズ物件!また、楽器相談が可能な物件となっているので、楽器演奏をお考えの方はぜひ相談してみてください。フローリングのお部屋なのでお掃除もラクラク。室内には人気のウォークインクローゼットがありますので、たくさんの荷物も効率的に収納ができます。キッチンはシステムキッチン仕様になっていますので、お料理好きの方にもぴったり。バス・トイレは別なので、のんびりお風呂タイムも楽しめるでしょう。また、雨の日でも浴室乾燥機を使えば、お洗濯も問題ありません。
通信設備面では、インターネットが無料で使えるので、月々の出費を抑えられるのも魅力です。また、BSアンテナ・CSアンテナがありCATVにも対応しているので、おうち時間も充実するでしょう(別途工事、BS・CS・CATVの契約料等が必要な場合あり)。
建物にはエレベーターがついているので、重い荷物があっても安心。共用部には宅配ボックスが設定されているので、不在の時にも荷物を受け取ることができます。また、ペット飼育の相談ができますので、あなたの大切な家族の一員も快適に暮らせるか、ぜひ確認してみてください。
このお部屋は2階以上に位置しているので、通行人や周囲の住人からの視線が気になりにくく、防犯面でも安心。建物のエントランスはオートロックがついており、インターホンにはTVモニタもついているため、相手の顔を確認してから来客対応することができます。
おしゃれなデザイナーズ物件!また、楽器相談が可能な物件となっているので、楽器演奏をお考えの方はぜひ相談してみてください。フローリングのお部屋なのでお掃除もラクラク。室内には人気のウォークインクローゼットがありますので、たくさんの荷物も効率的に収納ができます。キッチンはシステムキッチン仕様になっていますので、お料理好きの方にもぴったり。バス・トイレは別なので、のんびりお風呂タイムも楽しめるでしょう。また、雨の日でも浴室乾燥機を使えば、お洗濯も問題ありません。
通信設備面では、インターネットが無料で使えるので、月々の出費を抑えられるのも魅力です。また、BSアンテナ・CSアンテナがありCATVにも対応しているので、おうち時間も充実するでしょう(別途工事、BS・CS・CATVの契約料等が必要な場合あり)。
建物にはエレベーターがついているので、重い荷物があっても安心。共用部には宅配ボックスが設定されているので、不在の時にも荷物を受け取ることができます。また、ペット飼育の相談ができますので、あなたの大切な家族の一員も快適に暮らせるか、ぜひ確認してみてください。
お金・契約の情報
※「-」と表示されているものは、実際は料金が発生するものもございます。詳細はお問い合わせください。
| 家賃 | 12.8万円 | 管理費・共益費 | 1.5万円 |
|---|---|---|---|
| 敷金 | 12.8万円 | 礼金 | なし |
| 入居決定でお祝い金最大100,000円 | |||
| 保証金 | - | 償却・敷引 | - |
| 住宅保険料 | - | 更新料 | - |
| 保証会社利用 | 必須 | 保証会社名 | - |
| 保証会社費用 | - | 保証会社備考 | 保証会社利用必 初回:賃料等の50%(最低保証料2万円)、2年目以降:1年毎1万円 |
| 契約形態 | - | 契約期間 | - |
| 入居・引渡期間 | 即時 | 現況 | - |
| 入居可能条件 | 楽器相談、ペット相談 | ||
| 契約備考 | 大井中央病院まで849m/佐川医院まで85m/ペット相談可敷金1か月積増/保証料賃料等合計100%1年毎10%/駐車場有り38500円/駐輪場有り月額330円/バイク置場有り月額5500円/退去時費用室内清掃費用エアコン洗浄費用借主負担/駆付けサポート24(2年間16500円)借主加入/保証会社未使用時敷金2か月 合計4.95万円(内訳:カギ交換費用33000円/駆付けサポート2416500円) 1K ペット相談/楽器相談 普通借家2年 損保【要】 バストイレ別、バルコニー、エアコン、ガスコンロ対応、フローリング、TVインターホン、浴室乾燥機、オートロック、室内洗濯置、追焚機能浴室、温水洗浄便座、エレベーター、2口コンロ、駐輪場、宅配ボックス、光ファイバー、外壁タイル張り、即入居可、礼金不要、BS・CS、防犯カメラ、オートバス、ウォークインクロゼット、敷金1ヶ月、バイク置場、2沿線利用可、ネット使用料不要、保証金不要、外壁コンクリート、3駅以上利用可、駅徒歩5分以内、24時間ゴミ出し可、敷地内ごみ置き場、築5年以内、都市ガス、高速ネット対応、初期費用カード決済可 | ||
部屋の情報
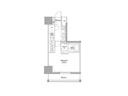
| 間取り | 1K | 専有面積 | 29.76m2 |
|---|---|---|---|
| 所在階 / 向き | 4階 / 東 | バルコニー面積 | - |
| 水道 / ガス | - | ||
| 設備 | バス・トイレ別、2階以上、オートロック、テレビドアホン、宅配ボックス、浴室乾燥機、ウォークインクローゼット、追い焚き、インターネット対応、エアコン、エレベーター、温水洗浄便座、バルコニー、フローリング、2口コンロ、コンロ:ガス、CSアンテナ、BSアンテナ、インターネット使用料無料、洗濯機:室内 | ||
| 当社物件ID | 82830722 | ||
建物の情報
| 建物名 | ザ・パークハビオ南大井 | ||
|---|---|---|---|
| 所在地 | 東京都品川区南大井 | ||
| 交通 | 京急本線 立会川駅 徒歩5分 JR京浜東北線 大森駅(東京) 徒歩16分 京急本線 鮫洲駅 徒歩16分 | ||
| 階数 | 15階建 | 総戸数 | 109戸 |
| 築年月 | 2021年05月 / 築5年 | エレベーター | あり |
| 駐車場 | 空有 38500円 | バイク置き場 | あり |
| 駐輪場 | あり | 管理人/管理会社 | - |
| 周辺環境 | その他 ウィラ大井(ショッピングセンター)まで1031m その他 まいばすけっと立会川駅西店(スーパー)まで308m その他 ローソン 品川南大井四丁目店(コンビニ)まで4m その他 スギ薬局南大井店(ドラッグストア)まで381m その他 DCM大井競馬場前店(ホームセンター)まで1046m その他 すき家 立会川店(飲食店)まで403m | ||
| 建物種別 | マンション | 建物構造 | RC(鉄筋コンクリート) |
この部屋の取扱い不動産会社
| 会社名 | アエラス目黒店 (株)アエラス.FR(SUUMO経由) | ||
|---|---|---|---|
| 所在地 | 東京都目黒区目黒1-4-8 東レクビル 5階 | 交通 | - |
| 営業時間 | 10:00~19:00(時間外対応出来る場合有り) | 定休日 | 年中無休(年末年始などを除く) |
| 免許番号 | 国土交通大臣10206 | 取引態様 | 仲介 |
| 不動産会社管理番号 | 100468041769 | 当社管理番号 | 89 |
| 所属団体 | (公社)全日本不動産協会東京都本部会員 | ||
| 公正取引協議会 | (公社)首都圏不動産公正取引協議会加盟 | ||
| 取扱い物件情報 | 物件詳細へ | ||
※各種情報と現状に差異がある場合は、現状優先となります。問い合わせをすることで、より詳しい条件、情報を確認する事ができます。
提供:アエラス目黒店 (株)アエラス.FR(SUUMO経由)
この物件が気になったら掲載期限まであと10日
ザ・パークハビオ南大井に条件(家賃・エリア)が近い物件一覧
| 写真 | 家賃 管理費等 | 敷金 礼金 | 間取り 専有面積 | 築年数 | 最寄り駅 所在地 | キープ | 詳細 |
|---|---|---|---|---|---|---|---|
マンション NORUM VIENTO(1LDK/3階) | |||||||
![]() | 14.1万円 3,000円 | 14.1万円 28.2万円 | 1LDK 40.27m2 | 築18年 | JR京浜東北線 蒲田駅 徒歩12分 東急池上線 蓮沼駅 徒歩16分 京急本線 京急蒲田駅 徒歩22分 東京都大田区西蒲田 | 詳細を見る | |
マンション パークハビオ門前仲町(ワンルーム/2階) | |||||||
![]() | 13.8万円 1.5万円 | 13.8万円 13.8万円 | ワンルーム 28.73m2 | 築12年 | 東京メトロ東西線 門前仲町駅 徒歩2分 JR京葉線 越中島駅 徒歩14分 東京メトロ半蔵門線 清澄白河駅 徒歩14分 東京都江東区深川 | 詳細を見る | |
タウンハウス 大田菜園長屋(2LDK) | |||||||
![]() | 15.4万円 5,000円 | 15.4万円 23.1万円 | 2LDK 52.17m2 | 築9年 | 京浜急行電鉄本線 雑色駅 徒歩8分 京浜急行電鉄本線 六郷土手駅 徒歩13分 東京都大田区東六郷3丁目 | 詳細を見る | |
マンション クレストコート門前仲町(1DK/10階) | |||||||
![]() | 15.5万円 1.2万円 | 15.5万円 なし | 1DK 26.14m2 | 築1年 | 東京都大江戸線 門前仲町駅 徒歩7分 東京地下鉄東西線 門前仲町駅 徒歩7分 東京地下鉄日比谷線 茅場町駅 徒歩15分 東京都江東区永代1丁目 | 詳細を見る | |
マンション ラトレールエスポワール(1K/1階) | |||||||
![]() | 8.1万円 3,000円 | 8.1万円 8.1万円 | 1K 26.97m2 | 築23年 | 東急多摩川線 下丸子駅 徒歩4分 東急多摩川線 武蔵新田駅 徒歩14分 東急池上線 千鳥町駅 徒歩14分 東京都大田区下丸子 | 詳細を見る | |
マンション レジディア大島(1K/2階) | |||||||
![]() | 8.9万円 1万円 | なし なし | 1K 20.13m2 | 築19年 | 東京都新宿線 大島駅(東京) 徒歩4分 東京都江東区大島5丁目 | 詳細を見る | |
マンション フェニックスII・アムス亀戸(1K/2階) | |||||||
![]() | 9.4万円 6,000円 | なし なし | 1K 25.5m2 | 築22年 | JR総武線 亀戸駅 徒歩5分 東武亀戸線 東あずま駅 徒歩18分 都営新宿線 西大島駅 徒歩19分 東京都江東区亀戸 | 詳細を見る | |







