賃貸マンション
京王府中テラスの賃貸物件情報(1LDK/6階)
| 家賃 | 管理費等 | 敷金 | 礼金 | 間取り | 専有面積 |
|---|---|---|---|---|---|
| 12.4万円 | 6,000円 | 12.4万円 | 24.8万円 | 1LDK | 44.54m2 |
入居決定でお祝い金最大100,000円
- 保証金
- -
- 償却・敷引
- -
- 築年数
- 築12年
- 所在階
- 6階
- 向き
- 南
Point
オンライン案内、現地案内にも対応可。ウェブ上の全ての賃貸物件のご紹介が可能です。また、ペット飼育や楽器相談など多彩な物件情報のご用意もございますので、お気軽に当社スタッフまでお問合せください。
提供:(株)FullFing liFe(SUUMO経由)

詳細情報 京王府中テラス
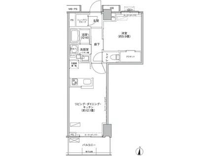
物件紹介
京王府中テラスはJR武蔵野線北府中駅から徒歩3分にあり、駅近で通勤通学に便利なマンションです。
このお部屋は2階以上に位置しているので、通行人や周囲の住人からの視線が気になりにくく、防犯面でも安心。建物のエントランスはオートロックがついており、インターホンにはTVモニタもついているため、相手の顔を確認してから来客対応することができます。
人気の南向きのお部屋。また、フローリングなのでお掃除もラクラク。キッチンはシステムキッチン仕様になっていますので、お料理好きの方にもぴったり。バス・トイレは別なので、のんびりお風呂タイムも楽しめるでしょう。また、雨の日でも浴室乾燥機を使えば、お洗濯も問題ありません。
通信設備面では、インターネット接続が可能です。また、BSアンテナ・CSアンテナがありCATVにも対応しているので、おうち時間も充実するでしょう(別途工事、契約料が必要な場合あり)。
建物にはエレベーターがついているので、重い荷物があっても安心。共用部には宅配ボックスが設定されているので、不在の時にも荷物を受け取ることができます。
このお部屋は2階以上に位置しているので、通行人や周囲の住人からの視線が気になりにくく、防犯面でも安心。建物のエントランスはオートロックがついており、インターホンにはTVモニタもついているため、相手の顔を確認してから来客対応することができます。
人気の南向きのお部屋。また、フローリングなのでお掃除もラクラク。キッチンはシステムキッチン仕様になっていますので、お料理好きの方にもぴったり。バス・トイレは別なので、のんびりお風呂タイムも楽しめるでしょう。また、雨の日でも浴室乾燥機を使えば、お洗濯も問題ありません。
通信設備面では、インターネット接続が可能です。また、BSアンテナ・CSアンテナがありCATVにも対応しているので、おうち時間も充実するでしょう(別途工事、契約料が必要な場合あり)。
建物にはエレベーターがついているので、重い荷物があっても安心。共用部には宅配ボックスが設定されているので、不在の時にも荷物を受け取ることができます。
お金・契約の情報
※「-」と表示されているものは、実際は料金が発生するものもございます。詳細はお問い合わせください。
| 家賃 | 12.4万円 | 管理費・共益費 | 6,000円 |
|---|---|---|---|
| 敷金 | 12.4万円 | 礼金 | 24.8万円 |
| 入居決定でお祝い金最大100,000円 | |||
| 保証金 | - | 償却・敷引 | - |
| 住宅保険料 | - | 更新料 | - |
| 保証会社利用 | 必須 | 保証会社名 | - |
| 保証会社費用 | - | 保証会社備考 | 保証会社利用必 ※要問合せ |
| 契約形態 | - | 契約期間 | - |
| 入居・引渡期間 | 即時 | 現況 | - |
| 契約備考 | オンライン案内、現地案内にも対応可。ウェブ上の全ての賃貸物件のご紹介が可能です。また、ペット飼育や楽器相談など多彩な物件情報のご用意もございますので、お気軽に当社スタッフまでお問合せください。 合計2.75万円(内訳:鍵交換代2.75万円) 更新料 新賃料1.00ヶ月分 1LDK 二人入居可/子供可 普通借家2年 損保【要】 バストイレ別、バルコニー、エアコン、ガスコンロ対応、クロゼット、フローリング、シャワー付洗面台、TVインターホン、浴室乾燥機、オートロック、室内洗濯置、陽当り良好、シューズボックス、システムキッチン、南向き、追焚機能浴室、温水洗浄便座、脱衣所、エレベーター、洗面所独立、洗面化粧台、2口コンロ、駐輪場、宅配ボックス、CATV、光ファイバー、即入居可、対面式キッチン、防犯カメラ、オートバス、グリル付、全居室洋室、保証人不要、CATVインターネット、バイク置場、全居室フローリング、ガスレンジ付、玄関ホール、2沿線利用可、ディンプルキー、CS、ネット専用回線、眺望良好、玄関ポーチ、2駅利用可、3駅以上利用可、3沿線以上利用可、駅徒歩5分以内、駅徒歩10分以内、上階無し、24時間ゴミ出し可、敷地内ごみ置き場、LDK12畳以上、都市ガス、南面バルコニー、シューズWIC、BS、通風良好 | ||
部屋の情報
| 間取り | 1LDK | 専有面積 | 44.54m2 |
|---|---|---|---|
| 所在階 / 向き | 6階 / 南 | バルコニー面積 | - |
| 水道 / ガス | - | ||
| 設備 | バス・トイレ別、2階以上、オートロック、テレビドアホン、宅配ボックス、浴室乾燥機、追い焚き、インターネット対応、システムキッチン、エアコン、エレベーター、温水洗浄便座、南向き、バルコニー、フローリング、洗髪洗面化粧台、2口コンロ、コンロ:ガス、CATV、CSアンテナ、BSアンテナ、洗濯機:室内 | ||
| 当社物件ID | 14376148 | ||
建物の情報
| 建物名 | 京王府中テラス | ||
|---|---|---|---|
| 所在地 | 東京都府中市晴見町 | ||
| 交通 | JR武蔵野線 北府中駅 徒歩3分 京王線 府中駅(東京) 徒歩15分 JR南武線 分倍河原駅 徒歩19分 | ||
| 階数 | 7階建 | 総戸数 | - |
| 築年月 | 2014年07月 / 築12年 | エレベーター | あり |
| 駐車場 | 空有 16500円 | バイク置き場 | あり |
| 駐輪場 | あり | 管理人/管理会社 | - |
| 周辺環境 | その他 ファミリーマート(コンビニ)まで88m その他 ミニストップ(コンビニ)まで302m その他 K.sデンキ(その他)まで506m その他 武蔵府中局(郵便局)まで873m その他 島忠ホームズ(ホームセンター)まで508m その他 コープ(スーパー)まで615m | ||
| 建物種別 | マンション | 建物構造 | RC(鉄筋コンクリート) |
この部屋の取扱い不動産会社
| 会社名 | (株)FullFing liFe(SUUMO経由) | ||
|---|---|---|---|
| 所在地 | 東京都府中市宮西町1-20-15D1FUCHU 1階 | 交通 | - |
| 営業時間 | 10時分~18時30 分 | 定休日 | 水曜日 |
| 免許番号 | 東京都知事105588 | 取引態様 | 仲介 |
| 不動産会社管理番号 | 100435633053 | 当社管理番号 | 89 |
| 所属団体 | (公社)東京都宅地建物取引業協会会員 | ||
| 公正取引協議会 | (公社)首都圏不動産公正取引協議会加盟 | ||
| 取扱い物件情報 | 物件詳細へ | ||
※各種情報と現状に差異がある場合は、現状優先となります。問い合わせをすることで、より詳しい条件、情報を確認する事ができます。
提供:(株)FullFing liFe(SUUMO経由)
この物件が気になったら掲載期限まであと10日
京王府中テラスに条件(家賃・エリア)が近い物件一覧
| 写真 | 家賃 管理費等 | 敷金 礼金 | 間取り 専有面積 | 築年数 | 最寄り駅 所在地 | キープ | 詳細 |
|---|---|---|---|---|---|---|---|
アパート クレセール聖蹟(1LDK/1階) | |||||||
![]() | 8.2万円 2,900円 | なし 16.4万円 | 1LDK 37.76m2 | 築14年 | 京王電鉄京王線 百草園駅 徒歩9分 京王電鉄京王線 聖蹟桜ケ丘駅 徒歩17分 東京都日野市落川 | 詳細を見る | |
アパート メルヴェーユ(1LDK/1階) | |||||||
![]() | 11.5万円 5,500円 | なし 30万円 | 1LDK 44.7m2 | 築3年 | JR中央線 日野駅(東京) 徒歩18分 JR八高線 小宮駅 徒歩23分 JR八高線 北八王子駅 徒歩29分 東京都日野市日野台 | 詳細を見る | |
アパート メゾン・シェノン(1LDK/2階) | |||||||
![]() | 10.5万円 5,000円 | なし 10.5万円 | 1LDK 38.26m2 | 新築 | 多摩モノレール 高幡不動駅 徒歩11分 京王電鉄京王線 百草園駅 徒歩13分 多摩モノレール 程久保駅 徒歩15分 東京都日野市三沢1丁目 | 詳細を見る | |
マンション グランウッド(1LDK/2階) | |||||||
![]() | 13.5万円 9,000円 | 13.5万円 13.5万円 | 1LDK 43.65m2 | 築14年 | JR中央線 国立駅 徒歩9分 JR中央線 西国分寺駅 徒歩30分 西武国分寺線 恋ケ窪駅 徒歩30分 東京都国分寺市光町 | 詳細を見る | |
マンション イクシオ東府中(ワンルーム/3階) | |||||||
![]() | 8.35万円 5,000円 | なし なし | ワンルーム 21.53m2 | 築1年 | 京王電鉄京王線 東府中駅 徒歩3分 京王電鉄京王線 多磨霊園駅 徒歩11分 西武鉄道多摩川線 白糸台駅 徒歩18分 東京都府中市若松町1丁目 | 詳細を見る | |
アパート ファミール多摩平(ワンルーム/2階) | |||||||
![]() | 8.1万円 5,000円 | なし 10万円 | ワンルーム 33.78m2 | 築19年 | JR中央線 日野駅(東京) 徒歩16分 JR中央線 豊田駅 徒歩21分 京王線 南平駅 徒歩29分 東京都日野市多摩平 | 詳細を見る | |
アパート ガーデンヴィラ豊田(1K/2階) | |||||||
![]() | 8.7万円 5,000円 | なし 10万円 | 1K 33.34m2 | 築19年 | 中央本線 豊田駅 徒歩7分 東京都日野市豊田3丁目 | 詳細を見る | |
アパート アンソレイユ(1LDK/1階) | |||||||
![]() | 8.5万円 3,000円 | 8.5万円 なし | 1LDK 47.51m2 | 築8年 | 京王電鉄京王線 高幡不動駅 徒歩19分 東京都日野市大字上田 | 詳細を見る | |








/105x80-f1-q70-wp1)
