賃貸マンション
RELUXIA両国IIの賃貸物件情報(1K/2階)
| 家賃 | 管理費等 | 敷金 | 礼金 | 間取り | 専有面積 |
|---|---|---|---|---|---|
| 12.1万円 | 1万円 | なし | 12.1万円 | 1K | 27.13m2 |
入居決定でお祝い金最大100,000円
- 保証金
- -
- 償却・敷引
- -
- 築年数
- 築1年
- 所在階
- 2階
- 向き
- 東
Point
お一人お一人様に合ったお部屋をお探し致します。分からない事は何でもご相談下さいませ!
提供:(株)ヘヤコミュニケーションマエムキ神田支店(SUUMO経由)

詳細情報 RELUXIA両国II
物件紹介
RELUXIA両国IIは都営大江戸線両国駅から徒歩6分にあり、駅近で通勤通学に便利なマンションです。
このお部屋は2階以上に位置しているので、通行人や周囲の住人からの視線が気になりにくく、防犯面でも安心。建物のエントランスはオートロックがついており、インターホンにはTVモニタもついているため、相手の顔を確認してから来客対応することができます。
人気の角部屋で周囲の居住者の生活音も気になりにくく、また、フローリングのお部屋なのでお掃除もラクラク。キッチンはシステムキッチン仕様になっていますので、お料理好きの方にもぴったり。バス・トイレは別なので、のんびりお風呂タイムも楽しめるでしょう。また、雨の日でも浴室乾燥機を使えば、お洗濯も問題ありません。
通信設備面では、インターネットが無料で使えるので、月々の出費を抑えられるのも魅力です。また、BSアンテナ・CSアンテナがありCATVにも対応しているので、おうち時間も充実するでしょう(別途工事、BS・CS・CATVの契約料等が必要な場合あり)。
建物にはエレベーターがついているので、重い荷物があっても安心。共用部には宅配ボックスが設定されているので、不在の時にも荷物を受け取ることができます。また、ペット飼育の相談ができますので、あなたの大切な家族の一員も快適に暮らせるか、ぜひ確認してみてください。
このお部屋は2階以上に位置しているので、通行人や周囲の住人からの視線が気になりにくく、防犯面でも安心。建物のエントランスはオートロックがついており、インターホンにはTVモニタもついているため、相手の顔を確認してから来客対応することができます。
人気の角部屋で周囲の居住者の生活音も気になりにくく、また、フローリングのお部屋なのでお掃除もラクラク。キッチンはシステムキッチン仕様になっていますので、お料理好きの方にもぴったり。バス・トイレは別なので、のんびりお風呂タイムも楽しめるでしょう。また、雨の日でも浴室乾燥機を使えば、お洗濯も問題ありません。
通信設備面では、インターネットが無料で使えるので、月々の出費を抑えられるのも魅力です。また、BSアンテナ・CSアンテナがありCATVにも対応しているので、おうち時間も充実するでしょう(別途工事、BS・CS・CATVの契約料等が必要な場合あり)。
建物にはエレベーターがついているので、重い荷物があっても安心。共用部には宅配ボックスが設定されているので、不在の時にも荷物を受け取ることができます。また、ペット飼育の相談ができますので、あなたの大切な家族の一員も快適に暮らせるか、ぜひ確認してみてください。
お金・契約の情報
※「-」と表示されているものは、実際は料金が発生するものもございます。詳細はお問い合わせください。
| 家賃 | 12.1万円 | 管理費・共益費 | 1万円 |
|---|---|---|---|
| 敷金 | なし | 礼金 | 12.1万円 |
| 入居決定でお祝い金最大100,000円 | |||
| 保証金 | - | 償却・敷引 | - |
| 住宅保険料 | - | 更新料 | - |
| 保証会社利用 | 必須 | 保証会社名 | - |
| 保証会社費用 | - | 保証会社備考 | 保証会社利用必 賃貸保証料:0.50ヶ月 初回保証料:総賃料の50% |
| 契約形態 | - | 契約期間 | - |
| 入居・引渡期間 | 即時 | 現況 | - |
| 入居可能条件 | ペット相談 | ||
| 契約備考 | 周辺環境も詳しくご案内いたします!豊富な物件情報で楽しいお部屋探しをするならタウンハウジング秋葉原店へ! 合計2.31万円(内訳:顔認証登録費用:5500円/入居安心サポート:17600円) 更新料新賃料(ヶ月):1.00ヶ月 1K 単身者可/ペット相談 普通借家2年 損保【2万円2年】 バストイレ別、バルコニー、エアコン、ガスコンロ対応、クロゼット、フローリング、TVインターホン、浴室乾燥機、オートロック、室内洗濯置、シューズボックス、システムキッチン、追焚機能浴室、角住戸、温水洗浄便座、脱衣所、エレベーター、洗面所独立、洗面化粧台、2口コンロ、駐輪場、宅配ボックス、外壁タイル張り、即入居可、2面採光、BS・CS、敷金不要、防犯カメラ、ペット相談、照明付、全居室収納、分譲賃貸、オートバス、全居室洋室、保証人不要、単身者相談、バイク置場、24時間緊急通報システム、全居室フローリング、ディンプルキー、ネット専用回線、ネット使用料不要、エアコン全室、保証金不要、24時間換気システム、築3年以内、2駅利用可、24時間ゴミ出し可、敷地内ごみ置き場、築5年以内、全居室6畳以上、都市ガス、洗面所にドア、室内物干機、玄関収納、マルチメディアコンセント、礼金1ヶ月、IT重説対応物件、初期費用カード決済可、全室照明付 敷金積み増し【ペット飼育の場合敷金1ヶ月(総額)】 | ||
部屋の情報
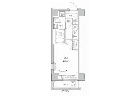
| 間取り | 1K | 専有面積 | 27.13m2 |
|---|---|---|---|
| 所在階 / 向き | 2階 / 東 | バルコニー面積 | - |
| 水道 / ガス | - | ||
| 設備 | バス・トイレ別、2階以上、オートロック、テレビドアホン、宅配ボックス、浴室乾燥機、追い焚き、インターネット対応、システムキッチン、エアコン、エレベーター、温水洗浄便座、角部屋、バルコニー、フローリング、洗髪洗面化粧台、2口コンロ、コンロ:ガス、CSアンテナ、BSアンテナ、インターネット使用料無料、洗濯機:室内 | ||
| 当社物件ID | 159527696 | ||
建物の情報
| 建物名 | RELUXIA両国II | ||
|---|---|---|---|
| 所在地 | 東京都墨田区石原 | ||
| 交通 | 都営大江戸線 両国駅 徒歩6分 都営大江戸線 蔵前駅 徒歩10分 JR総武線快速 馬喰町駅 徒歩27分 | ||
| 階数 | 8階建 | 総戸数 | - |
| 築年月 | 2025年10月 / 築1年 | エレベーター | あり |
| 駐車場 | なし | バイク置き場 | あり |
| 駐輪場 | あり | 管理人/管理会社 | - |
| 周辺環境 | その他 スーパーマーケット三徳石原店(スーパー)まで560m その他 マルエツ両国亀沢店(スーパー)まで1040m その他 アルカキット錦糸町(ショッピングセンター)まで1600m その他 セブンイレブン墨田石原1丁目店(コンビニ)まで150m その他 どらっぐぱぱす(ドラッグストア)まで400m | ||
| 建物種別 | マンション | 建物構造 | 鉄骨造 |
この部屋の取扱い不動産会社
| 会社名 | (株)タウンハウジング東京 秋葉原店(SUUMO経由) | ||
|---|---|---|---|
| 所在地 | 東京都千代田区神田岩本町 1-13 | 交通 | - |
| 営業時間 | AM10:00~PM7:00 | 定休日 | 水曜日 |
| 免許番号 | 国土交通大臣9926 | 取引態様 | 仲介 |
| 不動産会社管理番号 | 100473543376 | 当社管理番号 | 89 |
| 所属団体 | (公社)東京都宅地建物取引業協会会員 | ||
| 公正取引協議会 | (公社)首都圏不動産公正取引協議会加盟 | ||
| 取扱い物件情報 | 物件詳細へ | ||
※各種情報と現状に差異がある場合は、現状優先となります。問い合わせをすることで、より詳しい条件、情報を確認する事ができます。
提供:(株)タウンハウジング東京 秋葉原店(SUUMO経由)
この物件が気になったら掲載期限まであと10日
RELUXIA両国IIに条件(家賃・エリア)が近い物件一覧
| 写真 | 家賃 管理費等 | 敷金 礼金 | 間取り 専有面積 | 築年数 | 最寄り駅 所在地 | キープ | 詳細 |
|---|---|---|---|---|---|---|---|
マンション ベルシードアルファ押上イースト(1LDK/2階) | |||||||
![]() | 12.2万円 1.5万円 | なし なし | 1LDK 35.15m2 | 築1年 | 東武鉄道亀戸線 小村井駅 徒歩2分 東武鉄道亀戸線 東あずま駅 徒歩6分 東武鉄道亀戸線 亀戸水神駅 徒歩18分 東京都墨田区立花4丁目 | 詳細を見る | |
マンション テラス月島(1K/8階) | |||||||
![]() | 13.9万円 1.5万円 | 13.9万円 なし | 1K 25.15m2 | 築5年 | 東京都大江戸線 月島駅 徒歩4分 京葉線 越中島駅 徒歩8分 東京都中央区佃2丁目 | 詳細を見る | |
マンション ブランセ森下(1K/6階) | |||||||
![]() | 12.05万円 1万円 | なし なし | 1K 25.27m2 | 築7年 | 東京都大江戸線 森下駅(東京) 徒歩3分 東京都新宿線 森下駅(東京) 徒歩3分 総武・中央緩行線 両国駅 徒歩17分 東京都墨田区千歳3丁目 | 詳細を見る | |
マンション LEXE東京イースト ID(1K/7階) | |||||||
![]() | 9万円 1.5万円 | なし なし | 1K 25.72m2 | 築13年 | 東京都荒川線 荒川区役所前駅 徒歩2分 東京都荒川線 三ノ輪橋駅 徒歩6分 東京地下鉄日比谷線 三ノ輪駅 徒歩10分 東京都荒川区荒川1丁目 | 詳細を見る | |
マンション アーバネックス錦糸公園(1LDK/4階) | |||||||
![]() | 16.7万円 1.5万円 | 16.7万円 なし | 1LDK 31.84m2 | 築2年 | 総武・中央緩行線 錦糸町駅 徒歩4分 東京地下鉄半蔵門線 錦糸町駅 徒歩4分 東京都墨田区錦糸3丁目 | 詳細を見る | |
マンション BLESS蔵前(1LDK/9階) | |||||||
![]() | 16.8万円 1.5万円 | 16.8万円 16.8万円 | 1LDK 41.5m2 | 築9年 | 東京都浅草線 蔵前駅 徒歩4分 東京都浅草線 浅草橋駅 徒歩8分 東京都台東区蔵前1丁目 | 詳細を見る | |
マンション ECLUSE(1K/2階) | |||||||
![]() | 9.4万円 6,500円 | 9.4万円 9.4万円 | 1K 22.2m2 | 築22年 | 東京都大江戸線 新御徒町駅 徒歩1分 東京地下鉄銀座線 稲荷町駅(東京) 徒歩5分 山手線 上野駅 徒歩12分 東京都台東区元浅草1丁目 | 詳細を見る | |
マンション クラリティア浅草(1DK/10階) | |||||||
![]() | 14.5万円 1.5万円 | 14.5万円 なし | 1DK 25.46m2 | 築1年 | 東武伊勢崎・大師線 浅草駅(東武・都営・メトロ) 徒歩9分 東京都浅草線 浅草駅(東武・都営・メトロ) 徒歩10分 つくばエクスプレス 浅草駅(つくばEXP) 徒歩13分 東京都台東区浅草6丁目 | 詳細を見る | |








