賃貸マンション
ハーモニーレジデンス駒込の賃貸物件情報(1K/6階)
| 家賃 | 管理費等 | 敷金 | 礼金 | 間取り | 専有面積 |
|---|---|---|---|---|---|
| 8.3万円 | 1万円 | なし | 8.3万円 | 1K | 21.21m2 |
入居決定でお祝い金最大100,000円
- 保証金
- -
- 償却・敷引
- -
- 築年数
- 築13年
- 所在階
- 6階
- 向き
- 南
Point
まずはお問い合わせ!
不動産会社は街のプロ、あなたに合った物件がきっと見つかります。
提供:(株)アイカレント(SUUMO経由)

詳細情報 ハーモニーレジデンス駒込
物件紹介
ハーモニーレジデンス駒込は東京メトロ南北線駒込駅から徒歩3分にあり、駅近で通勤通学に便利なマンションです。
このお部屋は2階以上に位置しているので通行人や周囲の住人からの視線が気になりにくく、建物のエントランスはオートロックがついているので防犯性が高くなっています。
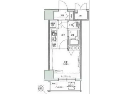
人気の南向き・フローリングのお部屋。角部屋でもあるため、周囲の居住者の生活音も気になりにくい場所です。キッチンはシステムキッチン仕様になっていますので、お料理好きの方にもぴったり。バス・トイレは別なので、のんびりお風呂タイムも楽しめるでしょう。また、雨の日でも浴室乾燥機を使えば、お洗濯も問題ありません。
通信設備面ではBSアンテナ・CSアンテナがありますので、おうち時間も充実するでしょう(別途工事、契約料が必要な場合あり)。
共用部には宅配ボックスが設定されているので、不在の時にも荷物を受け取ることができます。また、ペット飼育の相談ができますので、あなたの大切な家族の一員も快適に暮らせるか、ぜひ確認してみてください。
このお部屋は2階以上に位置しているので通行人や周囲の住人からの視線が気になりにくく、建物のエントランスはオートロックがついているので防犯性が高くなっています。
人気の南向き・フローリングのお部屋。角部屋でもあるため、周囲の居住者の生活音も気になりにくい場所です。キッチンはシステムキッチン仕様になっていますので、お料理好きの方にもぴったり。バス・トイレは別なので、のんびりお風呂タイムも楽しめるでしょう。また、雨の日でも浴室乾燥機を使えば、お洗濯も問題ありません。
通信設備面ではBSアンテナ・CSアンテナがありますので、おうち時間も充実するでしょう(別途工事、契約料が必要な場合あり)。
共用部には宅配ボックスが設定されているので、不在の時にも荷物を受け取ることができます。また、ペット飼育の相談ができますので、あなたの大切な家族の一員も快適に暮らせるか、ぜひ確認してみてください。
お金・契約の情報
※「-」と表示されているものは、実際は料金が発生するものもございます。詳細はお問い合わせください。
| 家賃 | 8.3万円 | 管理費・共益費 | 1万円 |
|---|---|---|---|
| 敷金 | なし | 礼金 | 8.3万円 |
| 入居決定でお祝い金最大100,000円 | |||
| 保証金 | - | 償却・敷引 | - |
| 住宅保険料 | - | 更新料 | - |
| 保証会社利用 | 必須 | 保証会社名 | - |
| 保証会社費用 | - | 保証会社備考 | 保証会社利用必 初回契約時5万円 |
| 契約形態 | - | 契約期間 | - |
| 入居・引渡期間 | - | 現況 | - |
| 入居可能条件 | ペット相談 | ||
| 契約備考 | 合計5.83万円(内訳:事務手数料0.55万円鍵交換2.75万円消毒0.88万円安心サポート1.65万円) 1K ペット相談 損保【要】 バストイレ別、バルコニー、ガスコンロ対応、クロゼット、フローリング、浴室乾燥機、オートロック、室内洗濯置、シューズボックス、システムキッチン、南向き、温水洗浄便座、洗面化粧台、2口コンロ、宅配ボックス、外壁タイル張り、2面採光、BS・CS、防犯カメラ、ペット相談、分譲賃貸、南西角住戸、全居室フローリング、2沿線利用可、CS、全室南向き、24時間換気システム、2駅利用可、駅徒歩5分以内、駅徒歩10分以内、全室南西向き、全居室6畳以上、プロパンガス、シャワールーム、BS、初期費用カード決済可 入居日:'26年1月中旬 | ||
部屋の情報
| 間取り | 1K | 専有面積 | 21.21m2 |
|---|---|---|---|
| 所在階 / 向き | 6階 / 南 | バルコニー面積 | - |
| 水道 / ガス | - | ||
| 設備 | バス・トイレ別、2階以上、オートロック、宅配ボックス、浴室乾燥機、システムキッチン、温水洗浄便座、南向き、角部屋、バルコニー、フローリング、2口コンロ、コンロ:ガス、CSアンテナ、BSアンテナ、洗濯機:室内 | ||
| 当社物件ID | 9956526 | ||
建物の情報
| 建物名 | ハーモニーレジデンス駒込 | ||
|---|---|---|---|
| 所在地 | 東京都豊島区駒込 | ||
| 交通 | 東京メトロ南北線 駒込駅 徒歩3分 JR山手線 駒込駅 徒歩4分 都営三田線 千石駅 徒歩12分 | ||
| 階数 | 9階建 | 総戸数 | - |
| 築年月 | 2013年05月 / 築13年 | エレベーター | - |
| 駐車場 | なし | バイク置き場 | - |
| 駐輪場 | - | 管理人/管理会社 | - |
| 周辺環境 | その他 トップパルケ田端銀座店(スーパー)まで572m その他 セブンイレブン豊島駒込1丁目店(コンビニ)まで142m その他 餃子の王将駒込店(飲食店)まで180m その他 クオリスキッズ駒込保育園(幼稚園・保育園)まで165m その他 マルエツプチ駒込中里一丁目店(スーパー)まで458m | ||
| 建物種別 | マンション | 建物構造 | RC(鉄筋コンクリート) |
この部屋の取扱い不動産会社
| 会社名 | (株)アイカレント(SUUMO経由) | ||
|---|---|---|---|
| 所在地 | 東京都豊島区東池袋2-56-2-101 | 交通 | - |
| 営業時間 | 10:00~19:00 ※時間外対応できる場合 有 | 定休日 | 毎週水曜日 |
| 免許番号 | 東京都知事97874 | 取引態様 | 仲介 |
| 不動産会社管理番号 | 100470254959 | 当社管理番号 | 89 |
| 所属団体 | (公社)東京都宅地建物取引業協会会員 | ||
| 公正取引協議会 | (公社)首都圏不動産公正取引協議会加盟 | ||
| 取扱い物件情報 | 物件詳細へ | ||
※各種情報と現状に差異がある場合は、現状優先となります。問い合わせをすることで、より詳しい条件、情報を確認する事ができます。
提供:(株)アイカレント(SUUMO経由)
この物件が気になったら掲載期限まであと10日
ハーモニーレジデンス駒込に条件(家賃・エリア)が近い物件一覧
| 写真 | 家賃 管理費等 | 敷金 礼金 | 間取り 専有面積 | 築年数 | 最寄り駅 所在地 | キープ | 詳細 |
|---|---|---|---|---|---|---|---|
マンション LA MAISON DE KAKEGAWA(1K/4階) | |||||||
![]() | 11.3万円 5,000円 | 11.3万円 11.3万円 | 1K 31.18m2 | 築19年 | 東京都三田線 千石駅 徒歩2分 山手線 巣鴨駅 徒歩10分 東京地下鉄南北線 本駒込駅 徒歩17分 東京都文京区千石4丁目 | 詳細を見る | |
マンション LOG文京SENDAGI(1K/8階) | |||||||
![]() | 12.3万円 1万円 | なし なし | 1K 26.07m2 | 築10年 | 東京地下鉄千代田線 千駄木駅 徒歩4分 山手線 西日暮里駅 徒歩6分 山手線 日暮里駅 徒歩12分 東京都文京区千駄木3丁目 | 詳細を見る | |
マンション ZESTY小石川(ワンルーム/3階) | |||||||
![]() | 8.6万円 1万円 | なし なし | ワンルーム 20.79m2 | 築20年 | 東京地下鉄丸ノ内線 茗荷谷駅 徒歩9分 東京都文京区小石川5丁目 | 詳細を見る | |
マンション モデラート(1DK/2階) | |||||||
![]() | 9万円 5,000円 | 9万円 9万円 | 1DK 27m2 | 築22年 | 東京地下鉄有楽町線 護国寺駅 徒歩9分 東京地下鉄有楽町線 江戸川橋駅 徒歩10分 東京地下鉄丸ノ内線 茗荷谷駅 徒歩11分 東京都文京区小日向2丁目 | 詳細を見る | |
マンション シンシア千駄木(ワンルーム/10階) | |||||||
![]() | 8万円 1万円 | 8万円 8万円 | ワンルーム 20.97m2 | 築24年 | 東京地下鉄千代田線 千駄木駅 徒歩1分 山手線 日暮里駅 徒歩11分 東京地下鉄南北線 本駒込駅 徒歩13分 東京都文京区千駄木3丁目 | 詳細を見る | |
マンション 日神パレステージ護国寺(1K/7階) | |||||||
![]() | 6.9万円 9,000円 | 6.9万円 6.9万円 | 1K 18.02m2 | 築31年 | 東京地下鉄有楽町線 護国寺駅 徒歩5分 東京地下鉄丸ノ内線 新大塚駅 徒歩7分 東京地下鉄丸ノ内線 茗荷谷駅 徒歩11分 東京都文京区大塚5丁目 | 詳細を見る | |
マンション エスティメゾン千石(1K/1階) | |||||||
![]() | 9.7万円 1万円 | 9.7万円 9.7万円 | 1K 20.2m2 | 築17年 | 東京都三田線 千石駅 徒歩7分 山手線 巣鴨駅 徒歩9分 東京都文京区千石4丁目 | 詳細を見る | |
マンション グランハイツ1(ワンルーム/4階) | |||||||
![]() | 6.5万円 2,000円 | 6.5万円 なし | ワンルーム 15.17m2 | 築35年 | 東京地下鉄丸ノ内線 新大塚駅 徒歩4分 山手線 大塚駅(東京) 徒歩12分 東京地下鉄有楽町線 東池袋駅 徒歩14分 東京都文京区大塚5丁目 | 詳細を見る | |









